olga32 Опубліковано: 21 лютого 2011 Поділитись Опубліковано: 21 лютого 2011 Здравствуйте. Прошу совета у специалистов. По проекту кровля из металлочерепицы. Мы хотели бы заменить ее на керамическую. Стена ракушечник (380 мм) + мин.вата (100 мм) + кирпич облицовочный ( 120 мм). Перегородки из кирпича. Мауэрлат сечением 150х150, стропила 100х200 и 150х200. Выдержат ли такие стены вес керамической черепицы? Надо ли что-то менять в стропильной системе? Заранее спасибо. Посилання на коментар Поділитися на інших сайтах More sharing options...
*Alexey* Опубліковано: 21 лютого 2011 Поділитись Опубліковано: 21 лютого 2011 Да. Стпропилка точно должна выдержать по сечению. Однако первый вопрос: какой шаг между стропил?? Второй вопрос: опорный брус (мауэрлат) на ракушняке или на монолитном поясе лежит?? 1 Посилання на коментар Поділитися на інших сайтах More sharing options...
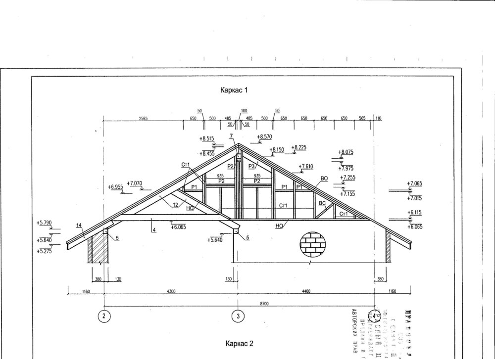
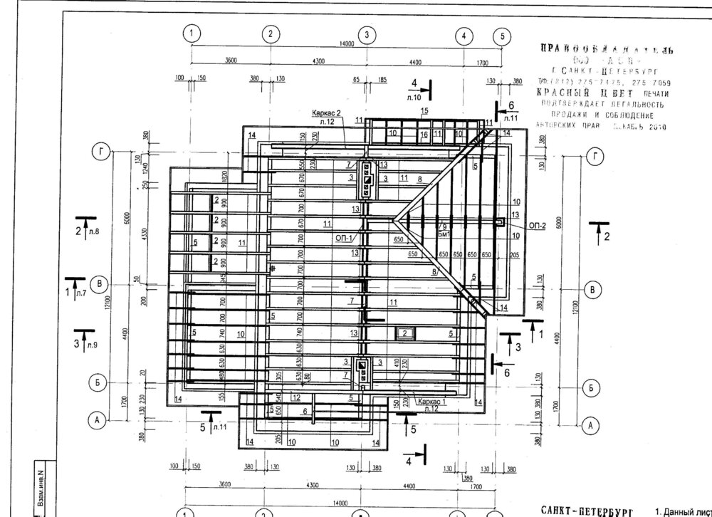
olga32 Опубліковано: 21 лютого 2011 Автор Поділитись Опубліковано: 21 лютого 2011 Если я правильно поняла чертеж (фотография 95) - шаг от 630 мм до 700 мм. Он почему-то разный. Мауэрлат на армопоясе. Посилання на коментар Поділитися на інших сайтах More sharing options...
olga32 Опубліковано: 21 лютого 2011 Автор Поділитись Опубліковано: 21 лютого 2011 Только увидела личное сообщение Дома нет еще. Это проект. Только начинаем строить в марте. Крыша где-то июль-август. В Мариуполе Вы работаете? Посилання на коментар Поділитися на інших сайтах More sharing options...
*Alexey* Опубліковано: 21 лютого 2011 Поділитись Опубліковано: 21 лютого 2011 Если я правильно поняла чертеж (фотография 95) - шаг от 630 мм до 700 мм. Он почему-то разный. Мауэрлат на армопоясе. Не вижу проблем с заменой Только обязательно учесть другую обрешетку. ЗЫ: Только увидела личное сообщениеЭто можно через личку... ;) Посилання на коментар Поділитися на інших сайтах More sharing options...
olga32 Опубліковано: 21 лютого 2011 Автор Поділитись Опубліковано: 21 лютого 2011 Вскрывать нечего. Мы только начинаем строить дом. Металлочерепица по проекту. Посилання на коментар Поділитися на інших сайтах More sharing options...
*Alexey* Опубліковано: 21 лютого 2011 Поділитись Опубліковано: 21 лютого 2011 Вскрывать нечего. Мы только начинаем строить дом. Металлочерепица по проекту. Уже понял. Пока умничал, Вы раскрыли все тайны..:lol: Посилання на коментар Поділитися на інших сайтах More sharing options...
olga32 Опубліковано: 21 лютого 2011 Автор Поділитись Опубліковано: 21 лютого 2011 Извините. Наверное с фразой "замена" в заголовке темы я погорячилась... 1 Посилання на коментар Поділитися на інших сайтах More sharing options...
tema17 Опубліковано: 22 лютого 2011 Поділитись Опубліковано: 22 лютого 2011 По оси 1, стропила имеют шаг 900, лучше поставить минимум 800... Учитывая ширину подшивки на фронтонах, желательно добавить стропила "на улице" или смастерить консоль, так как на одной обрешетке и ветровой доске (а так показано на плане стропилки) керамика и снег могут просесть... Согласен с *Alexey*, стропилка действительно посчитана с хорошим запасом. Считали в Санкт Петербурге, у них снеговая нагрузка выше раза в полтора. Но я, на вашем месте, ничего бы не менял в сторону уменьшения. 2 Посилання на коментар Поділитися на інших сайтах More sharing options...
olga32 Опубліковано: 22 лютого 2011 Автор Поділитись Опубліковано: 22 лютого 2011 Спасибо большое. Сегодня мне проектировщик сказал, что для керамики слишком маленький угол наклона крыши (30 град.). Необходимо все менять и пересчитывать. А на сайтах по черепице минимально допустимый угол указан 20-24 град. Кому верить? Посилання на коментар Поділитися на інших сайтах More sharing options...
*Alexey* Опубліковано: 22 лютого 2011 Поділитись Опубліковано: 22 лютого 2011 Спасибо большое. Сегодня мне проектировщик сказал, что для керамики слишком маленький угол наклона крыши (30 град.). Необходимо все менять и пересчитывать. А на сайтах по черепице минимально допустимый угол указан 20-24 град. Кому верить? Дайте НАМ номер этого проектанта. Очередной знаток кровельной специфики. Верьте сайтам и местным знатокам. Посилання на коментар Поділитися на інших сайтах More sharing options...
tema17 Опубліковано: 22 лютого 2011 Поділитись Опубліковано: 22 лютого 2011 Сегодня мне проектировщик сказал, что для керамики слишком маленький угол наклона крыши (30 град.)Интересно, чем он это мотивировал? Керамическую черепицу (да и любую другую), можно укладывать начиная от минимально допустимого уклона, рекомендуемого производителем. К примеру нашу черепицу La Escandella, можно укладывать от 16 градусов уклона. Я считаю оптимальный уклон кровли от 25 до 35 град. (ИМХО), с эстетической точки зрения. А так все зависит от Ваших пожеланий, архитектуры, дизайна, экстерьера, и пр.... П.С. есть предположение, что Ваш проектант, хочет предложить Вам просто другой материал;) 2 Посилання на коментар Поділитися на інших сайтах More sharing options...
Шакира Опубліковано: 22 лютого 2011 Поділитись Опубліковано: 22 лютого 2011 ну раз вы только на стадии проекта-про фундамент не забудьте-чтобы крышу выдержал))) Посилання на коментар Поділитися на інших сайтах More sharing options...
tema17 Опубліковано: 22 лютого 2011 Поділитись Опубліковано: 22 лютого 2011 Если фундамент не выдержит дом накрытый керамикой, то уж поверьте он не выдержит и дом накрытый металлочерепицей.... 1 Посилання на коментар Поділитися на інших сайтах More sharing options...
*Alexey* Опубліковано: 22 лютого 2011 Поділитись Опубліковано: 22 лютого 2011 ... Я считаю оптимальный уклон кровли от 25 до 35 град. (ИМХО), с эстетической точки зрения. А так все зависит от Ваших пожеланий, архитектуры, дизайна, экстерьера, и пр.... Полностью согласен ... П.С. есть предположение, что Ваш проектант, хочет предложить Вам просто другой материал;) Да, действительно выглядит как впаривание. 1 Посилання на коментар Поділитися на інших сайтах More sharing options...
olga32 Опубліковано: 22 лютого 2011 Автор Поділитись Опубліковано: 22 лютого 2011 Спасибо всем. Такие вот у нас умельцы Если стены - то пенобетон, если крыша - металлочерепица. Задают вопрос : зачем вам ракушечник, зачем керамическая черепица? Делайте как все... Фундамент , тоже для Питера проектировался. Глубина 1650 мм, ширина 650 мм, ленточный монолитный. С черепицей - успокоили. Спасибо. 2 Посилання на коментар Поділитися на інших сайтах More sharing options...
tema17 Опубліковано: 22 лютого 2011 Поділитись Опубліковано: 22 лютого 2011 Глубина 1650 мм, ширина 650 мм, ленточный монолитный. Глубина 1650 опять же обусловлена глубиной промерзания почвы данной климатической зоны. Я бы на Вашем месте пересчитал бы, уж сильно большие расходы получатся.... Посилання на коментар Поділитися на інших сайтах More sharing options...
Павлухан Опубліковано: 22 лютого 2011 Поділитись Опубліковано: 22 лютого 2011 Спасибо большое. Сегодня мне проектировщик сказал, что для керамики слишком маленький угол наклона крыши (30 град.). Необходимо все менять и пересчитывать. А на сайтах по черепице минимально допустимый угол указан 20-24 град. Кому верить? он не озвучил сколько будет стоить поменять и пересчитать? у вас в проекте стропилка , с хорошим запасом я кстати строил дом с керамикой по проекту петербургского архитектора там реально хорошая школа по части крыш( если у нас снеговой нагрузкой частенько пренебрегают..сколько той зимы:D, то там это учитываеться 1 Посилання на коментар Поділитися на інших сайтах More sharing options...
olga32 Опубліковано: 22 лютого 2011 Автор Поділитись Опубліковано: 22 лютого 2011 он не озвучил сколько будет стоить поменять и пересчитать? Оплата за дни работы. Сколько хочет столько и работает Посилання на коментар Поділитися на інших сайтах More sharing options...
olga32 Опубліковано: 23 лютого 2011 Автор Поділитись Опубліковано: 23 лютого 2011 Глубина 1650 опять же обусловлена глубиной промерзания почвы данной климатической зоны. Я бы на Вашем месте пересчитал бы, уж сильно большие расходы получатся.... Нам пересчитали, для Мариуполя достаточно 1100-1200 мм. Теперь думаем : то ли копать 1200, то ли сделать подвал под частью дома... Посилання на коментар Поділитися на інших сайтах More sharing options...
tema17 Опубліковано: 23 лютого 2011 Поділитись Опубліковано: 23 лютого 2011 Подвал конечно хорошо, но очень дорогое удовольствие....если финансы позволяют, почему бы и нет Посилання на коментар Поділитися на інших сайтах More sharing options...
*Alexey* Опубліковано: 23 лютого 2011 Поділитись Опубліковано: 23 лютого 2011 Теперь думаем : то ли копать 1200, то ли сделать подвал под частью дома... Фундамент - пожалуй самый увесистый в финансах строительный цикл. Прежде, чем его обустраивать, хорошенько взвесьте, нужен ли он Вам. Хватает ли Вам уже заложенного в проект планировочного решения. Если не хватает, подойдите к вопросу без фанатизма, т.к в итоге у 70% построившихся существуют безполезные/пустующие площади, которые надо как минимум отапливать.. Да, из этих площадей в дальнейшем, возможно удастся сделать бильярдную, домашний кинозал, и.... Однако, если этот кинозал будет пользоваться спросом раз в пятилетку, то смысл в нем отпадает, и он очень быстро превращается В ХЛАМНИК. Думайте 2 Посилання на коментар Поділитися на інших сайтах More sharing options...
olga32 Опубліковано: 23 лютого 2011 Автор Поділитись Опубліковано: 23 лютого 2011 Мужчины, с праздником Вас!!!:Rose: 3 Посилання на коментар Поділитися на інших сайтах More sharing options...
olga32 Опубліковано: 23 лютого 2011 Автор Поділитись Опубліковано: 23 лютого 2011 Если подвал и будет, то только под частью дома, чтобы "опустить" туда тренажеры и котельную. Посилання на коментар Поділитися на інших сайтах More sharing options...
VillaDeLux (ex Акро) Опубліковано: 25 лютого 2011 Поділитись Опубліковано: 25 лютого 2011 Спасибо большое. Сегодня мне проектировщик сказал, что для керамики слишком маленький угол наклона крыши (30 град.). Необходимо все менять и пересчитывать. А на сайтах по черепице минимально допустимый угол указан 20-24 град. Кому верить? Назовите сначала модель черепицы и тогда можно говорить о уклонах. Для бобровки (например) 30 градусов мало. Основные модели штампованной черепицы (средиземноморские не в счёт) имеют минималы 20-25 градусов. даже если и уклон занижен, проблему всё равно можно решить подолнительными мероприятиями. Посилання на коментар Поділитися на інших сайтах More sharing options...
Рекомендовані повідомлення
Створіть акаунт або увійдіть у нього для коментування
Ви маєте бути користувачем, щоб залишити коментар
Створити акаунт
Зареєструйтеся для отримання акаунта. Це просто!
Зареєструвати акаунтУвійти
Вже зареєстровані? Увійдіть тут.
Увійти зараз