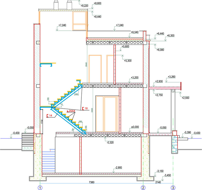
Cremator Опубліковано: 22 лютого 2011 Поділитись Опубліковано: 22 лютого 2011 Вот и подошли мы к лестнице. Определились, что лестница будет металлическая, сварная с обшивкой деревом. Ширину и высоту ступеней рассчитали, но тут возник вопрос, мы сторонники лестнице с площадкой и без забежных ступеней, при этом у нас получается высота ступеней 185, а ширина 280 мм. А если сделать полуплощадку и четыре забежных ступеней, то высота ступеней будет 175 мм и ширина 240 мм. А теперь вопрос, стоит ли парится с забежными ступенями ради такого небольшого выигрыша в высоте ступеней? И второй вопрос, у нас газоблочные стены, как, а точнее чем крепить лестницу к стенам, и нужны ли какие-то подпорки на площадке между первым и вторым этажом? Подскажите, пожалуйста, очень нужны ответы. Заранее спасибо. Посилання на коментар Поділитися на інших сайтах More sharing options...
lastandr Опубліковано: 23 лютого 2011 Поділитись Опубліковано: 23 лютого 2011 Ступень шириной 280мм намного комфортнее,чем 240мм,особенно при спуске вниз,а высота 185мм вполне приемлема для частного дома. А по второму вопросу исполнитель должен вам дать рекомендации после визуального осмотра. Посилання на коментар Поділитися на інших сайтах More sharing options...
Igor_M Опубліковано: 23 лютого 2011 Поділитись Опубліковано: 23 лютого 2011 Вот и подошли мы к лестнице. Определились, что лестница будет металлическая, сварная с обшивкой деревом. Ширину и высоту ступеней рассчитали, но тут возник вопрос, мы сторонники лестнице с площадкой и без забежных ступеней, при этом у нас получается высота ступеней 185, а ширина 280 мм. А если сделать полуплощадку и четыре забежных ступеней, то высота ступеней будет 175 мм и ширина 240 мм. А теперь вопрос, стоит ли парится с забежными ступенями ради такого небольшого выигрыша в высоте ступеней? И второй вопрос, у нас газоблочные стены, как, а точнее чем крепить лестницу к стенам, и нужны ли какие-то подпорки на площадке между первым и вторым этажом? Подскажите, пожалуйста, очень нужны ответы. Заранее спасибо. Пару комментов: 1) Высота с шириной взаимосвязаны, поэтому если вы высоту уменьшаете, то ширина должна увеличиваться... а у вас что-то не так...перепутали видать... Чтоб долго не описывать все формулы, см. здесь - www.stroimdom.com.ua/forum/showthread.php?p=617325&highlight=%F4%EE%F0%EC%F3%EB%E0+%E1%E5%E7%EE%EF%E0%F1%ED%EE%F1%F2%E8#post617325 2) По поводу крепежа к газобетонным стенам. Как раз сейчас делаем лестницу на второй этаж и крепим площадки к стенам из газобетона. Проект здесь - www.stroimdom.com.ua/forum/showpost.php?p=837367&postcount=1808... ... ну и дальше по тексту про изготовление (у меня бетонная, но можно подсмотреть некоторые нюансы). Вот здесь видны ниши в стенах, куда уголки укладываться будут - www.stroimdom.com.ua/forum/showpost.php?p=884857&postcount=1885 В вашем случае к уголкам приварите каркас. В ниши не забудьте эппс уложить...;) 3) Чтобы дать больше ответов, выложите также планы 1-го и 2-го этажей с расположением лестничных пролетов - тогда можно будет детальнее обсуждать... ЗЫ Вот посмотрел еще раз ваш рисунок - ширина проступи у вас НЕ 280мм, а меньше!!! ..... правильно ширину нужно считать от выступа ступени до выступа!!! "Носик" не в счет!!! Посилання на коментар Поділитися на інших сайтах More sharing options...
Katya Опубліковано: 23 лютого 2011 Поділитись Опубліковано: 23 лютого 2011 обратите внимание на верхнюю ступень. она уже сейчас у вас не совпадает с уровнем этажа. первую ступень надо делать выше на размер все стяжки+покрытие пола, а верхняя -(не забыть о покрытии )и -толщина ступени. какой у вас размер площадки? Лично я считаю, что 185 - это высоковато... да, и у вас низ 185, а верх 180.... Посилання на коментар Поділитися на інших сайтах More sharing options...
Cremator Опубліковано: 23 лютого 2011 Автор Поділитись Опубліковано: 23 лютого 2011 (змінено) Соотношение ступеней выбиралось из формулы 2а+в=60-64 У нас получается 2*18.5+24=61. Вроде получается нормально. Просто у нас случайно получился высокий верхний этаж, а забежные ступеньки не хочется совсем. На втором этаже просто еще не понятно с толщиной стяжки, поэтому получился зазор. Кстати, а какая обычно толщина стяжки без учета теплого пола если? Змінено 23 лютого 2011 користувачем Cremator Посилання на коментар Поділитися на інших сайтах More sharing options...
lastandr Опубліковано: 23 лютого 2011 Поділитись Опубліковано: 23 лютого 2011 На втором этаже просто еще не понятно с толщиной стяжки, поэтому получился зазор. Кстати, а какая обычно толщина стяжки без учета теплого пола если? Толщина стяжки обычно 40-50мм,если есть теплый пол,то еще столько же. 1 Посилання на коментар Поділитися на інших сайтах More sharing options...
S.A.Y. Опубліковано: 24 лютого 2011 Поділитись Опубліковано: 24 лютого 2011 1. То, что ступени верхнего этажа выше - не критично, поскольку там только выход на эксплуатируемую крышу и по нему не часто будут ходить. 2. При монтаже лестницы элементарно устанавливаются закладные детали в требуемых местах. Зависит от конструктива лестницы. 3. Забежные ступени - не так уж страшно: они добавляют выразительности интерьеру. Посилання на коментар Поділитися на інших сайтах More sharing options...
Igor_M Опубліковано: 24 лютого 2011 Поділитись Опубліковано: 24 лютого 2011 Соотношение ступеней выбиралось из формулы 2а+в=60-64 У нас получается 2*18.5+24=61. Вроде получается нормально. Просто у нас случайно получился высокий верхний этаж, а забежные ступеньки не хочется совсем. На втором этаже просто еще не понятно с толщиной стяжки, поэтому получился зазор. Кстати, а какая обычно толщина стяжки без учета теплого пола если? 1) По Блонделю вроде как получилось у вас 610мм (терпимо). 2) Формула удобства 240-185=55... ДОЛЖНО быть в районе 120мм. 3) Формула безопасности 240+185=425. Должно быть в районе 450... Заьежных бояться - по лестнице не ходить... Вот у меня в подвал практически винтовая - сколько людей переходило уже и все говорят, что достаточно удобно...(фото ниже) Так что все-таки с планами 1-го и 2-го этажей? Посилання на коментар Поділитися на інших сайтах More sharing options...
olimpiya Опубліковано: 24 лютого 2011 Поділитись Опубліковано: 24 лютого 2011 Вчера увидела эту лестницу www.stroimdom.com.ua/forum/attachment.php?attachmentid=1280&d=1189190556 нравится, пусть даже с забежными. Прошу прощения у хозяина, но попытаемся скопировать. Я уже сто раз в автокаде чертила, опять придется все заново рисовать только не поняла зачем поперечные связи на ступеньках Посилання на коментар Поділитися на інших сайтах More sharing options...
olimpiya Опубліковано: 24 лютого 2011 Поділитись Опубліковано: 24 лютого 2011 2 S.A.Y. На крышу у нас как раз ниже ступеньки будут. Просто кто то нам первый этаж построил аж 3300 Посилання на коментар Поділитися на інших сайтах More sharing options...
Igor_M Опубліковано: 25 лютого 2011 Поділитись Опубліковано: 25 лютого 2011 Вчера увидела эту лестницу www.stroimdom.com.ua/forum/attachment.php?attachmentid=1280&d=1189190556 нравится, пусть даже с забежными. Прошу прощения у хозяина, но попытаемся скопировать. Я уже сто раз в автокаде чертила, опять придется все заново рисовать только не поняла зачем поперечные связи на ступеньках Лестница такая как вы ссылаетесь небезопасна для ходьбы. Такие ступени называются клиновидными. Нужно распределить забежные на большее число ступеней так, чтобы ширина ступени по узкой стороне была не менее 100мм... так по крайней мере в нормативах написано... наверное, люди (специалисты) что-то такое знают... Если будет возможность (и желание) купите книгу "Лестницы" (автор Косо)... могу выложить пару нормативных документов... Впрочем - вам решать ... и вам ходить... Посилання на коментар Поділитися на інших сайтах More sharing options...
prokop Опубліковано: 25 лютого 2011 Поділитись Опубліковано: 25 лютого 2011 У нас 170 на 260 і не дуже зручно. Ідеально було б 150 на 280. Посилання на коментар Поділитися на інших сайтах More sharing options...
Igor_M Опубліковано: 28 лютого 2011 Поділитись Опубліковано: 28 лютого 2011 У нас 170 на 260 і не дуже зручно. Ідеально було б 150 на 280. Оптимальным считается соотношение 170х290мм... Практически во всех пособиях такое соотношение задается... В подвал у меня получилось 175х280, а вот на второй этаж - ОНО... Посилання на коментар Поділитися на інших сайтах More sharing options...
Рекомендовані повідомлення
Створіть акаунт або увійдіть у нього для коментування
Ви маєте бути користувачем, щоб залишити коментар
Створити акаунт
Зареєструйтеся для отримання акаунта. Це просто!
Зареєструвати акаунтУвійти
Вже зареєстровані? Увійдіть тут.
Увійти зараз