вОВА Опубліковано: 1 березня 2011 Поділитись Опубліковано: 1 березня 2011 Нужно сделать проект отопления и соответственно рассчитать его. Проект можно нарисовать хоть в пеинте (должно быть понятно что и куда тянуть и не более), а вот расчет нужно сделать правильным. Дом 200 м2 2 этажа. 1эт. 4 помещения с теплыми полами. 3 батареи. 2эт. 5 комнат 5 батарей. Отопление газовое. Труба металлопластик Интересует ориентировочная стоимость такого проекта. Пишите свою почту вышлю план этажей. Посилання на коментар Поділитися на інших сайтах More sharing options...
Роман293 Опубліковано: 1 березня 2011 Поділитись Опубліковано: 1 березня 2011 Нужно сделать проект отопления и соответственно рассчитать его. Проект можно нарисовать хоть в пеинте (должно быть понятно что и куда тянуть и не более), а вот расчет нужно сделать правильным. Дом 200 м2 2 этажа. 1эт. 4 помещения с теплыми полами. 3 батареи. 2эт. 5 комнат 5 батарей. Отопление газовое. Труба металлопластик Интересует ориентировочная стоимость такого проекта. Пишите свою почту вышлю план этажей. Здравствуйте вышлите пожалуйста сюда rom-ka@list.ru Посилання на коментар Поділитися на інших сайтах More sharing options...
biz-kiev Опубліковано: 2 березня 2011 Поділитись Опубліковано: 2 березня 2011 с лицензией? Посилання на коментар Поділитися на інших сайтах More sharing options...
вОВА Опубліковано: 2 березня 2011 Автор Поділитись Опубліковано: 2 березня 2011 Без лицензии. Посилання на коментар Поділитися на інших сайтах More sharing options...
Andre 2 Опубліковано: 3 березня 2011 Поділитись Опубліковано: 3 березня 2011 Нужно сделать проект отопления и соответственно рассчитать его. Проект можно нарисовать хоть в пеинте (должно быть понятно что и куда тянуть и не более), а вот расчет нужно сделать правильным. Дом 200 м2 2 этажа. 1эт. 4 помещения с теплыми полами. 3 батареи. 2эт. 5 комнат 5 батарей. Отопление газовое. Труба металлопластик Интересует ориентировочная стоимость такого проекта. Пишите свою почту вышлю план этажей.[/ Доброго дня.Отправте пожалуста сюда поэтажный план.Лицензия ,гарантия andrejshpak@ya.ru Посилання на коментар Поділитися на інших сайтах More sharing options...
Теплотехник Опубліковано: 3 березня 2011 Поділитись Опубліковано: 3 березня 2011 Нужно сделать проект отопления и соответственно рассчитать его. Проект можно нарисовать хоть в пеинте (должно быть понятно что и куда тянуть и не более), а вот расчет нужно сделать правильным. Дом 200 м2 2 этажа. 1эт. 4 помещения с теплыми полами. 3 батареи. 2эт. 5 комнат 5 батарей. Отопление газовое. Труба металлопластик Интересует ориентировочная стоимость такого проекта. Пишите свою почту вышлю план этажей. 2,5 грн/ кв.м. - отопление и вода... Дадим смету + эскиз... Посилання на коментар Поділитися на інших сайтах More sharing options...
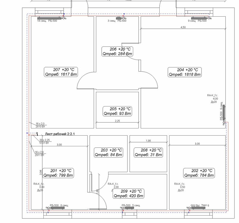
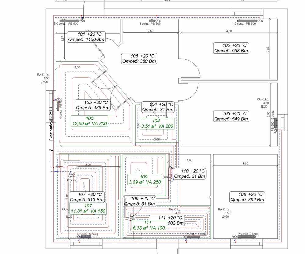
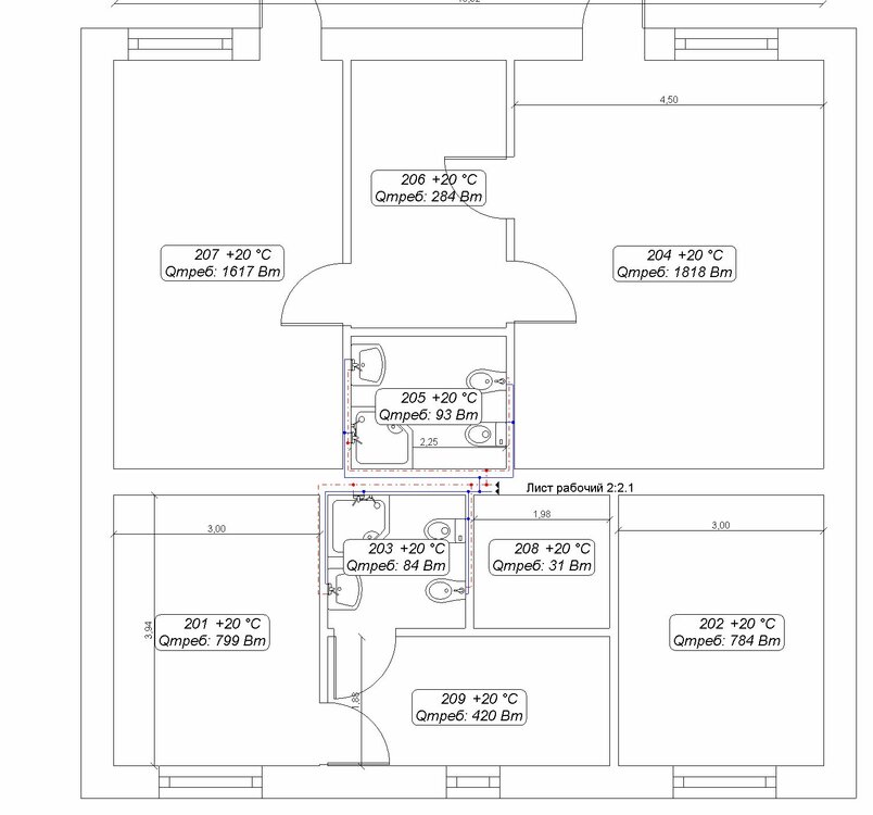
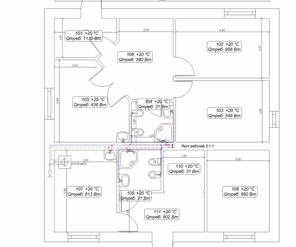
STANISLAV Опубліковано: 11 березня 2011 Поділитись Опубліковано: 11 березня 2011 Нужно сделать проект отопления и соответственно рассчитать его. Проект можно нарисовать хоть в пеинте (должно быть понятно что и куда тянуть и не более), а вот расчет нужно сделать правильным. Дом 200 м2 2 этажа. 1эт. 4 помещения с теплыми полами. 3 батареи. 2эт. 5 комнат 5 батарей. Отопление газовое. Труба металлопластик Интересует ориентировочная стоимость такого проекта. Пишите свою почту вышлю план этажей. Примеры расчетов в приложении Приблизительная стоимость работ и материала 25$ м2 С Ув. Станислав тел. 067 723 66 02Смета пример.pdf Посилання на коментар Поділитися на інших сайтах More sharing options...
вОВА Опубліковано: 11 березня 2011 Автор Поділитись Опубліковано: 11 березня 2011 Всем спасибо вопрос решил. Посилання на коментар Поділитися на інших сайтах More sharing options...
Рекомендовані повідомлення
Створіть акаунт або увійдіть у нього для коментування
Ви маєте бути користувачем, щоб залишити коментар
Створити акаунт
Зареєструйтеся для отримання акаунта. Це просто!
Зареєструвати акаунтУвійти
Вже зареєстровані? Увійдіть тут.
Увійти зараз