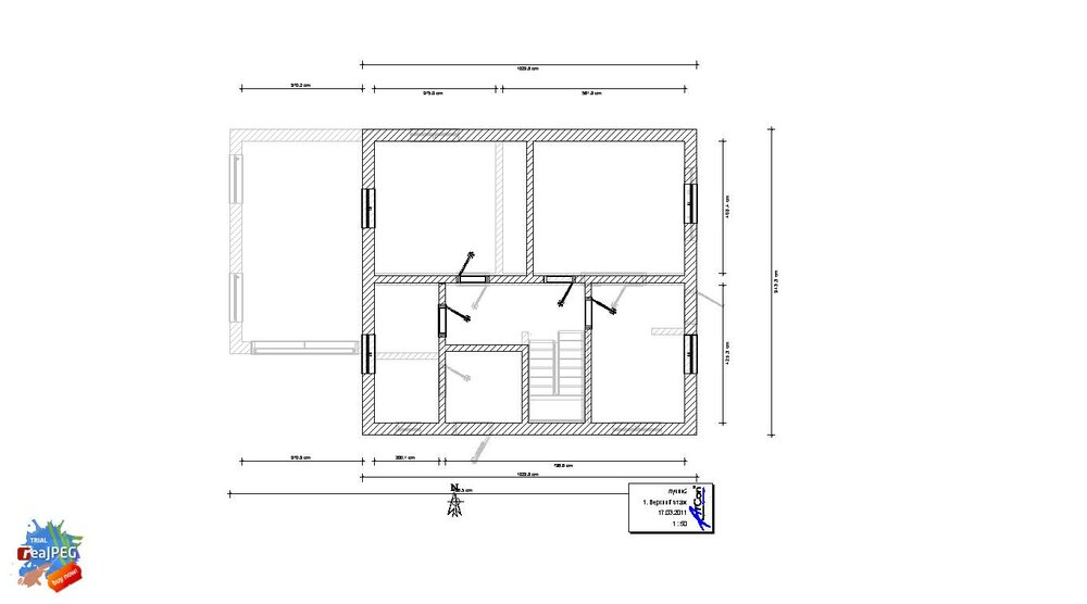
Lawyer Опубліковано: 10 березня 2011 Поділитись Опубліковано: 10 березня 2011 Уважаемые форумчане. Прошу обратить внимание на проект небольшого компактного дома от известного польского архитектурного бюро. Прошу Вашей конструктивной критики. Также принимаются предложения по изготовлению архитектурного плана дома с его привязкой к участку. Дом планирую строить с входом на юг. Общая площадь 155 м2 Площадь дома 124 м2 Посилання на коментар Поділитися на інших сайтах More sharing options...
iamHelga Опубліковано: 10 березня 2011 Поділитись Опубліковано: 10 березня 2011 Домик компактный, только при ориентации входа на юг окна кухни и кладовой под лестницей будут выходить туда же-при отсуствии затенения над ними в этих помещениях будет жарко. Кроме того, может быть стоит сделать перепланировку, чтобы получился вход из гаража непосредственно в дом, не выходя на улицу. С планами можем помочь-я архитектор с лицензией. Из чего планируете строить? О нашем строительстве смотрите www.stroimdom.com.ua/forum/showthread.php?t=57099 1 Посилання на коментар Поділитися на інших сайтах More sharing options...
Lawyer Опубліковано: 10 березня 2011 Автор Поділитись Опубліковано: 10 березня 2011 Домик компактный, только при ориентации входа на юг окна кухни и кладовой под лестницей будут выходить туда же-при отсуствии затенения над ними в этих помещениях будет жарко. Кроме того, может быть стоит сделать перепланировку, чтобы получился вход из гаража непосредственно в дом, не выходя на улицу. С планами можем помочь-я архитектор с лицензией. Из чего планируете строить? О нашем строительстве смотрите www.stroimdom.com.ua/forum/showthread.php?t=57099 Строить планирую из газоблока. Перекрытие - плиты ЖБИ, по крыше - еще размышляю. Относительно входа из гаража в дом, то мы сознательно от него отказались. Не феншуйно) относительно проектирования - сбросьте предложение по цене. Посилання на коментар Поділитися на інших сайтах More sharing options...
glirus Опубліковано: 10 березня 2011 Поділитись Опубліковано: 10 березня 2011 Непонятный коридор между залом и кухней. Добавил бы кладовки Посилання на коментар Поділитися на інших сайтах More sharing options...
iamHelga Опубліковано: 10 березня 2011 Поділитись Опубліковано: 10 березня 2011 относительно проектирования - сбросьте предложение по цене. Отправила Вам предложение по цене в личку Посилання на коментар Поділитися на інших сайтах More sharing options...
Lawyer Опубліковано: 10 березня 2011 Автор Поділитись Опубліковано: 10 березня 2011 Непонятный коридор между залом и кухней. Добавил бы кладовки В этом коридоре планирую сделать выход на терассу, поскольку как я писал ранее вход в дом с юга, соответственно размещать терассу на севере нецелесообразно. Планирую сделать её в юго-западном углу дома. Посилання на коментар Поділитися на інших сайтах More sharing options...
Damiani Опубліковано: 10 березня 2011 Поділитись Опубліковано: 10 березня 2011 Уважаемые форумчане. Прошу обратить внимание на проект небольшого компактного дома от известного польского архитектурного бюро. Прошу Вашей конструктивной критики. чисто мое ИМХО - маленькая топочная, маленькая прихожая, нет гардеробной на первом этаже для верхней одежды и обуви. Посилання на коментар Поділитися на інших сайтах More sharing options...
Lawyer Опубліковано: 11 березня 2011 Автор Поділитись Опубліковано: 11 березня 2011 чисто мое ИМХО - маленькая топочная, маленькая прихожая, нет гардеробной на первом этаже для верхней одежды и обуви. Отчасти согласен. Но варианта расширить прихожую при сохранении компактности не вижу.... Может архитекторы подскажут. Посилання на коментар Поділитися на інших сайтах More sharing options...
Lawyer Опубліковано: 15 березня 2011 Автор Поділитись Опубліковано: 15 березня 2011 неужели нет желающих архитекторов поработать с проектом? Посилання на коментар Поділитися на інших сайтах More sharing options...
Damiani Опубліковано: 15 березня 2011 Поділитись Опубліковано: 15 березня 2011 неужели нет желающих архитекторов поработать с проектом? еще раз мое ИМХО - найдите нормального архитектора и сделайте проект с нуля. А переделывать - это муторное дело. Посилання на коментар Поділитися на інших сайтах More sharing options...
Lawyer Опубліковано: 15 березня 2011 Автор Поділитись Опубліковано: 15 березня 2011 еще раз мое ИМХО - найдите нормального архитектора и сделайте проект с нуля. А переделывать - это муторное дело. Так этим же и занимаюсь) Посилання на коментар Поділитися на інших сайтах More sharing options...
Lawyer Опубліковано: 15 березня 2011 Автор Поділитись Опубліковано: 15 березня 2011 Еще один вопрос к архитекторам и конструкторам: Не будет ли проблем с перекрытием указанного проекта плитами ЖБИ исходя из размеров коробки, которая рассчитана под террива? Посилання на коментар Поділитися на інших сайтах More sharing options...
ВладимирГеорг Опубліковано: 15 березня 2011 Поділитись Опубліковано: 15 березня 2011 Еще один вопрос к архитекторам и конструкторам: Не будет ли проблем с перекрытием указанного проекта плитами ЖБИ исходя из размеров коробки, которая рассчитана под террива? Послушайте совета Damiani и обратитесь к архитекторам, чтобы они сделали Вам новый проект по мотивам предложенного. Думаю, что критиковать своих коллег архитекторам и конструкторам не интересно, поэтому и молчат Посилання на коментар Поділитися на інших сайтах More sharing options...
Lawyer Опубліковано: 16 березня 2011 Автор Поділитись Опубліковано: 16 березня 2011 Думаю, что критиковать своих коллег архитекторам и конструкторам не интересно, поэтому и молчат Интересная позиция. Я думал это ветка в которой как-раз и обсуждают (критикуют) проекты))) Относительно заказа индивидуального проекта у конкретного архитектора, то я считаю это не касается обсуждаемого проекта. Прошу все-же высказаться про предлагаемому проекту конструкторам, а именно по возможности его перекрытия плитами. Посилання на коментар Поділитися на інших сайтах More sharing options...
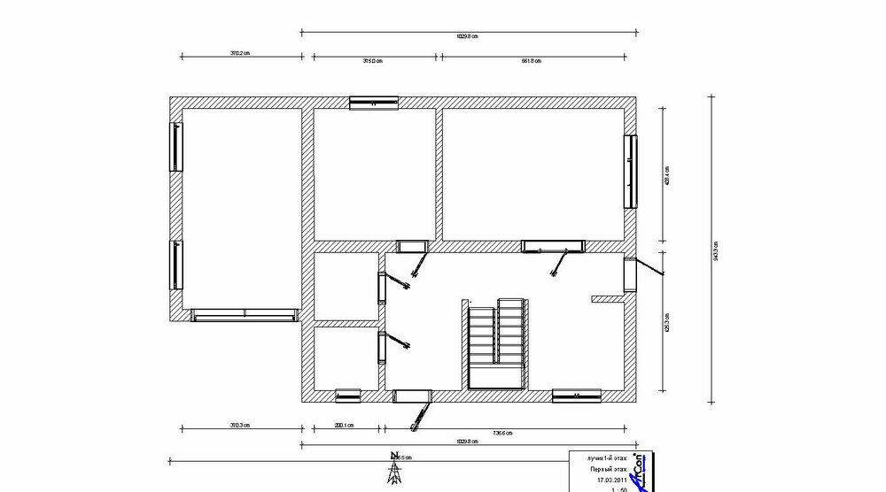
Lawyer Опубліковано: 17 березня 2011 Автор Поділитись Опубліковано: 17 березня 2011 Вот что у меня получилось после долгих мучений в Арконе. Покритикуйте плиззз Интересует мнение конструкторов о возможности перекрытия данного проекта плитами ЖБ стандартных размеров. Второй этаж планирую делать массандру. Посилання на коментар Поділитися на інших сайтах More sharing options...
Голег Опубліковано: 18 березня 2011 Поділитись Опубліковано: 18 березня 2011 Плиты: 3.0, 3.6, 4.2, 4.8, 5.4, 6.0, 6.3, ... Попробуйте сами разложить, может что-нибудь получится для начала... Посилання на коментар Поділитися на інших сайтах More sharing options...
Lawyer Опубліковано: 18 березня 2011 Автор Поділитись Опубліковано: 18 березня 2011 Плиты: 3.0, 3.6, 4.2, 4.8, 5.4, 6.0, 6.3, ... Попробуйте сами разложить, может что-нибудь получится для начала... на вскидку - размеры дома не соответствуют размерам плит перекрытия... Может поправите? Необходимо переносить стену? Посилання на коментар Поділитися на інших сайтах More sharing options...
Lawyer Опубліковано: 19 березня 2011 Автор Поділитись Опубліковано: 19 березня 2011 на вскидку - размеры дома не соответствуют размерам плит перекрытия... Может поправите? Необходимо переносить стену? Желающих посоветовать нет? Посилання на коментар Поділитися на інших сайтах More sharing options...
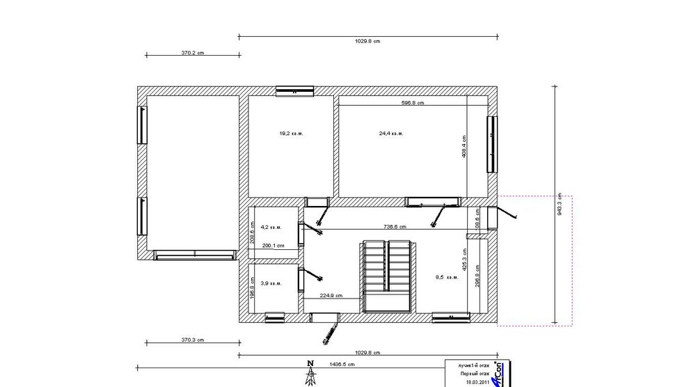
Milissa Опубліковано: 24 березня 2011 Поділитись Опубліковано: 24 березня 2011 Желающих посоветовать нет? Есть)..Но увас на плане почти не видно размеров..очень тяжело что-то советовать По поводу размещения входа и терассы на юг. А размещение жилых комнат на северной стороне Вас не смущает?) Мало того, что стены будут холодные, но и отсутсвие регулярного солнца в помещении очень нехоршо. Посилання на коментар Поділитися на інших сайтах More sharing options...
glirus Опубліковано: 24 березня 2011 Поділитись Опубліковано: 24 березня 2011 Раз вы уж начали осваивать 3Д програму - потрудитесь расставить мебель(или простые обьекты аналогичных размеров) и будет более понятно для вас самих что к чему. А так... опять же кладовки, топочная продумать...И да, нужно переносить стену или делать монолитное перекрытие Посилання на коментар Поділитися на інших сайтах More sharing options...
Lawyer Опубліковано: 24 березня 2011 Автор Поділитись Опубліковано: 24 березня 2011 Раз вы уж начали осваивать 3Д програму - потрудитесь расставить мебель(или простые обьекты аналогичных размеров) и будет более понятно для вас самих что к чему. А так... опять же кладовки, топочная продумать...И да, нужно переносить стену или делать монолитное перекрытие Да, с расстановкой мебели в арконе у меня не складывается... А что с топочной думать? 4 м2 вроде достаточно. зачем переносить стену? Разговаривал с заводом ковальской сегодня на выставке, сказали накрыть не проблема. плиты есть. а что по кладовкам? Простите, но не очень понял Вашу критику. В любом случае - спасибо! Посилання на коментар Поділитися на інших сайтах More sharing options...
Lawyer Опубліковано: 24 березня 2011 Автор Поділитись Опубліковано: 24 березня 2011 Есть)..Но увас на плане почти не видно размеров..очень тяжело что-то советовать По поводу размещения входа и терассы на юг. А размещение жилых комнат на северной стороне Вас не смущает?) Мало того, что стены будут холодные, но и отсутсвие регулярного солнца в помещении очень нехоршо. Почему жилые комнаты на север? я же все развернул. Не смотрите на первый топик. У меня получаются 2 комнаты вторОго этажа с окнами на восток, одна на запад. гостевая комната на первом этаже выходит на север "ОТ БЕЗЫСХОДНОСТИ. Неужели категорически запрещено делать жилые комнаты с видом на север??? Посилання на коментар Поділитися на інших сайтах More sharing options...
Milissa Опубліковано: 24 березня 2011 Поділитись Опубліковано: 24 березня 2011 Почему жилые комнаты на север? я же все развернул. Не смотрите на первый топик. У меня получаются 2 комнаты вторОго этажа с окнами на восток, одна на запад. гостевая комната на первом этаже выходит на север "ОТ БЕЗЫСХОДНОСТИ. Неужели категорически запрещено делать жилые комнаты с видом на север??? Категорически конечно не запрещено.) Просто считается нежелательным. Но Вы говорите, что она гостевая (значит постоянного проживания в ней не предусматривается). Это был просто совет. Помню по курсу с "проектирования жилых зданий", что размещение спальных комнат постоянного проживания с северной ориентацией есть нежелательным (детских тем более - грозит постоянным простудами и т. д.) П.С.: Немного непонятна была общая ориентация дома, на плане просто не указано. 2 Посилання на коментар Поділитися на інших сайтах More sharing options...
Рекомендовані повідомлення
Створіть акаунт або увійдіть у нього для коментування
Ви маєте бути користувачем, щоб залишити коментар
Створити акаунт
Зареєструйтеся для отримання акаунта. Це просто!
Зареєструвати акаунтУвійти
Вже зареєстровані? Увійдіть тут.
Увійти зараз