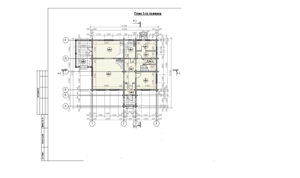
PSergey Опубліковано: 10 березня 2011 Поділитись Опубліковано: 10 березня 2011 В общем, нужна. Дом из сруба, можно ли её поставить с примыканием к двум стенам, там, где на плане камин? Если да, может кто предложит интересный вариант и воплотит его от и до Посилання на коментар Поділитися на інших сайтах More sharing options...
Сергей124 Опубліковано: 10 березня 2011 Поділитись Опубліковано: 10 березня 2011 (змінено) В общем, нужна. Дом из сруба, можно ли её поставить с примыканием к двум стенам, там, где на плане камин? Если да, может кто предложит интересный вариант и воплотит его от и до Воплотит его от и до без проблем 8 м Мой тел. 8. С уважением Сергей. Змінено 30 жовтня 2011 користувачем Оз Посилання на коментар Поділитися на інших сайтах More sharing options...
usanin_n Опубліковано: 10 березня 2011 Поділитись Опубліковано: 10 березня 2011 Свяжитесь с Salix (Алексей Семенов) Посилання на коментар Поділитися на інших сайтах More sharing options...
vladimir9664 Опубліковано: 10 березня 2011 Поділитись Опубліковано: 10 березня 2011 Можно поставить печь или камино-печь. Посилання на коментар Поділитися на інших сайтах More sharing options...
pechnik1954 Опубліковано: 12 березня 2011 Поділитись Опубліковано: 12 березня 2011 В общем, нужна. Дом из сруба, можно ли её поставить с примыканием к двум стенам, там, где на плане камин? Если да, может кто предложит интересный вариант и воплотит его от и до В данном варианте можно поставить печь, от стен сруба нужно сделать холодную четверть. Вопрос главный не в этом - а в том чтобы эта печь грела не только фронтальной частью но и в проходной коридор, а для этого нужно сделать проем в стене сруба. Возможно ли это в вашем доме? Обычно заказчик предусматривает такой вариант, а как быть в данном случае? Посилання на коментар Поділитися на інших сайтах More sharing options...
PSergey Опубліковано: 12 березня 2011 Автор Поділитись Опубліковано: 12 березня 2011 Миниатюры Вы мне хотите предложить ЭТО??? Посилання на коментар Поділитися на інших сайтах More sharing options...
salix Опубліковано: 14 березня 2011 Поділитись Опубліковано: 14 березня 2011 С планом понятно. А каково назначение печи? Дымоходы и вентканалы уже есть или пока только нарисованы? Пожелания по внешнему виду? Посилання на коментар Поділитися на інших сайтах More sharing options...
PSergey Опубліковано: 14 березня 2011 Автор Поділитись Опубліковано: 14 березня 2011 С планом понятно. А каково назначение печи? Дымоходы и вентканалы уже есть или пока только нарисованы? Пожелания по внешнему виду? В первую очередь для обогрева, если будет способна еще на что-то полезное - тоже неплохо. Дымоходов и пр. нет. Особых пожеланий тоже:D Посилання на коментар Поділитися на інших сайтах More sharing options...
Гість daviana21 Опубліковано: 15 березня 2011 Поділитись Опубліковано: 15 березня 2011 Миниатюры Вы мне хотите предложить ЭТО??? :D ____________ astco.ru Посилання на коментар Поділитися на інших сайтах More sharing options...
gazon Опубліковано: 15 березня 2011 Поділитись Опубліковано: 15 березня 2011 В первую очередь для обогрева, если будет способна еще на что-то полезное - тоже неплохо. Дымоходов и пр. нет. Особых пожеланий тоже:D Печь может выполнять массу полезных функций. Главное не переусердствовать с количеством оных в ущерб качеству. Посилання на коментар Поділитися на інших сайтах More sharing options...
pechnik1954 Опубліковано: 17 березня 2011 Поділитись Опубліковано: 17 березня 2011 Миниатюры Вы мне хотите предложить ЭТО??? Уважаемый, я вам ничего не хочу предложить, пусть другие предлагают. А просто высказываю свое мнение по данной теме. Ваше дело слушать или нет, но хамить - это как то по детски. Так и захотелось вам подгузников купить :D:D:D Посилання на коментар Поділитися на інших сайтах More sharing options...
PSergey Опубліковано: 26 вересня 2011 Автор Поділитись Опубліковано: 26 вересня 2011 Наконец-то фундамент у меня под печь появился, 1,8х2м, по прежнему актуальны идеи печи. Посилання на коментар Поділитися на інших сайтах More sharing options...
BAZA Опубліковано: 6 жовтня 2011 Поділитись Опубліковано: 6 жовтня 2011 (змінено) Подход-индивидуальный.8.Виктор Змінено 30 жовтня 2011 користувачем Оз 8 Посилання на коментар Поділитися на інших сайтах More sharing options...
salix Опубліковано: 24 березня 2012 Поділитись Опубліковано: 24 березня 2012 Сергей,как настроение на этот сезон? Посилання на коментар Поділитися на інших сайтах More sharing options...
Рекомендовані повідомлення
Створіть акаунт або увійдіть у нього для коментування
Ви маєте бути користувачем, щоб залишити коментар
Створити акаунт
Зареєструйтеся для отримання акаунта. Це просто!
Зареєструвати акаунтУвійти
Вже зареєстровані? Увійдіть тут.
Увійти зараз