v.anonim Опубліковано: 15 березня 2011 Поділитись Опубліковано: 15 березня 2011 Итак, не смог после длительных мук в квартире, и встал вопрос выбора, либо трешка на смену однокомнатной, либо участок, и куча времени и денег - но я буду жить в своем доме. С женой долго думали, выбрали второе. Итак, погнали. 1 Посилання на коментар Поділитися на інших сайтах More sharing options...
v.anonim Опубліковано: 15 березня 2011 Автор Поділитись Опубліковано: 15 березня 2011 Пока одни вязали арматуру, приехали 2 матюкальника на двух газонах и начали выставляться под копку скважины. Лето выдалось крайне жарким, воды нехватало всем. П.С. Поставили самое нужное здание. Посилання на коментар Поділитися на інших сайтах More sharing options...
AlexD31 Опубліковано: 15 березня 2011 Поділитись Опубліковано: 15 березня 2011 Мы тоже решали или трёшку или дом, решили строить. И не жалеем. Удачи в стройке! 1 Посилання на коментар Поділитися на інших сайтах More sharing options...
v.anonim Опубліковано: 15 березня 2011 Автор Поділитись Опубліковано: 15 березня 2011 Потом приехало большое чудо, и начало готовиться кушать бетон! Успешно сожрал 37 кубов бетона, остатки вывалил на дорогу. Кстати бетона хватило ровно ведро в ведро, остатки с дороги ровненько долили под завязочку. Заодно заложили закладные под воду в дом, канализацию, свет, короче под все, заложили с запасом, сейчас не жалеем, главное все фоткать, потом дырки как находили, под разные коммуникации. Посилання на коментар Поділитися на інших сайтах More sharing options...
truck Опубліковано: 15 березня 2011 Поділитись Опубліковано: 15 березня 2011 Удачной стройки! А дом какой строите, можно выложить планчики? 1 Посилання на коментар Поділитися на інших сайтах More sharing options...
v.anonim Опубліковано: 15 березня 2011 Автор Поділитись Опубліковано: 15 березня 2011 Удачной стройки! А дом какой строите, можно выложить планчики? Ой, не хочу, получилось не так как гадалось, проект как обычно взяли в интернете, очень серьезно доработали, внутри получилось вообще идеально, все устраивает до мелочей, а вот снаружи, неплохо, красиво вроде все, но увы совсем не то. Посилання на коментар Поділитися на інших сайтах More sharing options...
ТРУДОГОЛИК-КАРЬЕРИСТ Опубліковано: 15 березня 2011 Поділитись Опубліковано: 15 березня 2011 Итак, не смог после длительных мук в квартире, и встал вопрос выбора, либо трешка на смену однокомнатной, либо участок, и куча времени и денег - но я буду жить в своем доме. С женой долго думали, выбрали второе. Итак, погнали. завел страницу- заполни профиль(устав сторидома пп4,подпункт 17,2 абзац). Посилання на коментар Поділитися на інших сайтах More sharing options...
Батяня Опубліковано: 15 березня 2011 Поділитись Опубліковано: 15 березня 2011 Мы тоже решали или трёшку или дом, решили строить. И не жалеем. Удачи в стройке! А мы решаем уже существующую трёшку менять на дом, как-то тяжело решается. Посилання на коментар Поділитися на інших сайтах More sharing options...
v.anonim Опубліковано: 15 березня 2011 Автор Поділитись Опубліковано: 15 березня 2011 (змінено) завел страницу- заполни профиль(устав сторидома пп4,подпункт 17,2 абзац). Этого достаточно? А мы решаем уже существующую трёшку менять на дом, как-то тяжело решается. Тут вообще думать нечего, трешка в Киеве = 100 тыс, построить дом под Киевом = 100 тыс. Нужно найти 20-30 тыс на участок, например продать авто жены и возить её на работу. Она вас потом ещё благодарить будет. Опять же, тут ещё зависит все от жизненной позиции, у меня уют и комфорт моей семьи превыше всего. Потому что бы не порезать соседей когда они вечером слушают музыку я строюсь. Змінено 15 березня 2011 користувачем v.anonim 111 1 Посилання на коментар Поділитися на інших сайтах More sharing options...
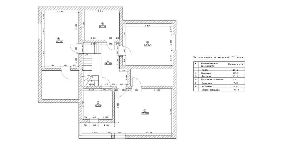
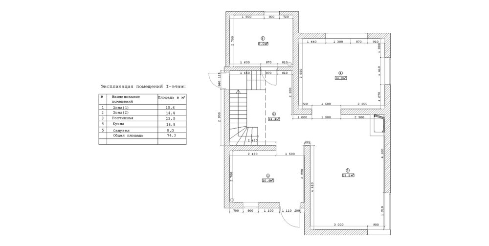
v.anonim Опубліковано: 15 березня 2011 Автор Поділитись Опубліковано: 15 березня 2011 Планы. Первый этаж без гаража, он слева, по второму этажу понятно, над ним комната и небольшое подсобное помещение. Рисовали это мне дизайнеры интерьера. Чего никому не советую делать, жалко денег, они на ветер. Следите за новостями. Постепенно буду вылаживать. Посилання на коментар Поділитися на інших сайтах More sharing options...
ТРУДОГОЛИК-КАРЬЕРИСТ Опубліковано: 15 березня 2011 Поділитись Опубліковано: 15 березня 2011 завел страницу- заполни профиль(устав сторидома пп4,подпункт 17,2 абзац). шутка;) вот теперь поехали! 1 Посилання на коментар Поділитися на інших сайтах More sharing options...
Александр. Киев Опубліковано: 15 березня 2011 Поділитись Опубліковано: 15 березня 2011 Лихо начали, я имею ввиду заливку бетона с чудо машиной. Ведь она по большому счету была не нужна... С размахом! Есть свободные средства тратьте на хороших архитектора и дизайнера. Совет от всей души. 2 Посилання на коментар Поділитися на інших сайтах More sharing options...
v.anonim Опубліковано: 16 березня 2011 Автор Поділитись Опубліковано: 16 березня 2011 Лихо начали, я имею ввиду заливку бетона с чудо машиной. Ведь она по большому счету была не нужна... С размахом! Есть свободные средства тратьте на хороших архитектора и дизайнера. Совет от всей души. На самом деле размах получился сам по себе, я просил просто бетоно-насос (давали за 1400 грн если взять больше 30 кубов бетона), спросили какой, высотный или по земле - сказал все равно, прислали такую штуку(строители в восторге, говорят очень удобная штука, меньше напрягаешься). Я уже связался с дизайнерами, возможно мне такие попались, но увы - я не хочу больше связываться, я в интернете больше прочитаю чем они. Почему то мне кажется что архитекторы точно такие же, или же захотят много денег за свои услуги (которые будут делать 3 часа, а возьмут как за 3 недели). Это моё личное мнение. 1 Посилання на коментар Поділитися на інших сайтах More sharing options...
Leka Опубліковано: 16 березня 2011 Поділитись Опубліковано: 16 березня 2011 Поздравляю! Жить в своем доме одна благодать!Порядочных строителей и поставщиков! Мы тоже свою трешку поменяли на стройку 1 Посилання на коментар Поділитися на інших сайтах More sharing options...
Damiani Опубліковано: 16 березня 2011 Поділитись Опубліковано: 16 березня 2011 И от нас поздравления! И удачной стройки вам! Мы тоже, как и вы, в выборе квартира-дом решили выбрать дом)))) А где строитесь? Сколько соток участок? Вы только фундамент заложили? Я бы пока не поздно переделала проект дома. 1 Посилання на коментар Поділитися на інших сайтах More sharing options...
vorona Опубліковано: 16 березня 2011 Поділитись Опубліковано: 16 березня 2011 У вас комната гостевая висит что-ли? Посилання на коментар Поділитися на інших сайтах More sharing options...
v.anonim Опубліковано: 16 березня 2011 Автор Поділитись Опубліковано: 16 березня 2011 И от нас поздравления! И удачной стройки вам! Мы тоже, как и вы, в выборе квартира-дом решили выбрать дом)))) А где строитесь? Сколько соток участок? Вы только фундамент заложили? Я бы пока не поздно переделала проект дома. Нет, у меня стройка уже на стадии внутрянки, просто сюда не хотел пока процесс идет вылаживать, только теперь грубо говоря решился. Соток у нас всего 7, искали принципиально мало земли, что бы дом да беседка, строимся под Киевом, дом получается по проекту 199 квадратов, как раз под новое закондательство влезли У вас комната гостевая висит что-ли? Ага, именно в этом фишка, так и хотели, многие не решаются - но я в своей конструкции уверен, раньше переживал - сейчас уже абсолютно нормально отношусь. Посилання на коментар Поділитися на інших сайтах More sharing options...
v.anonim Опубліковано: 16 березня 2011 Автор Поділитись Опубліковано: 16 березня 2011 Ну и началось время для ожидания, пока бетончик подсыхал, а его тем временем обильно поливали. Приехали мужики, которые начали копать погреб, копали долговато, правда все получилось именно как хотел. Тем временем прораб сам занялся приямком, сделали его из шлакоблока, вокруг рубероид, и залили бетон в который добавляли жидкое стекло, получилось очень герметично, вода внутрь не попадает. Выше потому что весь двор будет подсыпаться, очень так активно подсыпаться. Потом забыли немного фундамента долить, придумали как увеличить терассу. Посилання на коментар Поділитися на інших сайтах More sharing options...
vorona Опубліковано: 16 березня 2011 Поділитись Опубліковано: 16 березня 2011 Тогда не томите, побыстрей уже свои надежные конструкции показывайте! ;) Посилання на коментар Поділитися на інших сайтах More sharing options...
v.anonim Опубліковано: 16 березня 2011 Автор Поділитись Опубліковано: 16 березня 2011 Тогда не томите, побыстрей уже свои надежные конструкции показывайте! ;) 18 двутавр, куча арматуры, с заходом на стену по 2.5 метра, + хорошая сварка и заливка. Стоит на века. Зато витражное окно в зале - шикарно, с видом на улицу! Посилання на коментар Поділитися на інших сайтах More sharing options...
Pride Опубліковано: 16 березня 2011 Поділитись Опубліковано: 16 березня 2011 Успехов вам в стройке и побыстрее закончить её! 1 Посилання на коментар Поділитися на інших сайтах More sharing options...
AnnaKiev Опубліковано: 16 березня 2011 Поділитись Опубліковано: 16 березня 2011 Зато витражное окно в зале - шикарно, с видом на улицу! Очень интересно, выложите фотки тоже думаем о таком окне в зале. Удачной стройки!!! Посилання на коментар Поділитися на інших сайтах More sharing options...
v.anonim Опубліковано: 17 березня 2011 Автор Поділитись Опубліковано: 17 березня 2011 По просьбам трудящихся частично выкладываю материал о высящем угле! В процессе закладки был закуплен двутавр 18 см, заложено вокруг него уйма арматуры, залегание двутавра на стены составило по 2 метра в каждую сторону. Кстати он не падал а просто там лежал даже без крепления. Так же он был прикручен в торец стены длинными дюбелями, по сантиметров 40, короче конструкция усилялась как могла. Сохла вся эта конструкция 2 недели, как видите все стоит, и никаких проблем. Процесс кажется не очень уверенным, но как показывает практика если подойти с умом - все будет хорошо. Ну и всего, как оказалось одна фотка с видом изнутри. Дальше будет, не переключайтесь... 4 Посилання на коментар Поділитися на інших сайтах More sharing options...
v.anonim Опубліковано: 18 березня 2011 Автор Поділитись Опубліковано: 18 березня 2011 Потом прорезали места под все коммуникации которые планировались уже повыше. На самом деле решили подымать весь участок ввиду того что при постановке дома на участок брали нивелир и поняли что дорога на 10 см выше участка, а не хотелось бы что бы вода вся затекала во двор. Доделали уже приямок, купили автоматику и гидроаккумулятор, - все работает, правда всем советую покупать насос с очень большим запасом, у меня около 35 метров всего, насос взял на 50, но при этом брал бы на метров 70, что бы качало быстрее. Хотя жена очень любит ванну и душ, думаю потом сэкономлю на выгребной яме. По проекту часть дома выше части в которой гараж, потому изначально была часть с кирпичом. Посилання на коментар Поділитися на інших сайтах More sharing options...
Pride Опубліковано: 18 березня 2011 Поділитись Опубліковано: 18 березня 2011 А чем будете заполнять промежуток в стене? Посилання на коментар Поділитися на інших сайтах More sharing options...
Рекомендовані повідомлення
Створіть акаунт або увійдіть у нього для коментування
Ви маєте бути користувачем, щоб залишити коментар
Створити акаунт
Зареєструйтеся для отримання акаунта. Це просто!
Зареєструвати акаунтУвійти
Вже зареєстровані? Увійдіть тут.
Увійти зараз