Яло Опубліковано: 24 березня 2011 Поділитись Опубліковано: 24 березня 2011 Но там, где Вы нарисовали шкаф, можно встроить где-то раб. стол. Только разместите его не спиной к двери, а то, если человек находится спиной к входу, будет ощущать дискомфорт.Дверь должна быть в поле зрения. У девочки скоро появятся свои секреты, дневники, записки. И что бы держать дверь в поле зрения, она будет сидеть в пол- оборота, а это , сами понимаете, скажется прежде всего на осанке.А если за спиной будет стена- на подсознательном уровне человек расслабляется, т.к. сзади есть защита. То же самое касается кровати-вход должен быть в поле зрения. Что касается шкафа. Я так понимаю, что нужен, как минимум трехстворчатый, т.е. длина 1,5-2м. И что бы не загромождать такой большой конструкцией спальню, предлагаю еще один вариант куда бы его приткнуть. Появляется еще одно укромное местечко с туалетным столиком и зеркалом, на котором потом будет полно косметики и украшений. А батарею закрыть, как предлагала arca. Либо по длине всей стенки (появляется дополнительная полочка), либо только батарею.Книга1.xls Посилання на коментар Поділитися на інших сайтах More sharing options...
Елена А. Опубліковано: 24 березня 2011 Поділитись Опубліковано: 24 березня 2011 телевизор все таки нужно ставить в игровой, слишком много телевизора чтобы смотреть его с кровати (имхо). Посилання на коментар Поділитися на інших сайтах More sharing options...
S-STUDIO Опубліковано: 24 березня 2011 Поділитись Опубліковано: 24 березня 2011 Моему ребенку 8 лет, иногда он смотрит ТВ перед сном лежа на кровати. Посилання на коментар Поділитися на інших сайтах More sharing options...
Елена А. Опубліковано: 24 березня 2011 Поділитись Опубліковано: 24 березня 2011 Моему ребенку 8 лет, иногда он смотрит ТВ перед сном лежа на кровати. ну вы наверное контролируете содержание просмотренного, у меня двое 15 лет и 6 лет, посвящают тв и компьютеру почти всю свою жизнь , что не может не пугать. Я младшего и в садик то отправила только потому ,что там телевизора нет. пароли на всем стоят, родительский режим на компьютере и ничего не помогает. поэтому лучше его вообще не иметь. да и в спальне тв не фен-шуйно. Посилання на коментар Поділитися на інших сайтах More sharing options...
Яло Опубліковано: 25 березня 2011 Поділитись Опубліковано: 25 березня 2011 да и в спальне тв не фен-шуйно. А спиной к двери сидеть по фен-шуйско?:D У фен-шуя столько заморочек, что бы обойти все "углы".Например, спрятать ТВ в нишу со створками,на ночь ее закрыть- опля!и уже по фен- шую))))) Посилання на коментар Поділитися на інших сайтах More sharing options...
Zhan_net Опубліковано: 25 березня 2011 Поділитись Опубліковано: 25 березня 2011 Ага, я тут и без фен-шуя голову ломаю как спланировать эту комнату, а если еще феном и шуем заморачиваться, то мы вообще не вселимся. ТВ все-таки решили в спальной части делать. Пусть уж лучше перед сном телек посмотрит, чем во время уроков отвлекается. Посилання на коментар Поділитися на інших сайтах More sharing options...
arca Опубліковано: 25 березня 2011 Поділитись Опубліковано: 25 березня 2011 Обычно, сначала мебель выбирают, потом ее расставляют. Задача слегка неккоректна, или мебель будет на заказ? вопрос, в каком стиле? О девичьей недавно писала s-studio.kiev.ua/articles.html На первый взгляд- получилось так(пожеланий, какая нужна мебель не было, как и ориентации по сторонам света) Лучше всего предложила Надежда. Единственное я бы кровать поставила к стенке. Со столом в первой зоне можно подумать. Она его разместила так чтобы свет падал правильно, когда ребенок пишет или делает уроки. Она же не директор фирмы, поэтому на мой взгляд сидеть лицом к входящему не обязательно если при этом страдает освещение стола. Можно стол развернуть так чтобы ребенок сидел лицом к туалетном столику. 1 Посилання на коментар Поділитися на інших сайтах More sharing options...
Genkot Опубліковано: 27 березня 2011 Поділитись Опубліковано: 27 березня 2011 Как вариант. 3 Посилання на коментар Поділитися на інших сайтах More sharing options...
Яло Опубліковано: 27 березня 2011 Поділитись Опубліковано: 27 березня 2011 Как вариант. Прикольно!Мне очень понравилось! Столько места, хоть танцуй Вообще люблю светлую мебель!!!! Только полочку над батареей немного выше надо, что б она не только полочку грела))) Посилання на коментар Поділитися на інших сайтах More sharing options...
arca Опубліковано: 27 березня 2011 Поділитись Опубліковано: 27 березня 2011 Как растановка мебели очень мне нравится, только девочки больше любят развешивать одежду, поэтому много выдвижных ящиков и мало релингов под вешалки мне кажется. Ну про стиль я думаю смысла нет писать.;) Посилання на коментар Поділитися на інших сайтах More sharing options...
S-STUDIO Опубліковано: 28 березня 2011 Поділитись Опубліковано: 28 березня 2011 Хочу заметить, что мой эскиз можно рассматривать как только эскизное предложение. На месте я не была и обмеров не делала, частенько хозяева не учитывают серьезные ньюансы. А- это мансарда. Посилання на коментар Поділитися на інших сайтах More sharing options...
lavilong Опубліковано: 28 березня 2011 Поділитись Опубліковано: 28 березня 2011 Нарисуйте где окна находятся.. отсюа и плясать нужно.. и размер окон.. и стороны света.. чтобы знать как освещается помещение в течении суток. Посилання на коментар Поділитися на інших сайтах More sharing options...
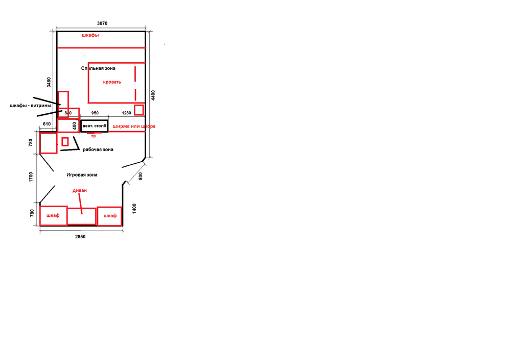
Zhan_net Опубліковано: 28 березня 2011 Поділитись Опубліковано: 28 березня 2011 Огромное всем спасибо! Я уже думала что тема заглохла. На картинках все очень реалистично и абсолютно передает размеры нашей комнаты. Окно расположено точно так же как на картинке. Окна у нас выходят на южную сторону. Так что много света. Мебель обязательно будет белая. Очень понравилось расположение письменного стола, мне как-то не пришло в голову что его можно там поставить. Единственное, что волнует: многие мне говорят, что дочка скоро подрастет и такая узкая кровать станет ей неудобной. Хотелось бы поставить кровать шириной 1200-1400мм, а это возможно только если ее расположить как рекомендовала S-STUDIO. Теперь не могу выбрать -- поставить кровать к стене и получить просторную комнату, или поставить широкую кровать по центру параллельно стене с окном. Подскажите кто что думает? Посилання на коментар Поділитися на інших сайтах More sharing options...
Zhan_net Опубліковано: 28 березня 2011 Поділитись Опубліковано: 28 березня 2011 Genkot, не сочти за наглость, ты мог бы сделать еще одну картинку? Стену с кроватью. Расположить кровать 1400х1900 по центру стены (головой к стене, ногами к телеку), над ней открытые полки, а по бокам пеналы, тумбы или комоды -- на твой вкус что лучше подойдет. Куча тебе спасибок! Посилання на коментар Поділитися на інших сайтах More sharing options...
Genkot Опубліковано: 28 березня 2011 Поділитись Опубліковано: 28 березня 2011 диван быть может? (ссылка устарела) я немного занят, пока ничего не могу сказать, но очень вероятно Посилання на коментар Поділитися на інших сайтах More sharing options...
Zhan_net Опубліковано: 28 березня 2011 Поділитись Опубліковано: 28 березня 2011 Получится -- супер, нет -- спасибо за то, что уже сделал. Диван точно нет -- обязательно хочу кровать с хорошим ортопедическим матрасом. Я подумала что это все равно зона для сна, тусоваться она там особо не будет, так что если ее загромоздить кроватью по центру, ничего страшного не случится. Посилання на коментар Поділитися на інших сайтах More sharing options...
S-STUDIO Опубліковано: 28 березня 2011 Поділитись Опубліковано: 28 березня 2011 у меня кровать стоит по центру ТВ, поетому к стене не двигала Посилання на коментар Поділитися на інших сайтах More sharing options...
Genkot Опубліковано: 29 березня 2011 Поділитись Опубліковано: 29 березня 2011 Карась - www.stroimdom.com.ua/forum/showpost.php?p=764501&postcount=76 1 Посилання на коментар Поділитися на інших сайтах More sharing options...
rima Опубліковано: 30 березня 2011 Поділитись Опубліковано: 30 березня 2011 а если вот так? (ссылка на изображение устарела) 1 Посилання на коментар Поділитися на інших сайтах More sharing options...
Genkot Опубліковано: 30 березня 2011 Поділитись Опубліковано: 30 березня 2011 и в завершение big size 1 Посилання на коментар Поділитися на інших сайтах More sharing options...
Zhan_net Опубліковано: 30 березня 2011 Поділитись Опубліковано: 30 березня 2011 а если вот так? (ссылка на изображение устарела)[ATTACH]101553[/ATTACH] Я сама думала о таком варианте, мне он нравится, но там под окном батарея. Не хочется чтобы ребенок дышал горячим воздухом. Посилання на коментар Поділитися на інших сайтах More sharing options...
Zhan_net Опубліковано: 30 березня 2011 Поділитись Опубліковано: 30 березня 2011 и в завершение big size Genkot, мне прямо неудобно, честное слово... спасибо Вам огромное! Вы даже стиль угадали, именно такую мебель я хочу сделать в детской. Подвожу итог: игровая (рабочая) зона будет такой, как на последней картинке. Только там, где книжный шкаф, поставлю платяной (у дочки шмоток больше чем у меня -- нужно много места), потом стол и вплотную к стене пенал с полками для книг. Над столом тоже полки. К столбу туалетный столик с зеркалом, рядом встроенная тумбочка, а над ней полки для вазончиков-статуеточек и др. мелочи. Спальная зона: по центру кровать 1400х1900 (как на предыдущей Вашей картинке), слева закрытый пенал высотой 1800мм с полками для вещей, справа тумбочка глубиной 600мм, а к ней сверху примыкает что-то наподобие открытого шкафа с полками глубиной 250-300мм (для игрушек-книжек-фоторамок и тд). Над кроватью легкие открытые полочки глубиной 250мм. На столбе ТВ, под ним комодик. Вот! Спасибо всем большое за помощь. Отдельный респект Genkotу. Посилання на коментар Поділитися на інших сайтах More sharing options...
Genkot Опубліковано: 1 квітня 2011 Поділитись Опубліковано: 1 квітня 2011 Вы даже стиль угадали Это другой проект) uaimages.com/images/60696044.jpg uaimages.com/images/451087scene_wl_099.jpg Посилання на коментар Поділитися на інших сайтах More sharing options...
lug Опубліковано: 1 квітня 2011 Поділитись Опубліковано: 1 квітня 2011 Genkot! ЧУдная идея и особенно, картинки! Как точно называется программа, в которой вы рисуете, и, главное - сколько вы потратили времени на создание серии из 4-х изображений? Посилання на коментар Поділитися на інших сайтах More sharing options...
Рекомендовані повідомлення
Створіть акаунт або увійдіть у нього для коментування
Ви маєте бути користувачем, щоб залишити коментар
Створити акаунт
Зареєструйтеся для отримання акаунта. Це просто!
Зареєструвати акаунтУвійти
Вже зареєстровані? Увійдіть тут.
Увійти зараз