Перейти до публікації
Пошук в
  • Додатково...
Шукати результати, які містять...
Шукати результати в...

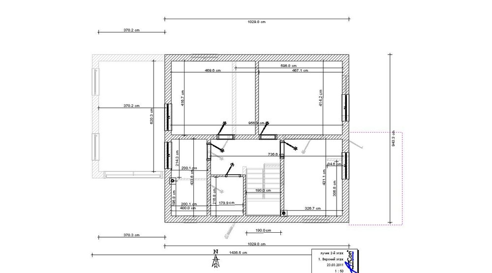
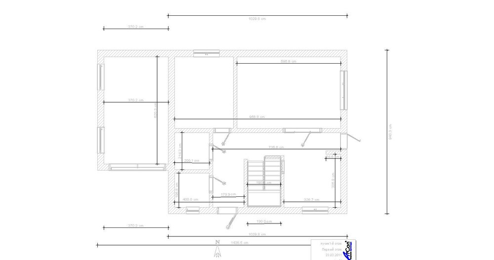
Необходимо выполнить проект на основании эскизов

Lawyer

Рекомендовані повідомлення

Доброго дня.

Собственно вопрос в наименовании темы.

Эскизы выполнены в арконе.

Материал стен - газоблок, второй этаж мансарда.

Предложения с ценой прошу присылать в личку.

576732581_1.thumb.jpg.0e5559c5d3357522e34686c12e3b153f.jpg

1817241100_2.thumb.jpg.9ff9322222cd38d76bf7a4d0af0e406e.jpg

214705521_3.thumb.jpg.e7152dee1e84bf7b5e151f091a05024b.jpg

1755912749_4.thumb.jpg.58316b18ec4aae11e61ef90a0f365f48.jpg

218469906_5.thumb.jpg.14f90a903c587805338487f4b1a1886b.jpg

Змінено користувачем Lawyer
Посилання на коментар
Поділитися на інших сайтах

Створіть акаунт або увійдіть у нього для коментування

Ви маєте бути користувачем, щоб залишити коментар

Створити акаунт

Зареєструйтеся для отримання акаунта. Це просто!

Зареєструвати акаунт

Увійти

Вже зареєстровані? Увійдіть тут.

Увійти зараз
×
×
  • Створити...