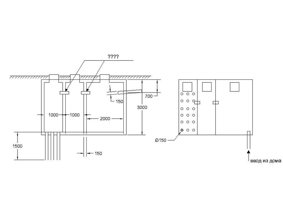
ELPRO Опубліковано: 30 березня 2011 Поділитись Опубліковано: 30 березня 2011 (змінено) Всем здравствуйте! Я скорее всего поднимаю уже со всех сторон обсосанную тему, но все же прошу оценить что намалював и подсказать на какой высоте установить переливы и надо ли устанавливать какую-либо вентиляцию. В приемной камере труба выходит на крышу дома на отм.+10м и она я так понимаю всегда будет пустая и через нее может быть вентиляция. Пойдут ли шурфы в 3-ей камере диаметром 150мм или надо больше? Шурфы планирую засыпать мелким щебнем. Заранее благодарю за советы и рекомендации.Септик-Model.pdf Змінено 30 березня 2011 користувачем ELPRO Посилання на коментар Поділитися на інших сайтах More sharing options...
ELPRO Опубліковано: 31 березня 2011 Автор Поділитись Опубліковано: 31 березня 2011 Что, никто ничего не может подсказать? Посилання на коментар Поділитися на інших сайтах More sharing options...
Andrey Melnick Опубліковано: 1 квітня 2011 Поділитись Опубліковано: 1 квітня 2011 ниже вводной трубы, и добавить Т насадки, чтобы г не перетекало на прямую из камеры в камеру Посилання на коментар Поділитися на інших сайтах More sharing options...
strelock Опубліковано: 4 квітня 2011 Поділитись Опубліковано: 4 квітня 2011 каждую переливную трубу на 10 см ниже предидущей, и тройники на переливных (ссылка на изображение устарела) Посилання на коментар Поділитися на інших сайтах More sharing options...
Рекомендовані повідомлення
Створіть акаунт або увійдіть у нього для коментування
Ви маєте бути користувачем, щоб залишити коментар
Створити акаунт
Зареєструйтеся для отримання акаунта. Це просто!
Зареєструвати акаунтУвійти
Вже зареєстровані? Увійдіть тут.
Увійти зараз