RtSm Опубліковано: 22 квітня 2011 Поділитись Опубліковано: 22 квітня 2011 Кто-то из композиторов-песенников сказал, что тем для песен существует очень ограниченное количество, и создать из них что-то новое или доселе неизвестное очень сложно. В принципе так и с планировками домов. Если хотите сэкономить деньги - Вы действуете абсолютно правильно. Определитесь с планировкой, которая нужна именно Вам. Делаете эскиз с размерами в простенькой программе (я делал в Sweet Home 3D). И даете архитектору-исполнителю с лицензией, который воплотит эскиз в бумажную плоть, добавит красивостей и "подрехтует"размерности. Если у Вас с бюджетом проблем нет - поручите все хорошему архитектору. Но помните - творчество стоит других денег. Действительно, большая часть готовых проектов мансардные. Сказалось тлетворное влияние Польши...Там почти все дома так строятся - производители минеральной ваты с удовольствием будут поддерживать эту моду даже в ущерб рациональности. Дело в том, что кроме стоимости мансардного этажа, есть один превалирующий фактор. РУЧКИ. В смысле "золотые руки", которые зачастую отсутствуют. Косяки же на "холодной" крыше менее затратны, чем на мансардной. Попробуте поискать планировки в Скандинавии, Великобритании, США. Там гораздо больше полноэтажных домов. Найдите риэлторский сайт с планировками и интерьерами реальных домов. Очень познавательно. Несколько примеров (часть Скандинавия, часть Англия и Штаты): Посилання на коментар Поділитися на інших сайтах More sharing options...
tarakashka Опубліковано: 3 травня 2011 Автор Поділитись Опубліковано: 3 травня 2011 Несколько примеров (часть Скандинавия, часть Англия и Штаты): большое спасибо за направление действительно идеала нет и уже всерьез задумываюсь засесть хотя бы за гугловский скетч ап просмотрю северные варианты... Посилання на коментар Поділитися на інших сайтах More sharing options...
RtSm Опубліковано: 4 травня 2011 Поділитись Опубліковано: 4 травня 2011 большое спасибо за направление действительно идеала нет и уже всерьез задумываюсь засесть хотя бы за гугловский скетч ап просмотрю северные варианты... Мне больше понравился Суит хом 3 ди. Дело в том, что в этой программе можно задать фактуру стенам и прогуляться по будущему дому или двору, оценив правильность планировки помещений и уладив споры внутри семьи. Осваивается очень просто. 1 Посилання на коментар Поділитися на інших сайтах More sharing options...
Sigma Опубліковано: 4 серпня 2011 Поділитись Опубліковано: 4 серпня 2011 Действительно, большая часть готовых проектов мансардные. Сказалось тлетворное влияние Польши...Там почти все дома так строятся - производители минеральной ваты с удовольствием будут поддерживать эту моду даже в ущерб рациональности. Дело в том, что кроме стоимости мансардного этажа, есть один превалирующий фактор. РУЧКИ. В смысле "золотые руки", которые зачастую отсутствуют. Косяки же на "холодной" крыше менее затратны, чем на мансардной. Попробуте поискать планировки в Скандинавии, Великобритании, США. Там гораздо больше полноэтажных домов. Найдите риэлторский сайт с планировками и интерьерами реальных домов. Очень познавательно. согласен на все сто процентов. полноценный этаж гораздо лучше. у нас слишком жарко под мансардами получается. Посилання на коментар Поділитися на інших сайтах More sharing options...
Leka Опубліковано: 4 серпня 2011 Поділитись Опубліковано: 4 серпня 2011 А еще у нас высокие мужчины,в моей семье выбор пал на два полных этажа именно по этой причине Посилання на коментар Поділитися на інших сайтах More sharing options...
Nimitz Опубліковано: 4 серпня 2011 Поділитись Опубліковано: 4 серпня 2011 z500.com.ua/ru/project/Zb2 Мне нравится эта планировка, если убрать гараж и добавить комнату так, что-бы дом стал прямоугольным. Затем можно немного ужать до 140-150 квадратов. В итоге имеем интересную планировку. На первом этаже можно вместо 2 небольших комнат сделать 1 большую + гардероб и увеличенное техпомещение. Посилання на коментар Поділитися на інших сайтах More sharing options...
tarakashka Опубліковано: 3 березня 2012 Автор Поділитись Опубліковано: 3 березня 2012 апну темку..до стройки осталось совсем чуть, а я до сих пор мечусь между двумя проектами( Никак не могу решиться. Дом в 2 полных этажа газобетона Подчеркиваю: бюджетное строительство по-максимум своими силами. Т.е. проект хочется максимально легкий И вот 2 на примете (ссылка устарела) Этот нравится планировкой, но смущает, что несущая стена почти отсуствует..Придется как то сложно делать балки для перекрытия... Второй почти такой, но подвинуть чуть стенку комнаты на 1 этаже , чтобы была несущая стена (с прихожей) (ссылка устарела) Здесь смущает не разделенная визуально кухня и заползание в санузел из под летсницы.. Кому какой нравится больше? Какой проект будет легче при строительстве и дешевле? Посилання на коментар Поділитися на інших сайтах More sharing options...
Alisa3 Опубліковано: 4 березня 2012 Поділитись Опубліковано: 4 березня 2012 Мне первая планировка нравится однозначно больше. 1 Посилання на коментар Поділитися на інших сайтах More sharing options...
tarakashka Опубліковано: 4 березня 2012 Автор Поділитись Опубліковано: 4 березня 2012 Мне первая планировка нравится однозначно больше. вторая сильно простая, да? и как бы входишь сразу в команту и кухня маловата, ага? просто в этьих двух проектах учтены размеры того, что нам надо для жизни..а вот какой лучше...Мне первый тоже больше нравится..но смущает эта несущая стена..вернее ее отсутствие.. Посилання на коментар Поділитися на інших сайтах More sharing options...
Амазонка Опубліковано: 4 березня 2012 Поділитись Опубліковано: 4 березня 2012 Мне нравится первый вариант, более сложное и более уютное пространство первого этажа. А что вас смущает в отсутствии несущей стены? В проекте наверное предусмотрены колонны и ригель, который будет опираться на эти колонны. Ригель и будет нести перекрытия второго этажа. Единственное что понравится ли вам самим нависающий ригель между кухней и гостиной, и гостиной и прихожей. У нас несущая стена в доме примерно так и идёт: кусочек мощной несущей стены-пустое пространсто-колонна-пустое пространство-кусок стены. И всё это венчает ригель (или армопояс?) Архитекторы лучше подскажут с правильностью терминов. Только всё должно быть изначально просчитано. Красная пунктирная линия -там будет нависающий ригель, если я всё правильно понимаю: Сначала нам считали ригель для бетонных перекрытий. В процессе стройки решили что нам достаточно деревянных перекрытий, конструктор делал перерасчёт на деревянные перекрытия. 1 Посилання на коментар Поділитися на інших сайтах More sharing options...
Владим61 Опубліковано: 4 березня 2012 Поділитись Опубліковано: 4 березня 2012 Вы же говорили, что от мансарды отказались. А выбрали проект с мансардой. Посилання на коментар Поділитися на інших сайтах More sharing options...
Alisa3 Опубліковано: 4 березня 2012 Поділитись Опубліковано: 4 березня 2012 вторая сильно простая, да? и как бы входишь сразу в команту и кухня маловата, ага? просто в этьих двух проектах учтены размеры того, что нам надо для жизни..а вот какой лучше...Мне первый тоже больше нравится..но смущает эта несущая стена..вернее ее отсутствие.. я думаю в типовом проекте продуманы несущие конструкции. во втором и дверь в ванную под лестницей мне не нравится, и комната и кухня меньше, и проходная топочная мне как-то не по душе. нет. первая как-то толковее спроектирована Посилання на коментар Поділитися на інших сайтах More sharing options...
tarakashka Опубліковано: 4 березня 2012 Автор Поділитись Опубліковано: 4 березня 2012 Красная пунктирная линия -там будет нависающий ригель, если я всё правильно понимаю: Сначала нам считали ригель для бетонных перекрытий. В процессе стройки решили что нам достаточно деревянных перекрытий, конструктор делал перерасчёт на деревянные перекрытия. мне тоже нравится именно этот проект.. но будет 2 полных этажа и нужна нормальная опорная стена..Считаем мы сами, без конструктора. Также, учитывая, что по-максимум будем строиться своими силами с небольшим привлечением раб. силы, страшновато что этот армопояс тядело будет выполнить, чтоб он стал действиетльно мощным.. Добавлено через 1 минуту Вы же говорили, что от мансарды отказались. А выбрали проект с мансардой. не не не..хочу 2 полных этажа..без сомнений. В этом то и подвох...несущая стена.. Посилання на коментар Поділитися на інших сайтах More sharing options...
RtSm Опубліковано: 5 березня 2012 Поділитись Опубліковано: 5 березня 2012 Мне больше нравится z14. Я бы перекрывал себе ж/б плитами без балок/ригелей. Есть завод, который делает любые размеры (длина) под заказчика. Схематично я бы сделал так: Синим - несущие стены. 1 Посилання на коментар Поділитися на інших сайтах More sharing options...
Jarik Опубліковано: 5 березня 2012 Поділитись Опубліковано: 5 березня 2012 Просмотрела множество готовых проектов - идеального для себя пока не нашла. То тамбура нет, то комнаты на первом этаже, то лестница в гостинной, как здрасьте. Особенно угнетает, что очень мало проектов с полноценным вторым этажем - все мансарды. Хочется построить бюджетный домик, до 150 (максимум!!!!) общей площади, на семью из 4-х человек+1 в перспективе. Я в свое время под эти цели построил Архоновский "дом в Деванне2". Тамбур, кухня, гостиная, комната, с/у, кладовая, котельная - на первом этаже, на втором - три спальни, гардеробная и большой с/у. ИМХО, практически из любого мансардного дома можно сделать полноценный двухэтажный, только стоит ли? Посилання на коментар Поділитися на інших сайтах More sharing options...
tarakashka Опубліковано: 5 березня 2012 Автор Поділитись Опубліковано: 5 березня 2012 Мне больше нравится z14. Я бы перекрывал себе ж/б плитами без балок/ригелей. Есть завод, который делает любые размеры (длина) под заказчика. Схематично я бы сделал так: Синим - несущие стены. спасибо. а цена вопроса "под заказ"? насколько удорожаются плиты в цене? И это как то странно придется делать внутреннюю стену фундамента... Добавлено через 2 минуты Я в свое время под эти цели построил Архоновский "дом в Деванне2". Тамбур, кухня, гостиная, комната, с/у, кладовая, котельная - на первом этаже, на втором - три спальни, гардеробная и большой с/у. ИМХО, практически из любого мансардного дома можно сделать полноценный двухэтажный, только стоит ли? вы знаете, я уже год (готовясь к стройке) во многих вопросах бегаю по кругу, периодически снова и снова перечитывая, может поменяю свое мнение Так было и с плитами (вс дерево вс терива) так и с 2 этажем. Вот буквально на днях снова думала: а может на фиг полный второй, тогда не будет мучений с несущей и т.д.? Но смущает: возможность протекания, духота летом, большие затраты на отопление (хуже прогревается) зимой. И все равно, такую мансарду как в этом проекте я б не хотела. Хотя бы полумансарду.. Уж слишком низко..А делать полумансарду - выльется в стоимость полноценного этажа..те. не вижу смысла... Посилання на коментар Поділитися на інших сайтах More sharing options...
Jarik Опубліковано: 6 березня 2012 Поділитись Опубліковано: 6 березня 2012 Вот буквально на днях снова думала: а может на фиг полный второй, тогда не будет мучений с несущей и т.д.? Но смущает: возможность протекания, духота летом, большие затраты на отопление (хуже прогревается) зимой. И все равно, такую мансарду как в этом проекте я б не хотела. Хотя бы полумансарду.. Уж слишком низко..А делать полумансарду - выльется в стоимость полноценного этажа..те. не вижу смысла... Возможность протекания целиком зависит от качества работ и кровельного материала. У меня именно в этом доме была крыша из битумки по сплошному настилу ОСБ. Вряд ли она когда нибудь протечет :D. Духота и затраты на отопление - опять таки это больше вопрос к качеству и составу кровельного пирога. сколько заложите - столько и получите. Заложите в проект что на перекрытие, что на склон кровли 200 мм нормального утеплителя и будет вам счастье. Разве перекрытие полноценнного этажа не надо хорошо утеплять? А я у себя в доме и делал полумансарду: поднял уровень стены на 1.5 м. Опять таки поднять уровень мансарды можно практически в любом проекте без его переделки 1 Посилання на коментар Поділитися на інших сайтах More sharing options...
RtSm Опубліковано: 6 березня 2012 Поділитись Опубліковано: 6 березня 2012 спасибо. а цена вопроса "под заказ"? насколько удорожаются плиты в цене? И это как то странно придется делать внутреннюю стену фундамента... Плиты в цене не дороже. Когда я брал - цена была средняя по рынку, чуть дороже доставка - Житомир. Но плиты - отличные, легче обычных. Внутри не арматура, а преднапряженные тросы. 1 Посилання на коментар Поділитися на інших сайтах More sharing options...
tarakashka Опубліковано: 6 березня 2012 Автор Поділитись Опубліковано: 6 березня 2012 Возможность протекания целиком зависит от качества работ и кровельного материала. У меня именно в этом доме была крыша из битумки по сплошному настилу ОСБ. Вряд ли она когда нибудь протечет :D. Духота и затраты на отопление - опять таки это больше вопрос к качеству и составу кровельного пирога. сколько заложите - столько и получите. Заложите в проект что на перекрытие, что на склон кровли 200 мм нормального утеплителя и будет вам счастье. Разве перекрытие полноценнного этажа не надо хорошо утеплять? А я у себя в доме и делал полумансарду: поднял уровень стены на 1.5 м. Опять таки поднять уровень мансарды можно практически в любом проекте без его переделки меня все таки напугали про духоту летом рассказы и холод зимой..А по цене я так понимаю -я не выйграю..те экономии нет смысл? Просто думаю делать 2 этаж 2,50 и холодный чердак...Бо не уверена, что дом моих парметров с 2 полными этажами будет симпотишно смотреться Посилання на коментар Поділитися на інших сайтах More sharing options...
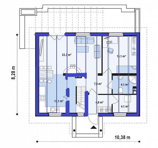
tarakashka Опубліковано: 6 березня 2012 Автор Поділитись Опубліковано: 6 березня 2012 прорисовала план 1 этажа в размеры появилось больше вопросов...www.stroimdom.com.ua/forum/attachment.php?attachmentid=170189&stc=1&d=1331054996 хватит ли ширины для пролета лестницы с учетом отделок - получится около 80 см. Вроде комфортная - 1 метр? Угол кухни 2, 40. Опять таки отделка - останется около 2, 30 стена закутка кухни.. Посилання на коментар Поділитися на інших сайтах More sharing options...
tarakashka Опубліковано: 6 березня 2012 Автор Поділитись Опубліковано: 6 березня 2012 Плиты в цене не дороже. Когда я брал - цена была средняя по рынку, чуть дороже доставка - Житомир. Но плиты - отличные, легче обычных. Внутри не арматура, а преднапряженные тросы. но с фундаментом сильно мудрить тоже не хочется.. Посилання на коментар Поділитися на інших сайтах More sharing options...
Jarik Опубліковано: 7 березня 2012 Поділитись Опубліковано: 7 березня 2012 меня все таки напугали про духоту летом рассказы и холод зимой..А по цене я так понимаю -я не выйграю..те экономии нет смысл? Просто думаю делать 2 этаж 2,50 и холодный чердак...Бо не уверена, что дом моих парметров с 2 полными этажами будет симпотишно смотреться Зря напугали. В части экономии, да, мансардная крыша практически ничего не экономит. Вопрос больше лежит в эстетической плоскости. Посилання на коментар Поділитися на інших сайтах More sharing options...
tarakashka Опубліковано: 8 березня 2012 Автор Поділитись Опубліковано: 8 березня 2012 Возможность протекания целиком зависит от качества работ и кровельного материала. У меня именно в этом доме была крыша из битумки по сплошному настилу ОСБ. Вряд ли она когда нибудь протечет :D. Духота и затраты на отопление - опять таки это больше вопрос к качеству и составу кровельного пирога. сколько заложите - столько и получите. Заложите в проект что на перекрытие, что на склон кровли 200 мм нормального утеплителя и будет вам счастье. Разве перекрытие полноценнного этажа не надо хорошо утеплять? А я у себя в доме и делал полумансарду: поднял уровень стены на 1.5 м. Опять таки поднять уровень мансарды можно практически в любом проекте без его переделки снова читала про мансарды..где то проскальзывало, что вы писали о холоде в мансардном этаже утеплителем устранили? Посилання на коментар Поділитися на інших сайтах More sharing options...
RtSm Опубліковано: 9 березня 2012 Поділитись Опубліковано: 9 березня 2012 Вопрос больше лежит в эстетической плоскости. Очень зависит от вкуса(особенно если на это посмотреть изнутри...). Добавлено через 1 час 14 минут хватит ли ширины для пролета лестницы с учетом отделок - получится около 80 см. Вроде комфортная - 1 метр? Совершенно верно, рекомендую делать не менее 1 метра. Ступени кроме того 14-15 см в высоту и 30 см в глубину. Кстати, я не сторонник забежных ступеней, хотел изначально и сделал себе полноценную лестницу с лестничной площадкой. Именно это одна из причин почему я делал себе индивидуальный проект. Добавлено через 5 минут И это как то странно придется делать внутреннюю стену фундамента... Что Вас смущает во внутренних фундаментах? Внешние же Вы будете делать? 1 Посилання на коментар Поділитися на інших сайтах More sharing options...
tarakashka Опубліковано: 9 березня 2012 Автор Поділитись Опубліковано: 9 березня 2012 Что Вас смущает во внутренних фундаментах? Внешние же Вы будете делать? ну хотелось бы сделать 1 внутреннюю фунадментную стену, а не под всем домом. У меня фунд и так достаточно затратный выходит... Я там уже отдельно обсуждаю: хватит ли простенков несущих для того, чтобы выдержать полноценный второй этаж И очень смущает 2,4 кухнИ Может это так кажется мало? Вживую не представлю как то.. Посилання на коментар Поділитися на інших сайтах More sharing options...
Рекомендовані повідомлення
Створіть акаунт або увійдіть у нього для коментування
Ви маєте бути користувачем, щоб залишити коментар
Створити акаунт
Зареєструйтеся для отримання акаунта. Це просто!
Зареєструвати акаунтУвійти
Вже зареєстровані? Увійдіть тут.
Увійти зараз