volod_ua Опубліковано: 18 квітня 2011 Поділитись Опубліковано: 18 квітня 2011 Добрий день, Мене цікавить чи потрібний армопояс для 2NF(www.kerambud.net/p_production.htm) цегли якщо перекриття роблю пустотілими плитами ? Будівельна бригада каже що потрібно чи справді це так? Посилання на коментар Поділитися на інших сайтах More sharing options...
Tarac_ Опубліковано: 18 квітня 2011 Поділитись Опубліковано: 18 квітня 2011 Потрібно, щоб правильно і рівномірно розподілити вагу плити по цеглі Посилання на коментар Поділитися на інших сайтах More sharing options...
volod_ua Опубліковано: 18 квітня 2011 Автор Поділитись Опубліковано: 18 квітня 2011 Але на звичайну цеглу не дають армо-пояса наскільки мені відомо. То для чого на цю цеглу давати це ж не керамічний блок. Вона просто вижча в 2 рази..і перевязку їй роблять як звичайні цеглі. Посилання на коментар Поділитися на інших сайтах More sharing options...
Tarac_ Опубліковано: 18 квітня 2011 Поділитись Опубліковано: 18 квітня 2011 в такій цеглі площа опирання набагато менша. Посилання на коментар Поділитися на інших сайтах More sharing options...
volod_ua Опубліковано: 18 квітня 2011 Автор Поділитись Опубліковано: 18 квітня 2011 А якщо замість армопояса по периметру дати 2 прута арматури і розтвор... чи все таки це не допоможе....,, А можна якісь розрахунки...що означає що площа опирання мешне.... Стіна будується в 1.5 цегли..... Посилання на коментар Поділитися на інших сайтах More sharing options...
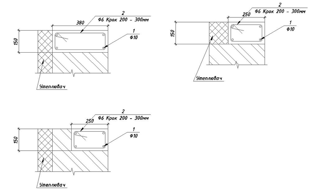
Tarras Опубліковано: 18 квітня 2011 Поділитись Опубліковано: 18 квітня 2011 Монолітний пояс крім розподілення навантаження від перекриття і запобігання сколу цегляної стіни, щей забезпечує загальну жорсткість будівлі. ... прикріпляю файл з можливими варіантами: Посилання на коментар Поділитися на інших сайтах More sharing options...
Tarac_ Опубліковано: 18 квітня 2011 Поділитись Опубліковано: 18 квітня 2011 А якщо замість армопояса по периметру дати 2 прута арматури і розтвор... чи все таки це не допоможе....,, А можна якісь розрахунки...що означає що площа опирання мешне.... Стіна будується в 1.5 цегли..... розрахувати звісно можна, але це складно і не має сенсу. Спробую пояснити простіше. Звичайна повнотіла цегла - кусок запеченої глини. Навантаження від плити перекриття на таку цеглину за допомогою розчину розподіляється більш-менш рівномірно по всій площині опирання плити на цегляну стіну. Пустотна цегла складається з багатьох стінок, в результаті чого навантаження на одну стінку більше ніж при опирання на повнотілу цеглу. До того ж, Ви не зможете точно визначити на яку стінку плита опреться на яку ні, через те що панель має не ідеальну геометрію. Отже Може вийти так, що вся плита ореться на декілька стінок площею пару см2. . В результаті вони можуть зруйнуватись. Плита звісно не впаде, але воно Вам треба ;) Коли Ви заливаєте пояс, бетон рівномірно розтікається по всіх перестінках такої цегли, відповідно і навантаження від плити розподілиться на цеглу рівномірно. От якось так. 1 Посилання на коментар Поділитися на інших сайтах More sharing options...
volod_ua Опубліковано: 18 квітня 2011 Автор Поділитись Опубліковано: 18 квітня 2011 а якщо замість армо-пояса дати повнотілу цеглу в ряди...? Посилання на коментар Поділитися на інших сайтах More sharing options...
Tarac_ Опубліковано: 18 квітня 2011 Поділитись Опубліковано: 18 квітня 2011 в принципі, можна і понвнотілу цеглу, пару рядів. а чим Вам так з/б пояс не вгодив?;) Посилання на коментар Поділитися на інших сайтах More sharing options...
volod_ua Опубліковано: 18 квітня 2011 Автор Поділитись Опубліковано: 18 квітня 2011 та він мені то вгодив...але майстри хочуть порядка 100грв за 1м пагоний...а то як на мене дорого.... плюс матеріал.... Посилання на коментар Поділитися на інших сайтах More sharing options...
Рекомендовані повідомлення
Створіть акаунт або увійдіть у нього для коментування
Ви маєте бути користувачем, щоб залишити коментар
Створити акаунт
Зареєструйтеся для отримання акаунта. Це просто!
Зареєструвати акаунтУвійти
Вже зареєстровані? Увійдіть тут.
Увійти зараз