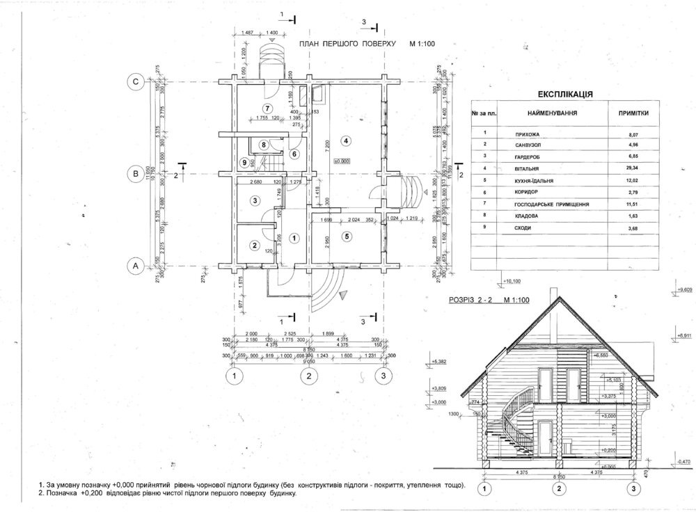
ELF Опубліковано: 21 квітня 2011 Поділитись Опубліковано: 21 квітня 2011 Итак, начинаем строить сруб. Проект перед вами. Центральный вход с Южного фасада, он же выходит на фасадный забор. Крылечки будут выглядеть по-другому. Конструктивную критику принимаю. П.С. На ошибку допущенную в проекте прошу не обращать внимания (проектант перепутал под воздействием чего-то:D) (В разрезе 1-1 неправильно спроектированна высота 2,80м. 1-го этажа и 3,20м. 2-го этажа. (перепутана местами). Правильно будет высота 1 этажа 3,20м. На втором этаже перекрытие опущено до высоты 2,80 метра.) Посилання на коментар Поділитися на інших сайтах More sharing options...
Oxkon Опубліковано: 21 квітня 2011 Поділитись Опубліковано: 21 квітня 2011 У Вас очень нудачно сформировано вложение с проектом дома: то маленькое, то очень крупное. Но я попыталась рассмотреть. Проект хороший. У меня сруб почти точно такой, только ванная на втором этаже в другом месте. У Вас получается, что все точки водоснабжения и канализации разведены по разным углам. Это не критично, конечно, но удорожит работы, т.к. "тянуть" воду и канализацию надо в 3 разных места. Выход из гостинной на улицу, это, конечно, прикольно, но очень не практично. Очень хорошо надо подумать над теплоизоляцией этой входной гостинной двери. И все равно будет обмерзать, я думаю. Подумайте хорошо, надо Вам балкон на 2 этаже. Редко им пользуются в частных домах, легче на улицу выйти, чем на балкон. Опять таки - дверь на балкон может обмерзать. Не лождия ведь, балкон.... Дом для постоянного проживания или дачный? Посилання на коментар Поділитися на інших сайтах More sharing options...
ELF Опубліковано: 21 квітня 2011 Автор Поділитись Опубліковано: 21 квітня 2011 У Вас очень нудачно сформировано вложение с проектом дома: то маленькое, то очень крупное. Но я попыталась рассмотреть. Проект хороший. У меня сруб почти точно такой, только ванная на втором этаже в другом месте. У Вас получается, что все точки водоснабжения и канализации разведены по разным углам. Это не критично, конечно, но удорожит работы, т.к. "тянуть" воду и канализацию надо в 3 разных места. Выход из гостинной на улицу, это, конечно, прикольно, но очень не практично. Очень хорошо надо подумать над теплоизоляцией этой входной гостинной двери. И все равно будет обмерзать, я думаю. Подумайте хорошо, надо Вам балкон на 2 этаже. Редко им пользуются в частных домах, легче на улицу выйти, чем на балкон. Опять таки - дверь на балкон может обмерзать. Не лождия ведь, балкон.... Дом для постоянного проживания или дачный? Дом для постоянного проживания, проектировали под существующий участок. Старый (10 лет дому было), тоже сруб, продали на вывоз. За основу разноса комнат бралось расположение по сторонам света. Северная и западная сторона практически глухие. Кухню и вход соответственно расположили к калитке, которая на юг. Соответственно и 2-е спальни расположили на юг. Из третей спальни не захотели выводить окно на север, поэтому и появилась идея балкончика. Но балкон в большей степени для красоты, изюминка, так сказать. Насчет обмерзания дверей - это не первый наш дом с балконными дверями, проблем вроде не было. Посилання на коментар Поділитися на інших сайтах More sharing options...
arca Опубліковано: 22 квітня 2011 Поділитись Опубліковано: 22 квітня 2011 Выход из гостинной на улицу, это, конечно, прикольно, но очень не практично. Очень хорошо надо подумать над теплоизоляцией этой входной гостинной двери. И все равно будет обмерзать, я думаю.У меня витраж на террасу из гостинной 2х3м не обмерзает;) Посилання на коментар Поділитися на інших сайтах More sharing options...
Oxkon Опубліковано: 22 квітня 2011 Поділитись Опубліковано: 22 квітня 2011 ELF, раз уж Вы выложили проект дома, то значит дело у Вас уже решенное по поводу именно этого проекта. Поэтому, какой смысл его уже обсуждать (там более, на мой взгляд, он очень удачный). Вот если бы Вы только планировали-задумывали..... Поэтому, большой Вам удачи в строительстве и удовольствия от этого процесса и, главное, его рузультата! 1 Посилання на коментар Поділитися на інших сайтах More sharing options...
ELF Опубліковано: 22 квітня 2011 Автор Поділитись Опубліковано: 22 квітня 2011 ELF, раз уж Вы выложили проект дома, то значит дело у Вас уже решенное по поводу именно этого проекта. Поэтому, какой смысл его уже обсуждать (там более, на мой взгляд, он очень удачный). Вот если бы Вы только планировали-задумывали..... Поэтому, большой Вам удачи в строительстве и удовольствия от этого процесса и, главное, его рузультата! Да, проект уже отдали в работу, дом начнут рубить после пасхи. Но конструктивная критика еще никому вреда не принесла;), может еще что-то стоит изменить... На затраты по водоснабжению и канализации готовы, но по другому не получалось в нашем видении. Посилання на коментар Поділитися на інших сайтах More sharing options...
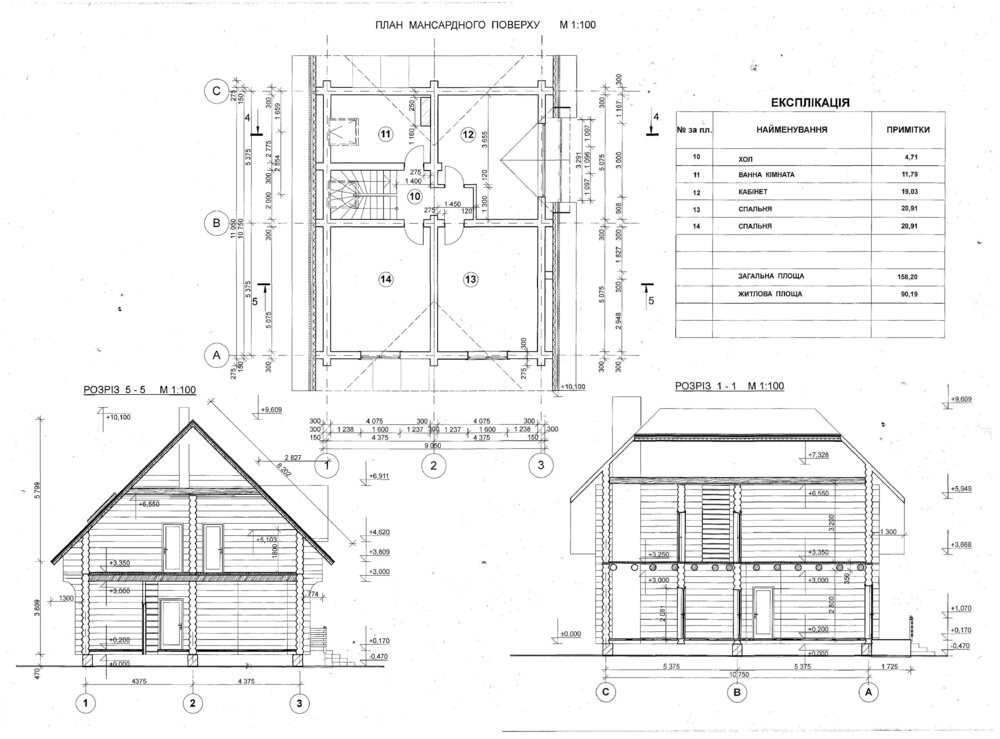
ELF Опубліковано: 22 квітня 2011 Автор Поділитись Опубліковано: 22 квітня 2011 Прошу совета по поводу расположения камина и ТВ в гостинной + ко всему хочется еще и вид из окна наблюдать. По предварительным прогнозам камин будет находиться у стены с котельной, но как при этом повернуть диван\диваны чтобы был виден пейзаж еще из окна? Или камин переместить куда-то? Посилання на коментар Поділитися на інших сайтах More sharing options...
Рекомендовані повідомлення
Створіть акаунт або увійдіть у нього для коментування
Ви маєте бути користувачем, щоб залишити коментар
Створити акаунт
Зареєструйтеся для отримання акаунта. Це просто!
Зареєструвати акаунтУвійти
Вже зареєстровані? Увійдіть тут.
Увійти зараз