Pr_Woland Опубліковано: 30 квітня 2011 Поділитись Опубліковано: 30 квітня 2011 Здравствуйте уважаемые форумчане ! Есть мечта построить дачный домик 8х7,5 м в два полных этажа без подвала с ж/б перекрытием этажей. Проект не заказывал. Сделал геологию. Исходные данные: - Почва: от 0,8 до 2,0 м - суглинок желто-коричневый, твердый, лесовый, непросадочный. - Грунтовые воды при бурении до 6м не обнаружены (август месяц) - Нормативная глубина промерзания грунта - 0,84 м; - Регион: Хмельницкий - Стены дома: в полтора полнотелого кирпича + утепление ППС 100 мм - Вес дома со всевозможными доп. нагрузками (снег, ветер и т.д.) - около 500 тон. Тип фундамента - железобетонный монолит. - Перепад участка по высоте на длине фундамента - 0,2 м Помогите пожалуйста разобраться со следующими вопросами: 1) Можно ли устроить подушку из крупного песка без щебня или лучше со щебнем ? Нужна ли в моем случае подушка вообще или достаточно утрамбовать землю ? 2) Не слишком ли большая глубина фундамента 1,2 м (это в нависшей точке, в наинизшей она уменьшается на перепад участка - 0,2 м и глубина будет 1м) ? 3) Достаточно или слишком много арматуры ? 4) Подойдет ли бетон В 20 с удобоукладываемостью смеси П3 или взять П4 ? 5) Возможен ли указаный на рисунке вариант опалубки ? 6) Можно ли прокладывать гильзы под комуникации в подушке фундамента ? Отдаю себе отчет что ответы на некоторые вопросы требуют определённых расчётов, но возможно исходя из опыта заметите явные ошибки начинающего строителя. Особенно интересует вопрос по подушке. Критика особо приветствуется. Заранее благодарен за советы ! 1 Посилання на коментар Поділитися на інших сайтах More sharing options...
Winder Опубліковано: 30 квітня 2011 Поділитись Опубліковано: 30 квітня 2011 Для дачи неверная конструкция стены. Что касается фундамента, то расширение внизу, при такой ГП явно лишнее, ну и глубину можно помене заложить, продольную арматуру из центра убрать.. Посилання на коментар Поділитися на інших сайтах More sharing options...
Pr_Woland Опубліковано: 30 квітня 2011 Автор Поділитись Опубліковано: 30 квітня 2011 Насчет арматуры я тоже думаю что многовато... Кто же касается стены, то планируется круглогодичное проживание. Можете что-то подсказать по подушке ? Насчет расширения внизу, то это для перестраховки на случай пучения да и так поспокойней - все-таки 2 этажа из кирпича Посилання на коментар Поділитися на інших сайтах More sharing options...
Winder Опубліковано: 1 травня 2011 Поділитись Опубліковано: 1 травня 2011 Насчет арматуры я тоже думаю что многовато... Кто же касается стены, то планируется круглогодичное проживание. Можете что-то подсказать по подушке ? Насчет расширения внизу, то это для перестраховки на случай пучения да и так поспокойней - все-таки 2 этажа из кирпича Какое нафик пучение при ГП 84см:D У нас ГП 220см и то так никто не делает;) По режиму проживания/отопления напишите подробней, ибо я так и не понял Посилання на коментар Поділитися на інших сайтах More sharing options...
Pr_Woland Опубліковано: 4 травня 2011 Автор Поділитись Опубліковано: 4 травня 2011 Winder Риск пучения я рассматириваю в связи с типом почвы - суглинки. Под суглинками есть мощный пласт сирой жирной глины. Как это дело себя поведёт по время морозной зимы после мокрой осени я не рискую проверять, тем более что я не смогу полностью нагрузить фундамент до этой зимы. Насчет проживания, то в этом доме планируется жить постоянно, и от дачи у него одно название (расположен в дачном масиве). Стена в полтора кирпича чтобы обеспечить несущую способность под плиты перекрытия, надёжно закрепить кровлю, обеспечить теплоинерционность. ППС 100 мм для обеспечения R=2.8 (целесообразно для моего региона). Посилання на коментар Поділитися на інших сайтах More sharing options...
Winder Опубліковано: 4 травня 2011 Поділитись Опубліковано: 4 травня 2011 Winder Риск пучения я рассматириваю в связи с типом почвы - суглинки. Под суглинками есть мощный пласт сирой жирной глины. Как это дело себя поведёт по время морозной зимы после мокрой осени я не рискую проверять, тем более что я не смогу полностью нагрузить фундамент до этой зимы. Морозная зима, эт видимо на недельку -15 стуканёт?:D Ежели боитесь оставлять холодный недострой в зиму, то утеплите пол первого этажа, а снаружи по периметру, если снега зимой мало бывает, утеплите соломой. Когда будете уже жить, то тепло из дома не даст промерзать почве. Насчет проживания, то в этом доме планируется жить постоянно, и от дачи у него одно название (расположен в дачном масиве). Стена в полтора кирпича чтобы обеспечить несущую способность под плиты перекрытия, надёжно закрепить кровлю, обеспечить теплоинерционность. ППС 100 мм для обеспечения R=2.8 (целесообразно для моего региона). Тогда всё ясно, конструкция верна. Посилання на коментар Поділитися на інших сайтах More sharing options...
Pr_Woland Опубліковано: 4 травня 2011 Автор Поділитись Опубліковано: 4 травня 2011 Winder Спасибо ! Попробую кое-что упростить, а то кажись и вправду перебор. Уважаемые форумчане, подскажите пожалуйста по подушке и можно ли в ней закладывать гильзы под коммуникации или нужно устанавливать выше - в месте заливки бетона ? Посилання на коментар Поділитися на інших сайтах More sharing options...
Pr_Woland Опубліковано: 26 травня 2011 Автор Поділитись Опубліковано: 26 травня 2011 Доброго всем времени суток ! Извините за дилетантский вопрос, но как всё-таки лучше сделать подушку: сначала утрамбовывать щебень и расклинивать его мокрым песком или наоборот вдавливать щебень в песок ? Посилання на коментар Поділитися на інших сайтах More sharing options...
Alex_kr Опубліковано: 26 травня 2011 Поділитись Опубліковано: 26 травня 2011 Доброго всем времени суток ! Извините за дилетантский вопрос, но как всё-таки лучше сделать подушку: сначала утрамбовывать щебень и расклинивать его мокрым песком или наоборот вдавливать щебень в песок ? гильзы под комуникации можете спокойно сделать в самом фундаменте, только перед заливкой незабудьте их установить, а то головняка потом будет более чем с начала песок с трамбовкой, а затем щебень тоже с трамбовкой 2 Посилання на коментар Поділитися на інших сайтах More sharing options...
mans_2008 Опубліковано: 26 травня 2011 Поділитись Опубліковано: 26 травня 2011 Извините за дилетантский вопрос, но как всё-таки лучше сделать подушку: сначала утрамбовывать щебень и расклинивать его мокрым песком или наоборот вдавливать щебень в песок ? Зачем вообще нужен песок? Щебень фракции 20-40 втрамбовываете в глину и этого достаточно. Посилання на коментар Поділитися на інших сайтах More sharing options...
mspacer Опубліковано: 26 травня 2011 Поділитись Опубліковано: 26 травня 2011 если не ошибаюсь, щебень кладут в подушку чтобу избежать капилярыный подсос влаги под фундамет с нижних слоев грунта при высоких грунтовых водах. Учитывая, что у вас грунтовые воды глубоко, ИМХО, щебень лишний. Ккроме того, глубина фундамента ниже точки промерзаний и грунты у вас не пучинистые - подушка вообще не нужна. У родителей сделан фундамент 400 мм с утолщением к низу до 500 мм глубиной 1000 мм без арматуры. Грунт - чернозем. Стоит без нагрузки уже 10 лет. Трещин нет. я бы к осени по периметру фундамента вырыл небольшую траншею и уклон от фундамента. по ним дождевые и талые воды будут отводиться от фундамента. Посилання на коментар Поділитися на інших сайтах More sharing options...
YuV Опубліковано: 26 травня 2011 Поділитись Опубліковано: 26 травня 2011 - Регион: Хмельницкий Где строится то будешь, земляк? Посилання на коментар Поділитися на інших сайтах More sharing options...
mans_2008 Опубліковано: 27 травня 2011 Поділитись Опубліковано: 27 травня 2011 если не ошибаюсь, щебень кладут в подушку чтобу избежать капилярыный подсос влаги под фундамет с нижних слоев грунта при высоких грунтовых водах. Учитывая, что у вас грунтовые воды глубоко, ИМХО, щебень лишний. Ккроме того, глубина фундамента ниже точки промерзаний и грунты у вас не пучинистые - подушка вообще не нужна. При втрамбовывании щебня, грунт (глина) утрамбовываются еще на пол метра вглубь. Вот из этих соображений и предлагал. Песок вообще не понимаю зачем сыпать, разве что для экономии бетона. 1 Посилання на коментар Поділитися на інших сайтах More sharing options...
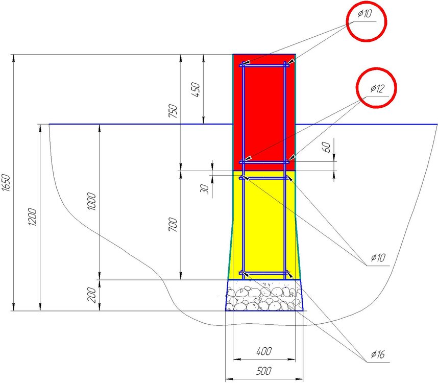
Pr_Woland Опубліковано: 27 травня 2011 Автор Поділитись Опубліковано: 27 травня 2011 Благодарю всех за ответы с объяснениями! Так как мнения расходятся, то решил взять на мой взгляд все лучшее от каждого. Совсем без подушки как-то стрёмно. По этому решил засыпать щебень 20-40 тонкими шарами и расклинивать его песком, поливая водой для уплотнения. В этом пироге также будут воткнуты гильзы из асбесто-цементных труб для проходок коммуникаций. После трамбовки подушки будет установлена полиэтиленовая пленка по периметру траншеи для уменьшения утечки влаги из бетона. Вот с заливкой выше уровня земли выходит запара. После начала рытья траншеи осознал что такую опалубку как изображено в первом посте для одновременной заливки фундамента сделать и особенно установить будет весьма проблематично, плюс возникают проблемы с перепадом грунта:shout: Поэтому решил лить бетон в два захода как показано на рисунке (3 миксера - желтый цвет, 1 миксер - красный цвет). После первой заливки устанавливать опалубку и доливать. Посоветуйте пожалуйста как лучше: 1) С каким интервалом стоит лить бетон, чтобы первый слой был уже достаточно твердым что бы упереть в него опалубку и что бы получилась минимальная разница в структуре слоёв ? 2) Какие меры предпринять для качественного скрепления слоёв между собой ? 3) Подошва фундамента должна быть в одном уровне ? В наинизшей точке получается мелковатый фундамент, наверное следует углубить или лучше подсыпать земли ? Еще раз всем спасибо ! YuV Дачный масив "Энергия" возле с. Давыдковцы Посилання на коментар Поділитися на інших сайтах More sharing options...
Pr_Woland Опубліковано: 27 травня 2011 Автор Поділитись Опубліковано: 27 травня 2011 Схемы заливки и опалубки в разрезе (две крайних точки по диагонали): Посилання на коментар Поділитися на інших сайтах More sharing options...
mspacer Опубліковано: 27 травня 2011 Поділитись Опубліковано: 27 травня 2011 - фундамент желательно лить за один прием - вы толком не протрамбуете подушку в траншее шириной 400 мм, а тем более расширяющуюся к низу. - арматура в середине не работает. ИМХО, d14 три ветки снизу (10 см от дна), три ветки сверху. - вы замучаетесь закапывать опалубку в землю на 400 мм, а потом откапывать (первый вариант) - полиэтиленовая пленка на глубине в метр может пойти складками и уменьшить сечение фундамента. не усложняйте жизнь! старый провереный годами дедовский способ - фундамет ниже точки промерзания расширяющийся к основанию. Удачи! 1 Посилання на коментар Поділитися на інших сайтах More sharing options...
dsk Опубліковано: 27 травня 2011 Поділитись Опубліковано: 27 травня 2011 3) Подошва фундамента должна быть в одном уровне ? В наинизшей точке получается мелковатый фундамент, наверное следует углубить или лучше подсыпать земли ? По моему мнению, высота ленты должна быть идинакова, для исключения перекоса ленты по массе. Насчет перепада высоты мой вам совет: загоните бульдозер, и сравняйте участок ДО копки траншей. Стоимость этой работы сэкономит вам огромные деньги в дальнейшем, при отделке цоколя и обустройстве участка... Посилання на коментар Поділитися на інших сайтах More sharing options...
Pr_Woland Опубліковано: 19 липня 2011 Автор Поділитись Опубліковано: 19 липня 2011 Здравствуйте уважаемые форумчане ! Решил поделится результатами моей борьбы за качество фундамента. После завершения копки траншеи и устройства подушки случился ужасный ливень и на дне траншеи оказался слой грязи 20-30 см + частично размылись стенки траншеи. С чисткой грязи оказалось что она очень хорошо отстает от подушки покрытой сверху слоем крупного песка. Эффект похож как в случае с мукой на столешнице на которой месят тесто. Возможно это будет полезно начинающим строителям - после завершения траншеи, если есть угроза ливня, следует высыпать дно слоем песка. Вид траншеи после ливня вас точно не порадует, но по крайней мере можно будет почистить. После чистки траншеи, выстилал траншею полиэтиленовой пленкой, установил арматуру. Арматура в три горизонтальных ветки: снизу - 2 по 16мм, по средине и сверху - 2 по 10мм; Учитывая риск обвалов траншеи после постоянных дождей решил делать заливку в два этапа. 1-й этап - залить половину таким образом чтобы под бетоном оказались два нижних слоя арматуры образовав армированную сверху и снизу балку. 2-й этап - установить опалубку и залить вторую половину - получится еще одна балка армирована только сверху. Процесс заливки на первом этапе прошел не совсем гладко. 1) Запланированное количество людей не смогло принять участие в последний момент и мне пришлось растаскивать бетон практически самому. Верхний слой не удалось выровнять по уровню и теперь он волнами. 2) Стояла ужасная жара - 34С в тени и бетон покрылся трещинками толщиной 0,5-2мм еще до того как я успел его укрыть от прямых солнечных лучей. Через 12 часов и на протяжении 3-х дней бетон регулярно поливался водой. Бетон В20 П3 -укладывался без вибратора. Учитывая не совсем удачную погоду, неравномерную трамбовку и пересыхание верхнего слоя бетона в жару меня гложут сомнения: 1) Достаточную марку бетона (М250) я взял ? 2) Может стоит перестраховаться и следующий этап лить В25 П4 (М350) ? 3) Можно лить слои фундамента из разного бетона ? 4) Не возникает ли трудностей с заливкой бетона М350 (слишком быстрое схватывание) ? 5) Может у меня уже паранойя и все и так будет стоять на М250 ? Посилання на коментар Поділитися на інших сайтах More sharing options...
Pr_Woland Опубліковано: 20 липня 2011 Автор Поділитись Опубліковано: 20 липня 2011 После долгих раздумий решил лить бетон В25 для верхней части фундамента. Подскажите пожалуйста какой бетон проще залить В25 П4 без вибратора или В25 П2 с вибратором ? Какой вариант проще качественно сделать имея ограниченные трудовые ресурсы ? Посилання на коментар Поділитися на інших сайтах More sharing options...
MWer Опубліковано: 20 липня 2011 Поділитись Опубліковано: 20 липня 2011 После долгих раздумий решил лить бетон В25 для верхней части фундамента. Подскажите пожалуйста какой бетон проще залить В25 П4 без вибратора или В25 П2 с вибратором ? Какой вариант проще качественно сделать имея ограниченные трудовые ресурсы ? У вас геология какая то странная. Лессовые грунты - просадочные, или я что то пропустил? Где характеристики грунтов основания? Не название грунта, что будет сбоку от ленты, а цифровые характеристики грунта под подошвой, хотя бы метров на 10 в глубину. А так, можно сказать, что у вас нет геологии... Посилання на коментар Поділитися на інших сайтах More sharing options...
Pr_Woland Опубліковано: 20 липня 2011 Автор Поділитись Опубліковано: 20 липня 2011 Геология моего участка в цифрах и картинках: Посилання на коментар Поділитися на інших сайтах More sharing options...
MWer Опубліковано: 22 липня 2011 Поділитись Опубліковано: 22 липня 2011 Геология моего участка в цифрах и картинках: До сих пор нет единого мнения о природе просадочности лёссовых пород . Различные исследователи выдвигали достаточно много предположений и гипотез по поводу возникновения этого специфического и неотъемлемого свойства лёссов. Анализ существующих мнений показывает, что все гипотезы, объясняющие просадочность лёссовых пород, можно разделить на две группы. I. В перво... Источник Посилання на коментар Поділитися на інших сайтах More sharing options...
Pr_Woland Опубліковано: 23 липня 2011 Автор Поділитись Опубліковано: 23 липня 2011 LeoStar Спасибо за дополнительную информацию, но уж слишком страшная страшилка . Еще не приходилось слышать о каких либо проблемах с грунтами в моем дачном массиве. Геологи делавшие мне ГИ, подтвердили что почва совсем не проблемная. Надеюсь нет острой необходимости бросать 16 раз трамбовку 10т с высоты 8м или уплотнять почву взрывом или химикатами как написано в предоставленном вами материале. Если есть более приемлемые способы упрочнения грунта буду очень признателен если подскажите. Посилання на коментар Поділитися на інших сайтах More sharing options...
Pr_Woland Опубліковано: 23 липня 2011 Автор Поділитись Опубліковано: 23 липня 2011 В связи с проблемной заливкой первого слоя (пост №18 ) Решил сделать верхний слой фундамента более мощным. В моем понимании верхний слой будет служить своеобразным армопоясом нижнему слою. Решил добавить в основание верхнего слоя 2 ветки арматуры ф12. Бетон взять уже В25, а не В20 как для нижнего слоя. Помогите пожалуйста разобраться с вопросами: 1) Будут ли работать нижние ветки арматуры ф12 ? 2) Может лучше поставить сверху ф12, а снизу ф10 ? 3) При бетонировании с вибратором есть ли риск, что "растрасет" вертикальную арматуру в нижнем слое ? 4) Подскажите пожалуйста какой бетон проще залить В25 П4 без вибратора или В25 П2 с вибратором ? 5) Какой вариант проще качественно сделать имея ограниченные трудовые ресурсы ? Заранее благодарен за любую подсказку Посилання на коментар Поділитися на інших сайтах More sharing options...
MWer Опубліковано: 24 липня 2011 Поділитись Опубліковано: 24 липня 2011 .... Заранее благодарен за любую подсказку Вот пугать совсем не планировал Просто геология ваша меня удивила. Подсказать в двух словах рекомендации по устройству фундамента на просадочных грунтах, да еще и с просчетом армирования, тут врядли кто то найдется. Вот раз меня уже зацепили, скажу основное: - фундамент должен быть жестким, то есть это не столбы, а лента, побольше в сечении и армирование ей очень не лишним будет; - избегать крупнообломочных грунтов под подошвой; - принимать меры по недопущению намокания грунта под домом. Ну и много там еще есть на что обратить внимание, но это обширная тема а я недостаточно в ней компетентен. 1 Посилання на коментар Поділитися на інших сайтах More sharing options...
Рекомендовані повідомлення
Створіть акаунт або увійдіть у нього для коментування
Ви маєте бути користувачем, щоб залишити коментар
Створити акаунт
Зареєструйтеся для отримання акаунта. Це просто!
Зареєструвати акаунтУвійти
Вже зареєстровані? Увійдіть тут.
Увійти зараз