Mahindra Опубліковано: 7 травня 2011 Поділитись Опубліковано: 7 травня 2011 (змінено) Ищу компанию которая сможет сделать следующее: Крыша общей площадью 268 кв.м. Чердак теплый. Утепление 150 мм. Материал битумная черепица или металлочерепица, ещё не определилась. Подскажите,что лучше? %) Водосток. Подшива свесов. Цвет - коричневый. Высота до крыши 5,3 м. Фасад площадью 318 кв.м. Утепление фасада пенопластом, толщина 100мм. Штукатурка. Короед. Объект находиться на расстоянии 25 км от Киева. Проекта как такового пока нет, если предложите свои решения и варианты буду вечно признательна и благодарна =) Предложения отправляйте на почту borisovaMA@ya.ru с темой "stroimdom" Змінено 7 травня 2011 користувачем Mahindra Посилання на коментар Поділитися на інших сайтах More sharing options...
fartoviy200000 Опубліковано: 7 травня 2011 Поділитись Опубліковано: 7 травня 2011 Комплексные решения кровельных и фасадных систем, зайдите на сайт, там все подробно изложено и цены тоже. Посилання на коментар Поділитися на інших сайтах More sharing options...
Ник777 Опубліковано: 7 травня 2011 Поділитись Опубліковано: 7 травня 2011 Подскажите в каком районе объект? Посилання на коментар Поділитися на інших сайтах More sharing options...
yzakorko Опубліковано: 7 травня 2011 Поділитись Опубліковано: 7 травня 2011 Предложение на элетронке. Посилання на коментар Поділитися на інших сайтах More sharing options...
Slavabudstroy Опубліковано: 7 травня 2011 Поділитись Опубліковано: 7 травня 2011 Ищу компанию которая сможет сделать следующее: Крыша общей площадью 268 кв.м. Чердак теплый. Утепление 150 мм. Материал битумная черепица или металлочерепица, ещё не определилась. Подскажите,что лучше? %) Водосток. Подшива свесов. Цвет - коричневый. Высота до крыши 5,3 м. Фасад площадью 318 кв.м. Утепление фасада пенопластом, толщина 100мм. Штукатурка. Короед. Объект находиться на расстоянии 25 км от Киева. Проекта как такового пока нет, если предложите свои решения и варианты буду вечно признательна и благодарна =) Предложения отправляйте на почту borisovaMA@ya.ru с темой "stroimdom" Мы сейчас на данном этапе выполняем такую работу Можете подъехать посмотреть Цены у Вас в личке Посилання на коментар Поділитися на інших сайтах More sharing options...
Артур Пирожков Опубліковано: 8 травня 2011 Поділитись Опубліковано: 8 травня 2011 ответ в личке. Посилання на коментар Поділитися на інших сайтах More sharing options...
Urs Опубліковано: 8 травня 2011 Поділитись Опубліковано: 8 травня 2011 Mahindra , предложение сбросил на Вашу почту. Посилання на коментар Поділитися на інших сайтах More sharing options...
Ник777 Опубліковано: 9 травня 2011 Поділитись Опубліковано: 9 травня 2011 Еще раз прошу обозначить район строительства! Посилання на коментар Поділитися на інших сайтах More sharing options...
Z StasON Z Опубліковано: 10 травня 2011 Поділитись Опубліковано: 10 травня 2011 ответили на мыло. проверяйте. Посилання на коментар Поділитися на інших сайтах More sharing options...
serjukta@ Опубліковано: 10 травня 2011 Поділитись Опубліковано: 10 травня 2011 Объект находиться на расстоянии 25 км от Киева. Ник 777 не в Киеве. Если Вы это имели в виду. Посилання на коментар Поділитися на інших сайтах More sharing options...
Rimotit Опубліковано: 10 травня 2011 Поділитись Опубліковано: 10 травня 2011 Могу взять фасад в работу, помогу с материалом, декоративными элементами. Звоните Посилання на коментар Поділитися на інших сайтах More sharing options...
*Alexey* Опубліковано: 10 травня 2011 Поділитись Опубліковано: 10 травня 2011 Крыша общей площадью 268 кв.м. Чердак теплый. Утепление 150 мм. .... Водосток. Подшива свесов. Цвет - коричневый. Высота до крыши 5,3 м. Взвалим Вашу крышу на свои крепкие плечи. Дайте проект для просчета с Вашими контактами на мыло (все контакты у меня в публичных сообщениях) С уважением Алексей Посилання на коментар Поділитися на інших сайтах More sharing options...
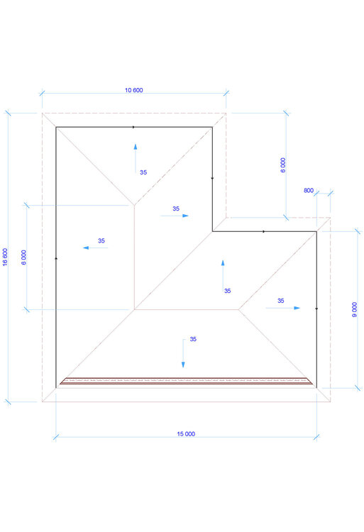
Mahindra Опубліковано: 11 травня 2011 Автор Поділитись Опубліковано: 11 травня 2011 Спасибо всем за ответ. Честно сказать, еще не было времени все рассматреть. Посему жду Ваши предложения. Внесу некоторые уточнения. Объект находиться в Новоселки. Это влияет на цену?? Крыша Отдаем предпочтения мягкой кровле. Проекта нету. Есть чертеж (см. первый пост). Фасад Штукатурка должна быть уже цветная, или как там, что бы не красить ее после нанесения. Посилання на коментар Поділитися на інших сайтах More sharing options...
*Alexey* Опубліковано: 11 травня 2011 Поділитись Опубліковано: 11 травня 2011 ... Внесу некоторые уточнения. Объект находиться в Новоселки. Это влияет на цену?? Да, влияет, т.к. есть понятие транспортных расходов, доставки и т.д. Новоселки какие - за Вышгородом?? Крыша Отдаем предпочтения мягкой кровле.Бренд?? Форма?? Почему битумка?? Подкровельный этаж - мансарда?? холодный чердак?? В общем: что у Вас под крышей запланировано/будет?? Спрашиваю, т.к. если там будет мансарда, то освещенности явно нЭ достАточно, т.е. нужны мансардные окна или "голубятни/кукушки/слуховые окна" А это все материал, который желательно предусмотреть... С ув. Посилання на коментар Поділитися на інших сайтах More sharing options...
Rimotit Опубліковано: 12 травня 2011 Поділитись Опубліковано: 12 травня 2011 Ответил Вам на почту Посилання на коментар Поділитися на інших сайтах More sharing options...
Рекомендовані повідомлення
Створіть акаунт або увійдіть у нього для коментування
Ви маєте бути користувачем, щоб залишити коментар
Створити акаунт
Зареєструйтеся для отримання акаунта. Це просто!
Зареєструвати акаунтУвійти
Вже зареєстровані? Увійдіть тут.
Увійти зараз