Перейти до публікації
Пошук в
  • Додатково...
Шукати результати, які містять...
Шукати результати в...

Утепление уже построенной крыши

Лялечка

Рекомендовані повідомлення

Уважаемые форумчане, попрошу скинуться мыслями по поводу следующей ситуации.

В купленном доме( крыша постройки 2006-2007гг) имеем крышу без утепления - фото ниже.

Идет просто - стропила, обрешетка, пленка, и покрытие (как оно правильно называется? Металлочерепица?)

Скаты под крышей отведены под хранение всякой всячины. по серединке есть комната, как указано на плане. В ней летом невыносимо жарко, а зимой она достаточно быстро остывает.

В тех помещениях так же оказалось летом сильно жарко а зимой сильно холодно, поэтому провели вскрытие ДСП, которым подбита кровля - и обнаружили то, что на фото.

То есть - никакого утепления нет, кроме мусора, который оставили "добрые" строители.

Со стороны комнаты гипсокартон упирается прямо в крышу(обрешетку) и виднеется вата.

 

Почитав про крыши, как их делают сейчас - с вентиляциями и прочим возник следующий ряд вопросов:

1. Хотелось бы снести гипсокартонную стену - как показано на рисунке и расширить комнату( если в той стене нет фермы, поддерживающей крышу). Можно ли при этом не снимая покрытия с крыши утеплить его? Если да, то чем?

2. Нужна ли вентиляция такому покрытию? Так как сейчас выхода на конек нет - все наглухо замуровано снизу и сверху.

3. Нужна ли вентиляция такому тех помещению - сейчас все глухо. Летом там очень жарко.

4. Гипсокартонная стена, которая упирается в крышу, в месте примыкания к стене из пеноблока трескается - это следствие того, что крыша "гуляет" и двигает стену? Думаем убрать стену, утеплить крышу и врезать мансардное окно. Получится?

5. Правильно ли установлен желоб над примыканиями? Не должен ли он быть снизу? Крыша не течет.

Ну и фото.

primikanie.thumb.JPG.4e21bd556eeaf55160c39aa571ff35bc.JPG

print_04.jpg.8af8d05f53e7e3a5ed54f00d566f8048.jpg

root1.thumb.JPG.b09a0858386536e609e4e6f07046bbbe.JPG

root2.thumb.JPG.1db57491632406666543346b85b5a506.JPG

root3.thumb.JPG.068d8aad48201a315139b9693eb7235b.JPG

root4.thumb.JPG.db9b3b53d730b3ca1ab57f5fe009e65b.JPG

wall.thumb.JPG.870136202d5f6f2b9979892f2d27e1f7.JPG

Посилання на коментар
Поділитися на інших сайтах

УВ,добрые строили вознаградили Вас кучей проблем с крышей,так как смонтирована она без каких-либо соблюдений технологии!

Что значит - на продажу.

Квалифицированный кровельщик Вам в помощь!

Посилання на коментар
Поділитися на інших сайтах

Ну, во первых добрый вечер.

Во вторых - сочувствую...

1, МЧ (металлочерепица) уложена не правильно. Замок/нахлест выполняется в обратную сторону и стыкуется по низу волны (если я не ошибаюсь :rolleyes:).

2, По видимому подкровельная вентиляция (между ГБ и МЧ) отсутствует, как факт, а это значит, что МЧ долго не прослужит, да и обрешетке будет гаплык, т.к. от конденсата на ГБ (гидробарьере) она сгниет. Та же участь ожидает и ватный утеплитель, по этому об утеплении я пока помолчу...

Выходов вижу 2:

1, Вложить бабки в реконструкцию крыши, и на гарантийный период эксплуатации покрытия, спать спокойно...

2, Забить на всё и вся, напихать утеплителя в полости стропильной конструкции, запаковать все и терпеть потеки конденсата по стенам.

Простите, что грубо, но как есть...

  • Лайк 2
Посилання на коментар
Поділитися на інших сайтах

Ситуация мягко говоря не фонтан. Я бы Вам посоветовал в данной ситуации однозначно отходить от традиционной технологии утепления и искать альтернативные. Один из вариантов задуть все полиуретаном. В Днепре есть фирма Уритансервис. Я с ними когда-то общался они мне показывали примеры своих работ, в том числе и мансардные кровли. Прямо по обрешетке все это дело задувается полиуретановым составом и получается "заводской сендвич". Правда, в Вашем случае, возникает вопрос по гидробарьеру, лучше бы его вообще не было. Но в любом случае пригласите специалиста такого профиля, они должны помочь без капитальной переделки кровли.
  • Лайк 1
Посилання на коментар
Поділитися на інших сайтах

Ситуация мягко говоря не фонтан. Я бы Вам посоветовал в данной ситуации однозначно отходить от традиционной технологии утепления и искать альтернативные. Один из вариантов задуть все полиуретаном. В Днепре есть фирма Уритансервис. Я с ними когда-то общался они мне показывали примеры своих работ, в том числе и мансардные кровли. Прямо по обрешетке все это дело задувается полиуретановым составом и получается "заводской сендвич". Правда, в Вашем случае, возникает вопрос по гидробарьеру, лучше бы его вообще не было. Но в любом случае пригласите специалиста такого профиля, они должны помочь без капитальной переделки кровли.

К вопросу крыши все равно придется вернуться. Ваш вариант, хоть и временный, но все же выход :good:

  • Лайк 1
Посилання на коментар
Поділитися на інших сайтах

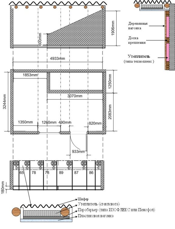
Подскажите пожалуйста, я делаю в надподвальной постройке летнюю комнату, утепление потолка и стен планирую согласно чертежа который я сделал (прилагаеться), посмотрите и подскажите ошибки и советы! заранее благодарен!

1311625399_.thumb.JPG.8588a2622ee75a7763163e3f551ab786.JPG

Посилання на коментар
Поділитися на інших сайтах

Утеплення даху ("пиріг"):

1. Шифер

2. Гідробар"єр (між гідробар"єром і мінватою залишити вентиляційний зазор 3см)

3. Утеплювач ( скловату замінити на базальтову Rockmin)

4. Паробар"єр

5. Маяки

6. Вагонка

 

Утеплення стін ( "пиріг")

1. Вагонка

2. Маяки

3. Вітробар"єр

4. Утеплювач

  • Лайк 2
Посилання на коментар
Поділитися на інших сайтах

Створіть акаунт або увійдіть у нього для коментування

Ви маєте бути користувачем, щоб залишити коментар

Створити акаунт

Зареєструйтеся для отримання акаунта. Це просто!

Зареєструвати акаунт

Увійти

Вже зареєстровані? Увійдіть тут.

Увійти зараз
×
×
  • Створити...