Скрипка Александр Опубліковано: 14 липня 2011 Поділитись Опубліковано: 14 липня 2011 сами склоняемся ко второму варианту Посилання на коментар Поділитися на інших сайтах More sharing options...
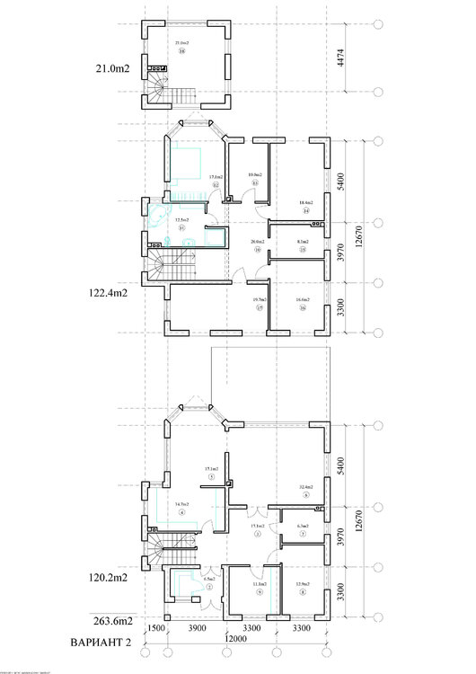
vickov Опубліковано: 15 липня 2011 Поділитись Опубліковано: 15 липня 2011 сами склоняемся ко второму варианту Смотрел только 2-й вариант. Ничего плохого сказать не могу, но не бюджетный вариант, с размахом. Сколько же тут жильцов будет жить? Кухня, столовая, гостинная только 64 метра. №9 и №8 - это, как я понимаю, спальни или гостевая и кабинет? При такой площади 1-го этажа можно было бы предусмотреть какие-то кладовки, гардероб. Хотя, вижу, что это предусмотрено на 2-м, но на 1-м удобнее. Мне, честно говоря, и одного этажа по площади хватило бы. Посилання на коментар Поділитися на інших сайтах More sharing options...
Скрипка Александр Опубліковано: 15 липня 2011 Автор Поділитись Опубліковано: 15 липня 2011 Смотрел только 2-й вариант. Ничего плохого сказать не могу, но не бюджетный вариант, с размахом. Сколько же тут жильцов будет жить? Кухня, столовая, гостинная только 64 метра. №9 и №8 - это, как я понимаю, спальни или гостевая и кабинет? При такой площади 1-го этажа можно было бы предусмотреть какие-то кладовки, гардероб. Хотя, вижу, что это предусмотрено на 2-м, но на 1-м удобнее. Мне, честно говоря, и одного этажа по площади хватило бы. Спасибо за комментарий 9 гостевая ,8 микс постирочной гардеробной и рабочей комнаты(закрылся включил утюг и телек и медитируй) а площадь немаленькая но уже 4 детей и в перспективе пятый плюс бабушки дедушки постоянно приезжают гости и вот для этого случая когда все вместе собираются есть 3й этаж (кабинет в башенке ) где от всей этой кодлы можно отдохнуть%) а хлам можно и в подвале хранить там еще метров 60получится Посилання на коментар Поділитися на інших сайтах More sharing options...
ИгорьН Опубліковано: 15 липня 2011 Поділитись Опубліковано: 15 липня 2011 Вариант 2 практичней, но спальня 17м на 2 эт а холл 20?. Я бы поменял местами жилые помещения с хоз. Надо стараться хоз. располагать ближе к внешним С-З стенам, меньше затрат на отопление. Хотя, с таким размахом затраты на отопление Вас вообще не должны интересовать. Бюджет навскидку 250-300 тыс. Построите дешевле-мои удивления и поздравления Посилання на коментар Поділитися на інших сайтах More sharing options...
Скрипка Александр Опубліковано: 15 липня 2011 Автор Поділитись Опубліковано: 15 липня 2011 Вариант 2 практичней, но спальня 17м на 2 эт а холл 20?. Я бы поменял местами жилые помещения с хоз. Надо стараться хоз. располагать ближе к внешним С-З стенам, меньше затрат на отопление. Хотя, с таким размахом затраты на отопление Вас вообще не должны интересовать. Бюджет навскидку 250-300 тыс. Построите дешевле-мои удивления и поздравления Ну в спальне 2чела спит а вот в холле одновременно и4 могут столкнуться когда утром все одновременно собираются на работу в школы и садики Посилання на коментар Поділитися на інших сайтах More sharing options...
ИгорьН Опубліковано: 16 липня 2011 Поділитись Опубліковано: 16 липня 2011 в холле одновременно и4 могут столкнуться когда утром все одновременно собираются на работу в школы и садики Тогда категорически не хватает +1 а то и 2 с/уз, на плане вижу только 1, иначе все как раз и будут переминаться с ноги на ногу в очереди в холле. Посилання на коментар Поділитися на інших сайтах More sharing options...
Скрипка Александр Опубліковано: 16 липня 2011 Автор Поділитись Опубліковано: 16 липня 2011 Тогда категорически не хватает +1 а то и 2 с/уз, на плане вижу только 1, иначе все как раз и будут переминаться с ноги на ногу в очереди в холле. На втором этаже два санузла и один на первом ,у нас так было в подмосковье ,всем размещаются без проблем по тубзикам Посилання на коментар Поділитися на інших сайтах More sharing options...
apxitektop.s Опубліковано: 16 липня 2011 Поділитись Опубліковано: 16 липня 2011 я бы оценивал в комплексе - с фасадами, а то не все объемно-планировочные решения понятны Посилання на коментар Поділитися на інших сайтах More sharing options...
Скрипка Александр Опубліковано: 16 липня 2011 Автор Поділитись Опубліковано: 16 липня 2011 я бы оценивал в комплексе - с фасадами, а то не все объемно-планировочные решения понятны Фасады будут ...чуть позже ,архитектор уехал в отпуск Посилання на коментар Поділитися на інших сайтах More sharing options...
Скрипка Александр Опубліковано: 31 серпня 2011 Автор Поділитись Опубліковано: 31 серпня 2011 поморочил голову Юре (apxitektop), пообщались с его товарищем Глебом , очень интересные и креативные ребята .... оригинальные проекты , но к сожалению не сложилось ... (Юра прошу прощения за отобранное время) и вот сегодня родился такой эскиз фасада Посилання на коментар Поділитися на інших сайтах More sharing options...
martin_al Опубліковано: 31 серпня 2011 Поділитись Опубліковано: 31 серпня 2011 Фасады "А-ля девяностые". Ручная графика очень в тему, возвращает во времена когда наше общество было еще не компьютеризировано. ;) Каково функциональное назначение помещения в башне на третьем этаже? Посилання на коментар Поділитися на інших сайтах More sharing options...
Ольга В Опубліковано: 31 серпня 2011 Поділитись Опубліковано: 31 серпня 2011 Фасады "А-ля девяностые". Для меня-симпатичные фасады. Смотрю, сейчас архитекторы больше тяготеют к современной функциональной архитектуре. Посилання на коментар Поділитися на інших сайтах More sharing options...
Скрипка Александр Опубліковано: 31 серпня 2011 Автор Поділитись Опубліковано: 31 серпня 2011 Фасады "А-ля девяностые". Ручная графика очень в тему, возвращает во времена когда наше общество было еще не компьютеризировано. ;) Каково функциональное назначение помещения в башне на третьем этаже? Там будет кабинет с большой Толстой дверью кожаным диваном и камином Посилання на коментар Поділитися на інших сайтах More sharing options...
martin_al Опубліковано: 31 серпня 2011 Поділитись Опубліковано: 31 серпня 2011 Для меня-симпатичные фасады. Смотрю, сейчас архитекторы больше тяготеют к современной функциональной архитектуре. Не все архитекторы функционалисты. На западе их чуть больше, а вот в Украине........ Там будет кабинет с большой Толстой дверью кожаным диваном и камином Третьи этажи индивидуальных домов, как показывает практика, посещаются крайне редко, даже если это будет очень уютный кабинет с дорогой кожаной мебелью, письменным столом из массива красного дерева и массой раритетных фолиантов. Посилання на коментар Поділитися на інших сайтах More sharing options...
Скрипка Александр Опубліковано: 31 серпня 2011 Автор Поділитись Опубліковано: 31 серпня 2011 Не все архитекторы функционалисты. На западе их чуть больше, а вот в Украине........ Третьи этажи индивидуальных домов, как показывает практика, посещаются крайне редко, даже если это будет очень уютный кабинет с дорогой кожаной мебелью, письменным столом из массива красного дерева и массой раритетных фолиантов. значит у нас разная практика , поверьте имея 4х детей на третий этаж я буду ходить с огромным удовольствием . когда жили в двухэтажном доме третьего иногда не хватало Посилання на коментар Поділитися на інших сайтах More sharing options...
martin_al Опубліковано: 31 серпня 2011 Поділитись Опубліковано: 31 серпня 2011 Третий этаж в основном применяется в условиях уплотненной застройки, когда маленькая площадь участка и очень часто в таунхаусах. но в новом строительстве, еще и при такой общей площади дома это не есть удобно. При грамотном зонировании можно организовать пространство так, что Вы не будете пересекаться с домочадцами если в этом возникает необходимость. А что касается практики, то домовладельцы, построившие себе трехэтажные сундучки+цоколь в конце девяностых, сейчас заказывают двухэтажные дома, а старые выставляют на продажу. Вот пример: Дом на переднем плане тот в который собираются переехать после того как достоят. А дом на заднем плане (в нем они живут сейчас) выставлен на продажу. Посилання на коментар Поділитися на інших сайтах More sharing options...
tort Опубліковано: 1 вересня 2011 Поділитись Опубліковано: 1 вересня 2011 Третий этаж в основном применяется в условиях уплотненной застройки, когда маленькая площадь участка и очень часто в таунхаусах. но в новом строительстве, еще и при такой общей площади дома это не есть удобно. При грамотном зонировании можно организовать пространство так, что Вы не будете пересекаться с домочадцами если в этом возникает необходимость. А что касается практики, то домовладельцы, построившие себе трехэтажные сундучки+цоколь в конце девяностых, сейчас заказывают двухэтажные дома, а старые выставляют на продажу. Вот пример: Дом на переднем плане тот в который собираются переехать после того как достоят. А дом на заднем плане (в нем они живут сейчас) выставлен на продажу. Весьма частный пример. Делают и три этажа и не по причине плотной застройки. И живут в них. А конкретно по данному примеру на картинке, сразу видно что дома на заднем плане одинаковы и строились на продажу изначально по одному типовому проекту. не так ли, Александр? Посилання на коментар Поділитися на інших сайтах More sharing options...
martin_al Опубліковано: 1 вересня 2011 Поділитись Опубліковано: 1 вересня 2011 А конкретно по данному примеру на картинке, сразу видно что дома на заднем плане одинаковы и строились на продажу изначально по одному типовому проекту. не так ли, Александр? Да так и есть. Их там целая улица подобных. Народ со временем кое как причесал фасады, чтобы уж совсем близнецами не казались. И площадь у этих домиков под 600м2. Посилання на коментар Поділитися на інших сайтах More sharing options...
marrio Опубліковано: 9 вересня 2011 Поділитись Опубліковано: 9 вересня 2011 (змінено) План не плохой.Какой архитектор делал? Змінено 9 вересня 2011 користувачем apxitektop Реклама! Посилання на коментар Поділитися на інших сайтах More sharing options...
Рекомендовані повідомлення
Створіть акаунт або увійдіть у нього для коментування
Ви маєте бути користувачем, щоб залишити коментар
Створити акаунт
Зареєструйтеся для отримання акаунта. Це просто!
Зареєструвати акаунтУвійти
Вже зареєстровані? Увійдіть тут.
Увійти зараз