Vadim79 Опубліковано: 27 липня 2011 Поділитись Опубліковано: 27 липня 2011 вот планирую начинать в конце августа. так что жду ваших мнений Посилання на коментар Поділитися на інших сайтах More sharing options...
вторик Опубліковано: 27 липня 2011 Поділитись Опубліковано: 27 липня 2011 там где нормально, там нормально. а где узко, наверное сами видите что узко. Посилання на коментар Поділитися на інших сайтах More sharing options...
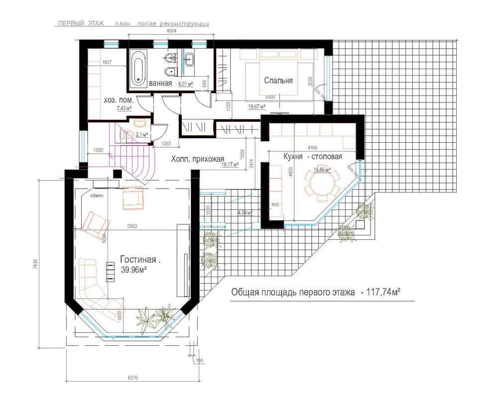
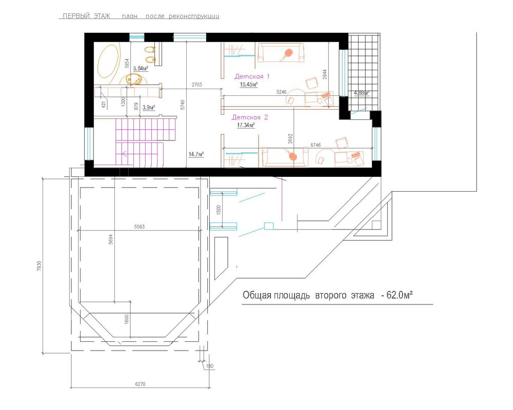
seyvalter Опубліковано: 28 липня 2011 Поділитись Опубліковано: 28 липня 2011 Якщо бажаєте щоб вам щось по ділу підказали - то тут катастрофічно бракує розмірів та інфи про плановані матеріали (які стіни? яке перекриття і т.д.) Посилання на коментар Поділитися на інших сайтах More sharing options...
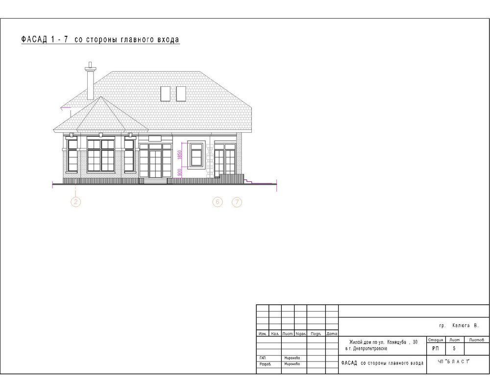
seyvalter Опубліковано: 28 липня 2011 Поділитись Опубліковано: 28 липня 2011 Пардон. а комин що на фасаді - він ВІД ЧОГО? і де вентканали з кухні та сан.вузлів? Посилання на коментар Поділитися на інших сайтах More sharing options...
vickov Опубліковано: 28 липня 2011 Поділитись Опубліковано: 28 липня 2011 С входом в спальню на 1-м этаже намудрили. И соглашусь, что некоторые помещения получились узкими. Посилання на коментар Поділитися на інших сайтах More sharing options...
Vadim79 Опубліковано: 28 липня 2011 Автор Поділитись Опубліковано: 28 липня 2011 это пока наброски поэтому ни каналов вент нету тут токо планировка а спальню на первом этаже изначально хотелось отделить от общей зоны Посилання на коментар Поділитися на інших сайтах More sharing options...
Artyomovets Опубліковано: 28 липня 2011 Поділитись Опубліковано: 28 липня 2011 а с чем связаны неровности дома? участок неровной формы? а для того, чтобы подсказать проект - надо понимать ваши цели. сколько проживающих, чего хотите в принципе. Посилання на коментар Поділитися на інших сайтах More sharing options...
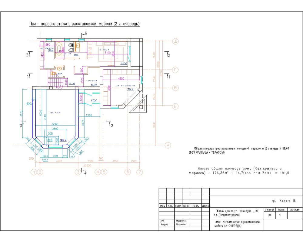
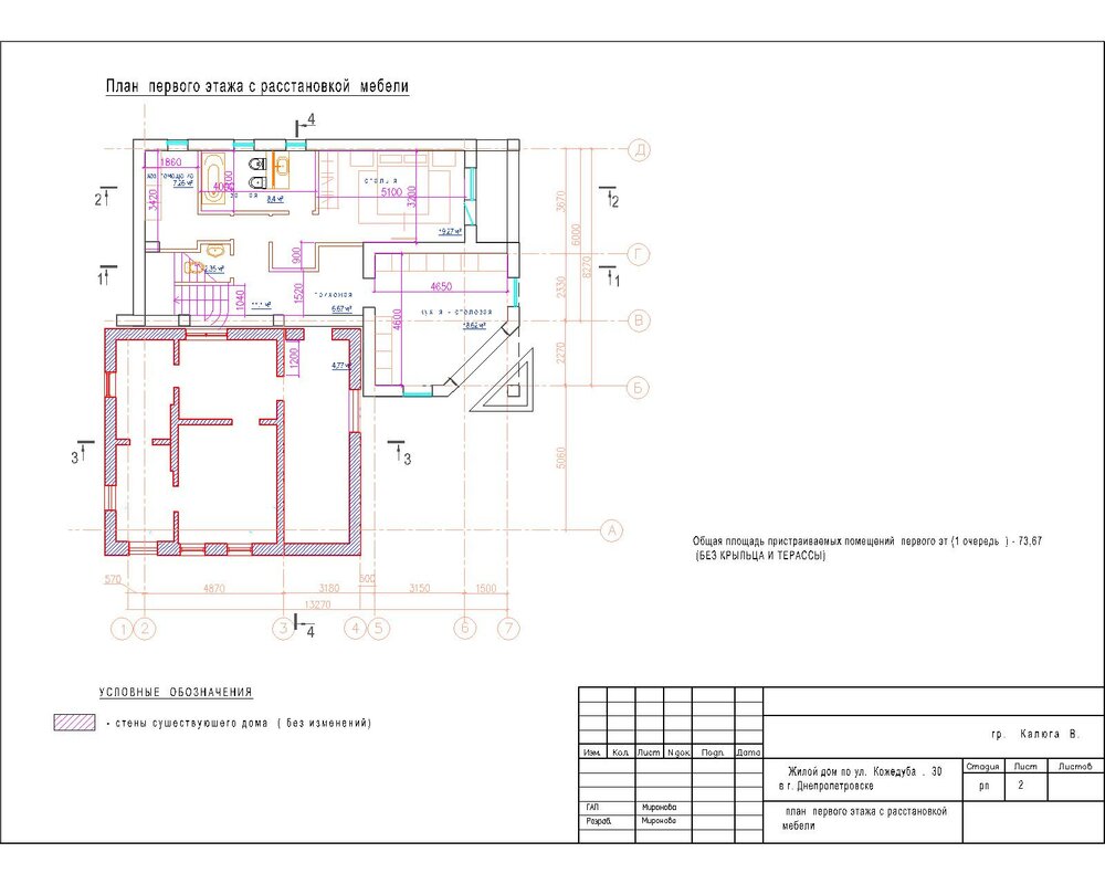
Vadim79 Опубліковано: 28 липня 2011 Автор Поділитись Опубліковано: 28 липня 2011 Дом будет стороится в 2 этапа так как на участке стоит старый маленький но жилой дом ламать его пока нехочу так ка в жизни всякое бывает. поэтому строим первым этапом 2х этажный корпус с отделкой в притык к старому дому потом убираем старый и строим гостинную. дом хочу именно в этом месте поэтому вот такие дела... Посилання на коментар Поділитися на інших сайтах More sharing options...
Рекомендовані повідомлення
Створіть акаунт або увійдіть у нього для коментування
Ви маєте бути користувачем, щоб залишити коментар
Створити акаунт
Зареєструйтеся для отримання акаунта. Це просто!
Зареєструвати акаунтУвійти
Вже зареєстровані? Увійдіть тут.
Увійти зараз