putsko Опубліковано: 11 червня 2008 Поділитись Опубліковано: 11 червня 2008 Полгода назад заказал расчет под собственный проект. Вот что получилось. Посилання на коментар Поділитися на інших сайтах More sharing options...
putsko Опубліковано: 11 червня 2008 Автор Поділитись Опубліковано: 11 червня 2008 Одноэтажный домик - старое строение, трех-этажная часть пристройка. До майских праздников завершили фундамент. Фото земляной выборки: Посилання на коментар Поділитися на інших сайтах More sharing options...
putsko Опубліковано: 12 червня 2008 Автор Поділитись Опубліковано: 12 червня 2008 фундамент. геодезию не делал. грунт - сухой песок. Посилання на коментар Поділитися на інших сайтах More sharing options...
putsko Опубліковано: 12 червня 2008 Автор Поділитись Опубліковано: 12 червня 2008 готовый фундамент. по первоначальному расчету были блоки, но от них пришлось отказаться - некуда было загонять кран. пересчитали на монолит. так и сделали. Посилання на коментар Поділитися на інших сайтах More sharing options...
putsko Опубліковано: 12 червня 2008 Автор Поділитись Опубліковано: 12 червня 2008 завезенный материал: пеноблоки-27куб.м, и кирпич - 4000 шт. пеноблоки будут класть на клей Посилання на коментар Поділитися на інших сайтах More sharing options...
AНДРЮША Опубліковано: 13 червня 2008 Поділитись Опубліковано: 13 червня 2008 Меня терзают смутные сомнения,что положить этот пеноблок на клей будет очень трудно. Посилання на коментар Поділитися на інших сайтах More sharing options...
putsko Опубліковано: 13 червня 2008 Автор Поділитись Опубліковано: 13 червня 2008 Меня терзают смутные сомнения,что положить этот пеноблок на клей будет очень трудно. как тут кто-то сказал - не бывает плохого материала, бывают плохие мастера! посмотрим, через пару дней должны начать кладку. Посилання на коментар Поділитися на інших сайтах More sharing options...
Alsu Опубліковано: 15 червня 2008 Поділитись Опубліковано: 15 червня 2008 А как собираетесь скреплять пристройку с домом? Посилання на коментар Поділитися на інших сайтах More sharing options...
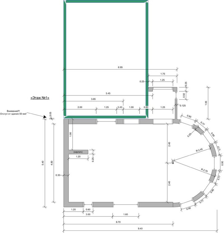
putsko Опубліковано: 15 червня 2008 Автор Поділитись Опубліковано: 15 червня 2008 А как собираетесь скреплять пристройку с домом? пристройка имеет свою собственную стену, идущую вдоль стены старого дома - с зазором 50мм - прораб предлагал соединять арматурными штырями с шагом 70-100см, но мне кажется что это лишнее. фундамент дома и пристройки получился связанным. Посилання на коментар Поділитися на інших сайтах More sharing options...
putsko Опубліковано: 3 липня 2008 Автор Поділитись Опубліковано: 3 липня 2008 уложены первые кирпичи - цоколь в полтора кирпича гидроизоляция - рубероид, снизу и сверху цоколя Посилання на коментар Поділитися на інших сайтах More sharing options...
putsko Опубліковано: 4 липня 2008 Автор Поділитись Опубліковано: 4 липня 2008 выложены стены первого этажа до окон. Посилання на коментар Поділитися на інших сайтах More sharing options...
AНДРЮША Опубліковано: 4 липня 2008 Поділитись Опубліковано: 4 липня 2008 Ну и как с клеем? Посилання на коментар Поділитися на інших сайтах More sharing options...
putsko Опубліковано: 4 липня 2008 Автор Поділитись Опубліковано: 4 липня 2008 Ну и как с клеем? кладут блоки на клей - вроде вопросов не возникало. плоскость получается по уровню. швы, конечно, не везде одинаковые - размеры блока гуляют на несколько мм. Посилання на коментар Поділитися на інших сайтах More sharing options...
putsko Опубліковано: 9 липня 2008 Автор Поділитись Опубліковано: 9 липня 2008 прошли еще пару рабочих дней - приблизились к перемычкам и армапоясу Посилання на коментар Поділитися на інших сайтах More sharing options...
Chiara Опубліковано: 13 липня 2008 Поділитись Опубліковано: 13 липня 2008 пристройка имеет свою собственную стену, идущую вдоль стены старого дома - с зазором 50мм - прораб предлагал соединять арматурными штырями с шагом 70-100см, но мне кажется что это лишнее. фундамент дома и пристройки получился связанным. я не конструктор, конечно, но две стенки хорошо, - но переходы м-ду домами ведь будут,- не порвет ли их? я б соединяла б штырями. И как получился фундамент нового и старого связанным? Вы загоняли в старый фундамент арматуру? по глубине они одинаковые или Вы подливали фундамент под старый? Если фундаменты связаны, зачем Вы делали ДВЕ стены? сэкономили на штырях и выложили целую стенку (материалы и работа) Посилання на коментар Поділитися на інших сайтах More sharing options...
putsko Опубліковано: 14 липня 2008 Автор Поділитись Опубліковано: 14 липня 2008 Chiara - переходы между стоениями конечно будут, но вот почему их "порвет" я не совсем понимаю!? если ведется речь о температурных изменениях линейных размеров стен, то никакие штыри этому не помешаю! - действительно, новый фундамент подливался под старый, арматурой их не соединяли, так как стенка старого фундамента имеет очень (даже очень) не ровную поверхность (видимо его отливали без опалубки, выковап в земле троншею) - а две стены получились из-за то, что перекрытие первого этажа невозможно было ложить на стену старого строения по конструктивным соображениям. - предполагаю, что между строениями могут возникать трещины, но так как планирую делать внутреннюю отделку полностью деревом, то скорее всего визуальное отоброжение этой проблемы будет минимальным! Посилання на коментар Поділитися на інших сайтах More sharing options...
putsko Опубліковано: 19 липня 2008 Автор Поділитись Опубліковано: 19 липня 2008 по кирпичной кладке прошлись клеем цоколь в два слоя гидрозитом Посилання на коментар Поділитися на інших сайтах More sharing options...
putsko Опубліковано: 19 липня 2008 Автор Поділитись Опубліковано: 19 липня 2008 перекрытие: брус, сосна, 150х200(h) с шагом 800мм Посилання на коментар Поділитися на інших сайтах More sharing options...
putsko Опубліковано: 19 липня 2008 Автор Поділитись Опубліковано: 19 липня 2008 кстати, вспомнил, что на этапе проектирования сделал бумажный макет 1:32, это очень помогло для визуального представления будущего строения Посилання на коментар Поділитися на інших сайтах More sharing options...
mx Опубліковано: 19 липня 2008 Поділитись Опубліковано: 19 липня 2008 а как вентиляцию и отопление думаете устраивать? Посилання на коментар Поділитися на інших сайтах More sharing options...
putsko Опубліковано: 20 липня 2008 Автор Поділитись Опубліковано: 20 липня 2008 а как вентиляцию и отопление думаете устраивать? -вентиляцию собираюсь делать на естественном воздухообмене через несколько приточных и отточных отверстий, плюс принудительная вентиляция кухни и ванной комнаты. -отопление газовыми конвекторами, но до этого еще далеко - начну делать не раньше следующей весны. Посилання на коментар Поділитися на інших сайтах More sharing options...
putsko Опубліковано: 31 липня 2008 Автор Поділитись Опубліковано: 31 липня 2008 (змінено) коробка второго этажа закончена, как и не первом этаже перемычки над практически всеми окнами заливали вместе с армопоясом. выпущенная катанка (D6мм) из армопояса для крепления мауэрлата. Змінено 31 липня 2008 користувачем putsko Посилання на коментар Поділитися на інших сайтах More sharing options...
putsko Опубліковано: 8 серпня 2008 Автор Поділитись Опубліковано: 8 серпня 2008 еще пару фото. строители ушли на недельный отпуск - вернуться, начнут делать крышу Посилання на коментар Поділитися на інших сайтах More sharing options...
КОТИК Опубліковано: 9 серпня 2008 Поділитись Опубліковано: 9 серпня 2008 Здравствуйте,putsko. Поделитесь,пожалуйста,координатами проектировщиков и строителей.Ломаю голову почти над аналогичной проблемой,опиал в ветке www.stroimdom.com.ua/forum/showthread.php?t=8016 Интересно,сколько стоил проект/расчёт. А сколько работа/материалы. Буду признателен за ответ. Посилання на коментар Поділитися на інших сайтах More sharing options...
putsko Опубліковано: 11 серпня 2008 Автор Поділитись Опубліковано: 11 серпня 2008 КОТИК проект делали мне "по знакомству" в одной проектной фирме, в принципе они такими штуками не занимаются. делали долго. за конструкторскую часть: фундамент, пояса, перекрытия, крыша, лестницы отдал 500. в итоге половину сам переделывал - благо образования хватает. так что с проектировщикам ине помогу. У строителей спрошу, если разрешат в личку сброшу их координаты. Посилання на коментар Поділитися на інших сайтах More sharing options...
Рекомендовані повідомлення
Створіть акаунт або увійдіть у нього для коментування
Ви маєте бути користувачем, щоб залишити коментар
Створити акаунт
Зареєструйтеся для отримання акаунта. Це просто!
Зареєструвати акаунтУвійти
Вже зареєстровані? Увійдіть тут.
Увійти зараз