Gall Опубліковано: 15 серпня 2011 Поділитись Опубліковано: 15 серпня 2011 Есть 50000грн на черепицу и есть вот такой проект - www.budstar.com.ua/cot2_290.htm (по проектной документации площадь крыши 280кв.м.) С какой черепицей можно вложиться в такой бюджет? и что посоветуете? Посилання на коментар Поділитися на інших сайтах More sharing options...
VillaDeLux (ex Акро) Опубліковано: 15 серпня 2011 Поділитись Опубліковано: 15 серпня 2011 Что именно будет включено в бюджет? Лишнее удалите: лесоматериалы для стропил + крепёж кровельное покрытие + обрешётка+гидроизоляция теплоизоляция+пароизоляция подшивка карнизов водосточная система Если вы рассчитываете на всё скопом то у вас не хватит денег даже на половину крыши из шифера. Посилання на коментар Поділитися на інших сайтах More sharing options...
Gall Опубліковано: 15 серпня 2011 Автор Поділитись Опубліковано: 15 серпня 2011 кровельное покрытие+гидроизоляция водосточная система Посилання на коментар Поділитися на інших сайтах More sharing options...
VillaDeLux (ex Акро) Опубліковано: 15 серпня 2011 Поділитись Опубліковано: 15 серпня 2011 Не хватит даже на дешёвую битумку без водостока. Можно потянуть самую недорогую металлочерепицу но не резон из за сомнительнго качества и большой отходности. Крыша ведь сложная Посилання на коментар Поділитися на інших сайтах More sharing options...
Gall Опубліковано: 15 серпня 2011 Автор Поділитись Опубліковано: 15 серпня 2011 Зайдем с другой стороны :D Метало-черепицу не вижу смысла использовать из-за большой части отходов. Остается битумная и.... полимерка... кто-то может озвучить цены на такую крышу? Посилання на коментар Поділитися на інших сайтах More sharing options...
liderbud Опубліковано: 15 серпня 2011 Поділитись Опубліковано: 15 серпня 2011 можно и в металлочерепицу вложиться хорошего качества, с водосточкой и гидроизоляцией чертеж дайте) Посилання на коментар Поділитися на інших сайтах More sharing options...
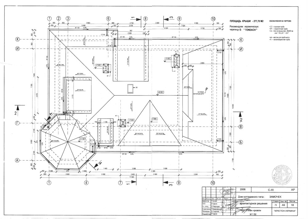
Gall Опубліковано: 15 серпня 2011 Автор Поділитись Опубліковано: 15 серпня 2011 добавил. Спасибо. Посилання на коментар Поділитися на інших сайтах More sharing options...
РУФ Опубліковано: 15 серпня 2011 Поділитись Опубліковано: 15 серпня 2011 примерный расчет по мч материал матовый полиестр, европейское сырье 0,5мм (Германия, Бельгия) сумма по основному материалу из расчета 300м.кв. от 19500 до 22000 грн. зависит от вида черепицы. комплектовка коньки, торцевые, ендовые, капельник и пр. от 7000 до 10000 грн. водосток до 10000 грн. ( если ПВХ из неочень дорогих) в оставшиеся 10000 грн, вполне войдут менбрана, колпаки на дымоход. из битумки хорошего качества ( как для примера Катепал) 26700- 28500 сама битумка(стандартные нарезки и цвета ОСБ плита 13000-14000 грн. комплектовка подкладочные слоя, торцевые , капельники, ендовые, аэраторы и пр. от 10000 грн. уже больше 50000 грн. полмерпещанку несоветую примерно такой порядок цифр. это если по быстрому, для принятия решения по материалу. Посилання на коментар Поділитися на інших сайтах More sharing options...
liderbud Опубліковано: 15 серпня 2011 Поділитись Опубліковано: 15 серпня 2011 а где это у вас полиэстер матовый германия 0,5 по 65грн?? Посилання на коментар Поділитися на інших сайтах More sharing options...
immigrant Опубліковано: 15 серпня 2011 Поділитись Опубліковано: 15 серпня 2011 Считал такую кровлю. Отличнейший дом. Но есть много сложный узлов, кот. Тянут удорожани: юбка, 3 "скворечника", башня с ее ендовами, маленький скат над кровлей гаража, пару мансардных окон (без них здесь никак). Здесь на Ваш бюдет только металл, но есть большое НО: для металла много сложных узлов - нужно граматно монтировать. И может не получиться, как в керамике. Но выход есть всегда. Звоните - найдем выход! Посилання на коментар Поділитися на інших сайтах More sharing options...
РУФ Опубліковано: 16 серпня 2011 Поділитись Опубліковано: 16 серпня 2011 а где это у вас полиэстер матовый германия 0,5 по 65грн?? А Вы купить хотите? Посилання на коментар Поділитися на інших сайтах More sharing options...
DEN24 Опубліковано: 16 серпня 2011 Поділитись Опубліковано: 16 серпня 2011 а где это у вас полиэстер матовый германия 0,5 по 65грн?? Не одним LIDERом едины... Посилання на коментар Поділитися на інших сайтах More sharing options...
Васян Опубліковано: 16 серпня 2011 Поділитись Опубліковано: 16 серпня 2011 а че Вы копья ломаете 50 000 грн / 280 м2 получим 178 грн/м2 кто возьмется за эту кровлю:D этого только за работу с натяжкой хватит Посилання на коментар Поділитися на інших сайтах More sharing options...
Александр13 Опубліковано: 16 серпня 2011 Поділитись Опубліковано: 16 серпня 2011 Найти Б/у профнастил со стройки, снять со старого дома оцинкованую водосточку.Часть денег отдать милиции чтоб не пристегивались где взял дорогой материал, на остальные -нанять на вокзале роботяг. Посилання на коментар Поділитися на інших сайтах More sharing options...
Gall Опубліковано: 16 серпня 2011 Автор Поділитись Опубліковано: 16 серпня 2011 а че Вы копья ломаете 50 000 грн / 280 м2 получим 178 грн/м2 кто возьмется за эту кровлю:D этого только за работу с натяжкой хватит про работу речь не идет. Я пытаюсь определится только с материалом. Посилання на коментар Поділитися на інших сайтах More sharing options...
Васян Опубліковано: 17 серпня 2011 Поділитись Опубліковано: 17 серпня 2011 про работу речь не идет. Я пытаюсь определится только с материалом. ну тогда за 178 грн на метр у Вас просто бешенный выбор. Но на материалы для кровли все равно не хватит поэтому ставьте правильно задачу. Посилання на коментар Поділитися на інших сайтах More sharing options...
Юлия*** Опубліковано: 17 серпня 2011 Поділитись Опубліковано: 17 серпня 2011 Сразу хочу сказать, что проект дома - очень зачетный!!! Сами бредили этим "Замочком", но из за того что мало комнат - остановились на другом варианте - "караван-сарае"))) По кровле. Вот совсем недавно парилась над тем, какой материал все-таки выбрать: металлочерепицу или битумку. Остановилась на битумке GAF. От МЧ отговорили, сказали, что много отходов будет. Но если вас это не пугает, то МЧ значительно дешевле битумной - это факт. Мне прислали ценовое предложение на Арселор(матовый полиэстер), так вот там как раз можно договориться по материалам за 170 грн./кв.м Обращайтесь. Дам вам контакты) Посилання на коментар Поділитися на інших сайтах More sharing options...
OHRIM Опубліковано: 17 серпня 2011 Поділитись Опубліковано: 17 серпня 2011 Можно попробовать вложиться с Руфлекс Минт - новинка,представленна Руфлекс(Катепал) Посилання на коментар Поділитися на інших сайтах More sharing options...
Prime A Опубліковано: 17 серпня 2011 Поділитись Опубліковано: 17 серпня 2011 Можно попробовать вложиться с Руфлекс Минт - новинка,представленна Руфлекс(Катепал) Ну, что же ты, дорогой товарищ, потребителя в обман вводишь? Руфлекс Минт - не Катепал, Руфлекс Минт - даже не финский продукт. Руфлекс Минт на Украине - это даже не то, что Руфлекс Минт в России, это новое название польской черепицы... 8-) Лучше НЕ ПРОБУЙТЕ, все равно в 50 000 не вложитесь. Посилання на коментар Поділитися на інших сайтах More sharing options...
Evgenich Опубліковано: 18 серпня 2011 Поділитись Опубліковано: 18 серпня 2011 Мне прислали ценовое предложение на Арселор(матовый полиэстер), так вот там как раз можно договориться по материалам за 170 грн./кв.м Обращайтесь. Дам вам контакты) Мы делаем такое счастье за 74 грн/кв.м. Посилання на коментар Поділитися на інших сайтах More sharing options...
Uteplitel Опубліковано: 18 серпня 2011 Поділитись Опубліковано: 18 серпня 2011 Металлочерепица Аrcelor Millal Польша 70грн/м.кв Словакия - 66грн/м.кв Посилання на коментар Поділитися на інших сайтах More sharing options...
Юлия*** Опубліковано: 18 серпня 2011 Поділитись Опубліковано: 18 серпня 2011 Мы делаем такое счастье за 74 грн/кв.м. Я имела ввиду как говорится "весь пирог", не стоимость только МЧ) Посилання на коментар Поділитися на інших сайтах More sharing options...
Юлия*** Опубліковано: 18 серпня 2011 Поділитись Опубліковано: 18 серпня 2011 Металлочерепица Аrcelor Millal Польша 70грн/м.кв Словакия - 66грн/м.кв Это же стоимость только самой черепицы? А девушке нужно вложиться "под ключ" за 50000 грн, если я правильно поняла. Посилання на коментар Поділитися на інших сайтах More sharing options...
KMC-Lidiya Опубліковано: 18 серпня 2011 Поділитись Опубліковано: 18 серпня 2011 Есть 50000грн на черепицу и есть вот такой проект - www.budstar.com.ua/cot2_290.htm (по проектной документации площадь крыши 280кв.м.) С какой черепицей можно вложиться в такой бюджет? и что посоветуете? Я конечно очень извиняюсь... Но вот у меня как-то так получается. Шинглас серия Ультра (например Джайв, не самая плохая черепица) - 75,70 за кв. Итого: 21196 (ну пусть с запасом 22 тыс) Потом больше всего потянет ОСП (на момент продажы цена подкорректируется чуть-чуть) Кроношпан 10мм- 129,22 за лист в листе 3,125 м. кв. Итого: 90 листов ну плюс/минус - 11629,80 ну опять же пусть 12 тыс). Итаго уже 34 тыс. ну плюс/минус. Ну то есть еще пленки/гвоздики/ендовы/коньки и подкладки. И если не брать в расчет утепление кровли. То можно попробовать еще и водосток туда впихнуть.. Ну вот как-то так. Но завтра постараюсь посмотреть повнимательнее на домик. Просто времени особо вникать не было. Но точно могу сказать одно - без водостока точно впихнетесь. Посилання на коментар Поділитися на інших сайтах More sharing options...
star_a Опубліковано: 15 вересня 2011 Поділитись Опубліковано: 15 вересня 2011 Прикиньте технонеколевский шинглас Люда-молодец расчёт привела выше)))). Они собственно и с пирогом помогут! А ещё правильней взть всё в комплексе у НД шников. Напримаер у Первого дома )))))))! Шингла+плёнки+деворекс водосточка! при комплексном заказе скидку наколдуют))))Не знаю , я б сделал так! дешевле я пока придумать не могу, кроме как коллеги предложили профнастил)))) Посилання на коментар Поділитися на інших сайтах More sharing options...
Рекомендовані повідомлення
Створіть акаунт або увійдіть у нього для коментування
Ви маєте бути користувачем, щоб залишити коментар
Створити акаунт
Зареєструйтеся для отримання акаунта. Це просто!
Зареєструвати акаунтУвійти
Вже зареєстровані? Увійдіть тут.
Увійти зараз