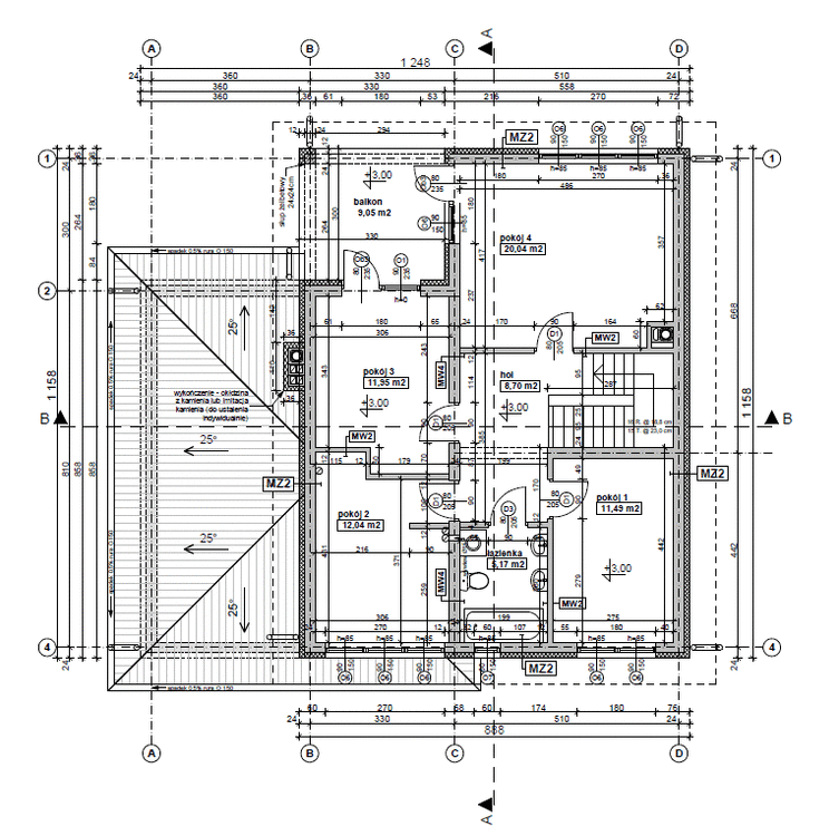
kudruha Опубліковано: 8 вересня 2011 Поділитись Опубліковано: 8 вересня 2011 всем привет! ребята, подскажите -- данного набора чертежей хватит для получения разрешения на строительство и стройпаспорта? чертежи взяты как пример комплектности все будет представлено на украинском языке и утверждено архитектором спасибо! Посилання на коментар Поділитися на інших сайтах More sharing options...
Ivirina Опубліковано: 8 вересня 2011 Поділитись Опубліковано: 8 вересня 2011 я конечно в этом совсем не разбираюсь, но всегда думала что для разрешения нужен именно проект, а не просто план разрез фасад. Посилання на коментар Поділитися на інших сайтах More sharing options...
vasso Опубліковано: 8 вересня 2011 Поділитись Опубліковано: 8 вересня 2011 всем привет! ребята, подскажите -- данного набора чертежей хватит для получения разрешения на строительство и стройпаспорта? чертежи взяты как пример комплектности все будет представлено на украинском языке и утверждено архитектором спасибо! Еще пояснительная записка, посадка дома на участке, фасады в цвете 1 Посилання на коментар Поділитися на інших сайтах More sharing options...
kudruha Опубліковано: 8 вересня 2011 Автор Поділитись Опубліковано: 8 вересня 2011 Еще пояснительная записка, посадка дома на участке, фасады в цвете ага, понял, спасибо) но по конструктиву этих пяти страниц достаточно? некоторые говорят, что достаточно проекта на эскизах Посилання на коментар Поділитися на інших сайтах More sharing options...
kudruha Опубліковано: 8 вересня 2011 Автор Поділитись Опубліковано: 8 вересня 2011 я конечно в этом совсем не разбираюсь, но всегда думала что для разрешения нужен именно проект, а не просто план разрез фасад. я тоже так думал Посилання на коментар Поділитися на інших сайтах More sharing options...
kudruha Опубліковано: 8 вересня 2011 Автор Поділитись Опубліковано: 8 вересня 2011 Еще пояснительная записка, посадка дома на участке, фасады в цвете а пояснительная записка что должна в себе содержать, не подскажете? Посилання на коментар Поділитися на інших сайтах More sharing options...
vasso Опубліковано: 8 вересня 2011 Поділитись Опубліковано: 8 вересня 2011 Я позавчера, подал документы на стройпаспорт, потребовалось: - заверенная нотариально копия госакта - копия паспорта и ИНН - заявление на изготовление стройпаспорта - еще какое то заявление по месту - эскизный проект, в составе 1 Пояснительная записка 2 Поэтажные планы 3 Фасады в осях 4. Разрезы с указанием высотности 5 3Д цветные фасады 6. Схема участка с посадкой дома и др. строений, с указанием расстояний Но могут потребовать и топографию и проект с печатью архитектора 1 Посилання на коментар Поділитися на інших сайтах More sharing options...
kudruha Опубліковано: 8 вересня 2011 Автор Поділитись Опубліковано: 8 вересня 2011 Я позавчера, подал документы на стройпаспорт, потребовалось: - заверенная нотариально копия госакта - копия паспорта и ИНН - заявление на изготовление стройпаспорта - еще какое то заявление по месту - эскизный проект, в составе 1 Пояснительная записка 2 Поэтажные планы 3 Фасады в осях 4. Разрезы с указанием высотности 5 3Д цветные фасады 6. Схема участка с посадкой дома и др. строений, с указанием расстояний Но могут потребовать и топографию и проект с печатью архитектора ага, понял а схему участка Вы собственноручно рисовали? Посилання на коментар Поділитися на інших сайтах More sharing options...
vasso Опубліковано: 8 вересня 2011 Поділитись Опубліковано: 8 вересня 2011 а пояснительная записка что должна в себе содержать, не подскажете? сейчас прикреплю, делал сам возможны ошибки, так что на свой страх и риск и схему сам рисовалПечать4.pdf 1 Посилання на коментар Поділитися на інших сайтах More sharing options...
kudruha Опубліковано: 8 вересня 2011 Автор Поділитись Опубліковано: 8 вересня 2011 сейчас прикреплю, делал сам возможны ошибки, так что на свой страх и риск и схему сам рисовал спасибо! попробую пойти Вашим путем Посилання на коментар Поділитися на інших сайтах More sharing options...
Рекомендовані повідомлення
Створіть акаунт або увійдіть у нього для коментування
Ви маєте бути користувачем, щоб залишити коментар
Створити акаунт
Зареєструйтеся для отримання акаунта. Це просто!
Зареєструвати акаунтУвійти
Вже зареєстровані? Увійдіть тут.
Увійти зараз