RAMon-off Опубліковано: 19 вересня 2011 Поділитись Опубліковано: 19 вересня 2011 строю дом со стенами в один кирпич. сейчас на этапе возведения второго (мансардного) этажа. перед перекрытием был пущен армопояс. положены панели и возводятся стены. крыша будет покрыта металочерепицей. хочется обойтись без очередного армопояса. по этому возникли вопросы: 1.Достаточно ли стены в один кирпич, перед всеми этими "мауэрлатами -стропильными выворотами"? 2. или надо как то проармировать стены? и как это сделать с минимумом затрат? в случае если крыша "легкая", можно обойтись просто обычной однокирпичной стеной? хочу избежать "граблей" так что жду конструктивные советы. и надеюсь они помогу не только мне. заранее благодарю Посилання на коментар Поділитися на інших сайтах More sharing options...
wertexan Опубліковано: 19 вересня 2011 Поділитись Опубліковано: 19 вересня 2011 1. Армопояс нужен: — для усиления стен при защите от распора крыши. — для связи крыши и стен. 2. Для защиты от распора нужен далеко не всегда. Если крыша опирается на промежуточную стену/балку, то скорее всего для этой цели не нужен. Выставте конструкцию кровли. 3. Легкая крыша как раз не аргумент. Сейчас принято делать большие свесы (и правильно), но тогда подскакивает влияние ветра. Крышу может натуральено сорвать или постоянно расшатывать узел крепления к стенам. Но связь крыши и стен можно и в этом случае выполнить без пояса: — лучше всего вертикальные "затяжки" от плит перекрытия до мауэрлата/стропил. Обычно решаются в виде "стяжек" из проволоки диаметром 6/8мм. Прячутся в маленькой штрабе. Штукатуркой бывает трудно закрыть. — В последних 4…8 рядах кладки закладываются анкера/шпильки в виде перевернутой буквы П или Г. П-образные лучше. Они защищаются от коррозии. — Примерно на 1м ниже мауэрлата (пишу по памяти) в стену закладывается закладная деталь, причем иногда это решается просто П-образной (а лучше в форме петель для З/Б конс) скобкой где-то из штыря диаметром 8…10мм. ИМХО настоящая закладная лучше. И к ней приваривается/прикручивается затяжка к мауэрлату/стропилам. Тоже нормальный вариант, но требует или проштрабить стенку или толстый слой штукатурки. Во всех случаях мет. элементы требют защиты от коррозии. Каких-то усилений стены типа армирования скорее всего не потребуется. Правда пишу виртуально не видя чертежей. Все вышенаписанное — ИМХО! 2 Посилання на коментар Поділитися на інших сайтах More sharing options...
AndyAntonov Опубліковано: 19 вересня 2011 Поділитись Опубліковано: 19 вересня 2011 Мне из какого-то старого букваря запомнилась фраза: стены в один кирпич достаточно для одно-двухэтажного жилого дома Это что касается прочности. Естестнно, теплоизоляция у такой стены никакая. Во времена этого букваря армопояса не были распостранены в частном строительстве. Посилання на коментар Поділитися на інших сайтах More sharing options...
plus Опубліковано: 19 вересня 2011 Поділитись Опубліковано: 19 вересня 2011 Во всех случаях мет. элементы требют защиты от коррозии. А насколько критична необходимость защиты от коррозии анкеров внутри кладки? Влаги под крышей в стене не будет, доступ воздуха внутрь кладки ограничен тоже. Посилання на коментар Поділитися на інших сайтах More sharing options...
RAMon-off Опубліковано: 19 вересня 2011 Автор Поділитись Опубліковано: 19 вересня 2011 1. Правда пишу виртуально не видя чертежей. спасибо wertexan строюсь по мотивам проекта www.alfaplan.com.ua/catalog/item_335/ полного проекта крыши нету, есть набросок Посилання на коментар Поділитися на інших сайтах More sharing options...
RAMon-off Опубліковано: 19 вересня 2011 Автор Поділитись Опубліковано: 19 вересня 2011 Естестнно, теплоизоляция у такой стены никакая. буду утеплять базальтовой ватой 10 см Посилання на коментар Поділитися на інших сайтах More sharing options...
wertexan Опубліковано: 19 вересня 2011 Поділитись Опубліковано: 19 вересня 2011 Это кажется. В кладке всегда будет присутствовать некоторая влажность. Небольшая, правда, но будет. Защитного слоя в растворном шве для защиты арматуры мало. Если, допустим, кирпич силикатный то плевать — щелочная среда. Но силикатный во первых редкость и во вторых плохо цепляется к раствору. Клинкер жутко дорого и не выход строго говоря ибо не дает щелочной среды. Плюс воздух в кладке есть всегда в порах. Тоесть железо будет ржаветь. Очень медленно, но будет. Скорость будет сильно зависеть от состава раствора, материала кирпичей и влажности стены. Реально железяка диаметром 8мм может проржаветь лет за 20-30 полностью. Это ИМХО, правда, и результат сильно гуляет и может быть как заметно больше, так и несколько меньше. Если вас такой срок устроит — то ничего не делайте. Как вариант внутри стены — использовать шпильки. Стандартные шпильки оцинкованы и жить должны долго. Только они немного хрупковаты. В месте сгиба нужно предварительно нагреть но так, чтобы не поплыл цинк. При нетолстом защитном шве штукатурки (несколько мм) может даже через штукатурку и финишное покрытие выступать ржавчина. Сама защита не сильно геморное мероприятие. Посилання на коментар Поділитися на інших сайтах More sharing options...
Gitan Опубліковано: 19 вересня 2011 Поділитись Опубліковано: 19 вересня 2011 Как вариант, поставить вертикальные ж/б столбики по периметру от мауэрлата до армрпояса. Посилання на коментар Поділитися на інших сайтах More sharing options...
RAMon-off Опубліковано: 19 вересня 2011 Автор Поділитись Опубліковано: 19 вересня 2011 Но связь крыши и стен можно и в этом случае выполнить без пояса: все эти действия можно выполнить уже на возведенных стенах, я правильно понял? или в процессе кладки можно предусмотреть что-то? а наличие фронтонов ( у меня их 4-ре) вносит какую то спецификацию? просто моя бригада взялась лихо... уже чуть выше окон шуруют. Посилання на коментар Поділитися на інших сайтах More sharing options...
wertexan Опубліковано: 19 вересня 2011 Поділитись Опубліковано: 19 вересня 2011 Схема в данном случае не очень удобна. Затяжка усложнит работу стропил и выйдет немаленькое сечение. Внутренних опор фактически нет. Сами мероприятия предусматриваются в процессе кладки. Если потом, то нужно сверлить анкера. Тоже в принципе нормальный вариант. 1 Посилання на коментар Поділитися на інших сайтах More sharing options...
plus Опубліковано: 19 вересня 2011 Поділитись Опубліковано: 19 вересня 2011 Реально железяка диаметром 8мм может проржаветь лет за 20-30 полностью. . Вы считаете, грунтовка существенно увеличит этот срок? Посилання на коментар Поділитися на інших сайтах More sharing options...
wertexan Опубліковано: 19 вересня 2011 Поділитись Опубліковано: 19 вересня 2011 Вы считаете, грунтовка существенно увеличит этот срок? Смотря чем. Если мне не изменяет память есть (были) специальные антикоррозионные лаки на битумной основе. Но не думаю, что это единственный вариант. Что-то конкретное подсказать не смогу. Посилання на коментар Поділитися на інших сайтах More sharing options...
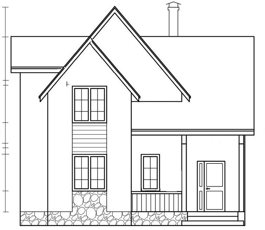
RAMon-off Опубліковано: 19 вересня 2011 Автор Поділитись Опубліковано: 19 вересня 2011 Схема в данном случае не очень удобна. Затяжка усложнит работу стропил и выйдет немаленькое сечение. Внутренних опор фактически нет. Сами мероприятия предусматриваются в процессе кладки. Если потом, то нужно сверлить анкера. Тоже в принципе нормальный вариант. спасибо за рекомендации только в этом году начал осваивать все эти строительные термины... для полноты картины выкладываю мансардный этаж с привязкой к крыше и виды фасадов. у меня в доме еще две небольшие террасы... чет прораб мой не заикался об усилении, если бы не форум схавал бы то что построили... Посилання на коментар Поділитися на інших сайтах More sharing options...
wertexan Опубліковано: 19 вересня 2011 Поділитись Опубліковано: 19 вересня 2011 (нехорошо хмыкнув) А прорабу немного того — плевать. А может просто банально не знает. Крыша не самая простая и я сильно рекомендую или сделать проект кровли или нанять ОЧЕНЬ опытных кровельщиков, способных правильно оценить ситуацию и правильно принять конструкции и нормально сделать ее. А лучше и то и другое. Просто нужно предусмотреть опирание коньковых балок, между осями Б и В на перемычку/балку возле лестничной клетки (по видимому по оси 4) и (насколько сужу по фассадам — выходит) на балку по оси 2. И по осям Б и В, возможно будет можно перебрость балки и разгрузить большую кровлю коньковыми балками. Но под это все нужно подложить опоры и думать об этом сейчас. 1 Посилання на коментар Поділитися на інших сайтах More sharing options...
armail Опубліковано: 19 вересня 2011 Поділитись Опубліковано: 19 вересня 2011 Тоже строю дом в один кирпич -с крышей ещё не заморачивался (по проекту простая двухскатная). Сейчас делаю цокольный этаж. Хотел спросить - какой у вас фундамент? Посилання на коментар Поділитися на інших сайтах More sharing options...
RAMon-off Опубліковано: 19 вересня 2011 Автор Поділитись Опубліковано: 19 вересня 2011 ленточный, шириной 30 см в начале рассчитывал строить с газоблока (шириной блока в 30 см), но цены так полезли вверх в июне, что остановился на кирпиче... и не жалею Посилання на коментар Поділитися на інших сайтах More sharing options...
Рекомендовані повідомлення
Створіть акаунт або увійдіть у нього для коментування
Ви маєте бути користувачем, щоб залишити коментар
Створити акаунт
Зареєструйтеся для отримання акаунта. Це просто!
Зареєструвати акаунтУвійти
Вже зареєстровані? Увійдіть тут.
Увійти зараз