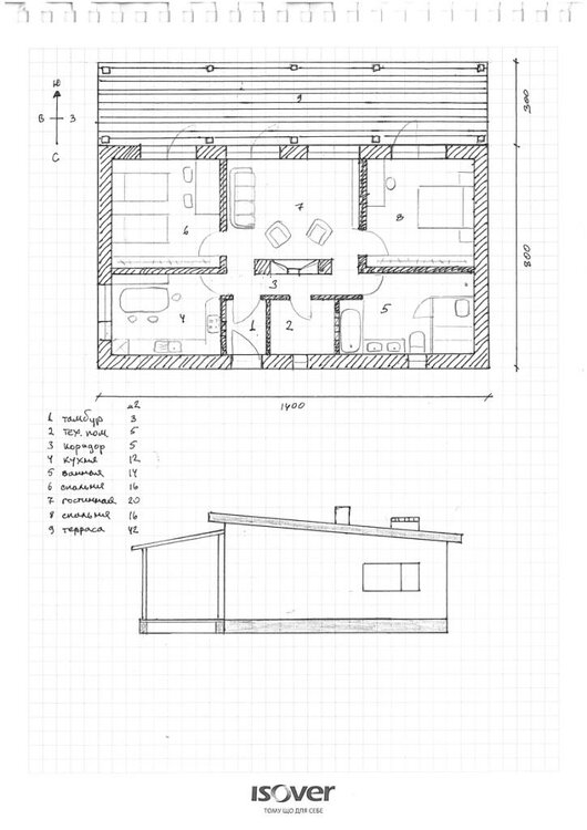
oleksa80 Опубліковано: 21 вересня 2011 Поділитись Опубліковано: 21 вересня 2011 Здравствуйте! Хочу построить небольшой дом на небольшом участке. Вот нарисовал эскиз чего бы хотелось. Участок сориентирован правильно по сторонам света, северный фасад - на дорогу. Посему почти все окна выходят на юг. Из спален и гостинной можно выйти на крытую террасу. Она же будет защищать комнаты от перегрева летним солнцем. Набор помещений: две спальни, гостинная, кухня, тех. помещение и большая ванная комната с душевой кабиной, ванной и сауной. Возможно есть смысл добавить отдельную кладовку за счет уменьшения ванной и техпомещения. Кто что скажет? Какие замечания? Посилання на коментар Поділитися на інших сайтах More sharing options...
seyvalter Опубліковано: 21 вересня 2011 Поділитись Опубліковано: 21 вересня 2011 у вашого будинка буде чотири великі недоліки - ЙОГО ФАСАДИ! Це буде торба... Але це справа смаку, один з останніх замовників наприклад буквально запиляв мене щоб "хата була проста як хлів"... Так що це може і не принципово... Ще не робив би спальні прохідними - сквозняки, втрата площі кімнати на проходи, та і нах. треба ті виходи прямо зі спальні на двір(не в Каліфорнії ж живемо), вистачило б і одного через вітальню ... А так суто по плануванню - більш-менш нормально. ИМХО Посилання на коментар Поділитися на інших сайтах More sharing options...
Ivirina Опубліковано: 21 вересня 2011 Поділитись Опубліковано: 21 вересня 2011 выходы на веранду это скорее дело вкуса я бы наверное согласилась пожертвовать какой то тумбой под окном ради выхода утром на верандочку но тут опять таки надо хорошо подумать надо ли оно вам. Учесть ваши привычки, образ жизни ну и сам участок конечно. Знаю что в нашей семье такоке было бы супер! Утром выходишь заспаный на улице тепло и сразу перед тобой альпийская горка, много роз , водопадик)) ляпота! Посилання на коментар Поділитися на інших сайтах More sharing options...
Artyomovets Опубліковано: 21 вересня 2011 Поділитись Опубліковано: 21 вересня 2011 я бы кухню на место одной из спален подвинул. скорее №8 ибо носиться из кухни на террасу - не сильно удобно будет кладовки и гардеробной не хватает. сауну в доме я бы не делал вообще. Посилання на коментар Поділитися на інших сайтах More sharing options...
oleksa80 Опубліковано: 21 вересня 2011 Автор Поділитись Опубліковано: 21 вересня 2011 я бы кухню на место одной из спален подвинул. скорее №8 будет жарко там летом сауну в доме я бы не делал вообще. сауну хочеццца Строить отдельно - затратно, да и места на участке не много, дом полторы сотки забирает А так будет небольшая с электрокаменкой. Посилання на коментар Поділитися на інших сайтах More sharing options...
oleksa80 Опубліковано: 21 вересня 2011 Автор Поділитись Опубліковано: 21 вересня 2011 у вашого будинка буде чотири великі недоліки - ЙОГО ФАСАДИ! Це буде торба... щодо фасадів, то головний у мене спрямований в глибину ділянки, а як виглядає той, що виходить на дорогу - мені байдуже.:D Стіни планую оббити вагонкою з імітацією брусу Посилання на коментар Поділитися на інших сайтах More sharing options...
Artyomovets Опубліковано: 21 вересня 2011 Поділитись Опубліковано: 21 вересня 2011 будет жарко там летом поносите на террасу тарелки и кастрюли - вспомните... Посилання на коментар Поділитися на інших сайтах More sharing options...
AНДРЮША Опубліковано: 23 вересня 2011 Поділитись Опубліковано: 23 вересня 2011 Проект хороший, продуман под конкретную семью и участок. Я планирую себе нечто подобное, даже крышу односкатную. Только у меня кухня-студия с выходом на террасу. Про неудобство вам правильно сказали. Живу в частном доме и в теплое время едим на террасе. Если не хочется ничего менять, то я бы в кухне поставил оконный блок с дверью на восток и небольшую терраску. Посилання на коментар Поділитися на інших сайтах More sharing options...
Milissa Опубліковано: 23 вересня 2011 Поділитись Опубліковано: 23 вересня 2011 1. Поменять местами помещения 7 и 8 (спальню и гостиную) - гостиная ближе к кухне это удобнее, дневная и ночная зоны будут автономнее дуг от друга. 2. Выход на террасу можно сделать только с гостиной. Со спален не имеет большого смысла делать дверь, тем более, если терраса будет открытой. 3. Отсутствие холла - минус. Нет места под гардероб 4. Что подразумевается под тех. помещением? Если котельная, то сделайте выход из нее в тамбур или на улицу сразу. Если кладовая, то меняйте её местами с тамбуром - ближе к кухне и дальше от спальной зоны. А одного санузла точно будет достаточно? Входная дверь должна открываться наружу. Без размеров помещений, ничего конкретного говорить нельзя Посилання на коментар Поділитися на інших сайтах More sharing options...
oleksa80 Опубліковано: 24 вересня 2011 Автор Поділитись Опубліковано: 24 вересня 2011 1. Поменять местами помещения 7 и 8 (спальню и гостиную) - гостиная ближе к кухне это удобнее, дневная и ночная зоны будут автономнее дуг от друга. 2. Выход на террасу можно сделать только с гостиной. Со спален не имеет большого смысла делать дверь, тем более, если терраса будет открытой. 3. Отсутствие холла - минус. Нет места под гардероб 4. Что подразумевается под тех. помещением? Если котельная, то сделайте выход из нее в тамбур или на улицу сразу. Если кладовая, то меняйте её местами с тамбуром - ближе к кухне и дальше от спальной зоны. А одного санузла точно будет достаточно? Входная дверь должна открываться наружу. Возможно кухню сделаю на месте котельной, она будет отделена от гостинной стеной с камином, а по бокам останутся два прохода без дверей. В левой части будут тамбур, кладовка и котельная. справа от кухни - ванная. По поводу выхода на террасу только из гостинной - согласен. Если входную дверь завалит снегом, то ее не откроешь, если она открывается наружу:D Посилання на коментар Поділитися на інших сайтах More sharing options...
Milissa Опубліковано: 24 вересня 2011 Поділитись Опубліковано: 24 вересня 2011 Если входную дверь завалит снегом, то ее не откроешь, если она открывается наружу:D По противопожарным нормам наружу Всё остальное - это уже план начерченный смотреть надо.. Посилання на коментар Поділитися на інших сайтах More sharing options...
oleksa80 Опубліковано: 26 вересня 2011 Автор Поділитись Опубліковано: 26 вересня 2011 По просьбам трудящихся на кухне, кухня объединена с гостинной но в тоже время разделена с ней камином. Также добавлены мансардные окна над кухней. Выход на террасу только из гостинной. Посилання на коментар Поділитися на інших сайтах More sharing options...
Рекомендовані повідомлення
Створіть акаунт або увійдіть у нього для коментування
Ви маєте бути користувачем, щоб залишити коментар
Створити акаунт
Зареєструйтеся для отримання акаунта. Це просто!
Зареєструвати акаунтУвійти
Вже зареєстровані? Увійдіть тут.
Увійти зараз