Николай_Житомир Опубліковано: 17 жовтня 2011 Поділитись Опубліковано: 17 жовтня 2011 Еще подумайте про перекрытия ;) С таким расположением лестницы вдоль несущей стены у вас появится много дополнительного головняка. Да и помещения второго этажа с парвой стороны не очень получатся, из-за лестничного проема. Вот оно - взгляд со стороны. Действительно в том плане выпустили из виду как это художество воплощать. Посилання на коментар Поділитися на інших сайтах More sharing options...
Игореха Опубліковано: 17 жовтня 2011 Поділитись Опубліковано: 17 жовтня 2011 Вот оно - взгляд со стороны. Действительно в том плане выпустили из виду как это художество воплощать. Да вы бы и сами с этим столкнулись, сразу как только начали бы конструировать перекрытие ;) Посилання на коментар Поділитися на інших сайтах More sharing options...
Николай_Житомир Опубліковано: 18 жовтня 2011 Поділитись Опубліковано: 18 жовтня 2011 А попробуйте ее развернуть на 90 вдоль верхней короткой стены и сделать двумаршевой с забежными ступенями, дабы уменьшить ее габариты не ухудшая удобство подъема. Да вот разворачиваю, но выход с лестницы получаеться в том месте, где на втором этаже запланирован с/у (они один над другим.)да и выход прям в стенку. это если второй марш в санузле сделать. Посилання на коментар Поділитися на інших сайтах More sharing options...
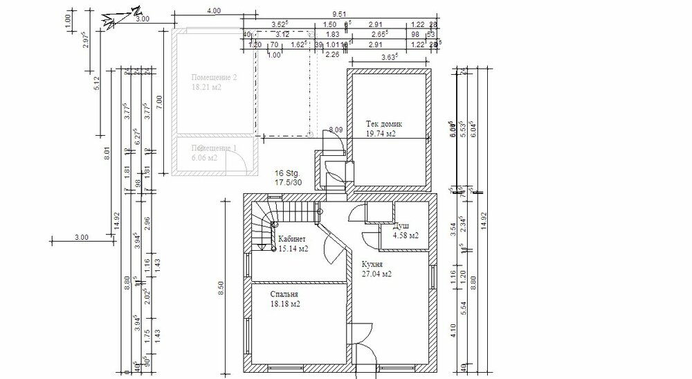
Николай_Житомир Опубліковано: 23 жовтня 2011 Поділитись Опубліковано: 23 жовтня 2011 (змінено) Ну вот пообсуждав, таки вроде так: Змінено 23 жовтня 2011 користувачем Николай_Житомир Оптимиз. размеров Посилання на коментар Поділитися на інших сайтах More sharing options...
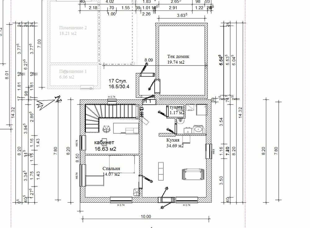
Николай_Житомир Опубліковано: 5 травня 2012 Поділитись Опубліковано: 5 травня 2012 Итак настала весна и взгляды немного изменились. См. новый свежий планчик. KISS в действии. Посилання на коментар Поділитися на інших сайтах More sharing options...
Николай_Житомир Опубліковано: 5 травня 2012 Поділитись Опубліковано: 5 травня 2012 Фундамент чуда непрофессиональной мысли планируеться столбчатый с ростверком типа ТИСЕ. Кадры "Так куеться шнеко бур" Посилання на коментар Поділитися на інших сайтах More sharing options...
Яся_Zt Опубліковано: 5 травня 2012 Автор Поділитись Опубліковано: 5 травня 2012 ничего несмыслю в этом Посилання на коментар Поділитися на інших сайтах More sharing options...
Рекомендовані повідомлення
Створіть акаунт або увійдіть у нього для коментування
Ви маєте бути користувачем, щоб залишити коментар
Створити акаунт
Зареєструйтеся для отримання акаунта. Це просто!
Зареєструвати акаунтУвійти
Вже зареєстровані? Увійдіть тут.
Увійти зараз