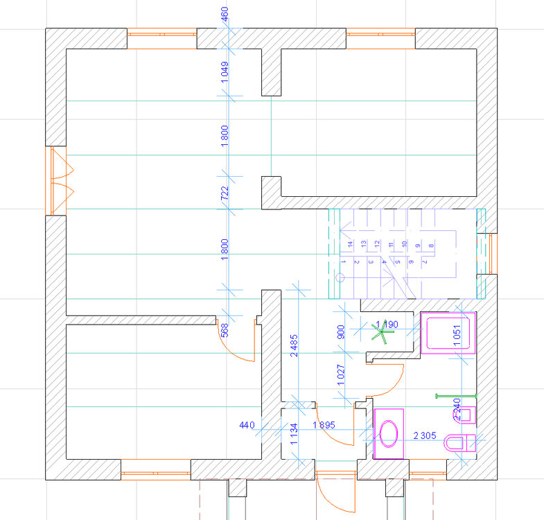
Игореха Опубліковано: 5 жовтня 2011 Поділитись Опубліковано: 5 жовтня 2011 Вынес этот пост из своей ветки. Тут он уместее Еще хотелось бы некоторого стороннего критического взгляда на один "угол". На сегодня планировка сильно не изменилась, но уже почти пришел к конечному варианту. Как обычно не хватает 10 см:D Второй этаж остался без изменений, только немного поиграл с шириной кладовки и санузла. Ну и решил сделать часть центральной несущей стены в 1 кирпич. Не хочу чтобы 2 дверных проема были глубиной по 40 см в несущей стене, да и на 13 см расширю коридор на втором этаже. Надо будет только при заливке армопояса в этом месте сделать балку (совмещенную с армопоясом), т.к. сверху тоже будут плиты. Больше всего неопределенностей доставляет угол на первом этаже (нижний правый по схеме), там где тамбур/санузел/гардероб/холл. Уже раз пять его переигрывал, но есть сомнения. Кому не трудно, обратите внимание на него. Может у кого еще мысль появится. Несущие стены и перестенок возле лестницы в кирпич уже есть и останутся нетронутыми. А вот перестенки этих помещений в полкирпича еще пока планирую и обыгрываю Посилання на коментар Поділитися на інших сайтах More sharing options...
vlam Опубліковано: 5 жовтня 2011 Поділитись Опубліковано: 5 жовтня 2011 Угол на первом этаже (нижний правый по схеме) - как по мне, лучше здесь ничего не придумаешь. А вот отдельный вход в кухню из коридора ( я так понимаю она в верхнем правом углу) я бы на вашем месте сделал. 1 Посилання на коментар Поділитися на інших сайтах More sharing options...
Игореха Опубліковано: 5 жовтня 2011 Автор Поділитись Опубліковано: 5 жовтня 2011 Угол на первом этаже (нижний правый по схеме) - как по мне, лучше здесь ничего не придумаешь. А вот отдельный вход в кухню из коридора ( я так понимаю она в верхнем правом углу) я бы на вашем месте сделал. Спассбо за мнение Что касается отдельного входа в кухню, то в вариациях этого проекта у меня два раза он присутствовал. Но в итоге я от него отказался, т.к. показалось что проход в кухню через две широкие арки по короткому пути и отдельный вход в том же углу не несут особой смысловой нагрузки. Да и больше свободного пространства стен для использования. Пока поэксплуатирую так. Посмотрю. Если он таки в ходе использования кухни покажется необходимым, то я таки проделаю этот дополнительный вход Посилання на коментар Поділитися на інших сайтах More sharing options...
ionico Опубліковано: 5 жовтня 2011 Поділитись Опубліковано: 5 жовтня 2011 Привет, я тоже думаю, что угол нормальный. Гардеробную хорошо вписали. Только добавление вентиляционных шахт может внести корректировки в планировки с/узлов и кухни. Где кухня: правый верхний угол или левый нижний? Если правый верхний, то далеко идти до неё с продуктами. У вас не будет топочной? Ещё нет кладовых/подсобных помещений. Я так понимаю, на 2 этаже есть одна, но может это маловато? Почему у вас нет ни одного летнего помещения: ни балкона, ни террасы, ни лоджии? Можно добавить террасу на 1 эт. возле гостиной или кухни, а над ней будет балкон. Планировка, похоже, рациональная, но объемное решение, я думаю, пока не очень. 1 Посилання на коментар Поділитися на інших сайтах More sharing options...
Игореха Опубліковано: 5 жовтня 2011 Автор Поділитись Опубліковано: 5 жовтня 2011 Привет, я тоже думаю, что угол нормальный. Гардеробную хорошо вписали. Только добавление вентиляционных шахт может внести корректировки в планировки с/узлов и кухни. Где кухня: правый верхний угол или левый нижний? Если правый верхний, то далеко идти до неё с продуктами. У вас не будет топочной? Ещё нет кладовых/подсобных помещений. Я так понимаю, на 2 этаже есть одна, но может это маловато? Почему у вас нет ни одного летнего помещения: ни балкона, ни террасы, ни лоджии? Можно добавить террасу на 1 эт. возле гостиной или кухни, а над ней будет балкон. Планировка, похоже, рациональная, но объемное решение, я думаю, пока не очень. Спасибо! Вентканалы уже заложены в центарльной несущей стене. Потолки подвесные ГК. Там и пройдет разводка горизонтальных секций ВК. Кухня - верхний правый угол. На счет далеко даже как-то не задумывался... размеры дома относительно небольшие и 5 метров вроде не расстояние. Возможно, как уже было сказано выше - может таки сделать дверь в кухню еще и из холла, но думаю что не с точки зрения "далеко", а в качестве "чернового" для заноски продуктов. Время еще есть - буду думать У меня еще есть полноценный цокольный этаж. Он есть в моей теме, но сюда просто не выносил, т.к. по цокольному этажу вопрос с планировками уже закрыл. Там будет еще одна кладовая/рардероб, топочная, постирочная/сушилка/гладилка, бильярдная и сауна www.stroimdom.com.ua/forum/showpost.php?p=1080026&postcount=259 А вот по поводу лоджий, балконов и террасс - сам жалею, но пришлось отказаться от них в силу бюджета Мне самому нравятся такие проекты, и когда рисовал наброски своих многочисленных, более замысловатых проектов, то там были и балконы и террассы. Но когда начинал считать сметы, то понимал сколько дополнительно денег это потянет. Даже монолитная плита под всем домом оказывается не такой дорогой, если балконы делать по уму Но вокруг дома у меня будет типа открытой приподнятой террассы шириной 3 метра. Очень высокий цоколь не позволяет сделать террассу на уровне первого этажа. Посилання на коментар Поділитися на інших сайтах More sharing options...
Artyomovets Опубліковано: 6 жовтня 2011 Поділитись Опубліковано: 6 жовтня 2011 присоединяюсь к вопросу про топочную. гардероб на первом - это где цветок какой-то? под лестницей тоже можно устроить кладовку, кстати. что я бы поменял - так это вход в комнату на первом сделал бы из холла, а не из гостиной. а правый нижний угол - пока без вопросов. имхо - там оптимально сейчас. 1 Посилання на коментар Поділитися на інших сайтах More sharing options...
Игореха Опубліковано: 6 жовтня 2011 Автор Поділитись Опубліковано: 6 жовтня 2011 присоединяюсь к вопросу про топочную. гардероб на первом - это где цветок какой-то? под лестницей тоже можно устроить кладовку, кстати. что я бы поменял - так это вход в комнату на первом сделал бы из холла, а не из гостиной. а правый нижний угол - пока без вопросов. имхо - там оптимально сейчас. Спасибо за мнение Уже чуть раскрыл постом выше Там есть ссылка на цокольный этаж. Именно там у меня топочная. Прикрепил план цокольного этажа внизу Цветок - это вешалка из стандартной библиотеки Архикада - свои элементы пока не прорисовывал Лестница с первого этажа идет на второй и в цоколь, соответственно. Под лестничной площадкой цокольного этажа скорее всего будет стоять гидрак большой. Отдельная кладовка в цоколе тоже имеется около 3х квадратов. Вход в гостевую в одной из версий проекта у меня тоже был из холла. Но решил таки что расположение входа в комнату непосредственно возле тамбурной двери - не комильфо Это гостевая и использоваться она будет редко, поэтому и решил что скромная дверь в углу гостинной не будет никому сильно мешать. Смущает только шум гостинной, который может мешать в гостевой. Но с другой стороны - она же гостевая, соответственно гости будут шуметь вместе с хозяевами. А когда придет время отдыхать, то гости - в гостевую. а хозяева - к себе в спальню. Ну не будем же мы куралесить в гордом одиночестве, пока гости будут спать в гостевой :D Да и та стена, на которой планировалась дверь из холла в гостевую будет свободная. Там я спокойно размещу большое зеркало и полочки/шкафчики как для прихожей. А с дверью это пространство безвозвратно теряется Посилання на коментар Поділитися на інших сайтах More sharing options...
Artyomovets Опубліковано: 6 жовтня 2011 Поділитись Опубліковано: 6 жовтня 2011 хм... если вам нужен подвал - то конечно. но спросите у построивших во сколько это обходится... лучше на полметра сам дом расширить и где-то топочную придумать. имхо Посилання на коментар Поділитися на інших сайтах More sharing options...
Игореха Опубліковано: 6 жовтня 2011 Автор Поділитись Опубліковано: 6 жовтня 2011 хм... если вам нужен подвал - то конечно. но спросите у построивших во сколько это обходится... лучше на полметра сам дом расширить и где-то топочную придумать. имхо Вся фишка в том, что цокольный этаж уже есть и уже даже есть начало второго этажа Меня мучает вот тот угол на первом этаже. Там еще нет перестенков, а несущие стены уже стоят. Именно поэтому не поставил перестенки на первом этаже, т.к. решил еще подумать над тем закутком Так что сколько стоит цокольный этаж знаю не по наслышке Ну без цокольного этажа пришлось бы сильно расширять коробку, дабы уместить в ней все хотелки. При строительстве дома из пеногазоблока - цоколь вышел бы подороже, чем расширение площади. Но т.к. я строю из кирпича, то цоколь у меня выходит несколько дешевле, чем пропорциональное расширение площади пятна застройки с учетом двух этажей и соответственно кровли. Посилання на коментар Поділитися на інших сайтах More sharing options...
Artyomovets Опубліковано: 6 жовтня 2011 Поділитись Опубліковано: 6 жовтня 2011 в углу все в порядке. разве что унитаз бы к теплой стене поставить. про зимнее утро подумайте :D Посилання на коментар Поділитися на інших сайтах More sharing options...
Игореха Опубліковано: 6 жовтня 2011 Автор Поділитись Опубліковано: 6 жовтня 2011 в углу все в порядке. разве что унитаз бы к теплой стене поставить. про зимнее утро подумайте :D Спасибо. Сам смотрю на этот угол с унитазом.... Но пришлось переиграть несколько расположение перестенка в цоколе (а он в 1,5 кирпича). были на то свои причины, и теперь перестенок оказался как раз под комфортным местом расположения унитаза. Подумаю еще как можно малой кровью обойти это место чтобы вывести стояк канализации без кучи углов. Сам хочу его втулить к теплой стенке Посилання на коментар Поділитися на інших сайтах More sharing options...
Archist Опубліковано: 6 жовтня 2011 Поділитись Опубліковано: 6 жовтня 2011 Присоединюсь к предыдущим ораторам по поводу отдельных входов в кузню и в гостевую. (Гостевая на первом многими потом используется как спальня). А между кухней и гостиной - хорошо бы раздвижную пергородку. Чтобы рыбу или котлеты пожарить без скандала. И насчет санузлов: все нормально, только биде сейчас мало кто ставит (есть гигиенические душики, есть унитазы со встроенным фонтанчиком). А на место биде можно поставить пенал или стиралку. 1 Посилання на коментар Поділитися на інших сайтах More sharing options...
Игореха Опубліковано: 6 жовтня 2011 Автор Поділитись Опубліковано: 6 жовтня 2011 Присоединюсь к предыдущим ораторам по поводу отдельных входов в кузню и в гостевую. (Гостевая на первом многими потом используется как спальня). А между кухней и гостиной - хорошо бы раздвижную пергородку. Чтобы рыбу или котлеты пожарить без скандала. И насчет санузлов: все нормально, только биде сейчас мало кто ставит (есть гигиенические душики, есть унитазы со встроенным фонтанчиком). А на место биде можно поставить пенал или стиралку. Спасибо! По поводу отдельного входа в кухню - посмотрю на практике, и если таки он будет проситься, то сделаю Что касаемо отдельного входа в гостевую, то этим вопросом тоже задавался долго, но решил делать без него - причины указал выше Перегородка - запланирована. Стеклянная раздвижная, именно по этим соображениям. На счет биде подумаю. Пока просто разместил на проекте, дабы видеть, влезет или нет. Если его не будет, то пространство увеличится - я буду даже рад Просто "по старинке", как на сегодняшний день, нарисовал;) Для стиралки у меня будет целых 14 квадратов. :D В цокольном этаже будет постирочная, она же - сушилка, она же - гладильная и склад/гардероб для белья Посилання на коментар Поділитися на інших сайтах More sharing options...
Рекомендовані повідомлення
Створіть акаунт або увійдіть у нього для коментування
Ви маєте бути користувачем, щоб залишити коментар
Створити акаунт
Зареєструйтеся для отримання акаунта. Це просто!
Зареєструвати акаунтУвійти
Вже зареєстровані? Увійдіть тут.
Увійти зараз