ionico Опубліковано: 24 жовтня 2011 Поділитись Опубліковано: 24 жовтня 2011 Понятно. Можете показать участок с обозначением сторон света? Насчёт стояков - конечно же не обязательно их увязывать у индивидуальном жилом доме. Но согласитесь, что это более логично и это более чистое решение. Посилання на коментар Поділитися на інших сайтах More sharing options...
Елена А. Опубліковано: 25 жовтня 2011 Поділитись Опубліковано: 25 жовтня 2011 спасибо. думали над такими вариантами. но не хотелось бы нарушать целостность несущей стены...хотя, может это для второго этажа и не критично, если крыша будет не тяжелая... а где нарушается несущая стена? Посилання на коментар Поділитися на інших сайтах More sharing options...
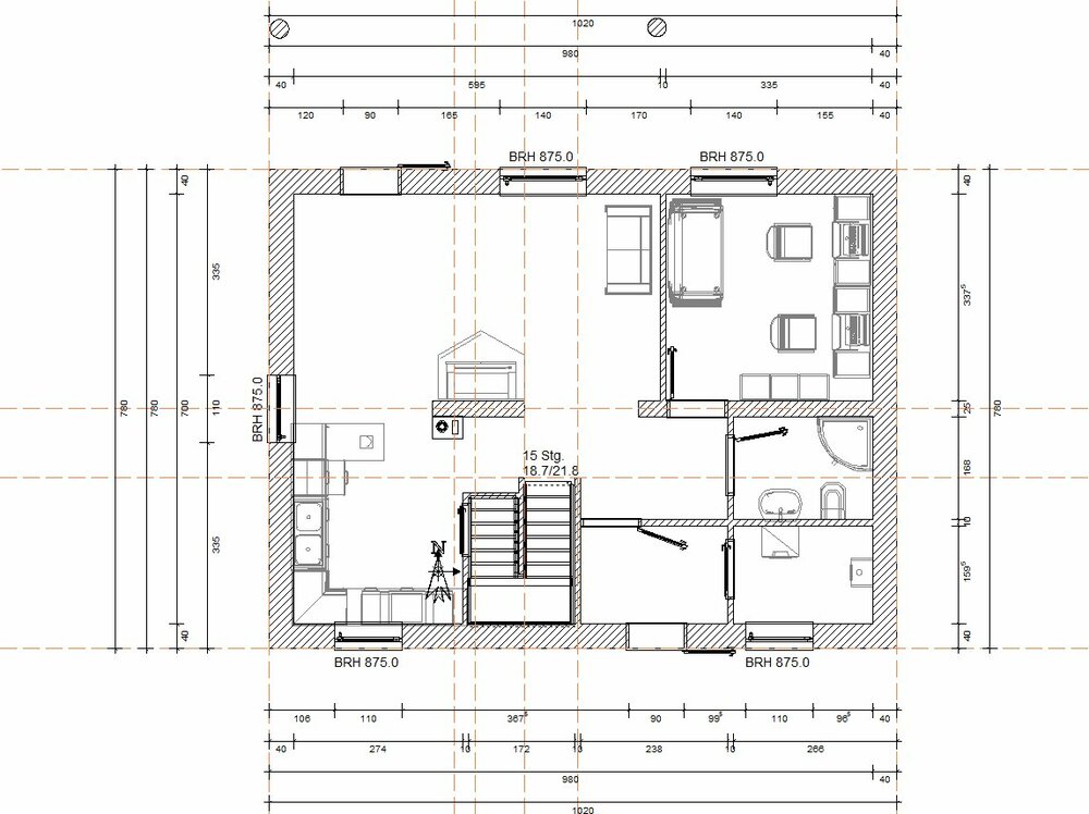
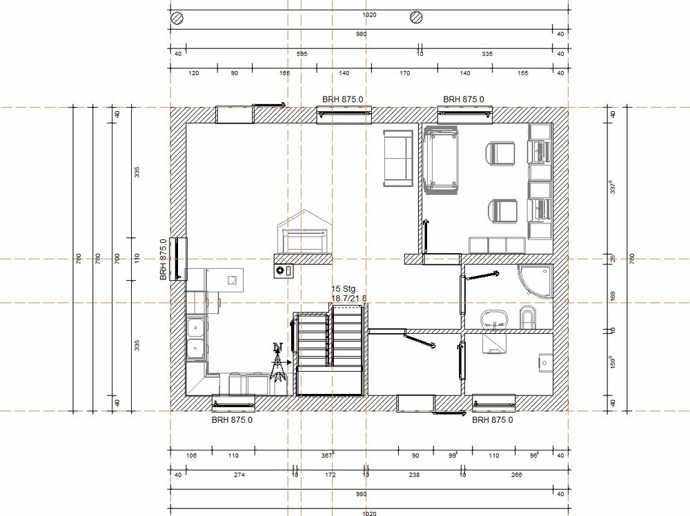
tarakashka Опубліковано: 27 жовтня 2011 Поділитись Опубліковано: 27 жовтня 2011 а где нарушается несущая стена? нц по идеи, там 2 несущие стены. Но я так понимаю, можно довольствоваться и одной С гардеробом решили не заморачиваться. Сделать отдельные внутри каждой комнаты. Покритикуйте еще плз. Вечером выложим еще 1 вариант. Вот, выбираем... Мне вот интересно: важно чтобы внутрення кирпичная стена, за день прогревалась солнцем? (окна светят на нее с южной стороны). Или я уже фигней страдаю? Во твтором проекте несущую стену ставим поперек дома. Вот думаю - как правильней... Посилання на коментар Поділитися на інших сайтах More sharing options...
tarakashka Опубліковано: 28 жовтня 2011 Поділитись Опубліковано: 28 жовтня 2011 вот так выглядит расположение нашего участка дом хотим ставить ближе к дороге, выход будет на восточную сторону. Посилання на коментар Поділитися на інших сайтах More sharing options...
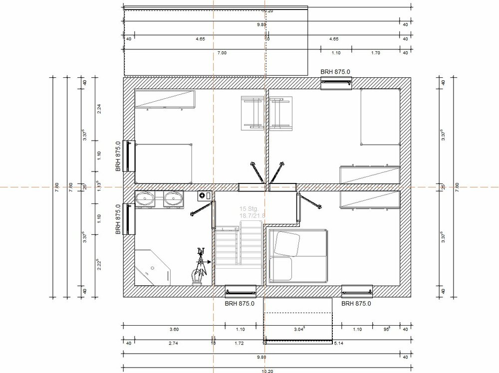
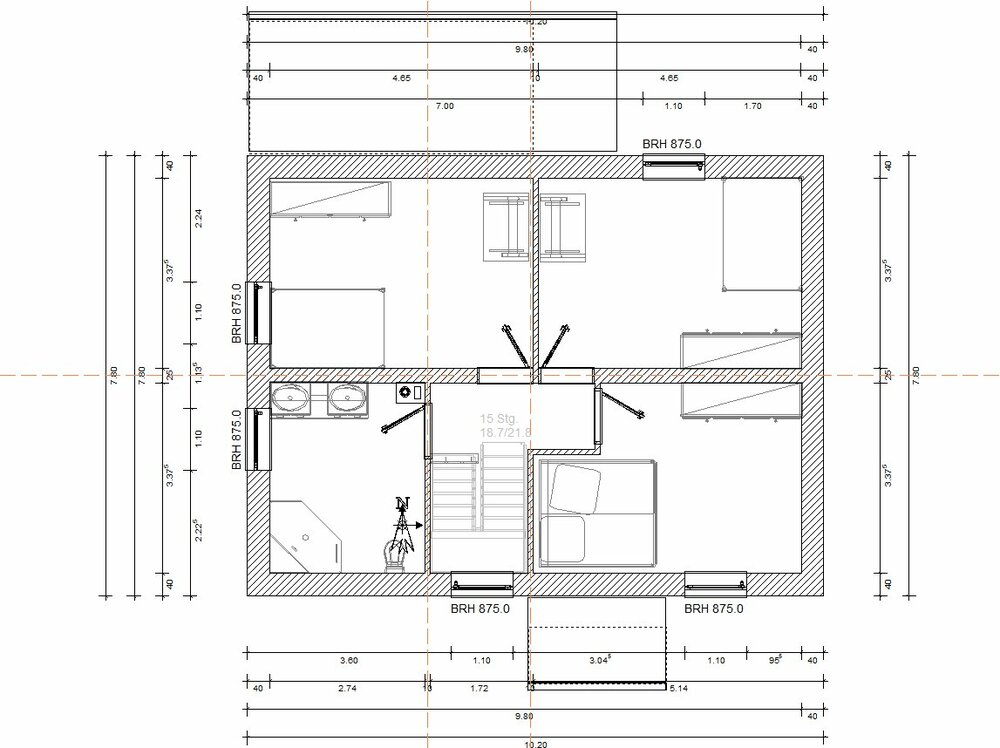
tarakashka Опубліковано: 28 жовтня 2011 Поділитись Опубліковано: 28 жовтня 2011 А вот еще набросали второй вариант на сонове готового проекта... что скажите? Посилання на коментар Поділитися на інших сайтах More sharing options...
ionico Опубліковано: 28 жовтня 2011 Поділитись Опубліковано: 28 жовтня 2011 Мне нравится открытое пространство кухни-гостиной. Думаю, что лестница как-то не вписалась. Идеально - когда заходишь в здание и сразу видишь лестницу. Её можно на месте дивана в гостиной. И не закрывать её стенами - пусть будет открытым и светлым украшением дома. Посилання на коментар Поділитися на інших сайтах More sharing options...
tarakashka Опубліковано: 29 жовтня 2011 Поділитись Опубліковано: 29 жовтня 2011 Мне нравится открытое пространство кухни-гостиной. Думаю, что лестница как-то не вписалась. Идеально - когда заходишь в здание и сразу видишь лестницу. Её можно на месте дивана в гостиной. И не закрывать её стенами - пусть будет открытым и светлым украшением дома. да. но открытая лестница, насколько я знаю, служит каналом холодного воздуха и вроде ж ее лучше отделять7 или я путаю? а чем неудобно такое расположение? Посилання на коментар Поділитися на інших сайтах More sharing options...
МИР СТУПЕНЕК Опубліковано: 29 жовтня 2011 Поділитись Опубліковано: 29 жовтня 2011 А вот еще набросали второй вариант на сонове готового проекта... что скажите? Слишком крутовата лестница на 2-м варианте. ИМХО. Соотношение подступенок/проступь - 187/218 не будет удобным. Можно добавить еще 1...2-е ступени вверху или перейти на забежные ступени. 1 Посилання на коментар Поділитися на інших сайтах More sharing options...
ionico Опубліковано: 29 жовтня 2011 Поділитись Опубліковано: 29 жовтня 2011 да. но открытая лестница, насколько я знаю, служит каналом холодного воздуха и вроде ж ее лучше отделять7 или я путаю? а чем неудобно такое расположение? Да расположение, в принципе, правильное, просто с точки зрения архитектурной композиции: входим в дом и видим диван. А лестница может стать визуальным замыканием: входим в дом и взгляд замыкается на лестнице. Это я чисто как архитектор размышляю А насчёт канала холодного воздуха - думаю, что вы правы, но согласитесь, что проём в перекрытии для лестницы и так не маленький. Думаю, что отгородив лестницу, пользы будет не слишком много. 1 Посилання на коментар Поділитися на інших сайтах More sharing options...
Рекомендовані повідомлення
Створіть акаунт або увійдіть у нього для коментування
Ви маєте бути користувачем, щоб залишити коментар
Створити акаунт
Зареєструйтеся для отримання акаунта. Це просто!
Зареєструвати акаунтУвійти
Вже зареєстровані? Увійдіть тут.
Увійти зараз