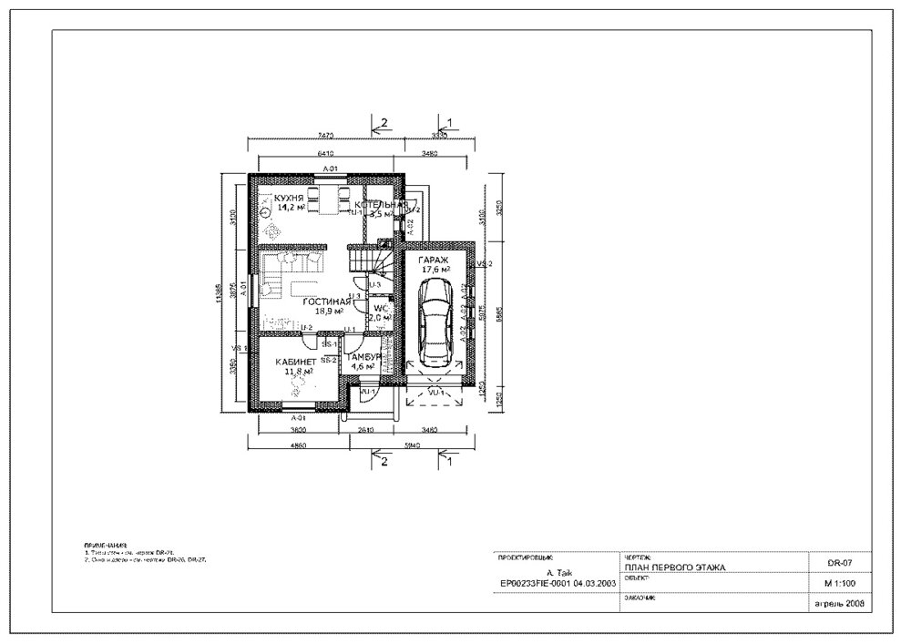
SONYk Опубліковано: 24 жовтня 2011 Поділитись Опубліковано: 24 жовтня 2011 Здраствуйте. Есть проэкт дома из интернета. Есть два момента которые не нравятся. Первый - маленькая котельная, хотелось бы побольше, под твердотопливный котёл. Второй, основной, санузел первого этажа очень маленький и выходит аккурат в гостинную. Может дадите совет, как поступить. Посилання на коментар Поділитися на інших сайтах More sharing options...
SONYk Опубліковано: 24 жовтня 2011 Автор Поділитись Опубліковано: 24 жовтня 2011 Самое главное забыл - планировки. Сейчас прикреплю. Посилання на коментар Поділитися на інших сайтах More sharing options...
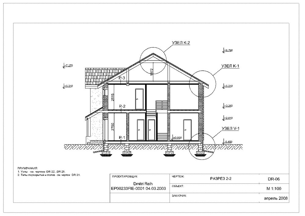
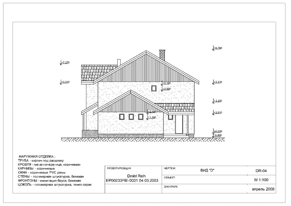
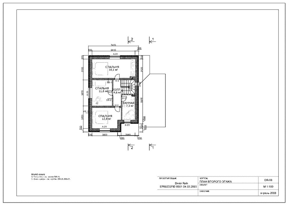
SONYk Опубліковано: 24 жовтня 2011 Автор Поділитись Опубліковано: 24 жовтня 2011 Вот и вложения Посилання на коментар Поділитися на інших сайтах More sharing options...
Artyomovets Опубліковано: 24 жовтня 2011 Поділитись Опубліковано: 24 жовтня 2011 Может дадите совет, как поступить. искать другой проект в интернете. их там просто безразмерное количество Посилання на коментар Поділитися на інших сайтах More sharing options...
seyvalter Опубліковано: 24 жовтня 2011 Поділитись Опубліковано: 24 жовтня 2011 Там в принципі планування дозволяє зробити вхід в сан.вузол з тамбура, місце на двері є, але сан.вузол треба буде робити об"єднаним. Як на мене можна розробити краще планування... а як щодо такого варіанту www.stroimdom.com.ua/forum/showthread.php?t=72965 Посилання на коментар Поділитися на інших сайтах More sharing options...
ionico Опубліковано: 24 жовтня 2011 Поділитись Опубліковано: 24 жовтня 2011 Там в принципі планування дозволяє зробити вхід в сан.вузол з тамбура, місце на двері є, але сан.вузол треба буде робити об"єднаним. Як на мене можна розробити краще планування... а як щодо такого варіанту www.stroimdom.com.ua/forum/showthread.php?t=72965 Да, но врядли будет лучше входить из тамбура в с/у. Дом довольно компактный и планы рациональны, а основные претензии к небольшим площадям котельной и с/у. Думаю, в данном случае, не обойтись без увеличения габаритов дома. Например, стену, которая смежная с гаражом и домом, сдвигаем вправо. Вместе с гаражом. Этим мы увеличим и с/у и котельную. Что за комнатка под лестницей. Убрать её и вход в с/у сделать под лестницей - ничего не будет выходить в красивую гостиную. Кухню и кабинет поменять местами будет лучше, если она ближе к главному входу (если вам не принципиально делать связь котельной и кухни). Посилання на коментар Поділитися на інших сайтах More sharing options...
seyvalter Опубліковано: 25 жовтня 2011 Поділитись Опубліковано: 25 жовтня 2011 Да, но врядли будет лучше входить из тамбура в с/у. Дом довольно компактный и планы рациональны, а основные претензии к небольшим площадям котельной и с/у. Думаю, в данном случае, не обойтись без увеличения габаритов дома. Например, стену, которая смежная с гаражом и домом, сдвигаем вправо. Вместе с гаражом. Этим мы увеличим и с/у и котельную. Что за комнатка под лестницей. Убрать её и вход в с/у сделать под лестницей - ничего не будет выходить в красивую гостиную. Кухню и кабинет поменять местами будет лучше, если она ближе к главному входу (если вам не принципиально делать связь котельной и кухни). я доречі теж спочатку хотів порадити кабінет і кухню поміняти місцями - та не хочеться відривати кухню від котельні - якщо вони поряд - це спрощує розводку комунікацій і зменшує кількість коминів на будинку. щодо збільшення габаритів будинку - то не факт що цей варіант влаштує ТС, збільшення габаритів це збільшення вартості.... Посилання на коментар Поділитися на інших сайтах More sharing options...
SONYk Опубліковано: 25 жовтня 2011 Автор Поділитись Опубліковано: 25 жовтня 2011 Там в принципі планування дозволяє зробити вхід в сан.вузол з тамбура, місце на двері є, але сан.вузол треба буде робити об"єднаним. Як на мене можна розробити краще планування... а як щодо такого варіанту www.stroimdom.com.ua/forum/showthread.php?t=72965 Она совсем не похожа на мой вариант. Площадь больше и нет жилой комнаты на первом этаже Посилання на коментар Поділитися на інших сайтах More sharing options...
SONYk Опубліковано: 25 жовтня 2011 Автор Поділитись Опубліковано: 25 жовтня 2011 Да, но врядли будет лучше входить из тамбура в с/у. Дом довольно компактный и планы рациональны, а основные претензии к небольшим площадям котельной и с/у. Думаю, в данном случае, не обойтись без увеличения габаритов дома. Например, стену, которая смежная с гаражом и домом, сдвигаем вправо. Вместе с гаражом. Этим мы увеличим и с/у и котельную. Что за комнатка под лестницей. Убрать её и вход в с/у сделать под лестницей - ничего не будет выходить в красивую гостиную. Кухню и кабинет поменять местами будет лучше, если она ближе к главному входу (если вам не принципиально делать связь котельной и кухни). Хотелось бы оставить котельную и кухню рядом. Они находятся на северной стороне, там ещё планируется веранда и собственно выход на неё из кухни. А по поводу входа в санузел из тамбура, думаю это не столь важно для меня. Посилання на коментар Поділитися на інших сайтах More sharing options...
SONYk Опубліковано: 25 жовтня 2011 Автор Поділитись Опубліковано: 25 жовтня 2011 я доречі теж спочатку хотів порадити кабінет і кухню поміняти місцями - та не хочеться відривати кухню від котельні - якщо вони поряд - це спрощує розводку комунікацій і зменшує кількість коминів на будинку. щодо збільшення габаритів будинку - то не факт що цей варіант влаштує ТС, збільшення габаритів це збільшення вартості.... Если увеличение габаритов дома (скажем на 1 метр) решит проблему маленькой котельной и входа в санузел первого этажа из гостинной и не сильно поменяет внешний вид дома, я ЗА. Тогда и место под лестницу увеличится, можно будет сделать её более удобной, уменьшить количество забежных ступений или вообще обойтись без них. Также на втором этаже над котельной увеличтся гардеробная и второй санузел. Последний можно розделить на две части, сделать постирочную-гладильную или второую гардеробную. Или даже втом закапелку поставить компьютерный стол, будет кабинет при спальни Вот что получилось, если на 1 метр стену роздвинуть. Посилання на коментар Поділитися на інших сайтах More sharing options...
ionico Опубліковано: 25 жовтня 2011 Поділитись Опубліковано: 25 жовтня 2011 Ну вот, уже не так тесно. А по поводу входа в санузел из тамбура, думаю это не столь важно для меня. Почему вы решили, что вход в с/у из тамбура? Ведь можно сделать вход в с/у под лестницей - в месте под вторым маршем, где достаточно высоко для размещения двери. Вход будет спрятан, не будет портить гостиную. Посилання на коментар Поділитися на інших сайтах More sharing options...
SONYk Опубліковано: 25 жовтня 2011 Автор Поділитись Опубліковано: 25 жовтня 2011 Ну вот, уже не так тесно. Почему вы решили, что вход в с/у из тамбура? Ведь можно сделать вход в с/у под лестницей - в месте под вторым маршем, где достаточно высоко для размещения двери. Вход будет спрятан, не будет портить гостиную. Конечно можно сделать вход в санузел и под вторым маршем, но это же не решит проблемы. Вход в туалет как был так и останется из гостиной. Запах из туалета, звук смывания унитаза и всё такое будет отчётливо слышно в комнате. Другое дело вход в санузел из тамбура и к выходу поближе. С улицы, если приспичило, не нужно идти через гостиную в туалет Посилання на коментар Поділитися на інших сайтах More sharing options...
SONYk Опубліковано: 25 жовтня 2011 Автор Поділитись Опубліковано: 25 жовтня 2011 Мучают меня сомнения по поводу розположения дверных проёмов в тамбуре. Такое чувство, что что-то не так должно быть. Посилання на коментар Поділитися на інших сайтах More sharing options...
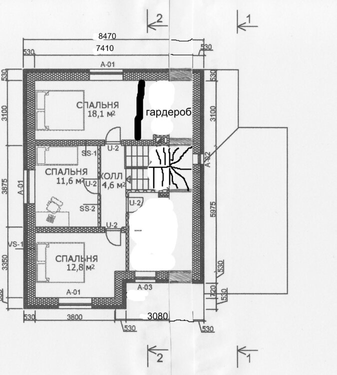
SONYk Опубліковано: 25 жовтня 2011 Автор Поділитись Опубліковано: 25 жовтня 2011 Вот ещё планировка, по моему чем-то напоминает первую. Фасады тоже, вроде, можно оставить старые. Посилання на коментар Поділитися на інших сайтах More sharing options...
SONYk Опубліковано: 25 жовтня 2011 Автор Поділитись Опубліковано: 25 жовтня 2011 А вот и первоисточник. Посилання на коментар Поділитися на інших сайтах More sharing options...
Готовые-проекты Опубліковано: 26 жовтня 2011 Поділитись Опубліковано: 26 жовтня 2011 (змінено) Доброе время суок. Могу разработать под вас индивидуальный проект. Мой почтовый ящик ************** Пишите. Буду рад помочь. По цене договоримся. Лицензия. Змінено 26 жовтня 2011 користувачем apxitektop П. 8 Правил Посилання на коментар Поділитися на інших сайтах More sharing options...
ionico Опубліковано: 26 жовтня 2011 Поділитись Опубліковано: 26 жовтня 2011 Вот ещё планировка, по моему чем-то напоминает первую. Фасады тоже, вроде, можно оставить старые. С/у на 2 этаже планируется грандиозный! Почти как спальная комната. А вообще, он настолько похож на предыдущий, что место в тамбуре, которое вас смущает в первом проекте, повторяется и во втором варианте. Посилання на коментар Поділитися на інших сайтах More sharing options...
Рекомендовані повідомлення
Створіть акаунт або увійдіть у нього для коментування
Ви маєте бути користувачем, щоб залишити коментар
Створити акаунт
Зареєструйтеся для отримання акаунта. Це просто!
Зареєструвати акаунтУвійти
Вже зареєстровані? Увійдіть тут.
Увійти зараз