Игорь-Одесса Опубліковано: 15 лютого 2007 Поділитись Опубліковано: 15 лютого 2007 Оцените идею проекта для участка 13,2х36 со входом с юга: За основу принят польский проект "Дом в тамарисках" Площадь для меня нормальная. Семья 2чел+сын+в проекте не скоро (сын :roll: ) Собираюсь -убрать гараж -комнату на 1м этаже переделать под котельную+хоз помещение. -перенести вперед эркер, терассу -ванну на 2м этаже уменьшить и добавить гардеробную. -ну и, разумеется, полноценный 2-й этаж. Никаких мансард. (ссылка на изображение устарела) (ссылка на изображение устарела) Дом хочу строить в дальнем конце участка, чтобы не делить и так небольшой двор. Гараж или навес отдельно при въезде. От этого изменится и ориентация окон. Дам задание архитектору с учетом плит перекрытия, а не монолита. Заранее благодарю за комментарии. Посилання на коментар Поділитися на інших сайтах More sharing options...
Гість fastwater Опубліковано: 15 лютого 2007 Поділитись Опубліковано: 15 лютого 2007 Лестницу можно сделать не по часовой стрелке, а против. Возле ванной получится свободный пятачок. Можно отказаться от второго света, вокруг которого идет лестница и вместе с этим пятачком сделать гардероб. Ванну в таком случае уменьшать не придется. (главное, со ступеньками просчитать, чтоб не пригиваться, когда идете по лестнице . Откажитесь от поворотной площадки, чтоб выиграть пространство). И на первом этаже кладовочка получится, вокруг которой будет идти лестница. Посилання на коментар Поділитися на інших сайтах More sharing options...
Игорь-Одесса Опубліковано: 15 лютого 2007 Автор Поділитись Опубліковано: 15 лютого 2007 Т.е. сделать забежные ступени? У поляков вообще лестницы указаны железобетонные. Котельную на 1м этаже тоже можно поделить на постирочную и топочную или еще и гидрофор там поставить. Короче придумаю что. Туалет при входе с поддоном обязателен тоже т.к. привыкли мыть собаке лапы сразу после прогулки. Посилання на коментар Поділитися на інших сайтах More sharing options...
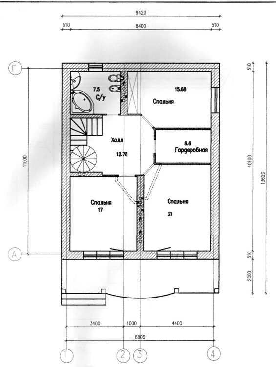
Игорь-Одесса Опубліковано: 5 березня 2008 Автор Поділитись Опубліковано: 5 березня 2008 В итоге вот что получилось из переработанного польского проекта "Дом в Кувшинках", который был взят за основу. Гостиную отнесли назад т.к. в ней мы сидим только вечером, с закрытыми шторами кино смотрим и солнечный свет только мешает, а вот кухню нарисовали наоборот с выходом во двор чтобы завтракать летом как на улице. То помещение, которое обозначено как постирочная скорее всего будет кабинетом (если на 2 этаже лишняя спальня со временем заселится). Дом расположили в глубине участка. Гараж или навес отдельно при въезде таки образом небольшой участок на 2 части домом не делим. Въезд на участок строго с юга. Посилання на коментар Поділитися на інших сайтах More sharing options...
Hans Опубліковано: 5 березня 2008 Поділитись Опубліковано: 5 березня 2008 Все твои размышления совершенно обоснованны. И про гараж, и про расположить дом и про кухню на восток. Комментировать особо нечего. Могу только про 'гидрофор', он будет весьма шумным, посему обдумай этот нюанс. Посилання на коментар Поділитися на інших сайтах More sharing options...
Игорь-Одесса Опубліковано: 5 березня 2008 Автор Поділитись Опубліковано: 5 березня 2008 Все твои размышления совершенно обоснованны. И про гараж, и про расположить дом и про кухню на восток. Комментировать особо нечего. Могу только про 'гидрофор', он будет весьма шумным, посему обдумай этот нюанс. С гидрофором конечно буду думать уже по ходу так как фундамент уже готов и особых значительных изменений не будет. Может какую нибудь звукоизоляцию сделаю. Ну и надеюсь на нормальное давление в водопроводе хоть иногда Посилання на коментар Поділитися на інших сайтах More sharing options...
Chiara Опубліковано: 5 березня 2008 Поділитись Опубліковано: 5 березня 2008 С гидрофором конечно буду думать уже по ходу так как фундамент уже готов и особых значительных изменений не будет. Может какую нибудь звукоизоляцию сделаю. Ну и надеюсь на нормальное давление в водопроводе хоть иногда мож его в пенопластовый короб? Посилання на коментар Поділитися на інших сайтах More sharing options...
Hans Опубліковано: 6 березня 2008 Поділитись Опубліковано: 6 березня 2008 мож его в пенопластовый короб? Очень неплохое решение. У меня насос стоит в шахте, сверху накрыт крышкой из пенопласта 20см толщиной и стальным люком. Звука не слышно. Посилання на коментар Поділитися на інших сайтах More sharing options...
Инна Опубліковано: 7 березня 2008 Поділитись Опубліковано: 7 березня 2008 У меня тоже гидрофор на улице в приямке. Приямок внутри обложен пенопластом, сверху металический люк, утепленный пенопластом. Так вот стоя на улице рядом с приямком, очень слышно как гидроф запускается. Так что его расположение в доме- это не самый лучший вариант. Посилання на коментар Поділитися на інших сайтах More sharing options...
Игорь-Одесса Опубліковано: 7 березня 2008 Автор Поділитись Опубліковано: 7 березня 2008 У меня тоже гидрофор на улице в приямке. Приямок внутри обложен пенопластом, сверху металический люк, утепленный пенопластом. Так вот стоя на улице рядом с приямком, очень слышно как гидроф запускается. Так что его расположение в доме- это не самый лучший вариант. Понял. У родителей в подвале и тоже слышно как визжит Посилання на коментар Поділитися на інших сайтах More sharing options...
Рекомендовані повідомлення
Створіть акаунт або увійдіть у нього для коментування
Ви маєте бути користувачем, щоб залишити коментар
Створити акаунт
Зареєструйтеся для отримання акаунта. Це просто!
Зареєструвати акаунтУвійти
Вже зареєстровані? Увійдіть тут.
Увійти зараз