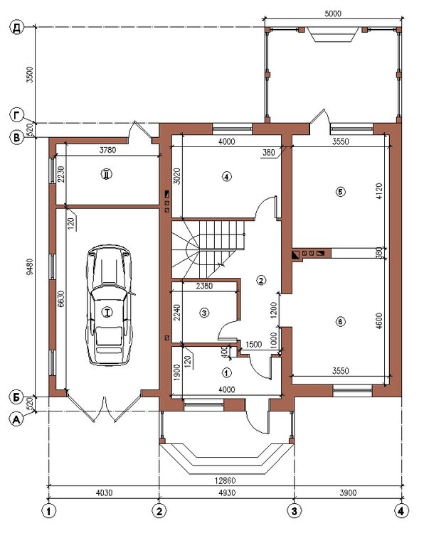
VW2010 Опубліковано: 7 листопада 2011 Поділитись Опубліковано: 7 листопада 2011 Попался на глаза проэкт. Кое что хотелось бы изменить. Не нужен вход в гараж из тамбура. На одной половине тамбура собственно сам тамбур, а другой кладовка или гардеробная для верхней одежды. Или же увелечение санузла пнрвого этажа за счёт этой площади. Эркер тоже не нужен. Кухня и гостинная роздельные. Может подскажите плюсы и минусы проэкта. Посилання на коментар Поділитися на інших сайтах More sharing options...
руки_из_попы Опубліковано: 7 листопада 2011 Поділитись Опубліковано: 7 листопада 2011 Попался на глаза проэкт. Кое что хотелось бы изменить. Не нужен вход в гараж из тамбура. На одной половине тамбура собственно сам тамбур, а другой кладовка или гардеробная для верхней одежды. Или же увелечение санузла пнрвого этажа за счёт этой площади. Эркер тоже не нужен. Кухня и гостинная роздельные. Может подскажите плюсы и минусы проэкта. мне понравился..... единственное ...так я бы переделал балкончик ...закрыл бы его и получились бы два эркера к каждой комнате.. .. если конечно он не выходит на океан или в поле... )))) вы на нем будете только один раз...когда построите .. ......а потом только будете убрать мусор и снег ..))) Посилання на коментар Поділитися на інших сайтах More sharing options...
VW2010 Опубліковано: 7 листопада 2011 Автор Поділитись Опубліковано: 7 листопада 2011 По поводу балкончика, наверное, Вы правы. Но мне кажется, что он выполняет ещё и функцию козырька над входом в дом. Посилання на коментар Поділитися на інших сайтах More sharing options...
Milalika Опубліковано: 7 листопада 2011 Поділитись Опубліковано: 7 листопада 2011 Проект неплохой, но мне не хватает: - гардеробной - кладовок Посилання на коментар Поділитися на інших сайтах More sharing options...
ionico Опубліковано: 7 листопада 2011 Поділитись Опубліковано: 7 листопада 2011 Попался на глаза проэкт. Кое что хотелось бы изменить. Не нужен вход в гараж из тамбура. На одной половине тамбура собственно сам тамбур, а другой кладовка или гардеробная для верхней одежды. Или же увелечение санузла пнрвого этажа за счёт этой площади. Эркер тоже не нужен. Кухня и гостинная роздельные. Может подскажите плюсы и минусы проэкта. Проект, действительно, хороший. На месте перехода из гаража лучше, всё, же гардеробную. Можно добавить кладовую под лестницей. Не очень хорошо то, что с/у точно над жилой комнатой. Я бы попробовал поменять местами с/у 6 и комнату 7 на 2 этаже. Как на участок садится дом? Ориентация? Посилання на коментар Поділитися на інших сайтах More sharing options...
VW2010 Опубліковано: 7 листопада 2011 Автор Поділитись Опубліковано: 7 листопада 2011 Именно так. На сайте. откуда этот проэкт есть много фотографий построеного такого дома снаружи и внутри. Так вот там у многих под лестницей сделаны помещения, наверное кладовочка. Посилання на коментар Поділитися на інших сайтах More sharing options...
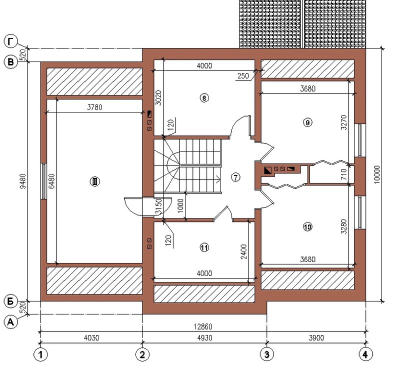
VW2010 Опубліковано: 7 листопада 2011 Автор Поділитись Опубліковано: 7 листопада 2011 Вот лестница в этом доме. Место под ней есть. Посилання на коментар Поділитися на інших сайтах More sharing options...
VW2010 Опубліковано: 7 листопада 2011 Автор Поділитись Опубліковано: 7 листопада 2011 Вход в дом с южной стороны. Гостинная и спалльня первого этажа выходят на север. Гараж на запад. Можно отзеркалить, тогда гараж будит с восточной стороны участка Посилання на коментар Поділитися на інших сайтах More sharing options...
VW2010 Опубліковано: 7 листопада 2011 Автор Поділитись Опубліковано: 7 листопада 2011 Наверное второй вариант предпочтительнее Посилання на коментар Поділитися на інших сайтах More sharing options...
ionico Опубліковано: 7 листопада 2011 Поділитись Опубліковано: 7 листопада 2011 Кухня на юг, гостиная с террасой на север - не очень. И забираю свои слова назад насчёт "поменять местами с/у 6 и комнату 7 на 2 этаже" Посилання на коментар Поділитися на інших сайтах More sharing options...
VW2010 Опубліковано: 7 листопада 2011 Автор Поділитись Опубліковано: 7 листопада 2011 Кухня на юг, гостиная с террасой на север - не очень. И забираю свои слова назад насчёт "поменять местами с/у 6 и комнату 7 на 2 этаже" А если наоборот. Гостиная на юг, кухня с террасой на север. Посилання на коментар Поділитися на інших сайтах More sharing options...
руки_из_попы Опубліковано: 8 листопада 2011 Поділитись Опубліковано: 8 листопада 2011 По поводу балкончика, наверное, Вы правы. Но мне кажется, что он выполняет ещё и функцию козырька над входом в дом. козырек же остается.. просто балкончик окажется не балкончиком.... а эркером со стенками... Посилання на коментар Поділитися на інших сайтах More sharing options...
ionico Опубліковано: 9 листопада 2011 Поділитись Опубліковано: 9 листопада 2011 А если наоборот. Гостиная на юг, кухня с террасой на север. Будет немного лучше, но всё равно не лучше всего. Дом должен "поглощать" лучи Солнца использую все возможности. Даже если света будет много, то всегда можно повесить шторы/затенители/ и т. д. Посилання на коментар Поділитися на інших сайтах More sharing options...
seyvalter Опубліковано: 9 листопада 2011 Поділитись Опубліковано: 9 листопада 2011 Недоліки: 1,Сан.вузол першого поверху 3 квадрата і відсутність природного освітлення і ЛЮБОЇ ВЕНТИЛЯЦІЇ - на мій погляд -це просто ...опа! 2, відсутні вентканали з кухні - не критично але дуже небажано... 3,сама кухня 9 квадратів - мало! (чисто суб"єктивно) 4,сан.вузол на другому поверсі - по нормам (які вже не раз цитувались на форумі) - не можна робити сан.вузол над житловою кімнатою. Без норм (чисто по хазяйські) - це просто не практично + треба ставити додатковий каналізаційний стояк + труби по всьому будинку.... Воно вам треба? Резюме - шукати ще! 100% бачив набагато кращі і практичніші планування... Посилання на коментар Поділитися на інших сайтах More sharing options...
VW2010 Опубліковано: 9 листопада 2011 Автор Поділитись Опубліковано: 9 листопада 2011 Недоліки: 1,Сан.вузол першого поверху 3 квадрата і відсутність природного освітлення і ЛЮБОЇ ВЕНТИЛЯЦІЇ - на мій погляд -це просто ...опа! 2, відсутні вентканали з кухні - не критично але дуже небажано... 3,сама кухня 9 квадратів - мало! (чисто суб"єктивно) 4,сан.вузол на другому поверсі - по нормам (які вже не раз цитувались на форумі) - не можна робити сан.вузол над житловою кімнатою. Без норм (чисто по хазяйські) - це просто не практично + треба ставити додатковий каналізаційний стояк + труби по всьому будинку.... Воно вам треба? Резюме - шукати ще! 100% бачив набагато кращі і практичніші планування... Думаю вентканалы кухни и санузла архитектор, к которому я понесу эти планеровки, предусмотрит. Кухню хочу увеличить за счёт площади гостинной, квадратов на 6. По поводу санузла первого этажа писал в первом посте. Можно его розширить за счёт тамбура, там где дверь в гараж. Или всё же оставить санузел таким как есть, а другой половине тамбура сделать гардеробную? Если площадь санузла останется как на планеровке, думаю это не критично. В квартире у нас санузел 1.6 на 1.7, меня устраивает. Темболее он не единственный в доме. По поводу саузла второго этажа полностью согласен, Видел это с самого начала. Для этого и создавалась тема, что-бы с Вашеей помощью решить где его лучше розместить. Может над гаражом или вместо спальни над санузлом первого этажа и тамбуром? По моему 12 квадратов многовато для этого + огромное окно. Какие есть ещё варианты по санузлу второго этажа? Посилання на коментар Поділитися на інших сайтах More sharing options...
ionico Опубліковано: 9 листопада 2011 Поділитись Опубліковано: 9 листопада 2011 Можно попробовать разместить его над гаражом. Отзеркалить лестницу, на 2 этаже разместить дверь в помещение над гаражом на текущем месте вентканалов. В и этом месте с/у. Там хорошо, что уровень перекрытия ниже. Посилання на коментар Поділитися на інших сайтах More sharing options...
VW2010 Опубліковано: 13 листопада 2011 Автор Поділитись Опубліковано: 13 листопада 2011 Вот немного почёркал первый этаж. Какие мнения будут по поводу розположения газового котла в этом месте. С другой стороны камин. Один дымоход для камина и котла. ТТ котёл в топочной. Под лестницей гардиробная или кладовка.Ещё один вопрос. Получится ли так розположить котёл и камин, если кухню и гостинную поменять местами. Хотелось бы, чтобы выход на терассу был из кухни? Посилання на коментар Поділитися на інших сайтах More sharing options...
ionico Опубліковано: 13 листопада 2011 Поділитись Опубліковано: 13 листопада 2011 С точки зрения ориентации - конечно лучше кухню и гостиную поменять местами. Заодно и террасу Тогда стенку с камином - в глубину дома на уровень перегородки спальной комнаты. С вентканалами, думаю, проблем быть не должно 1 Посилання на коментар Поділитися на інших сайтах More sharing options...
Artyomovets Опубліковано: 13 листопада 2011 Поділитись Опубліковано: 13 листопада 2011 камин - к стене гостиной и спальни а вот котел на кухне и ТТ котел в хозблоке... а не лучше их рядом поставить? а вообще, плнаировка напоминает мои чертежи 1 Посилання на коментар Поділитися на інших сайтах More sharing options...
VW2010 Опубліковано: 13 листопада 2011 Автор Поділитись Опубліковано: 13 листопада 2011 камин - к стене гостиной и спальни а вот котел на кухне и ТТ котел в хозблоке... а не лучше их рядом поставить? а вообще, плнаировка напоминает мои чертежи Рядом, в смысле оба в котельной? А этонормально,что доступ к газовому котлу только через улицу? Из дома входа в котельную нет. Посилання на коментар Поділитися на інших сайтах More sharing options...
Artyomovets Опубліковано: 14 листопада 2011 Поділитись Опубліковано: 14 листопада 2011 Рядом, в смысле оба в котельной? А этонормально,что доступ к газовому котлу только через улицу? Из дома входа в котельную нет. я по нормам не силен. думаю, что можно через гараж сделать проход. Посилання на коментар Поділитися на інших сайтах More sharing options...
VW2010 Опубліковано: 15 листопада 2011 Автор Поділитись Опубліковано: 15 листопада 2011 Между этими планировками есть сходство? Или мне кажется. Посилання на коментар Поділитися на інших сайтах More sharing options...
ionico Опубліковано: 15 листопада 2011 Поділитись Опубліковано: 15 листопада 2011 Конечно есть Почти зеркальные копии Посилання на коментар Поділитися на інших сайтах More sharing options...
VW2010 Опубліковано: 25 листопада 2011 Автор Поділитись Опубліковано: 25 листопада 2011 Работа над изменениями ещё идёт, пока планировка имеет такой вид Посилання на коментар Поділитися на інших сайтах More sharing options...
VW2010 Опубліковано: 25 листопада 2011 Автор Поділитись Опубліковано: 25 листопада 2011 По поводу первого этажа не определюсь с расположением кухни и гостинной, севр-юг. Первый вариант. Кухня на север, гостинная на юг. Хотелось бы отдельный вход в кухню, даже если она будит совмещена с готинной. Если сделать вход в кухню возле спальни, то не будит места для котла. Хотел его розместить с одной стороны дымохода между кухней и гостинной. Если сдвинуть дымоход в сторону гостинной, то гостинная станет совсем маленькой, сейчас 16 метров. Выход на терассу из кухни на северную сторону. Второй вариант. Кухня на юг, гостинная на север. Двигаем дымоход в сторону севера. Площади кухни и гостинной остаются как и раньше. Есть место для газового котла. Убираем выход из гостинной на терасу, и собственно саму тервссу. С южной стороны делаем терассу ( или как это называется) на всю ширину дома, которая будит выполнять ещё и роль навеса над входом. Третий вариант. ВАШ вариант. Надеюсь понятно написал. Какой вариант лучше? Посилання на коментар Поділитися на інших сайтах More sharing options...
Рекомендовані повідомлення
Створіть акаунт або увійдіть у нього для коментування
Ви маєте бути користувачем, щоб залишити коментар
Створити акаунт
Зареєструйтеся для отримання акаунта. Це просто!
Зареєструвати акаунтУвійти
Вже зареєстровані? Увійдіть тут.
Увійти зараз