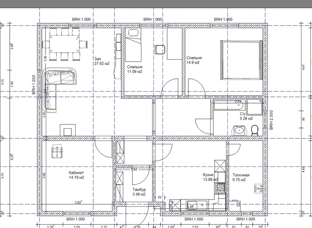
Mentor Опубліковано: 16 грудня 2011 Поділитись Опубліковано: 16 грудня 2011 Итак, подошел ближе к реализации своей мечты. Выбран представленный проект. В нем мне нравится практически все (даже выступающий клин, против которого я некоторое время протестовал, но просмотрев с десяток примеров реализации - сдался:D). Но...есть несколько "зауважень":(, в чем и прошу помощи, ибо мозг уже сломал (то ли взгляд замылился, то ли где зациклился, потому и прошу мнения сторонних наблюдателей),итак: - первое и главное - как лучше сместить санузел к кухне/топочной? - убивает огромная гостинная:sad: В общем, дайте свежий взгляд на перепланировку - может сдвинусь с мертвой точки%) Расположение дома - фасадом практически на север. Благодарю заранее! Посилання на коментар Поділитися на інших сайтах More sharing options...
nuht2007 Опубліковано: 16 грудня 2011 Поділитись Опубліковано: 16 грудня 2011 Итак, подошел ближе к реализации своей мечты. Выбран представленный проект. В нем мне нравится практически все (даже выступающий клин, против которого я некоторое время протестовал, но просмотрев с десяток примеров реализации - сдался:D). Но...есть несколько "зауважень":(, в чем и прошу помощи, ибо мозг уже сломал (то ли взгляд замылился, то ли где зациклился, потому и прошу мнения сторонних наблюдателей),итак: - первое и главное - как лучше сместить санузел к кухне/топочной? - убивает огромная гостинная:sad: В общем, дайте свежий взгляд на перепланировку - может сдвинусь с мертвой точки%) Расположение дома - фасадом практически на север. Благодарю заранее! Ну вообще размер гостинной нормальный, а если сильно напрягает, то я бы увеличила спальни за счет "лишней" площади в гостинной.Мне кажется что 13 метров маловато, ну хотя бы по 15. ИМХО Посилання на коментар Поділитися на інших сайтах More sharing options...
Artyomovets Опубліковано: 16 грудня 2011 Поділитись Опубліковано: 16 грудня 2011 - первое и главное - как лучше сместить санузел к кухне/топочной? если без сложных изменений - менять вход и санузел местами. как по мне, так санузел маловат для единственного в доме. если не двигать вход - тогда достаточно сильно перестраивать внутренности. грубо говоря, делать новую планировку Посилання на коментар Поділитися на інших сайтах More sharing options...
nuht2007 Опубліковано: 16 грудня 2011 Поділитись Опубліковано: 16 грудня 2011 По поводу размера санузла тоже согласна, так вот если увеличить спальни, то стену санузла тоже можно подвинуть и расширить. Что касается месторасположения, если поменять с входом, то тоже не очень, получается что двери спален выходят на главный вход. Хотя в данном случае это единственный выход. Посилання на коментар Поділитися на інших сайтах More sharing options...
ПЛАСТИК Опубліковано: 16 грудня 2011 Поділитись Опубліковано: 16 грудня 2011 итак: - первое и главное - как лучше сместить санузел к кухне/топочной? А никак. С/у расположен по зонированию пространства на своем месте, возле спален. Вам немешало бы, возможно, предусмотреть где нибудь еще небольшой "гостевой" с/у. Посилання на коментар Поділитися на інших сайтах More sharing options...
nuht2007 Опубліковано: 16 грудня 2011 Поділитись Опубліковано: 16 грудня 2011 Да, скорее всего пожертвовать 2-мя метрами кухни. Но тут уже планировка попляшет... Посилання на коментар Поділитися на інших сайтах More sharing options...
Artyomovets Опубліковано: 16 грудня 2011 Поділитись Опубліковано: 16 грудня 2011 если рассматривать планировку дальше: 1. проходная топочная и кухня - как по мне неудобно 2. нет ни кладовки ни гардеробной 3. зонирование гостиной на рисунке - неудачное. зона отдыха ближе к кухне, а обеденно-праздничная - дальше 4. барная стойка между кухней и гостиной - распространение всех кухонных запахов по всему дому. 5. гараж сильно узкий и вытянутый. размеров нет, правда. если ширина - достаточная, тогда там еще и хозблок уместится. 6. на кухне, по идее, должна быть колонна для вытяжки. 7. этот столик на кухне возле варочной поверхности - совсем как-то странновато 8. представьте себе путь из кухни на террасу. это даже не через гостиную, а через холл + гостиную... Посилання на коментар Поділитися на інших сайтах More sharing options...
Mentor Опубліковано: 16 грудня 2011 Автор Поділитись Опубліковано: 16 грудня 2011 А никак. С/у расположен по зонированию пространства на своем месте, возле спален. Вам немешало бы, возможно, предусмотреть где нибудь еще небольшой "гостевой" с/у. Согласен на 100% - с/у на своем месте в плане удобства! НО...гемор с практической реализацией!!! Разводка водопровода и канализации.....:sad: Посилання на коментар Поділитися на інших сайтах More sharing options...
ПЛАСТИК Опубліковано: 16 грудня 2011 Поділитись Опубліковано: 16 грудня 2011 Согласен на 100% - с/у на своем месте в плане удобства! НО...гемор с практической реализацией!!! Разводка водопровода и канализации.....:sad: Трудно не согласится Гемор с практической реализацией один раз, а удобства - на все оставшеесее время. Посилання на коментар Поділитися на інших сайтах More sharing options...
Mentor Опубліковано: 16 грудня 2011 Автор Поділитись Опубліковано: 16 грудня 2011 если не двигать вход - тогда достаточно сильно перестраивать внутренности. грубо говоря, делать новую планировку Таки да....менять местами вход не хочу. Сейчас думаю над взаимным переносом гостинной и спален - зеркально. Реализовать визуально не могу ибо Аркон упорно не могу поставить на виду 7:mad:.... Посилання на коментар Поділитися на інших сайтах More sharing options...
Artyomovets Опубліковано: 16 грудня 2011 Поділитись Опубліковано: 16 грудня 2011 тут люди в Экселе рисовали планы. я - в визио. так что это не принципиально. главное - поймать концепцию... Посилання на коментар Поділитися на інших сайтах More sharing options...
Mentor Опубліковано: 16 грудня 2011 Автор Поділитись Опубліковано: 16 грудня 2011 если рассматривать планировку дальше: 1. проходная топочная и кухня - как по мне неудобно 2. нет ни кладовки ни гардеробной 3. зонирование гостиной на рисунке - неудачное. зона отдыха ближе к кухне, а обеденно-праздничная - дальше 4. барная стойка между кухней и гостиной - распространение всех кухонных запахов по всему дому. 5. гараж сильно узкий и вытянутый. размеров нет, правда. если ширина - достаточная, тогда там еще и хозблок уместится. 6. на кухне, по идее, должна быть колонна для вытяжки. 7. этот столик на кухне возле варочной поверхности - совсем как-то странновато 8. представьте себе путь из кухни на террасу. это даже не через гостиную, а через холл + гостиную... Итак по порядку: 1. Мне нормально, если перенесу с/у со спальнями на место гостинной буду думать о проходном с/у, а кухню замкнем.. 2. Мы люди простые:D-в гардеробах не нуждаемся! А серьезно - в плане полно ниш под шкафы купе, роль хломавника будет отведена частично гаражу, частично чердаку 3/4/7. Об этом вообще не думаю сейчас - то что на картинке - фантазия архитекторов. Я не буду делать барной стойки и окна в гостинную из кухни (ну вот не люблю и все тут - считайте, что религия не позволяет) газ. плита тоже не будет посреди кухни находится.... 5. Гараж узкий в силу ограниченности по участку, а вытянутый для того , чтоб в конце можна было какой-никакой верстак поставить и т.п.. 6.Вытяжка будет в стене смежной с топочной. 8. Нисколько не напрягает ибо не будет таким уж распространенным маршрутом передвижения. Посилання на коментар Поділитися на інших сайтах More sharing options...
Artyomovets Опубліковано: 16 грудня 2011 Поділитись Опубліковано: 16 грудня 2011 5 - мы плавно подошли к моменту, когда надо показать дом на участке 8 - летом - будет постоянно. не верите - спросите уже живущих. 1 Посилання на коментар Поділитися на інших сайтах More sharing options...
Alisa3 Опубліковано: 16 грудня 2011 Поділитись Опубліковано: 16 грудня 2011 А я бы клин убрала. Мне кажется, так было бы красивее и лучше: тамбур больше (раз нет гардеробной) и кухня более правильной формы. Но это чисто моё мнение со стороны. Посилання на коментар Поділитися на інших сайтах More sharing options...
Archist Опубліковано: 16 грудня 2011 Поділитись Опубліковано: 16 грудня 2011 ... 8 - летом - будет постоянно. не верите - спросите уже живущих. Стопудово! Посилання на коментар Поділитися на інших сайтах More sharing options...
Finn1 Опубліковано: 16 грудня 2011 Поділитись Опубліковано: 16 грудня 2011 Итак, подошел ближе к реализации своей мечты. Выбран представленный проект. В нем мне нравится практически все (даже выступающий клин, против которого я некоторое время протестовал, но просмотрев с десяток примеров реализации - сдался:D). Но... Благодарю заранее! Клин можно заменить шестигранником, такой эркер не будет так "колоть":D Посилання на коментар Поділитися на інших сайтах More sharing options...
ionico Опубліковано: 16 грудня 2011 Поділитись Опубліковано: 16 грудня 2011 Mentor, чем обусловлено желание сместить с/у к кухне? Я думаю, что с архитектурной точки зрения, текущее положение более логично: в глубине дома и ближе к спальным комнатам. Лично мне смена положения с/у без внесения серьёзных корректировок планы (а, судя по всему, и в объём), не видится. Посилання на коментар Поділитися на інших сайтах More sharing options...
Mentor Опубліковано: 16 грудня 2011 Автор Поділитись Опубліковано: 16 грудня 2011 Mentor, чем обусловлено желание сместить с/у к кухне? Я думаю, что с архитектурной точки зрения, текущее положение более логично: в глубине дома и ближе к спальным комнатам. Лично мне смена положения с/у без внесения серьёзных корректировок планы (а, судя по всему, и в объём), не видится. Причина одна-желание сэкономить за счет разводки труб, канализации, отопления, вентиляции......думаю пока. На выходных переустановлю Аркон -немного поиграюсь, результат выложу на суд. Повторюсь - текущее расположение с/у мне нравится, но....... Посилання на коментар Поділитися на інших сайтах More sharing options...
Mentor Опубліковано: 17 січня 2012 Автор Поділитись Опубліковано: 17 січня 2012 Путем перетаскиваний и переустановок родился вариант, отличный от прародителя, кардинально: от примыкающего гаража пришлось отказаться ввиду узости участка - придется либо достраивать позже (в глубине участка) либо остановиться на навесе, убрал выступ кухни (после расчета крышы и гемора с перекрытием, решил и это архитектурное излишество убрать,решил таки сместить с/у к топочной и кухне, а заодно прихватил и поменял местами гостинную со спальнями:D Это уже 4 вариант перетасовок и фантазии у меня закончились... Взгляд замылен еще больше, так что если кому не лень - советуйте. Посилання на коментар Поділитися на інших сайтах More sharing options...
Татьяна5 Опубліковано: 17 січня 2012 Поділитись Опубліковано: 17 січня 2012 Вы не женаты? если женаты, то странно, как жена разрешила так расположить кухню относительно гостинной 2 Посилання на коментар Поділитися на інших сайтах More sharing options...
Alisa3 Опубліковано: 17 січня 2012 Поділитись Опубліковано: 17 січня 2012 Верните гостиную на место))) Посилання на коментар Поділитися на інших сайтах More sharing options...
Mentor Опубліковано: 17 січня 2012 Автор Поділитись Опубліковано: 17 січня 2012 если женаты, то странно, как жена разрешила так расположить кухню относительно гостинной вообще-то -это ее идея!:D. И да....растояние от кухни до гостинной по сравнению с прошлым вариантом увеличилось аж на 4 шага. , а если учесть наш опыт проживания в квартире - то топать из кухоньки 4м2 в гостинную 18м2 и то больше!:D Посилання на коментар Поділитися на інших сайтах More sharing options...
nuht2007 Опубліковано: 17 січня 2012 Поділитись Опубліковано: 17 січня 2012 Зачем тогда строить дом со своими идеями и придумывать индивидуальный проект, если топанье из кухни в гостинную устраивает?ИМХО, не сдержалась Посилання на коментар Поділитися на інших сайтах More sharing options...
Maris Опубліковано: 17 січня 2012 Поділитись Опубліковано: 17 січня 2012 Первый вариант был более рациональным. Во втором варианте в топочной нет двери, а по нормам должна быть. Зал желательно возле кухни, на месте спальни 14,9м2. только куда девать сан узел? Посилання на коментар Поділитися на інших сайтах More sharing options...
Mentor Опубліковано: 18 січня 2012 Автор Поділитись Опубліковано: 18 січня 2012 Зачем тогда строить дом..... и придумывать индивидуальный проект, если топанье из кухни в гостинную устраивает? :D:D:D, что значит устраивает???? В квартире не устраивает, потому и планируем дом, я уже не первый год на форуме(да и в строительстве вообще), так что к стойкой предубежденности барышень, о выходе из кухни сразу в гостинную, уже привык. Простите , но это -бзик. По сравнению с прошлым вариантом все так же нужно выйти из кухни, только потом повернуть не на право, а на лево и сделать....на несколько шагов больше. Ну не марафон же... Первый вариант был более рациональным Да, я об этом писал, НО огромное расстояние с/у от топочной меня просто выводило из себя, если бы на улице было централизованое "водопостачання" - нет вопросов, так бы и делал. Представте себе, сколько нужно времени , что бы котел прогнал теплую воду "для помыться"-порядка 11м, а теплый пол? а канализация? Теперь же все потребитили сведены в один блок, упростится система вентиляции, водоподвода и канализации. Камин теперь будет обогревать и гостинную и соседний кабинет(воздуховоды+ дымоход Изокерн) По сути , по сравнению с первоначальным вариантом, я зеркально сместил комнаты: спальни с с/у- к топочной, а гостинную - в противоположный угол... Во втором варианте в топочной нет двери, ну вообще-то есть - из кухни. Котел у меня турбированый - зачем отдельный вход? только из-за названия? Ну может тогда обозвать ее кладовкой?;) или вообще сделать вид, что это продолжение кухни?:D Посилання на коментар Поділитися на інших сайтах More sharing options...
Рекомендовані повідомлення
Створіть акаунт або увійдіть у нього для коментування
Ви маєте бути користувачем, щоб залишити коментар
Створити акаунт
Зареєструйтеся для отримання акаунта. Це просто!
Зареєструвати акаунтУвійти
Вже зареєстровані? Увійдіть тут.
Увійти зараз