Alisa3 Опубліковано: 8 травня 2012 Поділитись Опубліковано: 8 травня 2012 Мы флудим в чужй теме. Дальше в личку Посилання на коментар Поділитися на інших сайтах More sharing options...
Acidius Опубліковано: 10 травня 2012 Автор Поділитись Опубліковано: 10 травня 2012 Вариант 2: Посилання на коментар Поділитися на інших сайтах More sharing options...
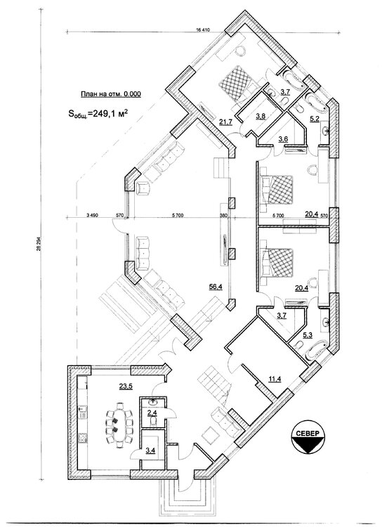
Acidius Опубліковано: 10 травня 2012 Автор Поділитись Опубліковано: 10 травня 2012 И третий вариант: Посилання на коментар Поділитися на інших сайтах More sharing options...
вторик Опубліковано: 10 травня 2012 Поділитись Опубліковано: 10 травня 2012 по второму видно что нарисовать планировку у Вас таки получится в конечном итоге, он лучше остальных. Ваша проблема в том что вход с севера и Вы не знаете как с этим боротся. Попробуйде организовать вход не влоб а сбоку с поворотом на 90 градусов. Посилання на коментар Поділитися на інших сайтах More sharing options...
Acidius Опубліковано: 19 вересня 2012 Автор Поділитись Опубліковано: 19 вересня 2012 Пока конечный))) вариант 1 Посилання на коментар Поділитися на інших сайтах More sharing options...
armis_8171 Опубліковано: 23 вересня 2012 Поділитись Опубліковано: 23 вересня 2012 А Вы гостей никогда не принимаете? Желательно иметь гостевую спальню и гостевой санузел (у Вас он есть, но без душа) Посилання на коментар Поділитися на інших сайтах More sharing options...
Acidius Опубліковано: 24 вересня 2012 Автор Поділитись Опубліковано: 24 вересня 2012 А Вы гостей никогда не принимаете? Желательно иметь гостевую спальню и гостевой санузел (у Вас он есть, но без душа) Спасибо за замечание. Гостей принимаем (и даже провожаем), иногда живут неделями (это сейчас в 4-х комнатной квартире). Отдельную гостевую считаю не целесообразной. Именно (вернее одной из причин) поэтому и не стал обьединять кухню-столовую-гостинную. Гостинная - отдельная изолированная комната - пусть живут. В "гостевом" санузле будет и душевая кабинка - просто пока до конца не определился с проектом - поэтому и пишу в этой ветке. Посилання на коментар Поділитися на інших сайтах More sharing options...
Рекомендовані повідомлення
Створіть акаунт або увійдіть у нього для коментування
Ви маєте бути користувачем, щоб залишити коментар
Створити акаунт
Зареєструйтеся для отримання акаунта. Це просто!
Зареєструвати акаунтУвійти
Вже зареєстровані? Увійдіть тут.
Увійти зараз