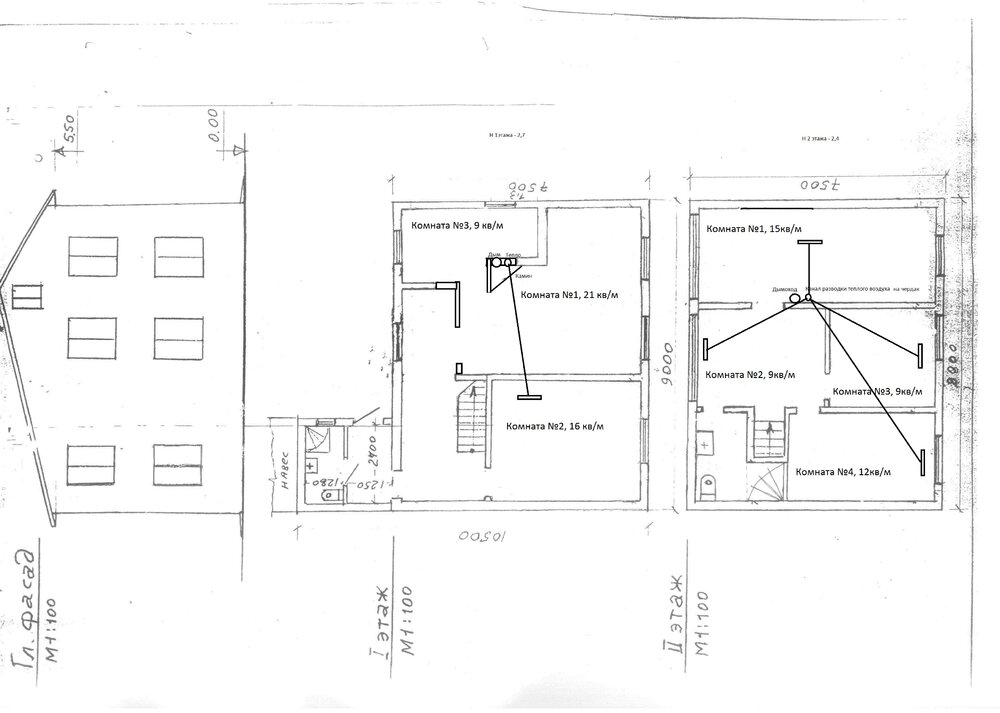
Timur. Опубліковано: 19 січня 2012 Поділитись Опубліковано: 19 січня 2012 (змінено) Здравствуйте. Подскажите, есть ли вообще смысл начинать реализововыать затею с принудительной подачей теплого воздуха через чердак по комнатам второго этажа и конвекционным способом в комнату №2 первго этажа (канал от камина под потолком) от топки Нордпис 25 (которую приобрел), и облицовки Еллен Хай (которую заказал). Сразу скажу, что данное строение является дачей (110 кв.м), газ отсутствует, поставил конвектора для того чтоб зимой дом не мерз в наше отсутствие. Дом построен в полтора кирпича, не утеплен. Утепляться буду! Как и чем еще не знаю. Хочется максимально греться от камина. Вот план дома с тем вариантом разводки ,что думаю делать. Спасибо за дельные советы разбирающихся. Змінено 31 січня 2012 користувачем Прохожий Конкретизирую вопрос Посилання на коментар Поділитися на інших сайтах More sharing options...
Timur. Опубліковано: 20 січня 2012 Автор Поділитись Опубліковано: 20 січня 2012 Итак, размышления вслух, с надеждой на помощь в исправлении ошибок. Для комнаты на первом этаже хочу применить сегментную систему (ребристая, оцинкованная круглая труба (ссылка устарела) ). Расстояние от камина до выходной решетки до 3 метров. Вопрос - какое сечение трубы применить и будет ли эта затея работать? На втором этаже принудительная система распределения теплого воздуха с использованием вентилятора и распред коробки на 5 выходов (описание по ссылке выше). Вопрос 1 - можно ли установить вентилятор на расстоянии 4,5 - 5 метров от камина на чердаке? (в описании и условиях работы данной системы говорится максимум о 4 метрах) будет ли этот лишний пятый метр принципиальным в моем случае? Вопрос 2 -трубу какого сечения необходимо установить на участке камин-вентилятор? Вопрос 3 - Можно ли установить на участке камин-вентилятор заизолированную эластичную трубу. Длины каналов от распред коробки на второй этаж РК - Комната №1 до 2 метров РК - Комната №2 до 3 метров РК - Комната №3 до 4 метров РК - Комната №4 до 6 метров Посилання на коментар Поділитися на інших сайтах More sharing options...
Timur. Опубліковано: 22 січня 2012 Автор Поділитись Опубліковано: 22 січня 2012 Здравствуйте. Подскажите, есть ли вообще смысл начинать реализововыать затею с принудительной подачей теплого воздуха через чердак по комнатам второго этажа и конвекционным способом в комнату №2 первго этажа (канал от камина под потолком) от топки Нордпис 25 (которую приобрел), и облицовки Еллен Хай (которую заказал). Сразу скажу, что данное строение является дачей (110 кв.м), газ отсутствует, поставил конвектора для того чтоб зимой дом не мерз в наше отсутствие. Дом построен в полтора кирпича, не утеплен. Утепляться буду! Как и чем еще не знаю. Хочется максимально греться от камина. Вот план дома с тем вариантом разводки ,что думаю делать. Спасибо за дельные советы разбирающихся. Уважаемые специалисты, неужели никто не выскажет свое мнение по поводу моей задумки? Посилання на коментар Поділитися на інших сайтах More sharing options...
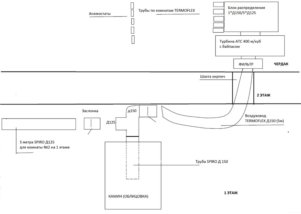
Timur. Опубліковано: 23 січня 2012 Автор Поділитись Опубліковано: 23 січня 2012 Вот такую схему распределения теплого воздуха по дому составил. Что в схеме можно или нужно изменить? Посилання на коментар Поділитися на інших сайтах More sharing options...
Misha_k Опубліковано: 23 січня 2012 Поділитись Опубліковано: 23 січня 2012 Такой тройник нельзя. Там же турбина тянет принудительно - все перетянет. Термофлекс, если это растягивающиеся каналы с изоляцией пленочкой - нельзя, трескаются, создают ненужное сопротивление. Выложите лучше планы этажей глянуть, желательно с расстановкой мебели. Так проще будет определиться, что куда. 1 Посилання на коментар Поділитися на інших сайтах More sharing options...
Timur. Опубліковано: 24 січня 2012 Автор Поділитись Опубліковано: 24 січня 2012 Спасибо, Михаил. На счет тройника - не правильно нарисовал. - Ниже вариант с исправленным тройником. - Второй вариант с двумя трубами, входящими в облицовку камина. - Описание воздуховодов Термофлекс. Вроде как именно для этих целей предназначены. На счет плана дома с расстановкой мебели - план дома есть в первом сообщении, выводить анемостаты планирую в потолке над окнами, на счет расстановки мебели еще не думал - рано). Прокомментируйте пожалуйста. Посилання на коментар Поділитися на інших сайтах More sharing options...
1В1 Опубліковано: 24 січня 2012 Поділитись Опубліковано: 24 січня 2012 Уважаемые специалисты, неужели никто не выскажет свое мнение по поводу моей задумки? Можно делать разводку в чём праблема ? гофры прятать ...расстояние отличное... купил (банан)-распредилитель тепла ? пульт к нему....и в бой))))))) Посилання на коментар Поділитися на інших сайтах More sharing options...
1В1 Опубліковано: 24 січня 2012 Поділитись Опубліковано: 24 січня 2012 Спасибо, Михаил. На счет тройника - не правильно нарисовал. - Ниже вариант с исправленным тройником. - Второй вариант с двумя трубами, входящими в облицовку камина. - Описание воздуховодов Термофлекс. Вроде как именно для этих целей предназначены. На счет плана дома с расстановкой мебели - план дома есть в первом сообщении, выводить анемостаты планирую в потолке над окнами, на счет расстановки мебели еще не думал - рано). Прокомментируйте пожалуйста. диаметр бери такой как на распределителе или кожухе.... Посилання на коментар Поділитися на інших сайтах More sharing options...
Timur. Опубліковано: 24 січня 2012 Автор Поділитись Опубліковано: 24 січня 2012 Присмотрел турбину. Но не банан. Банан вроде Польский (как объяснили). Нашел АТС Бельгия с байпасом. А на счет диаметра как на распределителе не понял. Посилання на коментар Поділитися на інших сайтах More sharing options...
1В1 Опубліковано: 25 січня 2012 Поділитись Опубліковано: 25 січня 2012 Присмотрел турбину. Но не банан. Банан вроде Польский (как объяснили). Нашел АТС Бельгия с байпасом. А на счет диаметра как на распределителе не понял. У турбины какой диаметр подключения? 120-150 какой? Посилання на коментар Поділитися на інших сайтах More sharing options...
Timur. Опубліковано: 25 січня 2012 Автор Поділитись Опубліковано: 25 січня 2012 диаметр воздуховодов 125 Посилання на коментар Поділитися на інших сайтах More sharing options...
Timur. Опубліковано: 25 січня 2012 Автор Поділитись Опубліковано: 25 січня 2012 В профильной компании расчет делали и предложили на ввод в турбину 150 диамерт ставить Посилання на коментар Поділитися на інших сайтах More sharing options...
1В1 Опубліковано: 25 січня 2012 Поділитись Опубліковано: 25 січня 2012 В профильной компании расчет делали и предложили на ввод в турбину 150 диамерт ставить я делал один к одному и норм....ты представь это переходники с одного на другой диаметр . я считаю если в турбине 125 то и делать 125...вот так.....и гофра меньше и цена меньше и обьём меньше а тяга что 125---что150 ты ёё сам регулир. Посилання на коментар Поділитися на інших сайтах More sharing options...
1В1 Опубліковано: 25 січня 2012 Поділитись Опубліковано: 25 січня 2012 В профильной компании расчет делали и предложили на ввод в турбину 150 диамерт ставить единственное подобрать турбину по Вашей квадратуре если если диаметр турбины больше токда через переходник))) Посилання на коментар Поділитися на інших сайтах More sharing options...
Timur. Опубліковано: 25 січня 2012 Автор Поділитись Опубліковано: 25 січня 2012 Согласен, думаю так же. Решил уточнить. А что думаете на счет двух вариантов вівода теплого воздуха из облицовки (с тройником и с двумы трубами) как на схемах выше. Посилання на коментар Поділитися на інших сайтах More sharing options...
Timur. Опубліковано: 25 січня 2012 Автор Поділитись Опубліковано: 25 січня 2012 400 кубов это минимальная турбина. Но есть регулятор мощности. У меня отапливаемого пространства на 2 этаже около 150 кубов. Посилання на коментар Поділитися на інших сайтах More sharing options...
1В1 Опубліковано: 25 січня 2012 Поділитись Опубліковано: 25 січня 2012 400 кубов это минимальная турбина. Но есть регулятор мощности. У меня отапливаемого пространства на 2 этаже около 150 кубов. Вы меня простите но счема мне не понятна((((( Посилання на коментар Поділитися на інших сайтах More sharing options...
Timur. Опубліковано: 31 січня 2012 Автор Поділитись Опубліковано: 31 січня 2012 Процесс создания камина. Просто выкладываю фотки) Посилання на коментар Поділитися на інших сайтах More sharing options...
YUKS Опубліковано: 27 лютого 2012 Поділитись Опубліковано: 27 лютого 2012 Подскажите, можно ли обойтись без турбины, если нужно подать теплый воздух от камина на второй этаж только в одну комнату. Горизонтальный участок 10м. Можно ли поставить простой вентилятор на всасывание в этой комнате на 40-50м3/час ? Температура воздуха на выходе вроде не должна быть высокой, турбину некуда ставить, та и не нужна мне она за 2000гр на 400м3/час. Тут писали про какой то банан, что это ? Посилання на коментар Поділитися на інших сайтах More sharing options...
Майк Опубліковано: 29 лютого 2012 Поділитись Опубліковано: 29 лютого 2012 Была при Совке телепередача, Техника молодежи. Представляли изобретение, а потом "зубры" говорили свое мнение. Был там дядька, который всегда начинал речь " красота в простоте..." И раздевал под орех чрезмерные навороты. А еще есть выражение "плясать от печки". То есть ставилась печка среди хаты так, что бы , находясь в простенках, выходила в максимальное количество комнат. Короче, идея не нова. Я бы устроил форму камина - короб ( вокруг топки ) таким образом, что бы эток короб шел до потолка 1-го, и частично вышел на 2-м этаже в максимально количество помещений. Управляя регулиуемыми вентрешетками, мы без всяких рукавов подаем горячий воздух в нужное помещение. Судя по первой схеме, его прийтется не спрятать в уголочке, а сделать квадратным, так что бы на 2-м он попал в простенок , который сдвинут относительно 1-го этажа. Если простенков еще нет - я бы ради такого случая их бы перенес, если можно ( то самое плясать от печки). Зависимость от воздуховодов ( которые надо хорошо изолировать, наставить термовентиляторов недешевых - до 2 000 у.е , если все по уму, говорят ) в таком случае будет минимальна, и только в дальние помещения прийдется эти воздуховоды таки тянуть. А еще вспомним древних римлян, которые умудрялись строить печи в подвалах, а каналы печей проходили в полах под всем дворцом и в простенках. Вентиляторов у них не было. А прошло 2 000 лет.... Посилання на коментар Поділитися на інших сайтах More sharing options...
Рекомендовані повідомлення
Створіть акаунт або увійдіть у нього для коментування
Ви маєте бути користувачем, щоб залишити коментар
Створити акаунт
Зареєструйтеся для отримання акаунта. Це просто!
Зареєструвати акаунтУвійти
Вже зареєстровані? Увійдіть тут.
Увійти зараз