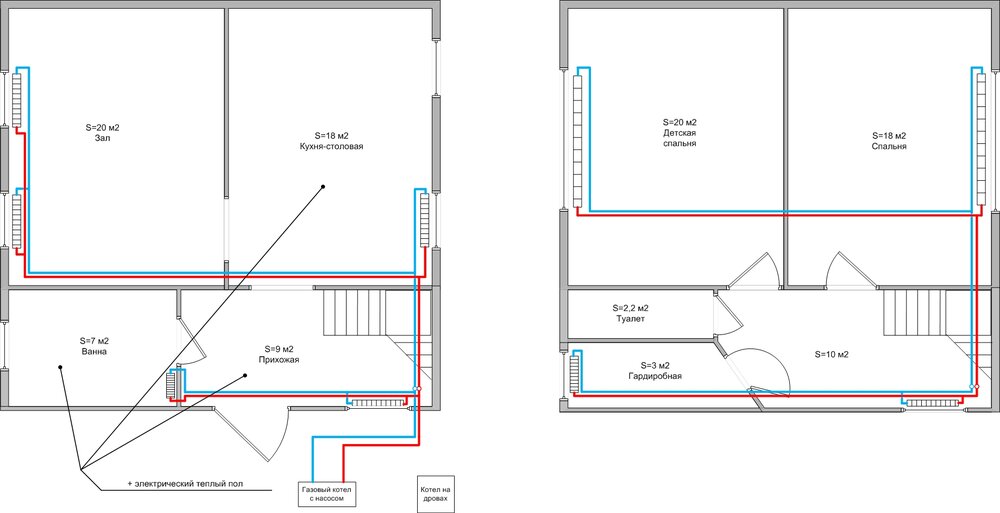
MSA Опубліковано: 21 січня 2012 Поділитись Опубліковано: 21 січня 2012 Здравствуйте, так как я в отоплении не профи (но представление того что делаю знаю), а делать придется все самому, пошу Вас форумчане помочь в следующем: 1. Дом с мансардой, стены газобетон, утепление мансарды 200 минваты, окна м\п.(все это пока еще не закончено, это исходной дляинформации); 2. В приложении мною набросаны два варианта отопления дома, с электро теплым полом и с водяным теплым полом, какой вариант лучше? Может вы посоветуете вовсе по другому!; 3. Будет отдельная котельная не в доме, в ней газовый котел (в размышлении как делать, котел + колонка или двухконтурный?) и котел на дровах, как их соединить, чтоб можно было переключать котлы? Вент каналы есть. (если можно принципиальную схему + куда установить расширительный бачок?); 4. Какой диаметр труб ставить? какие батареи? 5. Если можно прикиньте пожалуйста бюджет этого отопления (имеется только котел на дровах) Вроде все, подскажите пожалуйста ответы на вопросы! Заранее всем спасибо. Посилання на коментар Поділитися на інших сайтах More sharing options...
sah79 Опубліковано: 21 січня 2012 Поділитись Опубліковано: 21 січня 2012 Здравствуйте, так как я в отоплении не профи (но представление того что делаю знаю), а делать придется все самому, подскажите пожалуйста ответы на вопросы! . Я такой же как и Вы ,и позвольте Вам дать первый совет -сначала потратьте пару вечеров на изучение этого раздела.После чего пропадёт куча вопросов (появится конечно куча других вопросов,но они уже будут более правильные и присутвующим здесь профам будет гораздо легче на них ответить. Сам сначала задавал простые вопросы а потом начал тихонько изучение и даже отложил со на весну так как поменялась вся концепция (в гораздо лутшую сторону) 3 Посилання на коментар Поділитися на інших сайтах More sharing options...
Korni Опубліковано: 21 січня 2012 Поділитись Опубліковано: 21 січня 2012 .....5. Если можно прикиньте пожалуйста бюджет этого отопления (имеется только котел на дровах) Вроде все, подскажите пожалуйста ответы на вопросы!...... Прикинуть бюджет Несколько схем ТТ котлов Сначала почитайте Отопление - это просто Отопительные приборы и d-труб определяются теплотехническим (пример) и гидравлическим расчётом Может-поможет: Последовательность проектирования отопления Гидравлический расчет системы отопления Пример расчета отопления дома 4 Посилання на коментар Поділитися на інших сайтах More sharing options...
Korni Опубліковано: 21 січня 2012 Поділитись Опубліковано: 21 січня 2012 .....первый совет -сначала потратьте пару вечеров на изучение этого раздела.После чего пропадёт куча вопросов (появится конечно куча других вопросов,но они уже будут более правильные и присутвующим здесь профам будет гораздо легче на них ответить..... Спасибо, друг. Посилання на коментар Поділитися на інших сайтах More sharing options...
Рекомендовані повідомлення
Створіть акаунт або увійдіть у нього для коментування
Ви маєте бути користувачем, щоб залишити коментар
Створити акаунт
Зареєструйтеся для отримання акаунта. Це просто!
Зареєструвати акаунтУвійти
Вже зареєстровані? Увійдіть тут.
Увійти зараз