sergeydnepr Опубліковано: 16 лютого 2012 Поділитись Опубліковано: 16 лютого 2012 (змінено) Добрый день. Всвязи с недостатком ресурсов и желанием съехать с квартиры планирую начать с жилого гостевого домика с баней, планировка во вкладке. Кто что может скачать по этому плану? Змінено 16 лютого 2012 користувачем sergeydnepr Посилання на коментар Поділитися на інших сайтах More sharing options...
Archist Опубліковано: 16 лютого 2012 Поділитись Опубліковано: 16 лютого 2012 www.stroimdom.com.ua/forum/faq.php?s=&do=search&q=%E2%F1%F2%E0%E2%E8%F2%FC+%E8%E7%EE%E1%F0%E0%E6%E5%ED%E8%E5&match=all&titlesonly=0 Посилання на коментар Поділитися на інших сайтах More sharing options...
sergeydnepr Опубліковано: 16 лютого 2012 Автор Поділитись Опубліковано: 16 лютого 2012 спасибо,разобрался 1 Посилання на коментар Поділитися на інших сайтах More sharing options...
Archist Опубліковано: 16 лютого 2012 Поділитись Опубліковано: 16 лютого 2012 Добрый день. Всвязи с недостатком ресурсов и желанием съехать с квартиры планирую начать с жилого гостевого домика с баней, планировка во вкладке. Кто что может скачать по этому плану? Для бани не хватает кладовки, а для жилья гардероба. Есть предложение организовать это за тамбуром. Заодно и форма домика выправится. А телевизор планируется смотреть из туалета? Креативно! Посилання на коментар Поділитися на інших сайтах More sharing options...
sergeydnepr Опубліковано: 17 лютого 2012 Автор Поділитись Опубліковано: 17 лютого 2012 Да нет, просто сна картинке не все детали видны. Справа по плану зона спальни, посередине внизу стол со стульями , а туалет как у всех с дверями. Телевизор на лапе, чтобы можно было смотреть с кровати и с комнаты. План можно исправить, посоветуйте... Я за коридором хотел сделать сарайчик и дровницу, можно сдвинуть саму парилку и с/у. План перекладываю, чтобы было виднее планировку. Посилання на коментар Поділитися на інших сайтах More sharing options...
-ЭкоДом- Опубліковано: 17 лютого 2012 Поділитись Опубліковано: 17 лютого 2012 Туалету однозначно там не место. Как вариант - поменять его местами с парилкой. А почему прямоугольная форма выбрана? Ближе к квадрату будет прилично экономичней и удобней Посилання на коментар Поділитися на інших сайтах More sharing options...
sergeydnepr Опубліковано: 18 лютого 2012 Автор Поділитись Опубліковано: 18 лютого 2012 прямоугольная форма выбрана потому, что домик расположен вдоль задней границы участка, по туалету вопрос открытый. Есть еще один вопрос, по кторому нужен совет:в планах было строить из газобетона 375 мм+ пенопласт 100 мм, теперь подвернулся по случаю старый "Екатерининский" кирпич на облицовку. Подскажите,кто знает, как это все выложить правильно с учетом облицовки, не хочется делать ошибок.... Посилання на коментар Поділитися на інших сайтах More sharing options...
Archist Опубліковано: 18 лютого 2012 Поділитись Опубліковано: 18 лютого 2012 прямоугольная форма выбрана потому, что домик расположен вдоль задней границы участка, по туалету вопрос открытый. В том то и дело, что форма получилась не прямоугольная, а шестиугольная! Есть еще один вопрос, по кторому нужен совет:в планах было строить из газобетона 375 мм+ пенопласт 100 мм, теперь подвернулся по случаю старый "Екатерининский" кирпич на облицовку. Подскажите,кто знает, как это все выложить правильно с учетом облицовки, не хочется делать ошибок.... Два встречных вопроса: где строитесь и зачем пенопласт? Посилання на коментар Поділитися на інших сайтах More sharing options...
-ЭкоДом- Опубліковано: 18 лютого 2012 Поділитись Опубліковано: 18 лютого 2012 Добрый день. Всвязи с недостатком ресурсов и желанием съехать с квартиры планирую начать с жилого гостевого домика с баней, планировка во вкладке. Кто что может скачать по этому плану? Позволю дать совет. Наймите архитектора. Любого. Учиться азбуке здесь не лучшее место Посилання на коментар Поділитися на інших сайтах More sharing options...
sergeydnepr Опубліковано: 18 лютого 2012 Автор Поділитись Опубліковано: 18 лютого 2012 строюсь в Днепропетровске, пенопласт для утепления(как ни странно). Посилання на коментар Поділитися на інших сайтах More sharing options...
sergeydnepr Опубліковано: 18 лютого 2012 Автор Поділитись Опубліковано: 18 лютого 2012 Тут объект не для архитектуры, форму можно поменять. Эта обусловлена тем, что за входом планировался сарайчик с дровницей под общей крышей со всем остальным, его фундамент на плане не показан. Мне говорили,что для бани плюс ко всему нужен предбанник или раздевалка. Кто-то пользуется похожим домиком, какие есть плюсы или минусы? Посилання на коментар Поділитися на інших сайтах More sharing options...
ionico Опубліковано: 18 лютого 2012 Поділитись Опубліковано: 18 лютого 2012 В с\у при сауне в первую очередь должен быть душ. И попадать в него надо из раздевальной комнаты. Я бы сделал на месте текущего с\у душевую кабину и связь этой кабины с раздевальной. Также, можно добавить еще 1 с\у с унитазом, попадать в который уже можно из прихожей. Посилання на коментар Поділитися на інших сайтах More sharing options...
sergeydnepr Опубліковано: 18 лютого 2012 Автор Поділитись Опубліковано: 18 лютого 2012 душ имеется, он на выходе из парилки,нет раздевальни... Получается можно сарайчик и дровницу похоронить, на их место парилку,на место парилки раздевальню? Посилання на коментар Поділитися на інших сайтах More sharing options...
ionico Опубліковано: 18 лютого 2012 Поділитись Опубліковано: 18 лютого 2012 Раздевальная должна быть обязательно В сауне главное - комфорт, без него получить удовольствие сложнее. Рассмотрите этот вариант: Возможно, топочная маловата, гостевая слишком вытянута, но, в принципе, всё решаемо. Смысл в том, что мы попадаем в изолированную раздевальную раздевальную и можем там ходить голыми в душевую А в идеале - должна быть комната отдыха, также изолированная от всего остального. Чтобы в неё можно было попасть из раздевальной. Посилання на коментар Поділитися на інших сайтах More sharing options...
Archist Опубліковано: 18 лютого 2012 Поділитись Опубліковано: 18 лютого 2012 строюсь в Днепропетровске, пенопласт для утепления(как ни странно). Тогда это странно. Посилання на коментар Поділитися на інших сайтах More sharing options...
sergeydnepr Опубліковано: 19 лютого 2012 Автор Поділитись Опубліковано: 19 лютого 2012 В чем странность, кашу маслом не испортишь. У товарища дом построен из 375 газобетона, утеплен пенопластом 100, так в эти морозы котел на минимуме, все отопление на теплом полу. Посилання на коментар Поділитися на інших сайтах More sharing options...
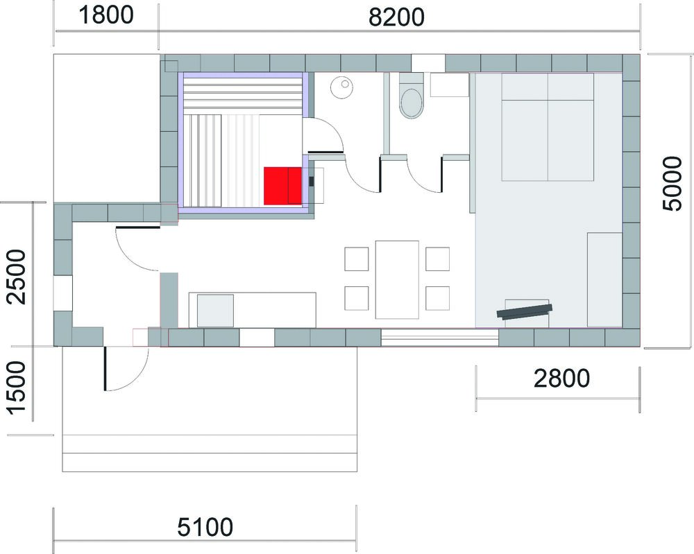
sergeydnepr Опубліковано: 19 лютого 2012 Автор Поділитись Опубліковано: 19 лютого 2012 Спасибо за план, можно по нему получить габаритные размеры? Посилання на коментар Поділитися на інших сайтах More sharing options...
Archist Опубліковано: 19 лютого 2012 Поділитись Опубліковано: 19 лютого 2012 В чем странность, кашу маслом не испортишь. У товарища дом построен из 375 газобетона, утеплен пенопластом 100, так в эти морозы котел на минимуме, все отопление на теплом полу. Не хочу засорять вашу тему. Забейте в поиске "утепление газобетона пенополистиролом". Мое мнение - утепление в вашем случае вообще не нужно! Посилання на коментар Поділитися на інших сайтах More sharing options...
ionico Опубліковано: 19 лютого 2012 Поділитись Опубліковано: 19 лютого 2012 Спасибо за план, можно по нему получить габаритные размеры? План с размерами сейчас не имею возможности дать. Исходите из того, что с/у возле спальни в чистоте имеет ширину 1200. 1 Посилання на коментар Поділитися на інших сайтах More sharing options...
sergeydnepr Опубліковано: 19 лютого 2012 Автор Поділитись Опубліковано: 19 лютого 2012 у меня там газа нет, отапливать прийдется электро или ТТК, поэтому хочется минимизировать теплопотери. Посилання на коментар Поділитися на інших сайтах More sharing options...
sergeydnepr Опубліковано: 19 лютого 2012 Автор Поділитись Опубліковано: 19 лютого 2012 два вороса по Вашему плану: как топить сауну(не вижу печи) и зачем в таком домике 2(два) туалета? Посилання на коментар Поділитися на інших сайтах More sharing options...
ionico Опубліковано: 19 лютого 2012 Поділитись Опубліковано: 19 лютого 2012 Котёл условно не показан. Логично, что его расположение в топочной комнате. Насчёт с/у - см. пост №12 Посилання на коментар Поділитися на інших сайтах More sharing options...
sergeydnepr Опубліковано: 20 лютого 2012 Автор Поділитись Опубліковано: 20 лютого 2012 Отдельный вход в топочную с улицы-как-то неправильно. Получается для того чтобы подбросить дров нужно перебежать на обратну сторону дома? Посилання на коментар Поділитися на інших сайтах More sharing options...
Archist Опубліковано: 20 лютого 2012 Поділитись Опубліковано: 20 лютого 2012 Отдельный вход в топочную с улицы-как-то неправильно. Получается для того чтобы подбросить дров нужно перебежать на обратну сторону дома? Либо нанимать кочегара с мобильником. Посилання на коментар Поділитися на інших сайтах More sharing options...
sergeydnepr Опубліковано: 20 лютого 2012 Автор Поділитись Опубліковано: 20 лютого 2012 специально обученные люди это здорово, а если серьезно? Посилання на коментар Поділитися на інших сайтах More sharing options...
Рекомендовані повідомлення
Створіть акаунт або увійдіть у нього для коментування
Ви маєте бути користувачем, щоб залишити коментар
Створити акаунт
Зареєструйтеся для отримання акаунта. Це просто!
Зареєструвати акаунтУвійти
Вже зареєстровані? Увійдіть тут.
Увійти зараз