ionico Опубліковано: 20 лютого 2012 Поділитись Опубліковано: 20 лютого 2012 Отдельный вход в топочную с улицы-как-то неправильно. Получается для того чтобы подбросить дров нужно перебежать на обратну сторону дома? Да, вы правы. Я хотел, чтобы в первую очередь была понятна связь раздевальной комнаты с душевой и сауной. Посмотрите эту ссылку: msd.com.ua/banya/planbani/ Посилання на коментар Поділитися на інших сайтах More sharing options...
sergeydnepr Опубліковано: 22 лютого 2012 Автор Поділитись Опубліковано: 22 лютого 2012 Спасибо, осмыслю, сброшу новую планировку. Посилання на коментар Поділитися на інших сайтах More sharing options...
Gopchik Опубліковано: 24 лютого 2012 Поділитись Опубліковано: 24 лютого 2012 добрый вечер. Вы на моей странице писали, что у нас похожие проекты. давайте вместе мудрить Посилання на коментар Поділитися на інших сайтах More sharing options...
Jarik Опубліковано: 24 лютого 2012 Поділитись Опубліковано: 24 лютого 2012 Аналогичная тема www.stroimdom.com.ua/forum/showthread.php?t=35222&page=2 1 Посилання на коментар Поділитися на інших сайтах More sharing options...
sergeydnepr Опубліковано: 25 лютого 2012 Автор Поділитись Опубліковано: 25 лютого 2012 тел. 066-337-23-25,788-73-76 звоните, встретимся. Посилання на коментар Поділитися на інших сайтах More sharing options...
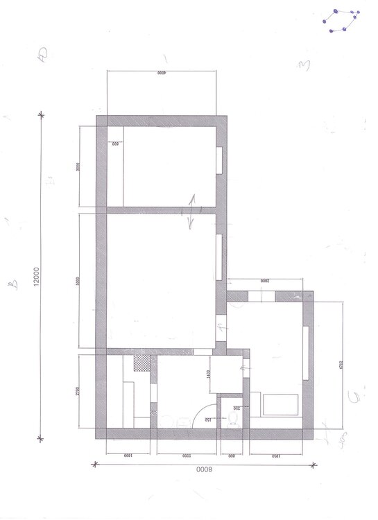
sergeydnepr Опубліковано: 29 лютого 2012 Автор Поділитись Опубліковано: 29 лютого 2012 прошло время, поменялись приоритеты. Посмотрите, пожалуйста, на новый план, выскажите свое мнение. Посилання на коментар Поділитися на інших сайтах More sharing options...
Рекомендовані повідомлення
Створіть акаунт або увійдіть у нього для коментування
Ви маєте бути користувачем, щоб залишити коментар
Створити акаунт
Зареєструйтеся для отримання акаунта. Це просто!
Зареєструвати акаунтУвійти
Вже зареєстровані? Увійдіть тут.
Увійти зараз