Gopchik Опубліковано: 24 лютого 2012 Поділитись Опубліковано: 24 лютого 2012 Добрый день форумчане! Т.к. до весны осталось совсем чуть - чуть и можно начинать строиться ищу специалиста по изготовлению проектов. Условие: залит фундамент 7,5х11,5, куплен газобетон 200х300х600 условия оплаты - предлагайте спасибо. 0676362339 Павел p.gaponenko@mail.ru Посилання на коментар Поділитися на інших сайтах More sharing options...
Tarras Опубліковано: 24 лютого 2012 Поділитись Опубліковано: 24 лютого 2012 Добрый день форумчане! Т.к. до весны осталось совсем чуть - чуть и можно начинать строиться ищу специалиста по изготовлению проектов. Условие: залит фундамент 7,5х11,5, куплен газобетон 200х300х600 условия оплаты - предлагайте спасибо. 0676362339 Павел p.gaponenko@mail.ru Якщо Вам підійдуть мої ціни і умови - звертайтесь Посилання на коментар Поділитися на інших сайтах More sharing options...
lisnychencko Опубліковано: 24 лютого 2012 Поділитись Опубліковано: 24 лютого 2012 Доброе время суток советую толкового проектанта если интересует скину номер. Посилання на коментар Поділитися на інших сайтах More sharing options...
Gopchik Опубліковано: 24 лютого 2012 Автор Поділитись Опубліковано: 24 лютого 2012 Доброе время суток советую толкового проектанта если интересует скину номер. интересует! буду благодарен Посилання на коментар Поділитися на інших сайтах More sharing options...
ДОКС Опубліковано: 25 лютого 2012 Поділитись Опубліковано: 25 лютого 2012 Обращайтесь - помогу... Посилання на коментар Поділитися на інших сайтах More sharing options...
Profesorr Опубліковано: 25 лютого 2012 Поділитись Опубліковано: 25 лютого 2012 Предложение в ЛС Посилання на коментар Поділитися на інших сайтах More sharing options...
ionico Опубліковано: 25 лютого 2012 Поділитись Опубліковано: 25 лютого 2012 Интересно, а залитый фундамент заливался без проекта? Геологические исследования грунтов есть? Посилання на коментар Поділитися на інших сайтах More sharing options...
ketrin-n Опубліковано: 25 лютого 2012 Поділитись Опубліковано: 25 лютого 2012 ionico, залили люди фундамент а потом задумались. а вы что, первый раз с таким сталкиваетесь? Посилання на коментар Поділитися на інших сайтах More sharing options...
Юрий Цегла Опубліковано: 25 лютого 2012 Поділитись Опубліковано: 25 лютого 2012 По вашему техзаданию нарисую планировки - $100 Проект дома (фасады, крыша, 3D) - tot $200. Посилання на коментар Поділитися на інших сайтах More sharing options...
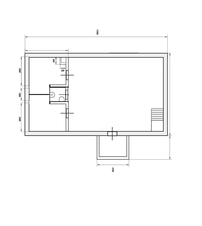
Gopchik Опубліковано: 26 лютого 2012 Автор Поділитись Опубліковано: 26 лютого 2012 Интересно, а залитый фундамент заливался без проекта? Геологические исследования грунтов есть? проект делал сам для себя в арконе... вернее даже сказать пытался увидеть то что хотелось бы получить... см фото геологию не делал Посилання на коментар Поділитися на інших сайтах More sharing options...
ketrin-n Опубліковано: 26 лютого 2012 Поділитись Опубліковано: 26 лютого 2012 Gopchik, написала на электронную почту Посилання на коментар Поділитися на інших сайтах More sharing options...
Рекомендовані повідомлення
Створіть акаунт або увійдіть у нього для коментування
Ви маєте бути користувачем, щоб залишити коментар
Створити акаунт
Зареєструйтеся для отримання акаунта. Це просто!
Зареєструвати акаунтУвійти
Вже зареєстровані? Увійдіть тут.
Увійти зараз