Перейти до публікації
Пошук в
  • Додатково...
Шукати результати, які містять...
Шукати результати в...

Нужны специалисты для возведения фундамента.

domikoff

Рекомендовані повідомлення

Как только потеплеет и подсохнет грунт, собираюсь приступить к стройке дома общая площадь около 290кв.м. Участок находится в КС районе. с. Новое. Есть вагончик для строителей.

На данном этапе интересует подрядчик для возведения монолитного ленточного фундамента.

Необходимо:

1. Земельные работы.

2. Фундамент.

3. Закладные канализации, воды, прочее..

4. Обратная засыпка.

5. Черновой пол по грунту.

Т.е. все чтоб быть готовым к этапу возведения стен.

 

Как ориентир для оценки объемов:

объем фундамента 60-66 кубов.

общий вес арматуры около 2 т.

 

Предпочтение отдам бригаде со своей опалубкой. (очень не хочется покупать ненужный лес). При написании предложения уточняйте этот момент.

 

Просьба писать конкретное предложение а не просто скидывать прайс.

Т.е. Перечень предполагаемый работ для реализации этого этапа и их стоимость. Объем работ уточняем на основании готового проекта.

 

Наличие рекомендаций и готовый работ приветствуется.

 

Проект еще в разработке но к весне его закончат.

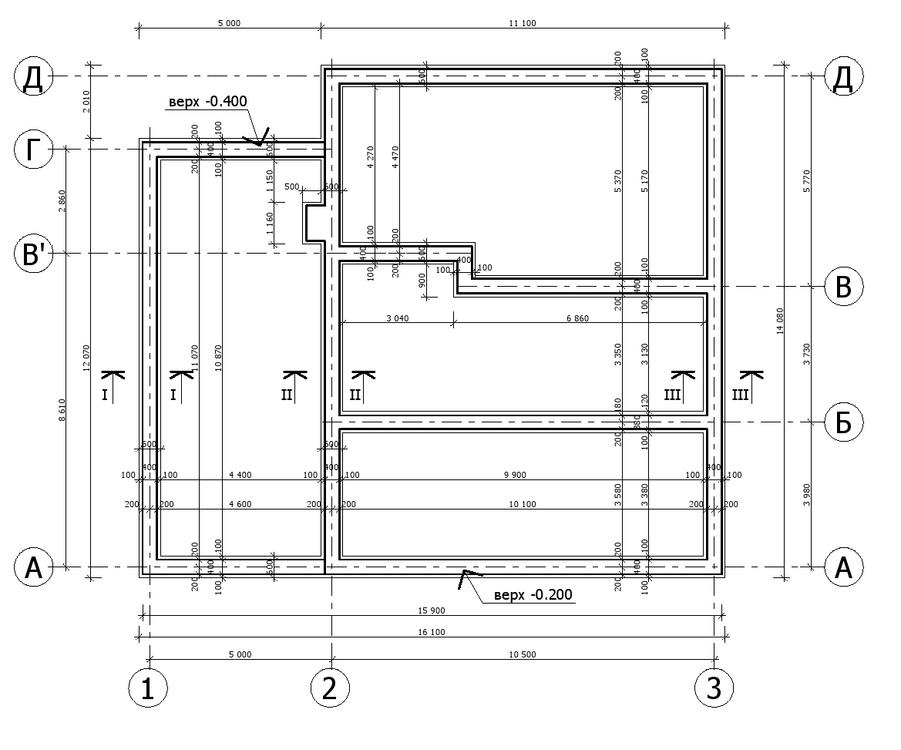
Схема фундамента:

04-mini.thumb.png.3e10c306fee2f8f741f85982add20dae.png

 

Забыл добавить, после возведения фундамента строительство не остановится. Т.ч. можно сразу присылать расценки на кладку газоблока 400мм и рядового кирпича.

Посилання на коментар
Поділитися на інших сайтах

А откуда взялся объем 60-66. Какая высота фундамента

Вот расчет:

Периметр

Итого дом 69,820

Итого гараж 20,870

Итого периметр 90,690

Подушка

Ширина 0,8

Высота 0,3

Объем 21,766

Фундмент

Дом

Ширина 0,4

Высота 1,25

Объем 34,910

Гараж

Ширина 0,4

Высота 1,05

Объем 8,765

Итого фундамента 65,441

Посилання на коментар
Поділитися на інших сайтах

Для расчета сметы можно брать следующие основные объемы работ.

Периметр под фундаментом - 90,7 м

Объем подушки фундамента - 21,8 м3

Объем стен фундамента - 43,7 м3

Площадь чернового пола - 175 м2

Арматура - 2 т.

Участок чистый и условно ровный.

Подъезд техники возможен.

 

Предложения и уточняющие вопросы можно присылать сразу на имейл

(ссылка на изображение устарела)

Посилання на коментар
Поділитися на інших сайтах

Добрый день!Для меня строительство всегда интересно.Смету посчитаем по готовому проекту.Будем ждать.Спасибо.
Посилання на коментар
Поділитися на інших сайтах

Добрый день!Для меня строительство всегда интересно.Смету посчитаем по готовому проекту.Будем ждать.Спасибо.

 

А чего ждать? :)

Проект фундамента уже есть. Пишите на почту - вышлю.

Посилання на коментар
Поділитися на інших сайтах

Спасибо всем за высланные предложения.

Предложений очень много и разных, обязательно всем отвечу.

Планирую повести итог на следующей неделе и начать общаться с фаворитами тендера.

Посилання на коментар
Поділитися на інших сайтах

готовы взять вашу работу. есть готовые объекты , можно посмотреть, люди уже живут. 8 руслан

 

Ок, но складывается впечатление что все что выше написано мной писал я сугубо для себя.

Ладно, повторюсь. Высылайте свою смету на работы исходя из моих объемов мне на почту.

Змінено користувачем Оз
8
Посилання на коментар
Поділитися на інших сайтах

Створіть акаунт або увійдіть у нього для коментування

Ви маєте бути користувачем, щоб залишити коментар

Створити акаунт

Зареєструйтеся для отримання акаунта. Це просто!

Зареєструвати акаунт

Увійти

Вже зареєстровані? Увійдіть тут.

Увійти зараз
×
×
  • Створити...