serednyachok Опубліковано: 27 лютого 2012 Поділитись Опубліковано: 27 лютого 2012 Здравствуйте уважаемые форумчане! Есть мечта постоить дом, морально пока еще к этому не готов, но постоянно интересуюсь, и если созрею, то это будет бюджетный домик. В просторах тырнета набрел на такой-вот проектик, хотелось бы услышать здоровою критику знающих форумчан. Проект мне, как неспециалисту, очень понравился! Посилання на коментар Поділитися на інших сайтах More sharing options...
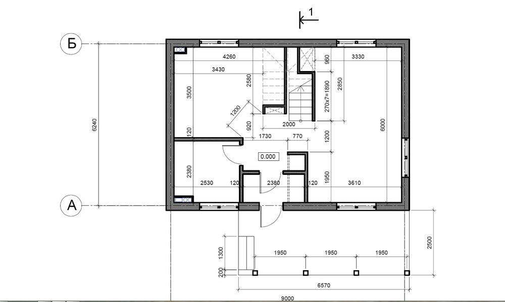
Artyomovets Опубліковано: 27 лютого 2012 Поділитись Опубліковано: 27 лютого 2012 это дом или дача? для дома не хватает вспомогательных помещений (кладовки, гардеробные) на какую семью? на какой участок? Посилання на коментар Поділитися на інших сайтах More sharing options...
Ollie Опубліковано: 27 лютого 2012 Поділитись Опубліковано: 27 лютого 2012 там достаточно встроенных шкафов вместо гардероба и кладовки Посилання на коментар Поділитися на інших сайтах More sharing options...
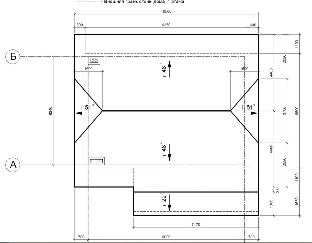
seyvalter Опубліковано: 27 лютого 2012 Поділитись Опубліковано: 27 лютого 2012 Якось не дуже чесно кажучи, відсутні внутрішні несучі стіни - а проліт 6 з копіками метрів мені не подобається (особливо в місці біля сходів), якась чехарда з коминами..... Шукайте ще, якщо бажаєте - стукайте в лічку - є схожий по бюджету але кращий будиночок, покажу. 1 Посилання на коментар Поділитися на інших сайтах More sharing options...
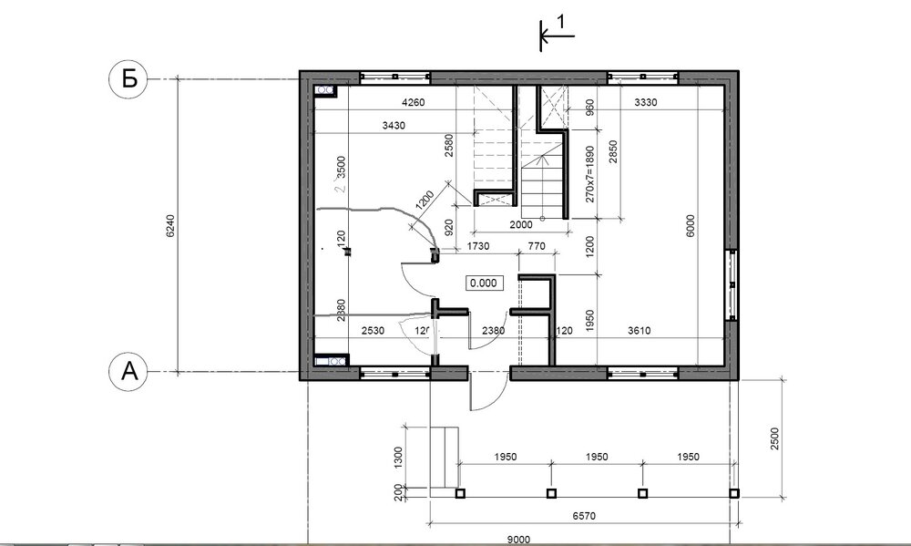
serednyachok Опубліковано: 27 лютого 2012 Автор Поділитись Опубліковано: 27 лютого 2012 Я, откровенно говоря, в мансардном этаже выкинул бы второй санузел, вместо него как раз подсобное помещение неплохое! А на первом( на картинке извратился в Поинте!) сделал бы топку и сдвинул санузел во вред кухне! Посилання на коментар Поділитися на інших сайтах More sharing options...
Рекомендовані повідомлення
Створіть акаунт або увійдіть у нього для коментування
Ви маєте бути користувачем, щоб залишити коментар
Створити акаунт
Зареєструйтеся для отримання акаунта. Це просто!
Зареєструвати акаунтУвійти
Вже зареєстровані? Увійдіть тут.
Увійти зараз