calipso Опубліковано: 29 лютого 2012 Поділитись Опубліковано: 29 лютого 2012 Доброго дня всем! Прошу помощи клуба! Совсем запутался с дальнейшими действиями по оформлению документов на дом. Что имеем: 1. Васильков. Куплен земельный участок со старым домом в 2007. Договора на дом и участок. Державный акт с кадастровым номером переоформил. Прописался. Переоформил на себя свет, газ, водопровод. Живем. 2. Июнь 2010. Принято решение на участке возле старого дома строить новый. Получено согласие соседей. Сделан у архитектор новый проект. Согласован с СЭС, МЧС, газкантора, свет, рогархитектура. Есть ришення сесии горсовета о разрешении строительства. Сентябрь 2010 в горархитектуре получил строительный паспорт. В октябре 2010 коробка и крыша уже стоит дом 240 м.кв. общей площади в два этажа 3. Апрель 2011 подаю повидомлення про початок будивныцтва и получаю отметку. Идут отделочные работы. В октябре заехали в новый дом. 4. Сентябрь 2011 - техник с БТИ сделал замеры и выдал техпаспорт на новый дом. Сейчас иимею два техпаспорта - на старый и новый дом. С потеплением стал вопрос сноса старого дома. Интересуюсь таким вопросом - на новый дом надо подавать декларацию об окончании строительства, потом офорлять право власности и т.д. Платить неофициал никому не платил и не собираюсь. Дом продавать не планируем П.С. Строился хозспособом, без договоро надзора и техподряда и т.д. П.С 2 Техпаспорт БТИ означает что дом введен в эксплуатацию, или это отдельная песня? Посилання на коментар Поділитися на інших сайтах More sharing options...
apxitektop Опубліковано: 29 лютого 2012 Поділитись Опубліковано: 29 лютого 2012 Доброго дня всем! ... 4. Сентябрь 2011 - техник с БТИ сделал замеры и выдал техпаспорт на новый дом. Сейчас иимею два техпаспорта - на старый и новый дом. С потеплением стал вопрос сноса старого дома. Интересуюсь таким вопросом - на новый дом надо подавать декларацию об окончании строительства, потом офорлять право власности и т.д. Платить неофициал никому не платил и не собираюсь. Дом продавать не планируем. П.С. Строился хозспособом, без договоро надзора и техподряда и т.д. П.С 2 Техпаспорт БТИ означает что дом введен в эксплуатацию, или это отдельная песня? А как назван новый дом в стройпаспорте? Адрес какой у него? Если путаницы с адресом и статусом нового дома нет, то: подавайте декларацию о готовности, потом с зарегистрированной декларацией и техпаспортом идите в сельсвоет за оформлением Свидетельства на право собственности. Дом введен в эксплуатацию с момента регистрации декларации о готовности. PS: Возможно стоит сейчас снести старый дом и заказать инвентаризацию (в результате которой, Вам уберут из техпаспорта старый дом). Посилання на коментар Поділитися на інших сайтах More sharing options...
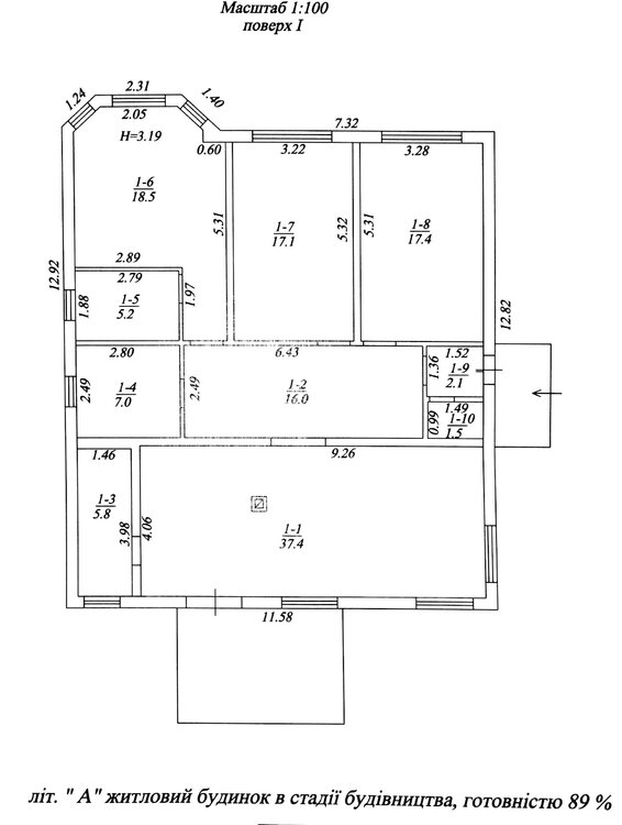
PGS Опубліковано: 20 травня 2014 Поділитись Опубліковано: 20 травня 2014 Чтобы не создавать новую тему, напишу здесь. Получил техпаспорт с отметкой "в стадии строительства". Какие могут быть последствия этой "отметки" на последующее оформление декларации, св-ва на право собственности? БТИ - Киево-Святошинский р-н Посилання на коментар Поділитися на інших сайтах More sharing options...
apxitektop Опубліковано: 21 травня 2014 Поділитись Опубліковано: 21 травня 2014 Чтобы не создавать новую тему, напишу здесь. Получил техпаспорт с отметкой "в стадии строительства". Какие могут быть последствия этой "отметки" на последующее оформление декларации, св-ва на право собственности? БТИ - Киево-Святошинский р-н ИМХО, БТИ фактически указало, что дом не готов, а значит и вводить в эксплуатацию еще рано... Как они вообще определили, что это 89%?.. Сделайте лучше ТП без этой фразы. 1 Посилання на коментар Поділитися на інших сайтах More sharing options...
PGS Опубліковано: 21 травня 2014 Поділитись Опубліковано: 21 травня 2014 При визите инспектора я ему четко озвучил, что получаю ТП для оформления декларации о готовности дома... Вчера отправил декларацию. Что посоветуете: ждать ответ ГАСКа или сразу ехать в БТИ разбираться? П. С. В декларации, кстати, не заполнил ячейку с кол-вом м2 жилой площади, т.к. в ТП этой цифры не было. Посилання на коментар Поділитися на інших сайтах More sharing options...
apxitektop Опубліковано: 21 травня 2014 Поділитись Опубліковано: 21 травня 2014 При визите инспектора я ему четко озвучил, что получаю ТП для оформления декларации о готовности дома... Вчера отправил декларацию. Что посоветуете: ждать ответ ГАСКа или сразу ехать в БТИ разбираться? П. С. В декларации, кстати, не заполнил ячейку с кол-вом м2 жилой площади, т.к. в ТП этой цифры не было. ИМХО, проблемы могут быть на стадии оформления свидетельства. А если дадите ГАСКу ТП, то и там могут быть проблемы. 1 Посилання на коментар Поділитися на інших сайтах More sharing options...
PGS Опубліковано: 18 червня 2014 Поділитись Опубліковано: 18 червня 2014 Декларацию получил. Здесь подробнее... Начинаю заниматься свидетельством. Про результат отпишу. Посилання на коментар Поділитися на інших сайтах More sharing options...
vale3 Опубліковано: 19 червня 2014 Поділитись Опубліковано: 19 червня 2014 Хочу начинать эпопею-ввод в эксплуатацию У меня дом и гараж готовы без фасадных работ, внутрянка и инженерка готовы. Подавал уведомление о начале строительства. Какие мои дальнейшие действия? Можно ли без фасада начинать оформление? Поэтапно что делать??? Буду благодарен добрым форумчанам кто прошел этот путь или в процессе Посилання на коментар Поділитися на інших сайтах More sharing options...
PGS Опубліковано: 20 червня 2014 Поділитись Опубліковано: 20 червня 2014 Какие мои дальнейшие действия? Изготовить техпаспорт на дом в БТИ Можно ли без фасада начинать оформление? Здесь про внутренние работы. У меня фасад был готов (кирпич) при выезде инспектора. Поэтапно что делать??? 1. Получить ТП в БТИ. 2. Получить Декларацию в ГАСКе. 3. Уведомить сельраду и пожарников. 4. Получить св-во на право собственности в регистрационной службе. 1 Посилання на коментар Поділитися на інших сайтах More sharing options...
x_y_z_ Опубліковано: 20 червня 2014 Поділитись Опубліковано: 20 червня 2014 1. Получить ТП в БТИ. 2. Получить Декларацию в ГАСКе. 3. Уведомить сельраду и пожарников. 4. Получить св-во на право собственности в регистрационной службе. між пунктами 4 і 5 ще треба отримати поштову адресу у нас - на виконкомі селищної ради, по форуму бачила, що в інших людей затверджувала сесія сільради і видавав відділ архітектури та містобудування 2 Посилання на коментар Поділитися на інших сайтах More sharing options...
PGS Опубліковано: 16 липня 2014 Поділитись Опубліковано: 16 липня 2014 ИМХО, проблемы могут быть на стадии оформления свидетельства. в получении свидетельства отказали. Мотивировали тем, что отсутствуют данные о жилой площади в ТП. Посилання на коментар Поділитися на інших сайтах More sharing options...
Рекомендовані повідомлення
Створіть акаунт або увійдіть у нього для коментування
Ви маєте бути користувачем, щоб залишити коментар
Створити акаунт
Зареєструйтеся для отримання акаунта. Це просто!
Зареєструвати акаунтУвійти
Вже зареєстровані? Увійдіть тут.
Увійти зараз