inelek Опубліковано: 14 березня 2012 Поділитись Опубліковано: 14 березня 2012 Добрых всем мыслей ... Собственно ОН www.stroimdom.com.ua/forum/attachment.php?attachmentid=171872&stc=1&d=1331711035 1 этаж www.stroimdom.com.ua/forum/attachment.php?attachmentid=171867&stc=1&d=1331711035 2 этаж www.stroimdom.com.ua/forum/attachment.php?attachmentid=171870&stc=1&d=1331711035 1 этаж вид с кухни на входную дверь www.stroimdom.com.ua/forum/attachment.php?attachmentid=171871&stc=1&d=1331711035 и наоборот www.stroimdom.com.ua/forum/attachment.php?attachmentid=171869&stc=1&d=1331711035 Солнышко с низу по плану, вход в дом и на участок слева, со двора справа www.stroimdom.com.ua/forum/attachment.php?attachmentid=171868&stc=1&d=1331711269 Посилання на коментар Поділитися на інших сайтах More sharing options...
Artyomovets Опубліковано: 14 березня 2012 Поділитись Опубліковано: 14 березня 2012 узкие окна мне совсем не нравятся... семья какая? участок какой? как дом там посажен? не хватает явно тамбура. вы открытыми дверями очень много тепла потеряете. и еще мне не хватает спальни на 1 этаже Посилання на коментар Поділитися на інших сайтах More sharing options...
Начинающие Опубліковано: 14 березня 2012 Поділитись Опубліковано: 14 березня 2012 А вход в санузел через зал и кухню? Посилання на коментар Поділитися на інших сайтах More sharing options...
Alisa3 Опубліковано: 14 березня 2012 Поділитись Опубліковано: 14 березня 2012 Не хватает тамбура и окна напоминают окна в бункере. Ещё не люблю проходную гостиную, но сейчас часто в планировках вход на кухню делают через неё. Непонятно расположение с/у. На втором этаже не нравится апендикс в коридоре: проще перенести дверь и расширить за счёт него комнату. Посилання на коментар Поділитися на інших сайтах More sharing options...
inelek Опубліковано: 14 березня 2012 Автор Поділитись Опубліковано: 14 березня 2012 узкие окна мне совсем не нравятся... семья какая? участок какой? как дом там посажен? не хватает явно тамбура. вы открытыми дверями очень много тепла потеряете. и еще мне не хватает спальни на 1 этаже Семья молодая, дети в проекте, участок узкий 15 на 20 под строительство , тамбур будет(в программе его трудно отобразить).В спальне на 1 пока не нуждаюсь, а в будущем можно гипсом отгородить часть гостиной. www.stroimdom.com.ua/forum/attachment.php?attachmentid=171886&stc=1&d=1331714009 Посилання на коментар Поділитися на інших сайтах More sharing options...
ionica Опубліковано: 14 березня 2012 Поділитись Опубліковано: 14 березня 2012 Добрый день. Смущает лестница Ширина лестничной площадки должна быть не менее ширины марша. В вашем случае первая ступенька нижнего марша практически упирается в стену - как-то даже не по-человечески.Именно из-за лестницы для доступа к санузлу у вас получились проходными гостиная и кухня. Посилання на коментар Поділитися на інших сайтах More sharing options...
АрхиКет Опубліковано: 14 березня 2012 Поділитись Опубліковано: 14 березня 2012 Простите, а Вам такие фасады нравятся? Посилання на коментар Поділитися на інших сайтах More sharing options...
inelek Опубліковано: 15 березня 2012 Автор Поділитись Опубліковано: 15 березня 2012 Простите, а Вам такие фасады нравятся? Нет буду переделывать, оставлю только на кухне узкие окна. Посилання на коментар Поділитися на інших сайтах More sharing options...
Artyomovets Опубліковано: 15 березня 2012 Поділитись Опубліковано: 15 березня 2012 Нет буду переделывать, оставлю только на кухне узкие окна. если судить по визуализации, то на кухне, чтоб выглянуть в окно, надо лечь на рабочую поверхность. это по вашему удобно? Посилання на коментар Поділитися на інших сайтах More sharing options...
inelek Опубліковано: 15 березня 2012 Автор Поділитись Опубліковано: 15 березня 2012 Не пойму почему многих смущает расположение туалета, дверь в него не на кухне же(2,5м от холодилы) да и на 2эт не так далеко от гостиной. А вот лестница замучала , ни как не вписывается, хотя квадратуры достаточно, может с програмулиной не разобрался. Добавлено через 2 минуты если судить по визуализации, то на кухне, чтоб выглянуть в окно, надо лечь на рабочую поверхность. это по вашему удобно? На кухне и не надо в окна выглядывать, упор был на естественное освещение. Думаем 8-) Посилання на коментар Поділитися на інших сайтах More sharing options...
ionico Опубліковано: 15 березня 2012 Поділитись Опубліковано: 15 березня 2012 С лестницей беда. Если с программулиной не разобрались - попробуйте на бумаге. Вопросы по этому поводу. Какая высота этажа от пола до пола? Какая ширина марша? Посилання на коментар Поділитися на інших сайтах More sharing options...
=Олег= Опубліковано: 15 березня 2012 Поділитись Опубліковано: 15 березня 2012 Не пойму почему многих смущает расположение туалета, дверь в него не на кухне же(2,5м от холодилы) Я видел такое расположение с/у на первом этаже без тамбура. Скажем так, принять душ или ванну мне там не хочется. Не комфортно без тамбура. Поменяйте конфигурацию лестницы и появится место для двери, как писали выше. Посилання на коментар Поділитися на інших сайтах More sharing options...
Alisa3 Опубліковано: 15 березня 2012 Поділитись Опубліковано: 15 березня 2012 Может эти расчёты чем-то помогут. www.zhitov.ru/lestnica/ 2 Посилання на коментар Поділитися на інших сайтах More sharing options...
ukr_ua Опубліковано: 15 березня 2012 Поділитись Опубліковано: 15 березня 2012 посмотрите этот домик www.dom-ua.com/index.php?c=108&o=10578 есть нечто схожее с Вашим Посилання на коментар Поділитися на інших сайтах More sharing options...
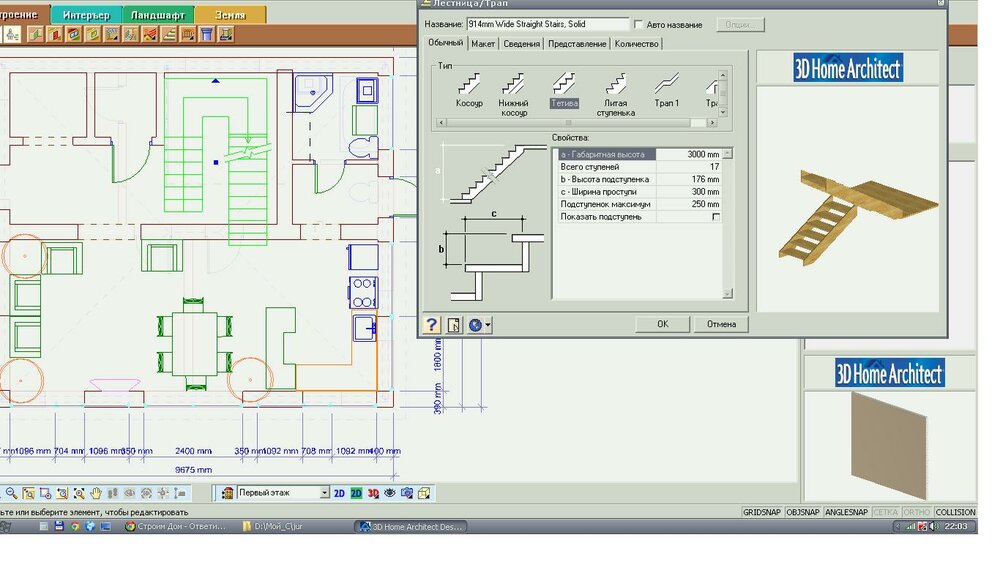
inelek Опубліковано: 15 березня 2012 Автор Поділитись Опубліковано: 15 березня 2012 Может эти расчёты чем-то помогут. www.zhitov.ru/lestnica/ Чем то помогли :good:8-) www.zhitov.ru/lestnica4/index.html?lang=ru&mass=1&metric=1&Y=300&X=340&E=95&C=17&P=7&Z=3&F=7&color=color&newwin=1 а вот ввел те же параметры в программу 3DHomeArchitect www.stroimdom.com.ua/forum/attachment.php?attachmentid=172346&stc=1&d=1331841909 лестница на пол дома получилась Какой из них верить А пространство под лестницу 3600*2600мм Посилання на коментар Поділитися на інших сайтах More sharing options...
ukr_ua Опубліковано: 15 березня 2012 Поділитись Опубліковано: 15 березня 2012 Чем то помогли :good:8-) www.zhitov.ru/lestnica4/index.html?lang=ru&mass=1&metric=1&Y=300&X=340&E=95&C=17&P=7&Z=3&F=7&color=color&newwin=1 а вот ввел те же параметры в программу 3DHomeArchitect www.stroimdom.com.ua/forum/attachment.php?attachmentid=172346&stc=1&d=1331841909 лестница на пол дома получилась Какой из них верить А пространство под лестницу 3600*2600мм я как-то тоже баловался в 3DHomeArchitect. В одном из проектов есть лестница. могу скинуть пример (занимает место 2 на 3) Посилання на коментар Поділитися на інших сайтах More sharing options...
Alisa3 Опубліковано: 15 березня 2012 Поділитись Опубліковано: 15 березня 2012 Чем то помогли :good:8-) www.zhitov.ru/lestnica4/index.html?lang=ru&mass=1&metric=1&Y=300&X=340&E=95&C=17&P=7&Z=3&F=7&color=color&newwin=1 а вот ввел те же параметры в программу 3DHomeArchitect www.stroimdom.com.ua/forum/attachment.php?attachmentid=172346&stc=1&d=1331841909 лестница на пол дома получилась Какой из них верить Никому нельзя верить, даже себе Ох уж эти лестницы... Мало того, что на пол дома, так ещё непонятно что там за промежуток такой: где ступенек уже нет, а до площадки ещё далеко? Выступ края ступеней F у Вас 5 мм, а должно быть максимум 3мм, иначе будете цепляться носком и падать Посилання на коментар Поділитися на інших сайтах More sharing options...
inelek Опубліковано: 15 березня 2012 Автор Поділитись Опубліковано: 15 березня 2012 Никому нельзя верить, даже себе Выступ края ступеней F у Вас 5 мм, а должно быть максимум 3мм, иначе будете цепляться носком и падать Да я вводил 3 мм пишет что неудобная лестница Подровнял, но все равно много www.stroimdom.com.ua/forum/attachment.php?attachmentid=172355&stc=1&d=1331845726 Посилання на коментар Поділитися на інших сайтах More sharing options...
Alisa3 Опубліковано: 15 березня 2012 Поділитись Опубліковано: 15 березня 2012 Да я вводил 3 мм пишет что неудобная лестница Подровнял, но все равно много www.stroimdom.com.ua/forum/attachment.php?attachmentid=172355&stc=1&d=1331845726 наоборот удобнее. как-то так: www.zhitov.ru/lestnica4/index.html?lang=ru&mass=1&metric=1&Y=250&X=300&E=90&C=15&P=7&Z=3&F=3&color=color но там можно ещё играться и играться))) Посилання на коментар Поділитися на інших сайтах More sharing options...
inelek Опубліковано: 16 березня 2012 Автор Поділитись Опубліковано: 16 березня 2012 наоборот удобнее. как-то так: www.zhitov.ru/lestnica4/index.html?lang=ru&mass=1&metric=1&Y=250&X=300&E=90&C=15&P=7&Z=3&F=3&color=color но там можно ещё играться и играться))) ещё играться и играться :roll: Высота от пола до пола 3 метра. Спасибо за ссылку на сайт житова, забор мигом рассчитал. Посилання на коментар Поділитися на інших сайтах More sharing options...
inelek Опубліковано: 17 березня 2012 Автор Поділитись Опубліковано: 17 березня 2012 Вот подправил с учетом всех "всех" С обычными окошками помилее конечно www.stroimdom.com.ua/forum/attachment.php?attachmentid=172681&stc=1&d=1331977449 www.stroimdom.com.ua/forum/attachment.php?attachmentid=172682&stc=1&d=1331977449 www.stroimdom.com.ua/forum/attachment.php?attachmentid=172683&stc=1&d=1331977449 Посилання на коментар Поділитися на інших сайтах More sharing options...
Рекомендовані повідомлення
Створіть акаунт або увійдіть у нього для коментування
Ви маєте бути користувачем, щоб залишити коментар
Створити акаунт
Зареєструйтеся для отримання акаунта. Це просто!
Зареєструвати акаунтУвійти
Вже зареєстровані? Увійдіть тут.
Увійти зараз