Перейти до публікації
Пошук в
  • Додатково...
Шукати результати, які містять...
Шукати результати в...

нужен дизайн интерьера + советы по фасаду

Evgeniy_New

Рекомендовані повідомлення

добрый день,

 

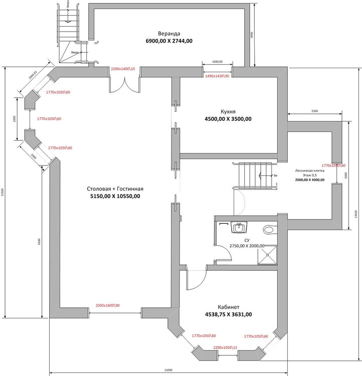
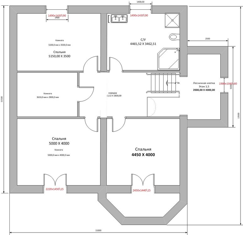
нужен дизайн интерьера в доме, в ключевых зонах(100-120м2):

1) кухня

2) столовая - гостинная

3) лесница + кордр

4) кабинет

5) два санузла (малый и большой)

Несколько фото внутрянки прилагаю.

Дом находится -25км от Киева, граница КС и Бородянского р-н

 

Есть фасад, вот такой: (www.alfaplan.ru/catalog/item_401/), интересует совет по материалам. Но это факультатив, основное - дизайн интереьера.

545898596_IMG_0034(640x480).jpg.06841d254f2c4a43cfaf9d36a3be3a34.jpg

1330413708_IMG_0037(640x480).jpg.6cc1009053b6d91d06e83d2f01c6af3e.jpg

650867639_IMG_0041(640x480).jpg.22e836006598efe3fae009dee07aa217.jpg

1954511903_IMG_0042(640x480).jpg.a45cdc27ad4401d1fe4f9ca9c2c56edc.jpg

805957276_IMG_0049(640x480).jpg.d93258bb973a282474dd1394faa59727.jpg

1360279954_-1.thumb.jpg.a12518f67f5b5f16f7399c9c25bbc47d.jpg

1413395186_-2.thumb.jpg.76b325590d6f454f115f889a98ce05dd.jpg

Змінено користувачем Evgeniy_New
Посилання на коментар
Поділитися на інших сайтах

Могу помочь с дизайном

Человека, дизайнера, звать Александр Александрович, авторский дизайн.

Если интересно его8Александр Александрович

Змінено користувачем Оз
8
Посилання на коментар
Поділитися на інших сайтах

Добрый день, можем помочь с дизайном и отделкой дома. Хотелось бы узнать по конкретней по дизайну что хотите получить в итоге и нужно ли 3D моделирование, цена зависит от многих факторов, в среднем от 20$ до 45$ , если что обращайтесь, С ув. Роман.
Посилання на коментар
Поділитися на інших сайтах

Створіть акаунт або увійдіть у нього для коментування

Ви маєте бути користувачем, щоб залишити коментар

Створити акаунт

Зареєструйтеся для отримання акаунта. Це просто!

Зареєструвати акаунт

Увійти

Вже зареєстровані? Увійдіть тут.

Увійти зараз
×
×
  • Створити...