godlove Опубліковано: 23 квітня 2012 Поділитись Опубліковано: 23 квітня 2012 Доброго дня форумчани. 09.04 цього року нам залили "фундамент". Розпочну із того, що по плану наш будинок має буде 10,5 на 9,5, мансардного типу. Монолітне перекриття між поверхами, дах - натуральна черепиця. Геологія земельної ділянки - 90см чорнозем, 40см суглинок, далі глина. Взагалом до 1м 20см (далі не копали). Рівень грунтових вод - 20м і більше. Вирішили заливати фундамент лєнточного типу, шириною 40см. Додам, що верхній шар грунту було знято на 20см при плануванні ділянки. Щоб зекономити кошти, вирішили копати фундамент без виставлення опалубки нижче рівня землі. Не мали можливості бути присутніми при заливці. В результаті виявилось, що фундамент залели по рівень із землею. Загальна висота фундаменту 1м 10см. Сказали. що з подушкою 60см шириною, глибина не відома. Ширина на виході 40см. Планувалось армування, зробили без нього. Скажіть, будь ласка, чи витримає цей фундамент вагу будинку (якщо зробити армований цоколь висотою 40см,) І з чого краще будувати з таким фундаментом??? Як з'єднати два шари фундаменту верхній і нижній, якщо це, взагалі, можливо??? (Прораб сказав, що воно буде стояти під власною вагою) По плану будинку, по середині, залита перегородка з характеристиками фундаменту описаного вище! Зі слів прораба, пішло 37кубів бетону. Зрозумів, але пізно, що порушена технологія закладки фундаменту. Ввагаюся, що робити далі!!!??? Далекий від будівництва. Буду дуже вдячний за поради!!! Посилання на коментар Поділитися на інших сайтах More sharing options...
Artyomovets Опубліковано: 23 квітня 2012 Поділитись Опубліковано: 23 квітня 2012 интересно, сколько вы думали, что "экономите" с вашим прорабом? реально - ничего ему не платить. пусть забирает этот фундамент и едет домой. и испорченный бетон пусть оплатит. и как вы уровень грунтовых вод определили? 1 Посилання на коментар Поділитися на інших сайтах More sharing options...
ahomin Опубліковано: 23 квітня 2012 Поділитись Опубліковано: 23 квітня 2012 А Ви з прорабом обговорювали всі ці моменти про армування і висоту заливки попередньо? Якщо порушив домовленості - не платити. Я не спец, але знаю що багато фундаментів стоять і без армування (до речі, мій прораб теж каже робити без армування, але я проти і буде так як я хочу), думаю Вам треба дізнатись яким бетоном це заливали, якщо хорошим, то робити армопояс і вперед. Якщо Ви не бачили викопаної траншеї, то було б добре підкопати цей фундамент і подивитись що вони там залили. Особисто я не дозволю робити такі роботи без моєї присутності. Посилання на коментар Поділитися на інших сайтах More sharing options...
Игореха Опубліковано: 23 квітня 2012 Поділитись Опубліковано: 23 квітня 2012 Давайте иначе Если прораб конечно сможет утащить с собой фундамент и вернуть деньги за материал, то это будет идеально :D Но боюсь это малореально ;) Судя по первому сообщению. я догадываюсь что с "прорабом" даже договор никакой не подписан и маловероятно что у вас вообще есть его реальные данные (хотя их к делу не пришьешь). И если все так, как я предполагаю, то останавливаемся на том, что фундамент останется там, где он есть. Последовательность действий. 1. Описываете полностью пирог стен и перекрытий (точно монолит и по первому и по второму этажам?). 2. Раскапываете фундамент в 3х -4х любых местах. 2 ревизии возле углов и 2 ревизии по центру фундаментных стен. Оцениваете реальную глубину фундамента, качество заливки и наличие пятки. 3. Если даже пятка и есть, но она не армирована, то считайте что ее нету. Во всяком случае она не будет выполнять все возложенные на нее функции. 4. Определяете, какая грунтовая подготовка делалась под пятку фундамента. 5. Результаты даете сюда. Ну а далее можно будет думать. В принципе, если фундамент выполнен так, как вы описали в первом сообщении, без армирования даже, но на ту глубину о которой идет речь, и шириной 400мм, при условиии что материал стен будет кирпич, то хороший армопояс спасет ситуацию (если стены из газо/пеноблока, то нужен будет очень хороший и мощный армопояс). Только прораба - нах! Берете другого толкового, и сами присутствуете непрерывно в процессе изготовления хотябы основного армопояса. Посилання на коментар Поділитися на інших сайтах More sharing options...
Artyomovets Опубліковано: 23 квітня 2012 Поділитись Опубліковано: 23 квітня 2012 при условиии что материал стен будет кирпич, то хороший армопояс спасет ситуацию (если стены из газо/пеноблока, то нужен будет очень хороший и мощный армопояс). хм... а разве газобетон тяжелее кирпича? Посилання на коментар Поділитися на інших сайтах More sharing options...
Игореха Опубліковано: 23 квітня 2012 Поділитись Опубліковано: 23 квітня 2012 хм... а разве газобетон тяжелее кирпича? В том то и дело, что газобетон и другой "пено" материал, гораздо легче кирпича и к тому же гораздо менее прочный. ;) В этом то и вся фишка. Дом из ГБ будет несколько (если не существенно) легче, дома из кирпича. Следовательно фундамент будет меньше нагружен. Это значит что вес всей коробки может быть на пределе (и не дай Бог недостаточно) чтобы эффективно бороться (противодействовать) силам морозного пучения. Если вес дома не может эффективно усмирять силы морозного пучения грунта, то такой дом (особенно при неизвестном фундаменте) будет чуть-чуть "плавать" в грунте. А это значит что зимой его будет выпирать из грунта, а вестной он будет снова погружаться в грунт. Эти подвижки совсем небольшие, но и нескольких миллиметров неравномерной усадки дома достаточно чтобы лопнул фундамент, а вслед за ним и стены. Стены легкие - лекгий дом - не достаточно прочный материал (ГБ) и результат - терщинки на стенах после нескольких сезонов. Чтобы нивелировать неравномерные усадки и трещинки в неармированном фундаменте, надо компенсировать это неподобство очень качественным и мощным армопоясом и армированием кладки не очень прочного материала (ГБ). Чтобы стены стояли на таком себе монолитном поясе, которому будут не страшны подвижки нижней части фундамента. Если же фундамент дома нагружен прочной, тяжелой кирпичной кладкой, то такой дом весом своего "авторитета" будет эффективно сопротивляться силам морозного пучения. И наверняка 2х этажная коробка из кирпича с жб перекрытиями полностью компенсирует эти силы и замерзшему грунту просто не "хватит сил" выпихать зимою коробку вверх. Небольшие подвижки будут все равно, но они будут существенно меньше, чем в легком доме. А с учетом того что кирпичная кладка прочнее ГБ сама по себе, то с учетом меньших сейсмических подвижек, надо гораздо больше сил приложить, чтобы ее порвать. Это теория на пальцах. Надеюсь, что после этого очерка, даже школьник предстваит себе физику процессов. ;) К этому можно добавить еще только одно. Чтобы спать совсем спокойно (при условии "неизвестного" фундамента), надо бы сделать дренаж вокруг него (чтобы вода поменьше подбиралась к основанию фундамента и не разжижала грунт под ним) и выполнить теплую отмостку (дабы минимизировать промерзание грунта вокруг фундамента и минимизировать силы морозного пучения грунта). 3 Посилання на коментар Поділитися на інших сайтах More sharing options...
trianom Опубліковано: 23 квітня 2012 Поділитись Опубліковано: 23 квітня 2012 Если фундамент шириной ленты в 400 мм. своей подошвой опирается на минеральные грунты (разговор идет про не просадочные грунты) и прошли глубину промерзания (по центральной Украине в среднем 0,9-1,1 м), то домик в 2 этажа такие фундаменты должны нести (под вопросом только грунты основания, сложенные текучепластичными глинистыми грунтами). При соблюдении этих условий отсутствие армирования по подошве не критично. Конечно же стоит выполнить проверку состояния фундаментов с помощью отрытых шурфов (в том числе проверить вертикальность боковых граней фундаментных лент), как посоветовал в посте #4 ув. Игореха. По обрезу (по верху) фундаментов для распределения усилий от возможных деформаций основания стоит устроить армопояс, а вот какой (арматурные стержни в слое раствора или полноценный ж.б армопояс высотой minim 300 мм.) - будет зависеть от надземной части здания (будут ли значительные перепады в нагрузках на фундаменты от частей здания или все будет более-менее равномерно распределено). Для сельского хозяйства черноземы мощностью 90 см. - сказочные условия, а вот для строительного дела - скорее головная боль: черноземы обладают невысокой несущей способностью, да и органика на протяжении длительного времени перегнивает и дает значительные осадки (в основном из-за этого грунты растительного слоя не используются в качестве онования для фундаментов). Это я к тому, что со временем участки площадки строительства (со всеми отмостками и тротуарными мощениями) вокруг Вашего дома будут давать осадку (причем неравномерную) со всеми вытекающими (образование трещин в покрытии площадки, впадины и подъемы разных участков и т.п.). В капитальном строительстве на площадке грунты растительного слоя вынимают на всю глубину залегания и вывозят на поля рекультивации, а обратную засыпку и планировочные подсыпки участка выполняют местными пригодными для строительства минеральными грунтами. в Вашем случае было бы разумно выполнить частичную замену грунтов растительного слоя (по внешнему периметру фундаментов на ширину 1,0 м., чтобы исключить неравномерные осадки поверхности площадки (обычно вокруг фундаментов устраивается отмостка) и обезопаситься от возможных сил морозного пучения ), а также было-бы неплохо прикинуть генпланчик с указанием зон с различным покрытием участка (проезды, дорожки, площадки) и подумать как технически предотвратить возможные неравномерные осадки. 2 Посилання на коментар Поділитися на інших сайтах More sharing options...
godlove Опубліковано: 23 квітня 2012 Автор Поділитись Опубліковано: 23 квітня 2012 Привіт усім! Дуже дякую за те, що відгукнулися на нашу проблему!!! Перечитав усі поради, збирав інформацію, яку ви просили мені надати. Це нелегко, так як ми знаходимось взагалі не на Україні. Рівень грунтових вод (зі слів сусідів) дуже низько, за 20метрів від мого фундаменту є колодязь. Сусід сказав, що глибина колодязя є 25 метрів (більше ніж 8м води не було ніколи). В нього підвал у будинку - 3м, завжди сухо. Зараз найбільш схиляюся до варіанту залиття монолітного перекриття по всьому фундаменті висотою 30см з гідроізоляцією. Сьогодні говорив із "прорабом", сказав, що має фото з глибиною закладки, шириною подушки (Скину пізніше). Щодо стіни, думаю над таким варіантом: пустотіла цегла, 1,5 цеглини, утеплювач - мінеральна вата 10см - півцеглини. Облицювання клінкерною плиткою або є можливість привезти суміш - maxxit - різновид клею, який наноситься, як фініш, на цеглу(завтра постараюся зробити фото і скинути). Не знаю чи такий "пиріг" не буде важким для мого фундаменту???!!! Ще забув сказати, що у мене є ухил ділянки до дороги, 90см на протяжності 25м. Посилання на коментар Поділитися на інших сайтах More sharing options...
godlove Опубліковано: 23 квітня 2012 Автор Поділитись Опубліковано: 23 квітня 2012 привязка фундамента на план Посилання на коментар Поділитися на інших сайтах More sharing options...
godlove Опубліковано: 23 квітня 2012 Автор Поділитись Опубліковано: 23 квітня 2012 11.pdf22.pdf 33.pdf44.pdf фасад Посилання на коментар Поділитися на інших сайтах More sharing options...
Игореха Опубліковано: 23 квітня 2012 Поділитись Опубліковано: 23 квітня 2012 Ждем фотографии от прораба. Вы строите на Украине, а живете не тут? Потому как стройка украинская ;) То что есть небольшой уклон и выше участка нету горы - это в вашем случае дополнительный бонус в плане отвода воды от фундамента ;) И да. Более точно описание грунтов, если оно у вас имеется, и какая грунтовая подготовка выполнялась? Почитайте сообщение trianom. Очень полезно и подробно расписано. Если вы сможете разобраться сами в написанном - будет отлично. Или давайте сюда всю подноготную фундамента. В любом случае надо знать, на чем этот фундамент стоит. Посилання на коментар Поділитися на інших сайтах More sharing options...
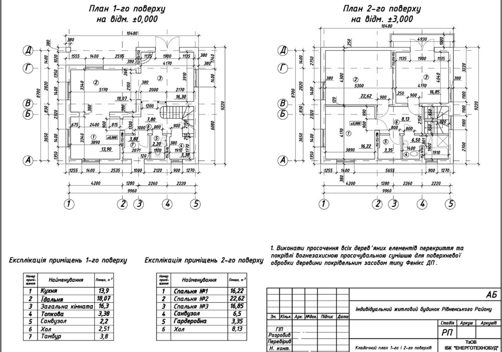
godlove Опубліковано: 23 квітня 2012 Автор Поділитись Опубліковано: 23 квітня 2012 план будинку Посилання на коментар Поділитися на інших сайтах More sharing options...
godlove Опубліковано: 24 квітня 2012 Автор Поділитись Опубліковано: 24 квітня 2012 Привіт! Дещо, що зміг дізнатися. Грунти визначали органолептичним методом. Фундамент стоїть на суглинистому шарі грунту (при розчавленні рукою розсипається - не ліпиться). Була зроблена подушка з піску (зі слів прораба пішло пів машини - ЗИЛ 130). При закладці фундаменту використовувалась марка бетону - М200. Все ускладнюється тим, що ми знаходимось не на Україні, а будуємось на Україні (Рівне). Посилання на коментар Поділитися на інших сайтах More sharing options...
godlove Опубліковано: 24 квітня 2012 Автор Поділитись Опубліковано: 24 квітня 2012 генпланчик, на швидкоруч ))) Посилання на коментар Поділитися на інших сайтах More sharing options...
alyak Опубліковано: 24 квітня 2012 Поділитись Опубліковано: 24 квітня 2012 не очень хорошо , самое плохое - отсуствие армирования , но дом должен стоять. так делают . но это колхоз Посилання на коментар Поділитися на інших сайтах More sharing options...
Olga_Flower Опубліковано: 24 квітня 2012 Поділитись Опубліковано: 24 квітня 2012 не каждый грунт требует обязательного армирования. Мой фундамент тоже заливался в два этапа, сначала траншея и заливка в грунт по уровень земли без армирования, потом выставление опалубки и вторая серия заливки. Все прекрасно соединилось, ноу проблем. Но мы делали геологию и поскольку у нас пески, могли себе позволить отсутствие армирования при ширине фундамента 50 см. Строимся с проектом и фундамент просчитывался профессионалами. Подробности, как делали фундамент, можно глянуть в моей ветке на первой странице. Посилання на коментар Поділитися на інших сайтах More sharing options...
trianom Опубліковано: 25 квітня 2012 Поділитись Опубліковано: 25 квітня 2012 Зараз найбільш схиляюся до варіанту залиття монолітного перекриття по всьому фундаменті висотою 30см з гідроізоляцією. Ж.б. плита высотой 300 мм. - можно автомобили ставить (да к тому же увеличиваются нагрузки на фундамент), а если нет воды - зачем гидроизоляция? Теперь про пирог стены (не плохой пирог) -I вар: если внутренний слой из кирпича 380 мм.(под ж.б плиты перекрытия)+утеплитель 100 мм.+облицовка в полкирпича 120мм.=600 мм. Следовательно такая же должна быть ширина фундаментной ленты, ну или хотя бы 500-550мм. II-вар: если внутренний слой из кирпича 250 мм.(под легкое перекрытие (скажем из деревянных балок))+утеплитель 100 мм.+облицовка в полкирпича 120мм.=470 мм. Этот вариант проходит для фундам. ленты шириной 400 мм. Было бы неплохо взглянуть на чертежи по перекрытию. ИМХО, я бы ограничился ж.б. поясом скажем 400х300(h)мм по верху фундам. ленты, причем это уже решение с большим запасом (страховка от косяков при устройстве фундаментов) 1 Посилання на коментар Поділитися на інших сайтах More sharing options...
godlove Опубліковано: 27 квітня 2012 Автор Поділитись Опубліковано: 27 квітня 2012 фото вже залитого "фундаменту". ИГОРЕХА! Після перегляду вашого будівництва аж сльози навертаються, як дивимся на свій!!! Посилання на коментар Поділитися на інших сайтах More sharing options...
Игореха Опубліковано: 27 квітня 2012 Поділитись Опубліковано: 27 квітня 2012 фото вже залитого "фундаменту". ИГОРЕХА! Після перегляду вашого будівництва аж сльози навертаються, як дивимся на свій!!! Что вас так огорчает в вашем фундаменте? В фундаменте, на первом месте стоит правильный проект, качество и прочность ;) Эстетика далеко не на первом плане и даже не на втором. Он будет в земле и главное - должен выполнять свои функции. С цоколем надо уже будет повозиться более серьезно в плане эстетики и ровности - его же потом отделывать надо, он будет на виду. Я конечно и эстетике большое значение придаю, но это, если хотите - мои "тараканы":D Понимаю, что в свете изложенного в первом сообщении, говорить о строгом следовании проекту и качеству не особо приходится, но общие рекомендации по спасению положения вам уже дали. Так что не спустите на тормозах второй этап - армапояс ;) 1 Посилання на коментар Поділитися на інших сайтах More sharing options...
tehbeton Опубліковано: 29 квітня 2012 Поділитись Опубліковано: 29 квітня 2012 Бетон по нашим меркам слабо тянет на М-200, хотя все может быть. Мое впечатление основано на фотографиях. Посилання на коментар Поділитися на інших сайтах More sharing options...
Рекомендовані повідомлення
Створіть акаунт або увійдіть у нього для коментування
Ви маєте бути користувачем, щоб залишити коментар
Створити акаунт
Зареєструйтеся для отримання акаунта. Це просто!
Зареєструвати акаунтУвійти
Вже зареєстровані? Увійдіть тут.
Увійти зараз