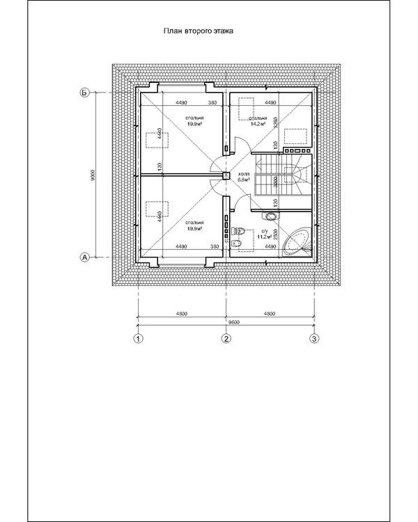
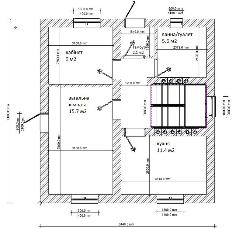
Conductor-25 Опубліковано: 15 травня 2012 Поділитись Опубліковано: 15 травня 2012 Доброго всім дня!!! Допрацювали з архітекторами проект і вирішив викласти на обговорення. Розумію, що зараз підуть коментарі, "якщо це остаточний варіант, навіщо викладати" але щось легенько підправити ніколи не пізно))) Креслилось в (тільки почав освоювати) арконі, і якщо десь видно значення 2199.9 то вибачайте, шось не вийшло проставити, але зовнішні розміри і внутрішні (без десятих міліметра) точні. всілякі меблі і унітази ще не знайшов в програмі, тому не проставив... за колір будинку також вибачайте... вентканали димоходи також поставив як на каміни, але менших не знайшов... фасад буде в стилі фахверк зі ставнями. дах двоскатний, і на висоті 2.2 метри буде "находити на стіни" (ніби така трошки мансарда) тепер про конструктив, повноцінний підвал на всю площу будинку, тому нема кладовочок на поверхах. перекриття - пустотні плити по підвалу і першому поверху. стіни ГБ AEROC D500 D-2.5 600х400х200 висота підвалу 2300, 1 поверх 2820 (грязними) 2 поверх 2200 і 2900 (чистими)кухня на півдні робилась свідомо. Хто скаже щось добре або пагане? Посилання на коментар Поділитися на інших сайтах More sharing options...
ПЛАСТИК Опубліковано: 15 травня 2012 Поділитись Опубліковано: 15 травня 2012 У вас в кухне входной двери нет, это по нормам не допускаеться 4 Посилання на коментар Поділитися на інших сайтах More sharing options...
Conductor-25 Опубліковано: 15 травня 2012 Автор Поділитись Опубліковано: 15 травня 2012 У вас в кухне входной двери нет, это по нормам не допускаеться от бачите, забув поставити. звичайно там мають бути двері;) Посилання на коментар Поділитися на інших сайтах More sharing options...
вторик Опубліковано: 15 травня 2012 Поділитись Опубліковано: 15 травня 2012 Допрацювали з архітекторами проект і вирішив викласти на обговорення. тільки погане, в чорний список його, щоб клієнт сам креслив після роботи архітектора, я такого ще не бачив 1 Посилання на коментар Поділитися на інших сайтах More sharing options...
Conductor-25 Опубліковано: 15 травня 2012 Автор Поділитись Опубліковано: 15 травня 2012 тільки погане, в чорний список його, щоб клієнт сам креслив після роботи архітектора, я такого ще не бачив Що Ви таке говорите? Просто архітектор мені не дав електронний варіант креслень, а перезнімати і викладати сфотографований з паперу план мені здалось негарним, і я вирішив накреслити те, що мені запаропонував архітектор. в кого які думки? Посилання на коментар Поділитися на інших сайтах More sharing options...
Alisa3 Опубліковано: 15 травня 2012 Поділитись Опубліковано: 15 травня 2012 Я думаю, что на кухню можно спокойно попадать через окно. Тогда вопрос с запахами жареной рыбы в доме отпадёт сам собой ;) Мне лично не хватает гардеробной при входе. Тамбур слишком мал для того, чтобы разместить хотя бы обувь нормально не говоря о верхней одежде. На втором этаже не делала бы апендикс в холе, а сделала бы большую ванну или ванну с коморкой. Посилання на коментар Поділитися на інших сайтах More sharing options...
Conductor-25 Опубліковано: 15 травня 2012 Автор Поділитись Опубліковано: 15 травня 2012 Я думаю, что на кухню можно спокойно попадать через окно. Тогда вопрос с запахами жареной рыбы в доме отпадёт сам собой ;) да чого всі вчепились за той вхід на кухню? там будуть двері з загального коридору. Добавлено через 16 минут Мне лично не хватает гардеробной при входе. Тамбур слишком мал для того, чтобы разместить хотя бы обувь нормально не говоря о верхней одежде. На втором этаже не делала бы апендикс в холе, а сделала бы большую ванну или ванну с коморкой. при вході ми не будемо робити гардеробну, просто буде малесенька прихожа: декілька вішчаків, під ними шафка для взуття, при вході стільчик. в тому "апендиксі" на другому поверсі буде вікно, воно буде освітлювати весь холл, там буде напевне зелена зона і можливо загальний журнальний столик з кріслом. а ванна як на мене і так велика. Посилання на коментар Поділитися на інших сайтах More sharing options...
Alisa3 Опубліковано: 15 травня 2012 Поділитись Опубліковано: 15 травня 2012 да чого всі вчепились за той вхід на кухню? там будуть двері з загального коридору. Эх... уже и пошутить нельзя... 1 Посилання на коментар Поділитися на інших сайтах More sharing options...
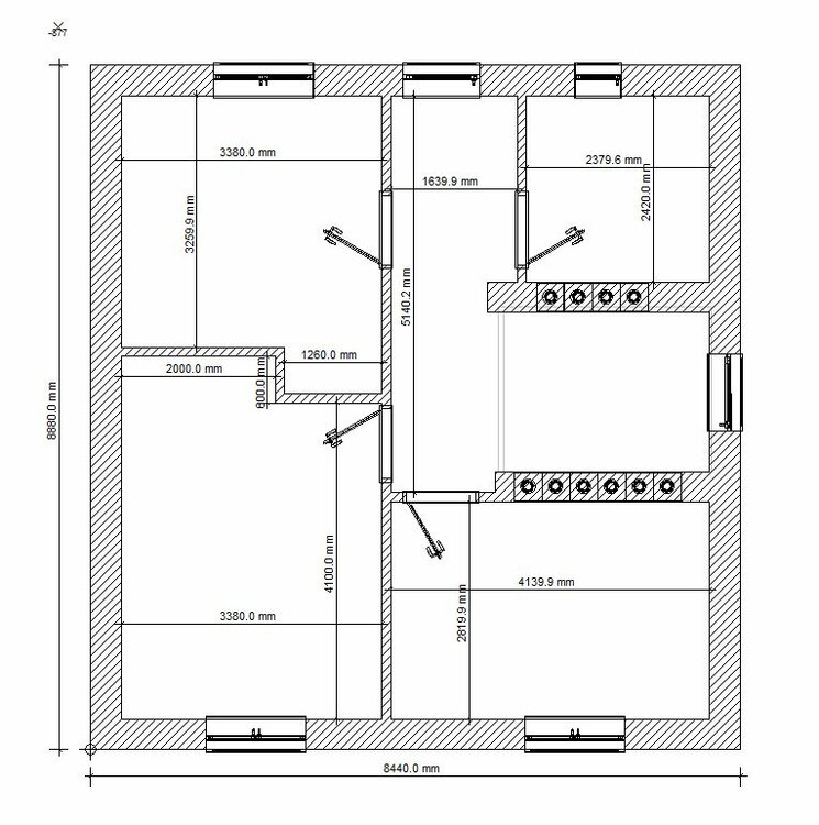
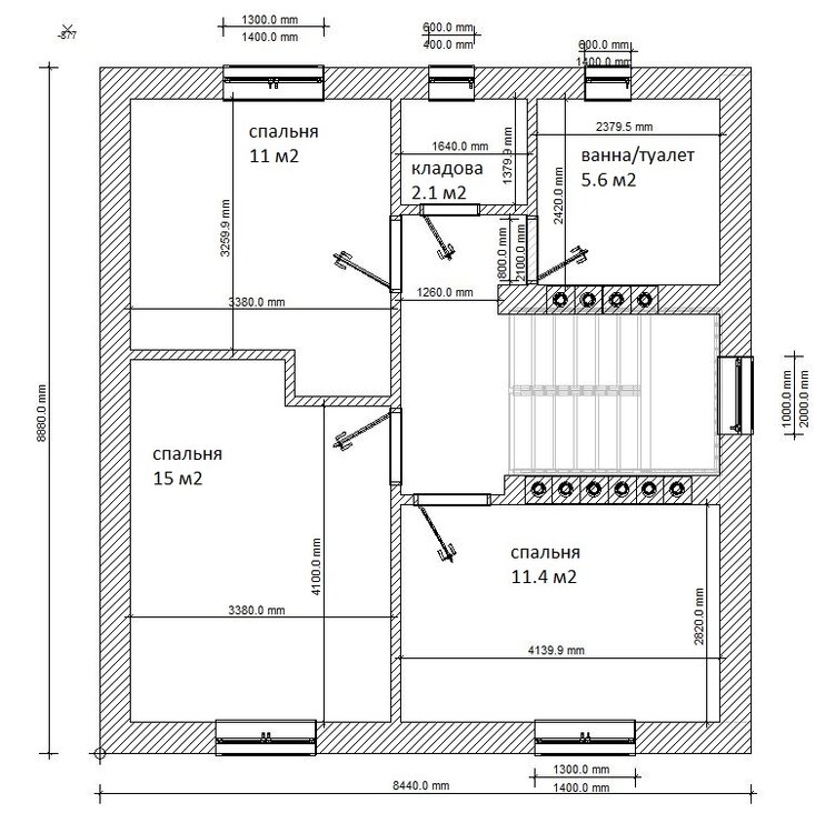
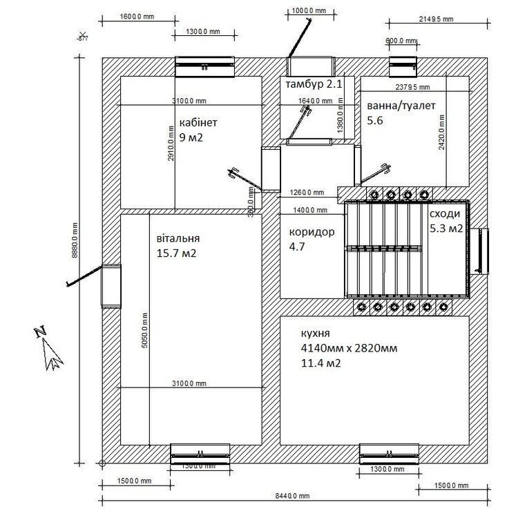
Романнн Опубліковано: 16 травня 2012 Поділитись Опубліковано: 16 травня 2012 По планировкам очень похоже на построенный мной дом. На работе есть планы по этажам, завтра выложу - может что пригодится. Кстати дом тоже в имитации фахверк. 2 Посилання на коментар Поділитися на інших сайтах More sharing options...
Романнн Опубліковано: 17 травня 2012 Поділитись Опубліковано: 17 травня 2012 Обещанные планировки. 1 Посилання на коментар Поділитися на інших сайтах More sharing options...
Conductor-25 Опубліковано: 17 травня 2012 Автор Поділитись Опубліковано: 17 травня 2012 На втором этаже не делала бы апендикс в холе, а сделала бы большую ванну или ванну с коморкой. після коротких переговорів було прийнято рішення відмовитись від "апендикса" на другому поверсі на користь гардеробної:Yahoo!: також там передбачили маленьке віконце для провітрювання і освітлення (600х400 мм) викладаю змінені плани з дверями в кухню...:D Посилання на коментар Поділитися на інших сайтах More sharing options...
Conductor-25 Опубліковано: 18 травня 2012 Автор Поділитись Опубліковано: 18 травня 2012 Люди, поясніть, чому ніхто нічого не напише? на якісь сирі недолугі проекти по декілька сторінок коментів, а тут пусто.... невже так погано? чому? як на мене все дуже збалансовано, всього достатньо, хоча і зовнішні розміри невелекі. форма будинку правильна квадратна, обумовлена лаконічністю обраного стилю. чи тут нема чого говорити? починати і все? чекайте у розділі "наша стройка" Посилання на коментар Поділитися на інших сайтах More sharing options...
Alisa3 Опубліковано: 19 травня 2012 Поділитись Опубліковано: 19 травня 2012 Люди, поясніть, чому ніхто нічого не напише? на якісь сирі недолугі проекти по декілька сторінок коментів, а тут пусто.... невже так погано? чому? як на мене все дуже збалансовано, всього достатньо, хоча і зовнішні розміри невелекі. форма будинку правильна квадратна, обумовлена лаконічністю обраного стилю. чи тут нема чого говорити? починати і все? чекайте у розділі "наша стройка" Вы написали, что работаетет с архитектором - значить архитекторы Вам уже ничего критиковать не будут))) Ну а такие как я простые фрумчанины критикуют под настроение. Если по-вашему всё лаконичнои и сбалансовано - стройте. Меня, если честно, сильно смущают маленькие комнаты. Загальна кімната 15 кв.м - ну как-то вообще не вписывается в контекст загородного дома. Сделайте что ли арку между кухней и комнатой - чтобы создать хоть какое-то пространство. Коморка на 2кв.м на втором тоже не понравилась. Я бы всё же сделала большую ванну, выделив в ней место под постирочную с сушкой: на втором этаже будут находиться основные вещи, постельное бельё и пр. и постирочная Вам там ох как пригодиться, особенно если дети малые есть. Гардеробной при входе не хватает по-прежнему. Посилання на коментар Поділитися на інших сайтах More sharing options...
Dex-paketa Опубліковано: 19 травня 2012 Поділитись Опубліковано: 19 травня 2012 Компактный и удобный домик, нечего критиковать. Разве что окно из большой комнаты в сторону двери бы еще добавить. Там же участок находится и какие-то посидушки будут происходить, верно? По совмещенной кухне с комнатой - это на любителя, тогда комнатой как гостевой спальней будет проблематичней пользоваться. Добавлено через 1 минуту Кстати, а кабинет вообще нужен? Может за счет него увеличить центральную комнату в сторону кухни а на месте кабинета поставить кухню? 1 Посилання на коментар Поділитися на інших сайтах More sharing options...
Conductor-25 Опубліковано: 19 травня 2012 Автор Поділитись Опубліковано: 19 травня 2012 (змінено) Вы написали, что работаетет с архитектором - значить архитекторы Вам уже ничего критиковать не будут))) Ну а такие как я простые фрумчанины критикуют под настроение. Так я ж написав, що якісь маленькі нюанси ніколи не пізно виправити. Если по-вашему всё лаконичнои и сбалансовано - стройте. Меня, если честно, сильно смущают маленькие комнаты. Загальна кімната 15 кв.м - ну как-то вообще не вписывается в контекст загородного дома. Просто є такий вислів "протягивают ножки по одежке:)" мені і так після зробленої геології прийшлось робити цокольний поверх (нормальні грунти знаходяться нижче 2 метрів) і автоматично прийшлось переробляти проект над яким сиділи довго часу. а перший проект був більший, але без підвалу... Сделайте что ли арку между кухней и комнатой - чтобы создать хоть какое-то пространство. я думав над цим, але яка ціль цього елементу? у мене і так дверей в вітальню не буде, а буде арка, але з загального коридору, це якщо б у мене кухня була більшою, тоді можливо. а так мені не буде куди поставити стіл якщо там буде арка... і слідуючи Вашому першому коменту, я уникну запахів жареної риби по всьому дому Коморка на 2кв.м на втором тоже не понравилась. Я бы всё же сделала большую ванну, выделив в ней место под постирочную с сушкой: на втором этаже будут находиться основные вещи, постельное бельё и пр. и постирочная Вам там ох как пригодиться, особенно если дети малые есть. Гардеробной при входе не хватает по-прежнему. я до цих пір не розумію цього модного слова серед теперешніх буратіно-постирочна. на мою думку це вже перегиб для бАгАтих, робити спеціальну кімнату, де поставити машинку (тягнути воду і каналізацію) і просто зробити там склад брудної білизни. це не для мене, мене не буде нервувати пральна машина у ванній на другому поверсі (вся білизна дійсно буде на другому поверсі) і складена прасувальна дошка в гардеробній, а попрасувати можна і в кімнаті))) і взагалі зрозумів, що у кожного свої критерії комфортного будинку, комусь будинок без камінної зали на площу всього мого будинку та без басейну з сауною і більярду у підвалі буде жахливо незручним, а хтось радий до неба прибудові на 50м2. мені після багатьох років поневірянь по з'ємних квартирах далеко не першої свіжості і МІНІМАЛІСТИЧНОГО навіть МІКРОСКОПІЧНОГО планування, цей будинок взагалі здається гігантським!!! Добавлено через 16 минут Компактный и удобный домик, нечего критиковать. СПАСИБО! мне тоже нравится!!!!! Разве что окно из большой комнаты в сторону двери бы еще добавить. Там же участок находится и какие-то посидушки будут происходить, верно? оно то так, но зачем окно, если будут прозрачние довери до пола? так как по СНиП-ам в гостинной не хватает остекленения, воплотил свою мечту - окно до пола, с возможностью выхода на "зеленую площадку" По совмещенной кухне с комнатой - это на любителя, тогда комнатой как гостевой спальней будет проблематичней пользоваться. ет точно, мне не нравится кухня в комнате... может бить, для людей, которые готовят на кухне только кофе с бутербродами утром, а обед и ужин в ресторане, то может и нормально, а я люблю готовить, и очень часто, запахи "жаренного-паренного" просачиваются даже через двери,а если без них, то аж страшно. знаю, сейчас скажут "так ведь есть вытяжки" но они все равно 100% запахов не вытянут, а сидеть в комнате с "легким душком" тоже не хочется))) Кстати, а кабинет вообще нужен? Может за счет него увеличить центральную комнату в сторону кухни а на месте кабинета поставить кухню? я думал, но у меня кухня выходит в сад, а если перенести на место кабинета, тогда в соседский забор... а кабинет по моему нужен, поставить там диванчик, офисный стол, и все комп. принадлежности и книги, а у меня их много)))) сделать такой себе "родительский уголок". Змінено 19 травня 2012 користувачем Conductor-25 1 Посилання на коментар Поділитися на інших сайтах More sharing options...
пух Опубліковано: 19 травня 2012 Поділитись Опубліковано: 19 травня 2012 А где планируете строится? Завидую насчет цоколя у нас высокий УГВ мы себе этого позволить не можем.Цоколь может заменить всякие кладовые и т.д. которые забирают пространство на 1-м этаже. Я пока слаба в критике.Ну как по мне есть все самое необходимое... без излишеств все очень компактно и симпатично, 1 Посилання на коментар Поділитися на інших сайтах More sharing options...
Conductor-25 Опубліковано: 19 травня 2012 Автор Поділитись Опубліковано: 19 травня 2012 А где планируете строится? Завидую насчет цоколя у нас высокий УГВ мы себе этого позволить не можем.Цоколь может заменить всякие кладовые и т.д. которые забирают пространство на 1-м этаже. Я пока слаба в критике.Ну как по мне есть все самое необходимое... без излишеств все очень компактно и симпатично, у мене все занадто навпаки. угв ДУЖЕ низько (більше 10 метрів) здається, що все нормально, але до води треба бити свердловину десь на 80 метрів... а це дорогоооо!!! мені так само здається, що все занадто компактно, організовано всі необхідні приміщення а головне без углів і зайвих кімнат. зробили візуалізацію, навіть гарно виходить))) скоро викладу. Посилання на коментар Поділитися на інших сайтах More sharing options...
Dozdev Опубліковано: 25 травня 2012 Поділитись Опубліковано: 25 травня 2012 не розумію цього модного слова серед теперешніх буратіно-постирочна зачем Вы обижаете буратин? ;) постирочная вещь хорошая, но необязательная. раз вы не делаете нормальных (больших) гардеробных, то и постирочная Вам конечно не нужна. а по уму - это помещение, куда выводится все операции связанные с бельем, стиркой, глажкой и ремонтом одежды и белья. т.е. конечно скромный советский человек привык, что полоскать белье можно в ванной, а вываривать на кухне.. а сушить на балконе.. а гладить в гостиной, а хранить в спальне.. а если у человека в доме есть комната с полками для белья, гладильной доской, с машинкой и с выходом на террасу, где белье можно просушить - то он буратино!? Судя по проекту это первый Ваш дом? Вы продолжаете мерять все категориями квартиры.. т.е. "прихожая у меня в квартире была маленькая, но ничего, помещались как-то" или "у меня в квартире гардеробных не было, но все вещи отлично хранились в шкафу, а на шкаф можно было сложить еще что-то в картонных коробках". или "зачем дому веранда или тамбур? в квартиру заходили без всякого тамбура.." забыв, что тамбур был, но на первои этаже, и в подъезде было более-менее тепло. в результате и получится не дом, а отдельностоящая квартира, со всеми ее недостатками 2 Посилання на коментар Поділитися на інших сайтах More sharing options...
Рекомендовані повідомлення
Створіть акаунт або увійдіть у нього для коментування
Ви маєте бути користувачем, щоб залишити коментар
Створити акаунт
Зареєструйтеся для отримання акаунта. Це просто!
Зареєструвати акаунтУвійти
Вже зареєстровані? Увійдіть тут.
Увійти зараз