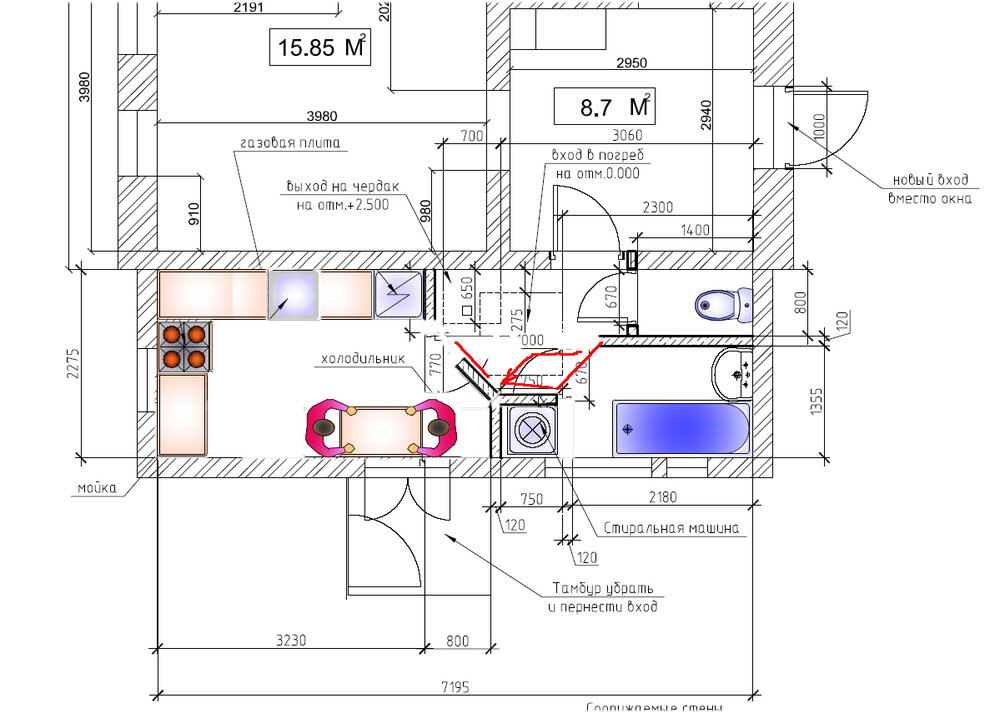
Александрсергеич Опубліковано: 21 травня 2012 Поділитись Опубліковано: 21 травня 2012 Имею небольшой дом но без удобств и нормальной кухни, пристрйку побольше боюсь не потяну материально , но если разместить все это в существующей пристройке, оцените мой вариант, покритикуйте или предложите свой зараннее спасибо.Вариантdwg.rarВариант.pdf Посилання на коментар Поділитися на інших сайтах More sharing options...
Татьяна5 Опубліковано: 23 травня 2012 Поділитись Опубліковано: 23 травня 2012 оч неудобная кухня, но если вариантов нет - что обсуждать? Посилання на коментар Поділитися на інших сайтах More sharing options...
DVIJOK Опубліковано: 23 травня 2012 Поділитись Опубліковано: 23 травня 2012 обсуждать пока нечего. Начертите, расставьте, образмерьте и обозначьте все нормально, что б было видно что где. Только тогда можно что-то сказать. Почему например ниша под холодильник больше самого холодильника? На таких площадях каждый см ценен. Что за синее пятно вверху слева. мойка? Почему человечки сидят за невидимым столом? Зачем стиралка вынесена за пределы ванной? Посилання на коментар Поділитися на інших сайтах More sharing options...
Александрсергеич Опубліковано: 24 травня 2012 Автор Поділитись Опубліковано: 24 травня 2012 спасибо за внимание, извините не проследил, вроде исправился, посмотрите вложение. Просто пристройку за год не потянуть. А оставлять под открытым небом пол дома на зиму опасноВариант.pdf Посилання на коментар Поділитися на інших сайтах More sharing options...
olimpiya Опубліковано: 24 травня 2012 Поділитись Опубліковано: 24 травня 2012 я не дизайнер, но влезу. А зачем выгораживать нишу под холодильник? Может пусть стоит в теле кухни, и тамбур будет больше тогда. И та рабочая поверхность, где плита, почему не до конца стенки? Посилання на коментар Поділитися на інших сайтах More sharing options...
Александрсергеич Опубліковано: 24 травня 2012 Автор Поділитись Опубліковано: 24 травня 2012 там два люка один начердак с раскладной лестницей, а второй в погреб, я стенкой их перекрою. Посилання на коментар Поділитися на інших сайтах More sharing options...
olimpiya Опубліковано: 24 травня 2012 Поділитись Опубліковано: 24 травня 2012 не, поняла. Люки пусть себе будут. Убрать апендицит для холодильника. Кухню сделать правильной прямоугольной формы. Посилання на коментар Поділитися на інших сайтах More sharing options...
Александрсергеич Опубліковано: 24 травня 2012 Автор Поділитись Опубліковано: 24 травня 2012 за счет аппендицита я выиграл место для рабочей поверхности - она будет до самой стены, а если на то место поставить холодильник то будет гулять место за стенкой, там где сейчас аппендицит.Как то так. Посилання на коментар Поділитися на інших сайтах More sharing options...
olimpiya Опубліковано: 24 травня 2012 Поділитись Опубліковано: 24 травня 2012 Просто у вас рабочая поверхность не нарисована до конца, как раз место под холодильник. И на самом деле так много рабочей поверхности не надо ИХМО. Просто за спиной холодильник по моему не оч удобно. И в тамбуре будет не развернуться. Но это таке 1 Посилання на коментар Поділитися на інших сайтах More sharing options...
Julla Опубліковано: 24 травня 2012 Поділитись Опубліковано: 24 травня 2012 Посмотрите примерно такой вариант! У Вас надо ловить буквально милиметры, но если будете строить сами, то должно получиться. Стиралку "занести" в ванную. Сверху над ней - шкафчик для ... всего, короче :D Не совсем понятно, что есть"выход на чердак"? Это типа "приставная лестница? Ну на ладно! Она не мешает! Возможно на кухне не стОит вообще делать дверь, а ограничиться проёмом, или шторой (занавеской)? Газплиту можно в нижний угол поставить. Но только не мойка там! ИМХО не обязательно всё должно быть прямоугольной формы - не всегда при этом рационально используется место. Плюс много строить ну и т.д. Стенку между туалетом и ванной укоротить так, чтобы по косой нормально встала стандартная дверь (или так, чтобы в закрытом состоянии не мешала открывать люк в погреб) Или сделать дверь на верхних роликах... 1 Посилання на коментар Поділитися на інших сайтах More sharing options...
Александрсергеич Опубліковано: 24 травня 2012 Автор Поділитись Опубліковано: 24 травня 2012 Спасибо за ответ но я так уже пробовал, перекрывается люк в подвал. Наверное таки прийдется занимать денюх и строить что то больше, а это валить Посилання на коментар Поділитися на інших сайтах More sharing options...
Julla Опубліковано: 24 травня 2012 Поділитись Опубліковано: 24 травня 2012 Не отчаивайтесь! Покрутите ещё! Половите милиметры! Не может быть, чтобы не получалось! Чем-то пожертвуйте! Дверью в кухню, например. Это и дешевле, и проще, и люк в погреб не должен перекрываться. А если и будет уголок слегка заходить "на территорию кухни"? Ну и что? Мне кажется, что всё у Вас должно получиться! Посилання на коментар Поділитися на інших сайтах More sharing options...
Julla Опубліковано: 24 травня 2012 Поділитись Опубліковано: 24 травня 2012 (змінено) Зацепило меня :D Ещё вот так можно Шторы можно только в проёме. Стиралку с полками наверху можно закрыть двустворчатой распашной дверью. Зеркальной. Тогда визуально увеличится постранство. В ванной не шкаф, а тумба с сеткой для гр. белья. Змінено 24 травня 2012 користувачем Julla 1 Посилання на коментар Поділитися на інших сайтах More sharing options...
Александрсергеич Опубліковано: 24 травня 2012 Автор Поділитись Опубліковано: 24 травня 2012 Выход на чердак с выдвижной лестницей , а ей нужно место что бы разложиться и она будет упираться в стену которая под углом, но все равно буду думать. Посилання на коментар Поділитися на інших сайтах More sharing options...
Julla Опубліковано: 24 травня 2012 Поділитись Опубліковано: 24 травня 2012 Так не делайте эту стену! Пусть остаётся чистый проём! Только простеночек, отделяющий кухню от стиральной машины. Не забывайте также, что существуют полноценные, полнозагруженные стиралки глубиной 430, а не 600 Добавлено через 10 минут У Вас также есть возможность сделать пространство для ст.машины чуть шире - будет куда спрятать ведро со шваброй или гладильную доску,... 1 Посилання на коментар Поділитися на інших сайтах More sharing options...
Александрсергеич Опубліковано: 24 травня 2012 Автор Поділитись Опубліковано: 24 травня 2012 про стиралку 430 даже не подумал, респект, завтра все прорисую заново, спасибо за подсказку. 1 Посилання на коментар Поділитися на інших сайтах More sharing options...
Александрсергеич Опубліковано: 25 травня 2012 Автор Поділитись Опубліковано: 25 травня 2012 Тоесть примерно вот так?Вариант.pdf Посилання на коментар Поділитися на інших сайтах More sharing options...
olimpiya Опубліковано: 25 травня 2012 Поділитись Опубліковано: 25 травня 2012 А почему не поставить стиралку в ванну, а шкаф навесной над стиралкой сделать. А вы совмещенный СУ не рассматриваете? А в общем хорошо вышло Посилання на коментар Поділитися на інших сайтах More sharing options...
Александрсергеич Опубліковано: 25 травня 2012 Автор Поділитись Опубліковано: 25 травня 2012 стиралка в ванной у тещи сгнила за 3 года, совмещенный у бати дома сделан, в критические моменты, которые иногда совпадают с помывкой остальных членов семьи можно не успеть Посилання на коментар Поділитися на інших сайтах More sharing options...
Julla Опубліковано: 25 травня 2012 Поділитись Опубліковано: 25 травня 2012 Тоесть примерно вот так? Примерно "Ловите милиметры"! :D Попробуйте нарисовать без выносных линий и цифр! Так станет понятнее А нужна ли Вам вообще стенка 1? - лишние затраты Подумайте! Место "под лестницей" на чердак тоже можно использовать для шкафа - узкого, при стене, чтобы "помещался" ЗА опущеной лестницей. Посилання на коментар Поділитися на інших сайтах More sharing options...
Julla Опубліковано: 25 травня 2012 Поділитись Опубліковано: 25 травня 2012 А почему не поставить стиралку в ванну, а шкаф навесной над стиралкой сделать. Стиралка в ванную не получается - ей нужно 600 по ширине. Тогда отодвинется стенка, будет острый угол двери, иначе перекроется люк погреба. Уменьшится площадь ванной и т.д. ИМХО Посилання на коментар Поділитися на інших сайтах More sharing options...
olimpiya Опубліковано: 25 травня 2012 Поділитись Опубліковано: 25 травня 2012 ясно. я поняла Посилання на коментар Поділитися на інших сайтах More sharing options...
Julla Опубліковано: 25 травня 2012 Поділитись Опубліковано: 25 травня 2012 (змінено) Или так Стиралка в ванной и окно закладывать не надо И неглубокий шкафчик над стиралкой (чтобы не закрывал окно) Предыдущий вариант для сравнения Змінено 25 травня 2012 користувачем Julla Посилання на коментар Поділитися на інших сайтах More sharing options...
Julla Опубліковано: 25 травня 2012 Поділитись Опубліковано: 25 травня 2012 Если бы у меня была подобная ситуация, я бы остановилась на варианте 555 (последний) - 1. максимально используется площадь пристройки под кухню 2. минимум достраивать 3. деление кухни на зоны приготовления пищи и обеденный стол 4. стол возле окна (недалеко из холодильника пиво доставать ) 5. не так часто "лазить" на чердак - можно пережить люк на потолке в кухне 6. если надо создать "интимность" в кухне от ванной и санузла, можно закрыться шторой (дверью-гармошкой, ...) В сложенном виде она возле шкафа под люком. Или вообще ничем не закрывать и т.д. ИЛИ вариант 333, но бе стенки возле холодильника. Чуть меньше кухня, зато есть "подсобные помещения", что тоже очень удобно Хуже, что стенкой перекрывается окно в ванной Посилання на коментар Поділитися на інших сайтах More sharing options...
Александрсергеич Опубліковано: 25 травня 2012 Автор Поділитись Опубліковано: 25 травня 2012 Супруга предложила совмещенный с/у. А газовую плиту перенести нет возможности там подвод газа и вытяжные трубы, вобщем вот такой вариант Посилання на коментар Поділитися на інших сайтах More sharing options...
Рекомендовані повідомлення
Створіть акаунт або увійдіть у нього для коментування
Ви маєте бути користувачем, щоб залишити коментар
Створити акаунт
Зареєструйтеся для отримання акаунта. Це просто!
Зареєструвати акаунтУвійти
Вже зареєстровані? Увійдіть тут.
Увійти зараз