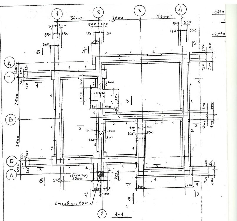
igorya Опубліковано: 10 жовтня 2008 Поділитись Опубліковано: 10 жовтня 2008 (змінено) Привет. есть проект: www.homeplans.ru/projects/index.php?info=F-0244-1&par=atticwind&variant=502440 планировка: www.homeplans.ru/projects/pictures.php?tit=%CD%E5%E1%EE%EB%FC%F8%EE%E9%20%EA%EE%EC%F4%EE%F0%F2%E0%E1%E5%EB%FC%ED%FB%E9%20%E4%EE%EC%20%E8%E7%20%E3%E0%E7%EE%E1%E5%F2%EE%ED%E0%20%E8%EB%E8%20%EA%E8%F0%EF%E8%F7%E0&img=http://www.homeplans.ru/images/homes/plans/0244-1-4.gif план фундамента - см. фаил. по проекту: пол 1-го этажа (нулевая отметка) предлагается делать по грунту, либо плиты. пол мансарды - дерево. по чертежу - плиты ложаться вдоль вертикальной оси (глядя на план фундамента), кроме большой комнаты с котельной. дерево (пол мансарды) в кухне и гостиной наоборот, ложится вдоль горизонтальной оси - это по чертежу, скорее всего из-за необходимости образовать балкон, я так думаю (с) я решил пол 1-го этажа - перекрытие по грунту, пол мансарды - плиты (аналогично как для 1-го этажа по проекту), ну или монолит, т.е. отказаться от дерева. Так вот вопрос капитальная (несущая) стена между прихожей+санузел и кухней - можно ли в этом случае не делать на ее месте фундамент ? плиты на нее не опираются, она находится между ними, т.е. попросту будет гулять. насколькоя я понял, она нужна только для деревянной схемы перекрытия. тогда как в этом случае сделать балкон ? не пострадает ли конструктив фундамента ? Змінено 10 жовтня 2008 користувачем igorya написал не все условия, неверно изложил информацию Посилання на коментар Поділитися на інших сайтах More sharing options...
igorya Опубліковано: 13 жовтня 2008 Автор Поділитись Опубліковано: 13 жовтня 2008 Привет. есть проект: неужели этот вопрос так оказался сложен ? Посилання на коментар Поділитися на інших сайтах More sharing options...
andreo Опубліковано: 13 жовтня 2008 Поділитись Опубліковано: 13 жовтня 2008 я думаю, нужно.во первых, не зря же ее рисовали...во вторых если ее уберешь-может повлиять на конструктивную целостность фундамента на осадку Посилання на коментар Поділитися на інших сайтах More sharing options...
Рекомендовані повідомлення
Створіть акаунт або увійдіть у нього для коментування
Ви маєте бути користувачем, щоб залишити коментар
Створити акаунт
Зареєструйтеся для отримання акаунта. Це просто!
Зареєструвати акаунтУвійти
Вже зареєстровані? Увійдіть тут.
Увійти зараз