Перейти до публікації
Пошук в
  • Додатково...
Шукати результати, які містять...
Шукати результати в...

Мой бань

Kimura

Рекомендовані повідомлення

В общем на днях закончил мастер комнату отдыха + потолки пришили и плитк у почти всю положили..

Баню делал из старой времянки, которая по причине постройки основного дома немного перепланировалась из 2-х комнатного домика с верандой и хламовником в маленький склад для граблей, зону BBQбТопочную-котельную, комнату отдыха, душевую хамама и русско-финской бань (раздельно) и тех комнатки для хамама.

Сделаноподогрев полов везде кроме BBQ, полоена плитка на стены и на пол, ведутся работы по сауне и по зоне BBQ? а так же по отоплению с солнечными коллекторами (планирую в ближайший год сделать подогреваемый бассейн на улице)

Смотрим.

IMG_0814_resize.JPG.cc21b418ca4a2dcb2f6ec6b9dc5caf62.JPG

IMG_0815_resize.JPG.1e12dd73ce05a34fe4916f26f574d255.JPG

IMG_0816_resize.JPG.d27e27a9ee8af874c654b9bb4b08d65f.JPG

IMG_0817_resize.JPG.4aa04368b33824587d5f66f8d049099d.JPG

IMG_0818_resize.JPG.58be28189a2663229e60b782699f598a.JPG

IMG_0820_resize.JPG.7c822a2a03c112bda236f91f63dccf59.JPG

IMG_0821_resize.JPG.cce10995e8a0c4a21dcf60dc0fb30eed.JPG

IMG_0848_resize.JPG.fcbd0079c5646f27e0beeac7d93eba56.JPG

IMG_0849_resize.JPG.dae9ed668a1af1a66f44932c605be504.JPG

IMG_0850_resize.JPG.f9b86b59138327cf35a3f8edca870b6f.JPG

IMG_0851_resize.JPG.372c8f6cbf83d34c4b5cb76cf9ed3cad.JPG

IMG_0852_resize.JPG.700f8c121b4fd56a6f192a2d97b291f8.JPG

IMG_0853_resize.JPG.aa0d581fa1bbe3a7f18b8308131407cf.JPG

IMG_0854_resize.JPG.56b12f06903a1d1d04de748896d5bfcd.JPG

IMG_0855_resize.JPG.60a3e1a624025acec0d2de86b74c6fa6.JPG

  • Лайк 5
Посилання на коментар
Поділитися на інших сайтах

До хамама еще не дошли руки но проект уже есть. Сауна делается с 25кВт дровяной Харвией Дуо что-то там...

IMG_0856_resize.JPG.2c52a4ad5350779fda87a118dd4f9601.JPG

IMG_0857_resize.JPG.28c951a2fbeef93737bc59f66d3f1f18.JPG

IMG_0858_resize.JPG.598f2651603027c2d633fbabff3c228d.JPG

IMG_0860_resize.JPG.899a62c65c08d86cf48496b415876155.JPG

IMG_0861_resize.JPG.087e5b98f503fd3bbc8916442663f006.JPG

IMG_0862_resize.JPG.3c2fd2c85cf5bd69f0001ed365ff0658.JPG

IMG_0864_resize.JPG.3d47ed5da40de9a44ab456fbf92d70f9.JPG

IMG_0866_resize.JPG.7bd0130710f4c8a95d6f4527385fc166.JPG

IMG_0867_resize.JPG.642a50c17e55a3eea96f828781162c69.JPG

IMG_0870_resize.JPG.e03eb6af0db340e0ec56b0685d63ae2e.JPG

IMG_0871_resize.JPG.dd03ddd0937905c218a70293bb8b4f49.JPG

IMG_0872_resize.JPG.26f83498ad4bfa37a626fb55bfc44f4f.JPG

IMG_0873_resize.JPG.8ca2bcb9f32e168d8cf70918592118e9.JPG

IMG_0875_resize.JPG.a1d4c6283284565acd5397f8e5a3fa8e.JPG

IMG_0814_resize.JPG.ccd6e35b9beab4211454da375525a586.JPG

Посилання на коментар
Поділитися на інших сайтах

Солідно! а топити "бань" вже прбували?

через 3 недели делают парилку - -и протоплю - -вчера была сдана только комната отдыха....

Как только мастер закончит - -я по результатам определю его в рай или в ад (БС-ЧС) ;-)

Но пока претендует на БС... Качество, подход и отношение отличные.. Парилка будет с извратами типа узоров , цвета досок и выдвижных полоков , с конвекцией горячего воздуха от каменки вдоль всей парилки - посмотрим как справится... ;-)

Посилання на коментар
Поділитися на інших сайтах

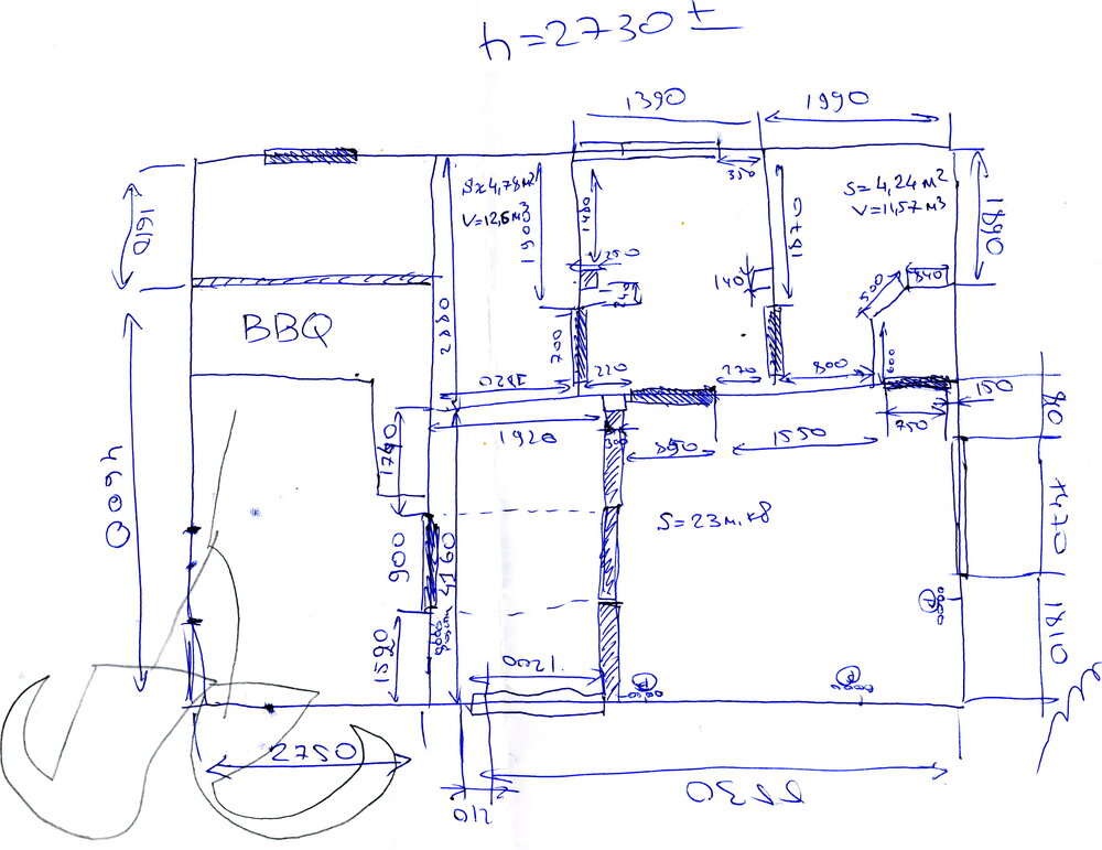
дайте планировку в студию

есть рукописные чертежи здания и примерные по сауне и четкие по хамаму...;-) Не очень информативно ,но понятно в общих чертах...

Зона барбекю уже с прошлого года жарит мясо, коптит рыбу и делает плов...

По хамаму есть толстая папка с полным проектом. Но она мне за деньги немалые делалась и посему раздавать мне ее не позволяет чувство жабы обыкновенной ..:-)

EPSON001.thumb.JPG.b372f5cb2743c7aaf6a74c5bb38f89b7.JPG

611330789_Page0001(2).thumb.jpg.e1541cd894baf2f780268c072a2fa7fa.jpg

Page0001.thumb.jpg.9b2a2ac2dfeab42aedb939833d672e6a.jpg

Legend_suojaet_seiniin_SL.jpg.15d3a46cd615927b5bcfe42a881ed972.jpg

1529295561_rakyrs2_resize.jpg.cf9a20b4f7aea4c10ba02b62ee9b6c6d.jpg

rakyrs1_resize.jpg.a197d25d827a4c8dad51629bac62a143.jpg

Змінено користувачем Kimura
Посилання на коментар
Поділитися на інших сайтах

А сфоткайте плиз стол кухонный сверху?

 

ну или типа со стороны. Как раз мучаюсь какой себе в комнате поставить.

Посилання на коментар
Поділитися на інших сайтах

А сфоткайте плиз стол кухонный сверху?

 

ну или типа со стороны. Как раз мучаюсь какой себе в комнате поставить.

кухонный какой ? в зоне BBQ вы имеете ввиду справа рабочая поверхность которая ?
Посилання на коментар
Поділитися на інших сайтах

кухонный какой ? в зоне BBQ вы имеете ввиду справа рабочая поверхность которая ?

 

Ааа, все понял, что к чему относиться. СпасибО!

Посилання на коментар
Поділитися на інших сайтах

  • 3 тижні потому...

новые фотки --осталось примерно 3-4 дня до финала....:)

даю секретный совет!!!!

Перед тем как установить каменку на постоянное место жительства - -обожгите ее на улице - -будет меньше вони когда будетет еее протапливать первый раз в парилке... Вроде просто - а я бы не додумался- -спасибо мастер подсказал...

IMG_1006_resize.JPG.c4a494fa5feb0443198013900dd68033.JPG

IMG_1007_resize.JPG.34cb58cee6141e9bbc2e7022806c8590.JPG

IMG_1008_resize.JPG.5267e82c070ee8f1d150fdef893408f7.JPG

IMG_1009_resize.JPG.5597ff9a11a5febeb88413544d77293c.JPG

IMG_1010_resize.JPG.8cffc2862b77ffb921d7a3d8896ce7dd.JPG

IMG_1011_resize.JPG.04c05710f5872a7a524682105d3eb185.JPG

IMG_1012_resize.JPG.9b3bb28a9a6d7fa650b47e6e31f3e2e3.JPG

IMG_1013_resize.JPG.0d681657edde210409e407e762e2301d.JPG

IMG_1029_resize.JPG.b67c584cd61136fe080ce50f29eba5ce.JPG

IMG_1030_resize.JPG.a0d68b55920b7130c27ec26cc099c214.JPG

IMG_1031_resize.JPG.416587b9d77628c42ed401f87b66f574.JPG

IMG_1032_resize.JPG.9903d2526f4ea4f51c49e21c7c6dc73e.JPG

IMG_1034_resize.JPG.65356281fe169653c1930bde32b343d5.JPG

IMG_1035_resize.JPG.f2b3f91e9e1f47b437355c4eabc9991d.JPG

IMG_1036_resize.JPG.be034779f67396a79de1ad7255c4eef8.JPG

  • Лайк 1
Посилання на коментар
Поділитися на інших сайтах

Продолжение

Труба в пленке (потом снимется) экран нержавеечные над печью и пр.пр.пр.

IMG_1037_resize.JPG.b604128910cce809dd1fd9413360ad80.JPG

IMG_1038_resize.JPG.480fba7e284a7ff9a66083eb05f5701f.JPG

IMG_1039_resize.JPG.d3f16942dcb094838155d52cd47c3818.JPG

IMG_1040_resize.JPG.1f7368c36e5ae85b96cd268720a36f9f.JPG

IMG_1041_resize.JPG.27dba964275019fb9f4660cd199355f5.JPG

IMG_1042_resize.JPG.b654cddfb4b2bb0227e2afc3e41945ef.JPG

IMG_1046_resize.JPG.8a1a90d8ee028ce4e502203d3ce4ebbe.JPG

IMG_1045_resize.JPG.2ecbfb7ebf0ee63bc45f98c4537da5a5.JPG

IMG_1047_resize.JPG.cd119bd071b007078fa7ae715d0d675e.JPG

IMG_1048_resize.JPG.24053302e8b144f2fa34206030412047.JPG

IMG_1050_resize.JPG.72f85109ba1218e55c1554ac9fd65340.JPG

IMG_1051_resize.JPG.061c4f5edf665cf0e155b43b5abe3345.JPG

IMG_1052_resize.JPG.3105587941a3b4bfaced4e4d623a5bbe.JPG

IMG_1054_resize.JPG.a5f7d65979b44dfbc179e34e1553b544.JPG

IMG_1055_resize.JPG.db67b59e00cf17e189f01ab06edcd2a1.JPG

Посилання на коментар
Поділитися на інших сайтах

И последняя на сегодня серия бани..

Куплен прибор SAWo для температуры и влаги в парилке. Смотрел в эпике 4-5 вариантов - - все остальные показывали разные между собой данные. Только эти и Харвия - -одинаковые и ровные... И бочку-обливайку от Бондарского Дома на 20 литров дубовую.

Осталось немного красоты навести, поставить подспинники -эти красивые разноцветные, сделать фартуки под полоки, поручни вокруг печки... и все..:beer:

IMG_1056_resize.JPG.29d7f81c910fe5bdfc8f88c69633c4b4.JPG

IMG_1058_resize.JPG.778acbfad47446d510b862bf2885c225.JPG

IMG_1060_resize.JPG.dd4028f1b0b435bd8634e1ee5b8fbb50.JPG

IMG_1049_resize.JPG.f4b5d5a8f68bd6ad53992af100ea4619.JPG

  • Лайк 1
Посилання на коментар
Поділитися на інших сайтах

  • 4 тижні потому...

Ну в общем поздравляйте - двери поставил, баню собрали .. Бонба короче...

 

.. есть маленькие секреты точнее приколы - хоть мастер и обжег мою харвию на улице - -заряженная камнями первые 2-3 часа она такой фан выдавала - -ппц!!!! хлорка выедающая глаза - -обгорала значит... жесть а не запах...

Короче топил подряд часов 5-6 периодически заливая каменку водой проливая ее насквозь. В итоге сейчас с сыном попарился - -запах ушел уже .. все прекрасно :D Финальные фотки пришлю позднее...:beer:

Посилання на коментар
Поділитися на інших сайтах

В догонку к последнему посту --выкладываю фотографии окончательного вида бани.

Нижние полочки двигаются вовнутрь и верхние фартуки на защелках откидываются для удобной уборки под полоками. прямо за фартуком на стене отверстие вытяжное нижнее для конвекции - -горячий воздух двигается от печки снизу из отверстия из другой комнаты, нагревается, поднимается вверх проходит через всю комнату и опускается под полок и вытягивается самоходом на улицу. Два грибка под потолком - -один смягчающий - если очень жарко - открыл и конвекция уменьшается.Второй грбок - - связан в вентканалом с принудительной вентиляцией электровентилятором - для быстрой сушки.

Вода стекает по полу в сливную решетку, уклон везде сделан так что бы вода текла самотеком в слив.

Ну что еще - -камни талькохлорит - говорят один из самых комфортных в пользовании.

Кадка дуб - нашлась в подвале, ложка Харвия куплена в Эпицентре.

 

Ну все собственно - пошел париться...:crazy:

IMG_1525_resize.JPG.662c5fa457009ee89637316a205df0f9.JPG

IMG_1526_resize.JPG.52dbe42242260c06349565569423b685.JPG

IMG_1527_resize.JPG.8373bae9667e66ae431e2e8e2aaf33d2.JPG

IMG_1528_resize.JPG.3fc8b5fecc5533c5564f21958ac9adcd.JPG

IMG_1529_resize.JPG.47008b0171e3f4492c3972255cd9f8b8.JPG

IMG_1530_resize.JPG.34b419daba4861e219d780562d09bd82.JPG

IMG_1531_resize.JPG.b0960a46758db9b2f0604ec5af96c4e5.JPG

IMG_1532_resize.JPG.af01e79049c908a33083039c3c04173b.JPG

IMG_1533_resize.JPG.be21550ed30642277cdb5541fe19ccfe.JPG

IMG_1534_resize.JPG.c4f334d5c8c1fc4633be3c09923b7b64.JPG

IMG_1535_resize.JPG.4ac8352e9fa31ee29e5477f21632d843.JPG

IMG_1537_resize.JPG.498d6b2bbe5c613099630b2b4b28e57b.JPG

IMG_1538_resize.JPG.67a8b749af61c9a98d98dd88f40640d0.JPG

IMG_1539_resize.JPG.8912f4b5274ad7b11828474c6e014bd2.JPG

IMG_1541_resize.JPG.05efb8a1776f1567a152a5d8942018ab.JPG

Посилання на коментар
Поділитися на інших сайтах

Поздравляю с первым паром. Банька получилась симпатичная.

Ели не трудно раскройте секреты:

1.Горизонтальная вагонка в комнате отдыха (порода древесины, где покупали, как крепили, обрабатывали дополнительно края вагонки).

2.Древесина в парной отличается по цвету (другой сорт древесины или обрабатывали чем-то).

3.«Нижние полочки двигаются вовнутрь» - фото конструкции.

Надеюсь вопросами не утомил. На следующих выходных сам планирую заняться отделкой парной. Вашу хотел бы принять за образец.

Посилання на коментар
Поділитися на інших сайтах

Поздравляю с первым паром. Банька получилась симпатичная.

Ели не трудно раскройте секреты:

1.Горизонтальная вагонка в комнате отдыха (порода древесины, где покупали, как крепили, обрабатывали дополнительно края вагонки).

2.Древесина в парной отличается по цвету (другой сорт древесины или обрабатывали чем-то).

3.«Нижние полочки двигаются вовнутрь» - фото конструкции.

Надеюсь вопросами не утомил. На следующих выходных сам планирую заняться отделкой парной. Вашу хотел бы принять за образец.

Деталей я Вам не скажу - мастер делал. В общих чертах

1.Сорт одинаковый - тонировалось. В Комнате отдыха еще и под водный лак. Чем тонировалось --не могу сказать --не знаю.

2. Тоже самое использовался тон - какой не в курсе.

3. Сделаю . Там все просто -это скамейки. Т.е. их просто заталкиваешь вовнутрь, ранее на фотках эти скамейки в процессе сборки стоят в комнате отдыха.

Тут мои рекомендации

Змінено користувачем Kimura
Посилання на коментар
Поділитися на інших сайтах

а хамам покажите, пожалуйста:)

 

Там пока склад материалов для хамама. Не успеваю. Скорее всего старт будет в следующую весну

  • Лайк 1
Посилання на коментар
Поділитися на інших сайтах

  • 2 тижні потому...

Ну вот вчера с кумовьями-друзьями парился - печь уже обгорела, никаких посторонних запахов кроме банных в парилке не наблюдалось. т.е. через 5-6 парилок сауна входит в нормальный режим.

В топ чарте самый вкусный запах стало как ни странно эфирное масло лимона.

Кедровые там еловые евкалиптовые - проиграли в приятности...:beer:

Посилання на коментар
Поділитися на інших сайтах

Скажите, а зачем хамам вообще нужен в Вашем доме? Это для тех кому баня не показана или просто очень нравится и хотите на регулярной основе его использовать?
Посилання на коментар
Поділитися на інших сайтах

  • 5 місяців потому...

Отвечу сам на свой вопрос, так как появился доп опыт

Во время зимнего отдыха довелось мне побывать в spa комплексе при гостинице. В состав комплекса входил бассейн (с водным велосипедов – очень прикольно), сауна и нечто под названием «хамам».

Наверно его называли ошибочно хамам и правильно его было бы называть римская парная, так как это похоже на то что в Корвете (но без кранов на стенах как на фото) а не на то что было в гостинице в Турции (мраморный столы с подогревом и банщики с мылом).

В общем очень мягкое и безнапряжное парение и самое удивительное это эффект после. Может быть я не правильно парюсь в банях и саунах, но после них ощущение полной расслабленности и легкости, отсутствие тонуса в день парения и тонус на следующий день.

После этого «хамам-римская парная» тоже ощущение легкости и расслабленности (но не такое конкретное как после баня-сауна) и присутствие тонуса в день парения.

Пришли с женой к выводу что это очень хорошая штука, другой эффект, да и ходить в неё можно намного чаще. (жене это вообще по режиму больше нравится чем баня-сауна - наверно из-за давления)

Буду изучать вопрос реализации и не совсем понимаю, почему кругом говорят, что это в разы дороже сауны-бани.

Там это было реализовано следующим образом:

Г-образное помещение (где-то 1.60м на 3м на лавке в конце и проход 1 м шириной), арочный потолок, бетонные теплые скамейки с округлыми выступами, все (кроме пола) закатано в мозаику, на стене светодиодная лампа с подсветкой разными цветами. Под торцевой скамейкой окошко 20*20 из которого идет время от времени подача пара.(пароустановка находится в соседнем помещении). На потолке возле двери вытяжное отверстие примерно 15 см диаметром. Для приточки использовалась щель под дверью.

Чем греется пол и скамейки (паром или чем-то еще) - не смог узнать.

В общем когда заеду в дом то серьезно подумаю над реализацией сего оздоровительного заведения. Надеюсь его можно сделать в цоколе, не боясь влаги при условии что будет теплый пол и вытажная вентиляция.

russian_banya_14_b.jpg.d6effc4342d9668add56575c82b5bc5d.jpg

Посилання на коментар
Поділитися на інших сайтах

Створіть акаунт або увійдіть у нього для коментування

Ви маєте бути користувачем, щоб залишити коментар

Створити акаунт

Зареєструйтеся для отримання акаунта. Це просто!

Зареєструвати акаунт

Увійти

Вже зареєстровані? Увійдіть тут.

Увійти зараз
×
×
  • Створити...