Перейти до публікації
Пошук в
  • Додатково...
Шукати результати, які містять...
Шукати результати в...

проэкт блочного фундамента. делать армопояс?

formathdd

Рекомендовані повідомлення

Доброго времени суток.

Назрел у меня конкретный вопрос. Создали мне проект фундамента. Дом кирпичный полных два єтажа без подвала. Поставить фундамент и коробку хотим за сезон. Начать хоть уже но и в тоже время не хочется наломать в спешке дров.

По проекту 4ре ряда ФБС блоков без подушки и армопояса. Конструктор утверждает что несущей способности грунтов хватит с головой при такой компоновке. Застройщики в свою очередь хотят делать армопояс по верху блоков. Цена вопроса около 2 тыщ уё. за армопояс и доп время на заливку и застывание.

Не могу определиться. Вроде как грунт действительно хороший (тут все единогласны). +- на двух метрах глубины начинается прочный слой. Соотв по проэкту садимся именно на него.

 

Уважаемые знатоки, что посоветуете? Не хочется делать армопояс "абы було". Действительно ли єтот проэкт фундамента имеет "приличный" запас прочности? Не расползется ли под нагрузками? будет ли неравномерное проседание блоков и спасет ли армопояс от єтого?

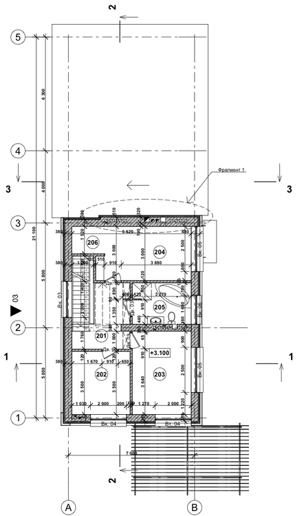
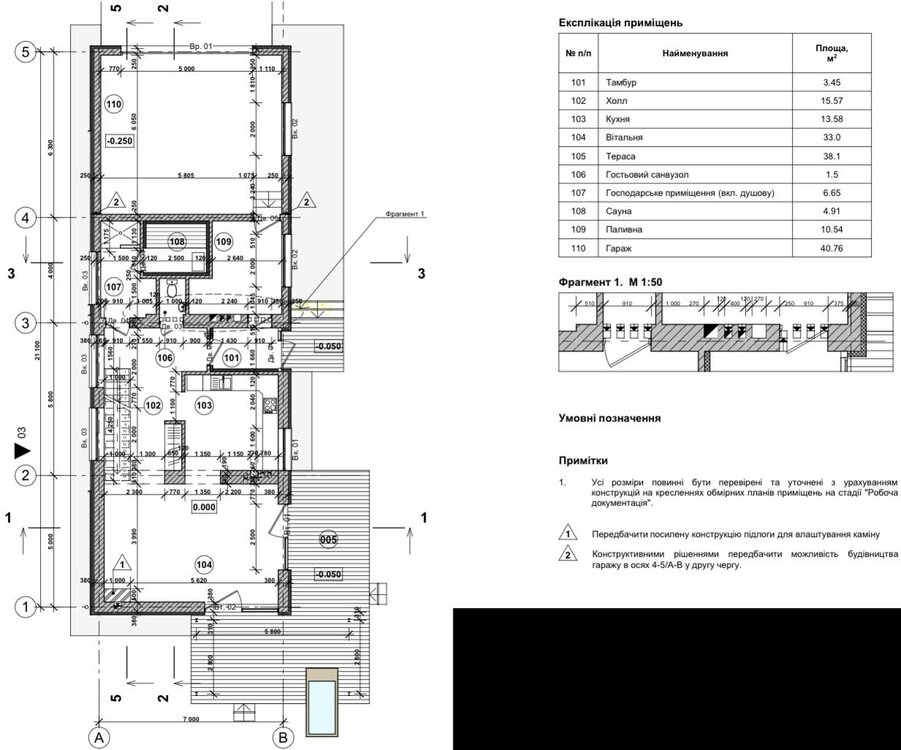
Прилагаю геологию, документацию по фундаменту и дому. При необходимости доп. информации предоставлю.

IMG_3312.thumb.jpg.8a8cbff57a47392f79678f397079bfe8.jpg

IMG_3313.thumb.jpg.50e708954d8eac500e521516ab9e7c42.jpg

IMG_3314.thumb.jpg.8d1632bcb5a80fea9e2b0e0f9cadf654.jpg

IMG_3315.thumb.jpg.441511247a5fd9cab1ece679bf674a5e.jpg

IMG_3316.thumb.jpg.29e95df63c6c91f55dc6ff9ae2b5f5ff.jpg

IMG_3317.thumb.jpg.c4d0a581cc857d5bdb78f8c6d85b4815.jpg

616815021_ScreenShot2012-06-20at19_38_31.thumb.jpg.6936b28a021e7cc2ca1012b3774be855.jpg

223703358_ScreenShot2012-06-20at19_44_46.thumb.jpg.190df19184fba9a27ce2d375a367f504.jpg

2041195773_ScreenShot2012-06-20at19_45_27.thumb.png.40692ebe0c02e8f6db63a1a8f7463926.png

1553906714_ScreenShot2012-06-20at19_46_58.thumb.png.09f2b389e26423fdb27649720ffe6187.png

Посилання на коментар
Поділитися на інших сайтах

Теоретически - какбы всё достаточно если под кирпич. Но имею личное мнение - ФБС без подушки основания и армопояса это как автомобиль без подушки безопасности и ремня. Ездить можно но ..........
Посилання на коментар
Поділитися на інших сайтах

Створіть акаунт або увійдіть у нього для коментування

Ви маєте бути користувачем, щоб залишити коментар

Створити акаунт

Зареєструйтеся для отримання акаунта. Це просто!

Зареєструвати акаунт

Увійти

Вже зареєстровані? Увійдіть тут.

Увійти зараз
×
×
  • Створити...