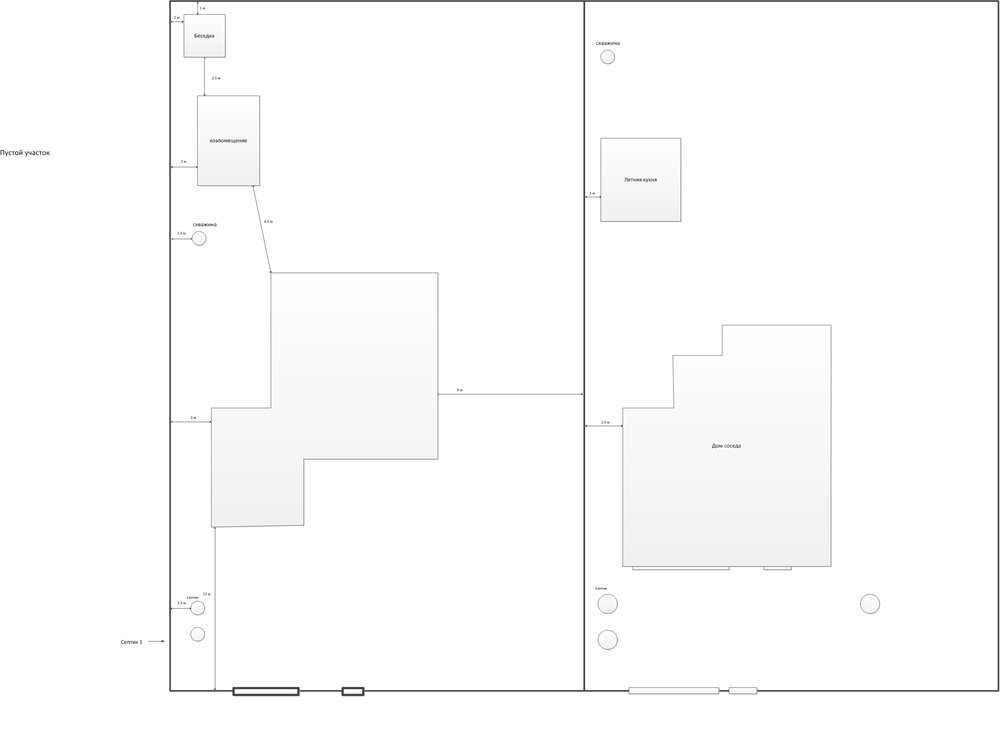
kleo_k Опубліковано: 26 червня 2012 Поділитись Опубліковано: 26 червня 2012 Помогите советом, очень нужна помощь в правильном расположении хозпристройки на участке-для стройпаспорта и чтобы не было проблем с соседом справа;)(уже построен полностью). Ниже эскизный план застройки и отступы от соседа справа, слева еще никого нет. Мозги закипают, вопрос в следующем -возможно ли чтобы наша хозпристройка была размещена на таком расстоянии от летней кухни соседа без согласования с ним (просто по нормам) или придется просить, что не очень хотелось бы. Вроде как по ДБН все сходится, но наша пристройка выступает за края его пристройки по длине и не будет ли вопросов к нам по поводу ее близости к дому соседа (по внешних стенах получается -9м по диагонали). Может кто-то рассеет наши сомнения по этому поводу или подскажет на какие нормы ссылаться. Будем признательны за любую помощь и подсказку. Посилання на коментар Поділитися на інших сайтах More sharing options...
Miron VV Опубліковано: 26 червня 2012 Поділитись Опубліковано: 26 червня 2012 Помогите советом, очень нужна помощь в правильном расположении хозпристройки на участке-для стройпаспорта и чтобы не было проблем с соседом справа;)(уже построен полностью). Ниже эскизный план застройки и отступы от соседа справа, слева еще никого нет. Мозги закипают, вопрос в следующем -возможно ли чтобы наша хозпристройка была размещена на таком расстоянии от летней кухни соседа без согласования с ним (просто по нормам) или придется просить, что не очень хотелось бы. Вроде как по ДБН все сходится, но наша пристройка выступает за края его пристройки по длине и не будет ли вопросов к нам по поводу ее близости к дому соседа (по внешних стенах получается -9м по диагонали). Может кто-то рассеет наши сомнения по этому поводу или подскажет на какие нормы ссылаться. Будем признательны за любую помощь и подсказку. утодвигайте свой хозсарай от его летней кухни на 8 (6.4) м. Приложение 3.1 (обязательное) ПРОТИВОПОЖАРНЫЕ ТРЕБОВАНИЯ ДБН360-92** 1 Посилання на коментар Поділитися на інших сайтах More sharing options...
kleo_k Опубліковано: 27 червня 2012 Автор Поділитись Опубліковано: 27 червня 2012 Спасибо за подсказку, правильно ли я понимаю, что летняя кухня не приравнивается к хозпристройке, потому как вроде по тому ж дбн разрешено совмещать хозпомещения на соседних участках, будем признательны за комментарии экспертов Посилання на коментар Поділитися на інших сайтах More sharing options...
Miron VV Опубліковано: 27 червня 2012 Поділитись Опубліковано: 27 червня 2012 Спасибо за подсказку, правильно ли я понимаю, что летняя кухня не приравнивается к хозпристройке, потому как вроде по тому ж дбн разрешено совмещать хозпомещения на соседних участках, будем признательны за комментарии экспертов летняя кухня это хозпостройка и их разрешается блокировать с соседними постройками по согласию сторон 1 Посилання на коментар Поділитися на інших сайтах More sharing options...
kleo_k Опубліковано: 5 липня 2012 Автор Поділитись Опубліковано: 5 липня 2012 форумчане, вопрос в тему, помогите советом по правильному расположению дома и хозпристройки (так чтобы согласовали для стройпаспорта -так сказать "малою кровью"). уже переместили летнюю кухню по совету Мирона, может кто-то еще что подскажет. Юрий, особенно интересно Ваше мнение как эксперта в этих вопросах, дайте пож., свое заключение. Местонахождение участка -Вита-Почтовая, Киево-Святошинский район. Посилання на коментар Поділитися на інших сайтах More sharing options...
Рекомендовані повідомлення
Створіть акаунт або увійдіть у нього для коментування
Ви маєте бути користувачем, щоб залишити коментар
Створити акаунт
Зареєструйтеся для отримання акаунта. Це просто!
Зареєструвати акаунтУвійти
Вже зареєстровані? Увійдіть тут.
Увійти зараз