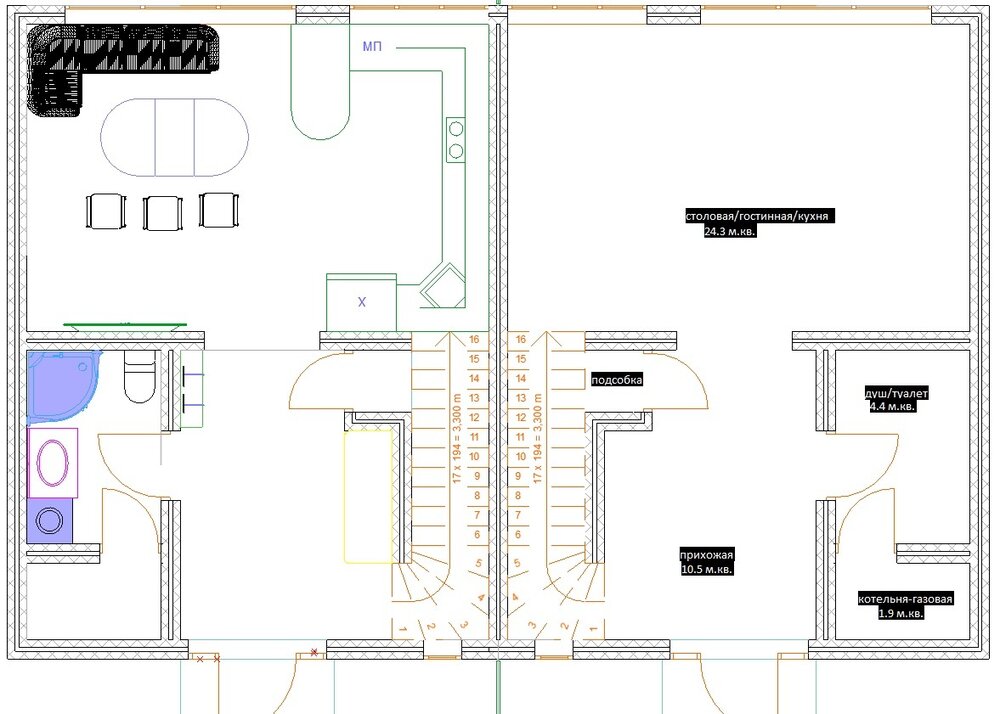
geroin Опубліковано: 22 липня 2012 Поділитись Опубліковано: 22 липня 2012 В названии все сказано. Есть квартира которая будет продана, но для разъезда решено купить участок и построить дом, вместо покупки двух квартир меньшей квадратуры. Задача спроектировать дом эстетически позитивным, в строительстве - максимально простым и достаточно не дорогой, в эксплуатации - экономным. Ниже наброски первого варианта планировки. Жду жесткую критику. Я тут именно для этого. Тех. задание: Материал - несъемная опалубка Валькирия. Площадь - две части по 100м. кв. Посилання на коментар Поділитися на інших сайтах More sharing options...
Artyomovets Опубліковано: 22 липня 2012 Поділитись Опубліковано: 22 липня 2012 топочная под газовый котел маловата. да и зачем их 2? по жизни: если из квартиры разъезжаетесь - нет смысла в дом съезжаться Посилання на коментар Поділитися на інших сайтах More sharing options...
Vavilеn Опубліковано: 22 липня 2012 Поділитись Опубліковано: 22 липня 2012 Лестница на 3300 16 ступеней - весьма крутовато, если это не 2 семьи спортсменов. Ступеней надо минимум 20, а комфортно 21-22. Посилання на коментар Поділитися на інших сайтах More sharing options...
geroin Опубліковано: 22 липня 2012 Автор Поділитись Опубліковано: 22 липня 2012 Это будут два полностью автономных дома, просто общаяя стена, поэтому котельни и все остальное сдвоено. Кстати Вы сказали что она маловата, а оптимально это сколько. Котел планирую двухконтурный, газовый. Разезжаемся в рядом стоящие дома- как переходной период. В дальнейшем я построю отдельно стоящий дом. Это проэкт переходной. Их уже было несколько в моей жизни, начиная с 2х комнат в общежитии. По леснице- согласен, нужно увеличить количество ступеней. Посилання на коментар Поділитися на інших сайтах More sharing options...
ionico Опубліковано: 22 липня 2012 Поділитись Опубліковано: 22 липня 2012 Вы бы лучше блокировали с/узел к с/узлу. Чего они на разных концах? Посилання на коментар Поділитися на інших сайтах More sharing options...
Aleks_inc Опубліковано: 23 липня 2012 Поділитись Опубліковано: 23 липня 2012 смежный домPlans.pdf Посилання на коментар Поділитися на інших сайтах More sharing options...
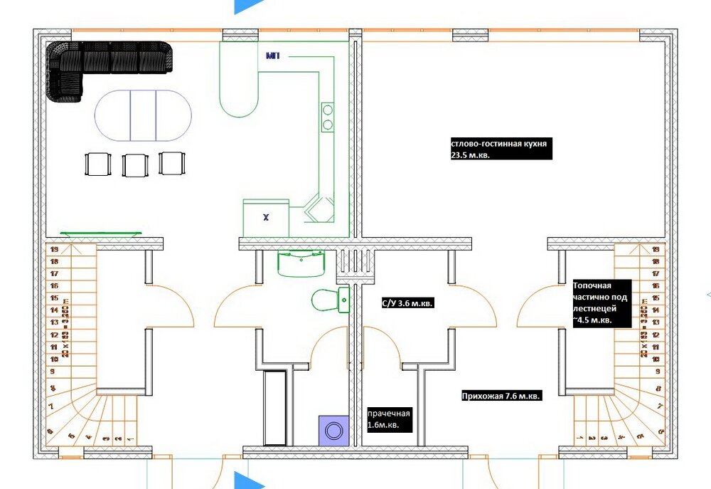
geroin Опубліковано: 23 липня 2012 Автор Поділитись Опубліковано: 23 липня 2012 Алексей, спасибо. Попробую взять что то для себя из представленного проекта. Пока что получается как на эскизе ниже. лесница 20х163=3250 Мне тут подсказывают что столовая маловата, но как ее увеличить... ума не приложу. При том что перекрытие межу этажами скорее всего буду делать ж/б. Онако так тише, и ничего никогда не будет скрипеть. Посилання на коментар Поділитися на інших сайтах More sharing options...
geroin Опубліковано: 23 липня 2012 Автор Поділитись Опубліковано: 23 липня 2012 и кстати кто подскажет требования к помещениям предназначенных для котлов? какая площадь? какое окно? как высоко должно заканчиваться, или низко? Посилання на коментар Поділитися на інших сайтах More sharing options...
Рекомендовані повідомлення
Створіть акаунт або увійдіть у нього для коментування
Ви маєте бути користувачем, щоб залишити коментар
Створити акаунт
Зареєструйтеся для отримання акаунта. Це просто!
Зареєструвати акаунтУвійти
Вже зареєстровані? Увійдіть тут.
Увійти зараз