рома на пыже Опубліковано: 3 серпня 2012 Поділитись Опубліковано: 3 серпня 2012 День добрый! Нужно изготовить лестницу без площадки поворот на 180 градусов, как таковых предпочтений нет, т.е. деревянная, на каркасе или же бетонная. Высота 3,10 м.По другим размерам сложно, есть углы, нужно влюбом случае смотреть на месте. Териториально Требухов. П.С. Положительные отзывы от форумчан приветсвуются. Посилання на коментар Поділитися на інших сайтах More sharing options...
рома на пыже Опубліковано: 27 серпня 2012 Автор Поділитись Опубліковано: 27 серпня 2012 День добрый! Нужно изготовить лестницу без площадки поворот на 180 градусов, как таковых предпочтений нет, т.е. деревянная, на каркасе или же бетонная. Высота 3,10 м.По другим размерам сложно, есть углы, нужно влюбом случае смотреть на месте. Териториально Требухов. П.С. Положительные отзывы от форумчан приветсвуются. Добрый вечер! Вопрос по лестнице актуальный, есть одно но изменились вводные: * нужно сделать проект лестницы. П.С. Бетонная лестница отпадает , только дерево или на каркасе. Посилання на коментар Поділитися на інших сайтах More sharing options...
valerazaz Опубліковано: 28 серпня 2012 Поділитись Опубліковано: 28 серпня 2012 проект на бумаге со спецыфикацыей деталей? вообще то он стоить денег,что касается м.каркаса цена лестницы только возрастает, если делать закрытый тип лесницы,и вероятность боков больше. спецам проект не нужен,если для новичка в этом деле ,попандос обеспечен. Посилання на коментар Поділитися на інших сайтах More sharing options...
Деревянщик Опубліковано: 28 серпня 2012 Поділитись Опубліковано: 28 серпня 2012 Проэкт нужен всегда. Другое дело он может быть на бумаге, на компе или в голове у исполнителя. Причем, в первую очередь он нужен для согласования внешнего вида, деталировки, материалов а значит и стоимости готового изделия. А отсутствие взаимопонимания между заказчиком и исполнителем - вот оснавная причина "попандоса". 1 Посилання на коментар Поділитися на інших сайтах More sharing options...
valerazaz Опубліковано: 28 серпня 2012 Поділитись Опубліковано: 28 серпня 2012 у меня проект в голове,были попандосы всё розказали показали ,нарисовали а делали другие. Посилання на коментар Поділитися на інших сайтах More sharing options...
рома на пыже Опубліковано: 28 серпня 2012 Автор Поділитись Опубліковано: 28 серпня 2012 проект на бумаге со спецыфикацыей деталей? вообще то он стоить денег,что касается м.каркаса цена лестницы только возрастает, если делать закрытый тип лесницы,и вероятность боков больше. спецам проект не нужен,если для новичка в этом деле ,попандос обеспечен. Проект должен быть в любом случае, объясню почему - не хочется чтобы после монтажа ходить по ней было не удобно!!! То что спецам проект не нужен не соглашусь...в голове или на листочке бумаги не даст полной картины по удобству эксплуатации как для клиента так и для изготовителя.Всё ИМХО Посилання на коментар Поділитися на інших сайтах More sharing options...
valerazaz Опубліковано: 28 серпня 2012 Поділитись Опубліковано: 28 серпня 2012 удобность ходьбы можно определить просто после просчёта на бумажке,и что касается удобности зависит сколько места оставили на лестницу. есть нормы розмеров определяющие удобность ходьбы,проект больше нужен для изготовления деталей и монтаже людьми с навыками плотника. Посилання на коментар Поділитися на інших сайтах More sharing options...
рома на пыже Опубліковано: 28 серпня 2012 Автор Поділитись Опубліковано: 28 серпня 2012 удобность ходьбы можно определить просто после просчёта на бумажке,и что касается удобности зависит сколько места оставили на лестницу. есть нормы розмеров определяющие удобность ходьбы,проект больше нужен для изготовления деталей и монтаже людьми с навыками плотника. Правильно говорите ....сколько оставили места под лестницу....как видно из того что говорят люди делающие лестницу нужно подумать как правильно покрутить...кто то говорит что вообще её здесь не получится сделать... Посилання на коментар Поділитися на інших сайтах More sharing options...
Деревянщик Опубліковано: 28 серпня 2012 Поділитись Опубліковано: 28 серпня 2012 удобность ходьбы можно определить просто после просчёта на бумажке,и что касается удобности зависит сколько места оставили на лестницу. есть нормы розмеров определяющие удобность ходьбы,проект больше нужен для изготовления деталей и монтаже людьми с навыками плотника. То-есть, по Вашему мнению, люди с навыками, например, повара легко смонтируют лесницу без проекта, а вот плотники-столяры - чурбаны не отесанные без проекта и гвоздь забить не умеют? P.S. Интересно кто Вы по роду занятий? "Покращетель життя вже сьогодні з команди професионалів?":) Посилання на коментар Поділитися на інших сайтах More sharing options...
рома на пыже Опубліковано: 28 серпня 2012 Автор Поділитись Опубліковано: 28 серпня 2012 может кто что подскажет Посилання на коментар Поділитися на інших сайтах More sharing options...
valerazaz Опубліковано: 28 серпня 2012 Поділитись Опубліковано: 28 серпня 2012 мало места оставили ,выходит средний показатель по удобности ходьбы.если подрезать потолок 1 етажа то можна выйти и на нормальные ходовые качества. Посилання на коментар Поділитися на інших сайтах More sharing options...
rul.32 Опубліковано: 28 серпня 2012 Поділитись Опубліковано: 28 серпня 2012 может кто что подскажет Все,что можно выжать из этого проема это угол 36.5град.(ходить можно)с подступенком 180мм и проступью 245мм.Проект будет стоить 400гр.При заказе лестницы бесплатно. Посилання на коментар Поділитися на інших сайтах More sharing options...
Деревянщик Опубліковано: 29 серпня 2012 Поділитись Опубліковано: 29 серпня 2012 В таком ограниченном пространстве желательно использовать с толком каждый сантиметр. Обратите внимание, что у человека стены - термодом, а плиты перекрытие - круглопустотки (1 м не вырежеш), поэтому вопрос не только в удобности хождения, что однозначно важно, но и в возможности монтажа из-за особенностей конструктива. Вот пример "сложной" лесницы Посилання на коментар Поділитися на інших сайтах More sharing options...
Деревянщик Опубліковано: 15 вересня 2012 Поділитись Опубліковано: 15 вересня 2012 Вот этапы решения данного вопроса: 1. Проект лесницы; 2. Заготовка материалов; 3. Изготовление лесницы на объекте О леснице: Высота лесницы - 2,34м; Резмеры: ступени 285 ммм, подступенок 154 мм Материал: доска (0,5м3), ОСБ-10 -1 лист, ОСБ-22 -1,5 лист. Время изготовления с подготовкой дерева 1,5 -2 недели. Посилання на коментар Поділитися на інших сайтах More sharing options...
valerazaz Опубліковано: 16 вересня 2012 Поділитись Опубліковано: 16 вересня 2012 и что дальше? чем окультуривать будете? и єто в проекте заложена 1 ступень с меньшой высотой ,чтобы носом клевать. Посилання на коментар Поділитися на інших сайтах More sharing options...
Деревянщик Опубліковано: 16 вересня 2012 Поділитись Опубліковано: 16 вересня 2012 и что дальше? чем окультуривать будете? и єто в проекте заложена 1 ступень с меньшой высотой ,чтобы носом клевать. Лесница черновая, а пол первого этажа чистовой. На лесницу предполагается укладка чистовых ступеней и подступеней из твердых пород дерева. Соответственно уровнь каждой ступени поднимется (первой ступени в том числе). Объясняю Вам это так подробно, так как понимаю, что в строительстве, сюдя по Вашему коментарию, Вы человек начинающий и не предпологаете о существовании разных нюансов в строительном деле. Посилання на коментар Поділитися на інших сайтах More sharing options...
valerazaz Опубліковано: 16 вересня 2012 Поділитись Опубліковано: 16 вересня 2012 при чём тут стоительство дома к равномерному шагу лестницы, разница высоты подступени 1 ступени должна быть от последующих - 4см по чему сразу не делать всё в чистовом варианте с нормального дерева,и не делать 2 роботу,может так дешевле? 2 Посилання на коментар Поділитися на інших сайтах More sharing options...
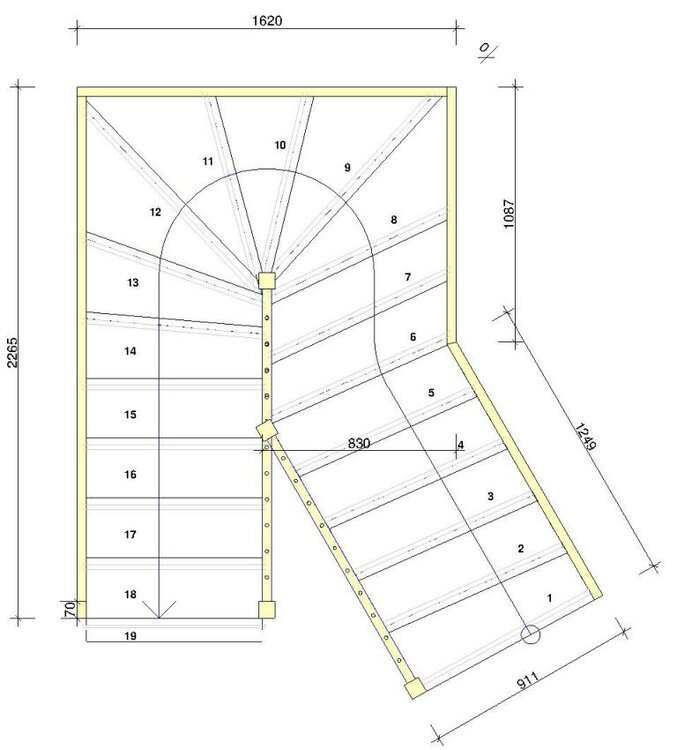
bratch Опубліковано: 16 вересня 2012 Поділитись Опубліковано: 16 вересня 2012 по чему сразу не делать всё в чистовом варианте с нормального дерева,и не делать 2 роботу,может так дешевле? +1, Тоже об этом подумал. Вот набросал предварительный проект лесницы, сразу из чистового материала. Посилання на коментар Поділитися на інших сайтах More sharing options...
Деревянщик Опубліковано: 17 вересня 2012 Поділитись Опубліковано: 17 вересня 2012 при чём тут стоительство дома к равномерному шагу лестницы, разница высоты подступени 1 ступени должна быть от последующих - 4см по чему сразу не делать всё в чистовом варианте с нормального дерева,и не делать 2 роботу,может так дешевле? Лучше быть богатым и здоровым, чем бедным и больным А если второй этаж не закончен и только готовится к отделке? И по леснице будут носить профиля, гипсокартон и т.п. А если на втором этаже только будет устанавливатся перегородки, потолки и делаться малярка? Не задумывались, что может случится с Вашей, не спорю, высокохудожественной чистовой лесницей? Если будет интересно, оторвитесь от своих септиков, и зайдите в дом, где делается отделка. Тогда и вопросов у Вас, может быть, поубавится. Посилання на коментар Поділитися на інших сайтах More sharing options...
valerazaz Опубліковано: 17 вересня 2012 Поділитись Опубліковано: 17 вересня 2012 Лучше быть богатым и здоровым, чем бедным и больным и к чему это выражения? основной бизнес связян с деревом,так что я повидал много строек. Посилання на коментар Поділитися на інших сайтах More sharing options...
Рекомендовані повідомлення
Створіть акаунт або увійдіть у нього для коментування
Ви маєте бути користувачем, щоб залишити коментар
Створити акаунт
Зареєструйтеся для отримання акаунта. Це просто!
Зареєструвати акаунтУвійти
Вже зареєстровані? Увійдіть тут.
Увійти зараз