yana71 Опубліковано: 12 серпня 2012 Поділитись Опубліковано: 12 серпня 2012 (змінено) Доброго времени суток, уважаемые форумчане! Нужны Ваши советы и замечания по планировке участка. Участок 10 соток, прямоугольной формы 20х50 Планируем строительство небольшого домика 165 м2 Гараж на 2 машины, небольшую баньку, кустарники, грядку для овощей, газоны. Дом планируется для постоянного проживания 4 взрослых и 2 детей. Будем очень признательны, Вашим советам. Рассмотрим все предложения по цене и планировке данного участка. Змінено 12 серпня 2012 користувачем yana71 Посилання на коментар Поділитися на інших сайтах More sharing options...
yana71 Опубліковано: 12 серпня 2012 Автор Поділитись Опубліковано: 12 серпня 2012 Требуются услуги по планировке участка. Посилання на коментар Поділитися на інших сайтах More sharing options...
У-Дача Опубліковано: 16 серпня 2012 Поділитись Опубліковано: 16 серпня 2012 Вы занимайтесь строительством и обдумывайте идеи по планировке участка, как показала практика, пока здания не поставите проектом ландшафта заниматься не стоит, т.к. возможно масса изменений и по техническим моментам и Вас разные идеи посетят за это время... 1 Посилання на коментар Поділитися на інших сайтах More sharing options...
d-mytro Опубліковано: 20 серпня 2012 Поділитись Опубліковано: 20 серпня 2012 Требуются услуги по планировке участка. Мы рекомендуем как раз на этапах планирования и строительства подумать о будущем ландшафте. Грамотный ландшафтник подскажет где лучше разместить строения, сад, огород, зону отдыха, как правильно ориентировать по сторонам света, защититься от шума дороги и т.д. Процесс планирования и обустройства участка может занять не один месяц. Лучше быть во всеоружии к моменту окончания строительства. У нас на сайте есть статья об этом. Обращайтесь Посилання на коментар Поділитися на інших сайтах More sharing options...
У-Дача Опубліковано: 20 серпня 2012 Поділитись Опубліковано: 20 серпня 2012 d-mytro, вообщем я тоже самое и написала, что на этапе строительства об этом нужно думать... вот только проектом ландшафта не стоит на данном этапе заниматься, ведь Вы не бесплатно будете вносить все изменения в проект, которые возникнут до конца строительных работ, а если вдруг вообще концепция поменяется, что так же часто бывает ? Посилання на коментар Поділитися на інших сайтах More sharing options...
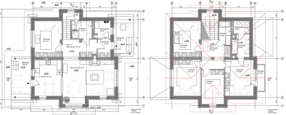
wipe Опубліковано: 20 серпня 2012 Поділитись Опубліковано: 20 серпня 2012 Извените, что не по теме вопроса, мне просто проект понравился, а есть ли виды фасадов ? очень интересно. Посилання на коментар Поділитися на інших сайтах More sharing options...
Домовуша Опубліковано: 1 лютого 2014 Поділитись Опубліковано: 1 лютого 2014 Извените, что не по теме вопроса, мне просто проект понравился, а есть ли виды фасадов ? очень интересно. присоединяюсь. очень интересный проект. Посилання на коментар Поділитися на інших сайтах More sharing options...
mavriciy Опубліковано: 4 лютого 2014 Поділитись Опубліковано: 4 лютого 2014 присоединяюсь. очень интересный проект. Проект Шильникова www.shilnikov.ru/page110.htm это или другой. Посилання на коментар Поділитися на інших сайтах More sharing options...
Рекомендовані повідомлення
Створіть акаунт або увійдіть у нього для коментування
Ви маєте бути користувачем, щоб залишити коментар
Створити акаунт
Зареєструйтеся для отримання акаунта. Це просто!
Зареєструвати акаунтУвійти
Вже зареєстровані? Увійдіть тут.
Увійти зараз